// Check if the article Layout ?>
In Stahl gehüllt: Musikzentrum in Évreux
Foto: André Moris
Gelegen am Rande der Altstadt von Évreux, hat der Neubau die Aufgabe, eine Synergie zu den Aktivitäten des angrenzenden weitläufigen Festplatzes herzustellen. Um diesem Ort gerecht zu werden, sitzt das Musikzentrum skulptural und autonom zwischen großmaßstäblichen Bauten auf einer brachliegenden Fläche. Die gesamte Kubatur ist in eine leichte Metallhaut aus teilweise poliertem Stahl gehüllt.
Entgegen dieser introvertierten Anmutung, durchbricht eine öffentliche Passage - das sogenannte »Deck« - das Gebäude in Nord-Süd-Richtung und eröffnet zum Festplatz hin eine Plattform, die einerseits als Stadtbühne, andererseits als Terrasse für das integrierte Café fungiert. Die mit Holzlamellen verkleidete Passage kontrastiert zur äußeren reflektierenden Metallfassade und formt einen geschützten Außenraum.
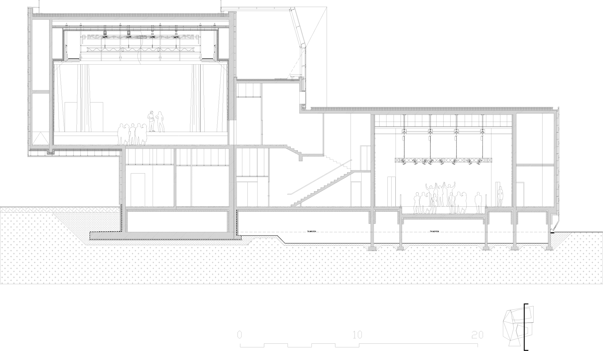
Von der Passage aus können sämtliche Räumlichkeiten erschlossen werden: der große Konzertsaal mit 600 Stehplätzen, ein Musikclub mit Platz für 150 Menschen, eine Radiostation, Proberäume, Aufnahmestudios sowie Büroräume.
Der geschlossene Körper setzt sich aus dreieckigen Flächen zusammen und weist eine sehr dynamische Form auf, die graduell in die Höhe wächst. Am höchsten Punkt im ersten Obergeschoss befindet sich der große Konzertsaal der einen Vorsprung über dem Eingang im Erdgeschoss bildet und diesen betont.
Das Live-Musik-Café weist eine zur Passage hin ausgerichtete doppelte Glasfassade auf, die aus akustischen Gründen fächerartig gefaltet ist. Ebenfalls der akustischen Isolierung geschuldet, sind die Konzertsäle und die Aufnahmestudios als eigenständige abgeschlossene Betonkuben ausgebildet und es kommen doppelte Wände sowie abgehängte Decken zum Einsatz.
Entgegen dieser introvertierten Anmutung, durchbricht eine öffentliche Passage - das sogenannte »Deck« - das Gebäude in Nord-Süd-Richtung und eröffnet zum Festplatz hin eine Plattform, die einerseits als Stadtbühne, andererseits als Terrasse für das integrierte Café fungiert. Die mit Holzlamellen verkleidete Passage kontrastiert zur äußeren reflektierenden Metallfassade und formt einen geschützten Außenraum.
Von der Passage aus können sämtliche Räumlichkeiten erschlossen werden: der große Konzertsaal mit 600 Stehplätzen, ein Musikclub mit Platz für 150 Menschen, eine Radiostation, Proberäume, Aufnahmestudios sowie Büroräume.
Der geschlossene Körper setzt sich aus dreieckigen Flächen zusammen und weist eine sehr dynamische Form auf, die graduell in die Höhe wächst. Am höchsten Punkt im ersten Obergeschoss befindet sich der große Konzertsaal der einen Vorsprung über dem Eingang im Erdgeschoss bildet und diesen betont.
Das Live-Musik-Café weist eine zur Passage hin ausgerichtete doppelte Glasfassade auf, die aus akustischen Gründen fächerartig gefaltet ist. Ebenfalls der akustischen Isolierung geschuldet, sind die Konzertsäle und die Aufnahmestudios als eigenständige abgeschlossene Betonkuben ausgebildet und es kommen doppelte Wände sowie abgehängte Decken zum Einsatz.
Weitere Informationen:
Fertiggestellt: 2016
BGF: 3020m2
Kosten: € 8.5 Mio
Fotograf: André Morin
Fertiggestellt: 2016
BGF: 3020m2
Kosten: € 8.5 Mio
Fotograf: André Morin





















