Individualität trifft Monotonie: Museumsgebäude von Vector Architects
Foto: Chen Hao
Urbane Entwicklungsprojekte werden in China ohne große Rücksicht auf den Bestand umgesetzt. Im Mittelpunkt steht die schnelle Errichtung von Wohnraum für möglichst viele Bewohner in möglichst geringer Zeit. Die historische Bausubstanz des Viertels Changjiang in der nordchinesischen Stadt Taiyuan musste im Jahr 2016 im Zuge eines solchen Masterplans monotonen Hochhausbauten weichen. Ein kleines Stück Vergangenheit gliedert sich nun aber mit dem Changjiang Art Museum am Fuße der neuen Wohnkomplexe in die Bebauung ein.
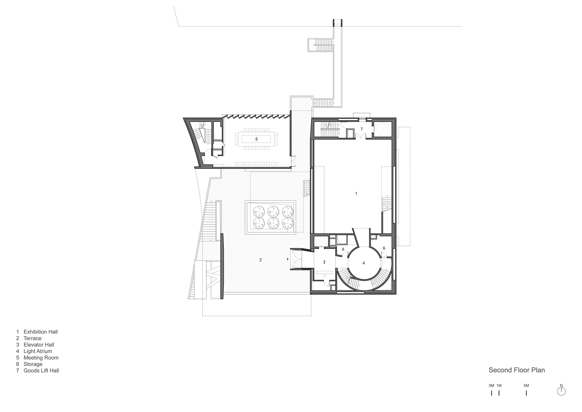
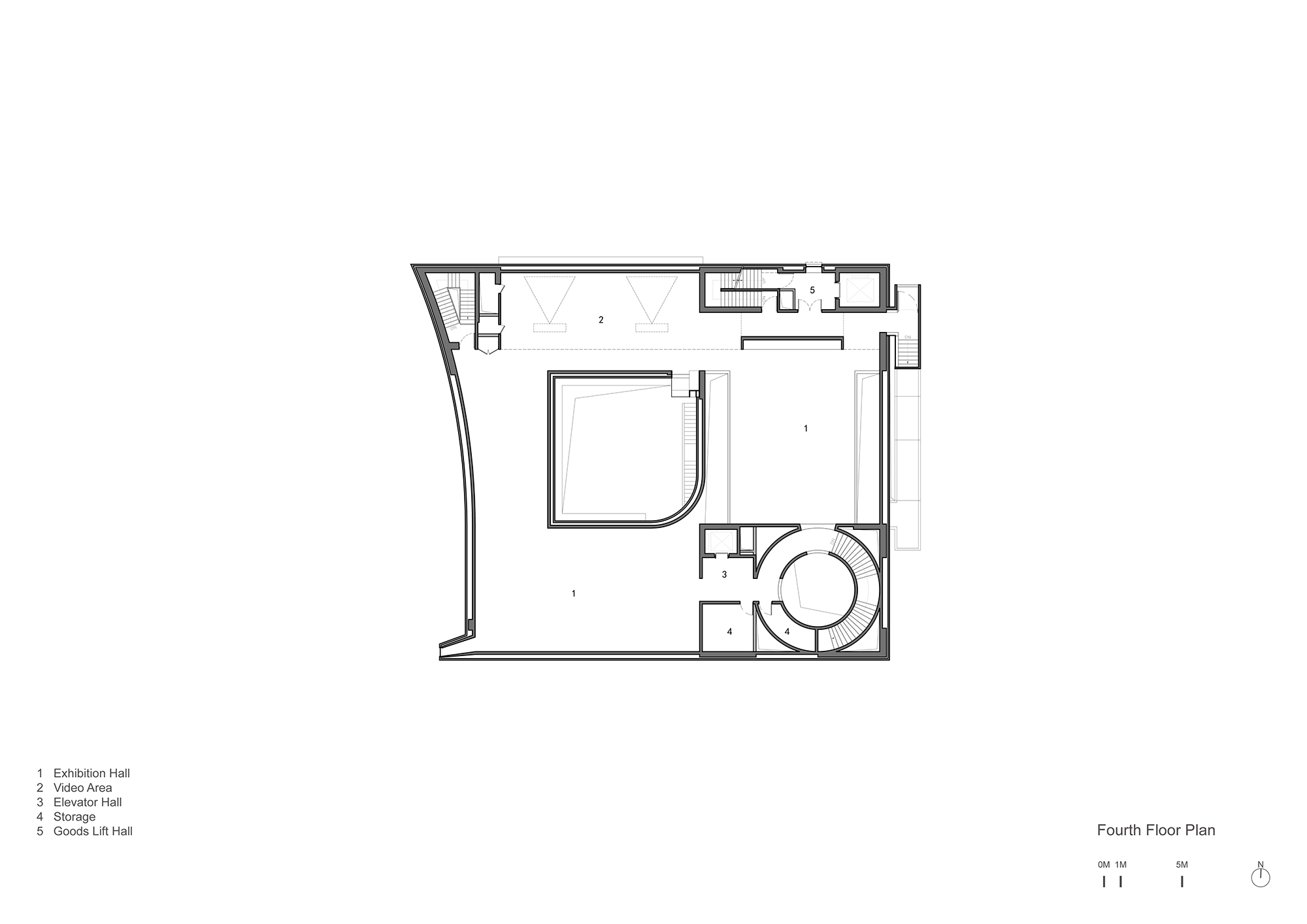
Vector Architects gestalten das Museum als rotbraunen Ziegelbau. Das kompakte Volumen lockern diverse Einschnitte und Vorsprünge auf, die zum Teil von grauem Sichtbeton markiert werden. An der südwestlichen Ecke erfolgt der Zugang zum Gebäude über eine höhlenartige Eingangssituation. Direkt daneben schmiegt sich eine Außentreppe seitlich an den Baukörper. Sie führt bis auf eine Terrasse im ersten Obergeschoss, an die außerdem eine Fußgängerbrücke des Wohnviertels anschließt. Die Etage verwandelt sich in einen öffentlichen Platz mit Blick auf den tieferliegenden, bepflanzten Innenhof des Museums, und wird zum kommunikativen Treffpunkt für Besucher und Anrainer.
Die Innenräume, sowie die Erschließung des Museums ordnen sich rund um einen zentralen Lichtschacht mit über 16 m Höhe und einem Durchmesser von 5,7 m an. Am Weg durch den Bau lenken die Architekten den Blick der Besucher durch Ausnehmungen immer wieder gezielt ins Innere des beeindruckenden Sichtbeton-Hohlraums. Die wenigen Verglasungen in den Ziegelaußenwänden integrieren an einigen Stellen die Aussicht auf die umgebenden Hochhauskomplexe in das Design des Changjiang Art Museums. Andernorts fällt das Tageslicht durch schmale, kiemenartige Öffnungen subtil in die Ausstellungsräume und zeichnet die Struktur der Schalplatten auf dem Beton sowie die Fugen zwischen den Ziegeln nach. Eine kassettierte Decke aus quadratischen Oberlichtern überspannt die Galerien im obersten Geschoss. Sie filtert das eindringende Licht und erzeugt eine angenehme Atmosphäre.




























