Industriecharme macht Schule: Primarschule Thun von Lanzrein+Partner
Foto: Roland Trachsel Fotografie
Der Stadtteil Seefeld in Thun benötigte schnellst möglich neuen Bildungsraum, dessen Nutzung zudem auf 15 Jahre beschränkt sein sollte. Diese Anforderungen verpacken Lanzrein+Partner Architekten in einen modularen Holzelementbau, der später ohne große Schwierigkeiten versetzt werden kann.
Es entsteht ein annähernd quadratischer Baukörper. Dieser spannt mit den südlich gelegenen temporären Metallcontainern des Kindergartens einen Zwischenraum auf, der als gemeinsamer Pausenhof genutzt wird. Im Westen öffnet sich die Primarschule zum Grün; rund um einen großen Nussbaum entsteht reichlich Spiel- und Erholungsraum für die Schüler. Die Erschließung erfolgt aus östlicher Richtung, von der angrenzenden Schubertstrasse her. Hier springt das Volumen leicht zurück und macht Platz für einen überdachten, von Holzstehern gesäumten, Fahrradparkplatz und den Eingang. Die vertikalen Säulen bilden einen spannenden Kontrast zu den Fassaden, die in horizontale Holzlatten gekleidet sind.
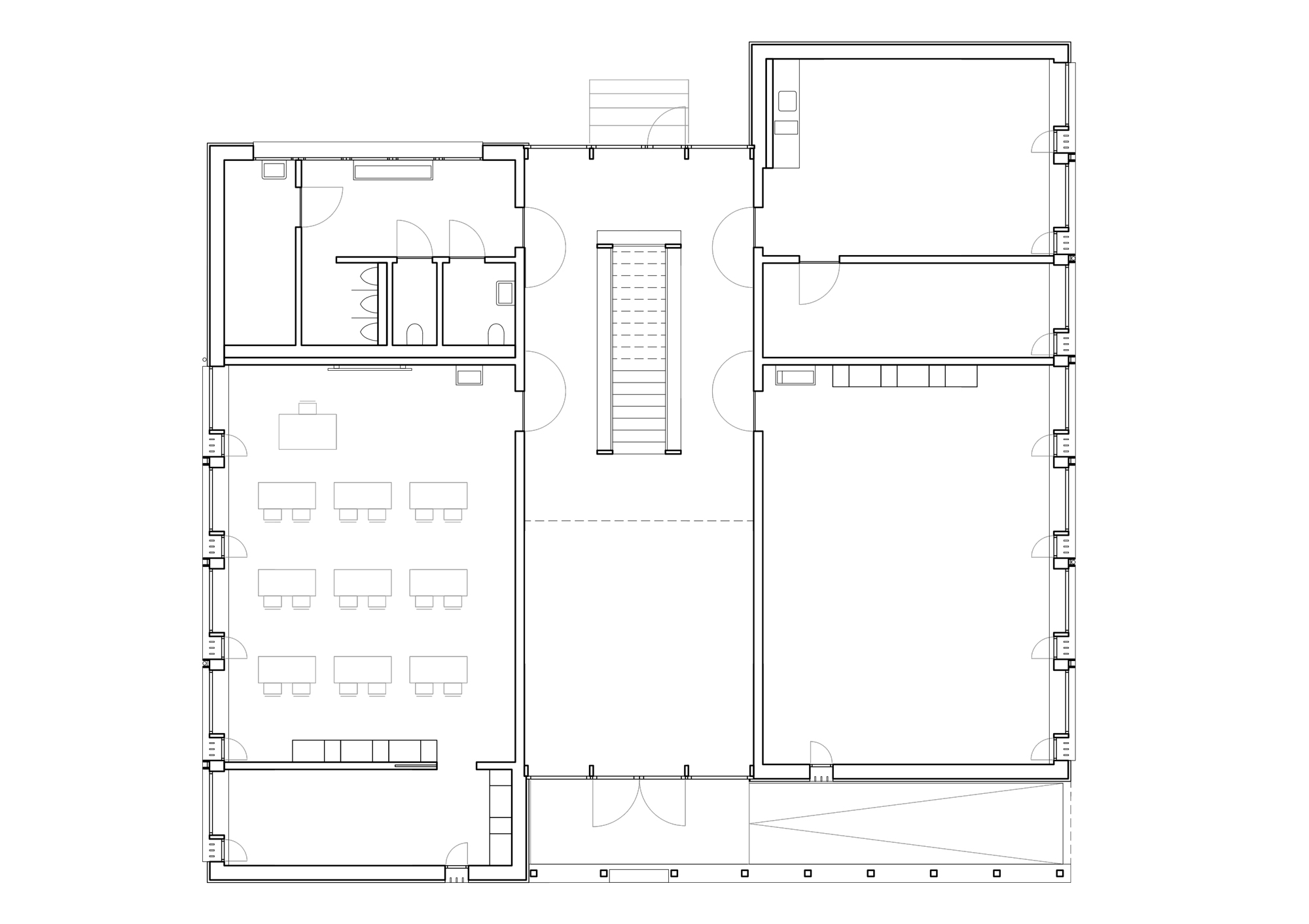
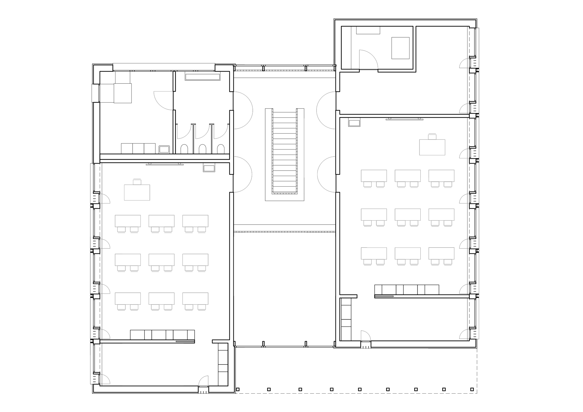
Das Herzstück im Inneren des Neubaus der Primarschule Seefeld stellt die große Eingangshalle dar. Sie zieht sich bis an die gegenüberliegende Gebäudeseite durch, beherbergt die zentrale Treppe und fungiert als thermischer Puffer: Das Vordach schützt die große Glasfront im Sommer vor heißer Sonne und erwärmt sich durch die flache Einstrahlung in den Wintermonaten. Rund um die multifunktionale Halle ordnen sich, über die zwei Geschosse verteilt, die drei Klassenräume an. Sämtliche Oberflächen lassen Lanzrein+Partner Architekten bewusst unverkleidet. Mehrschichtholz- und Holz-Zementplatten übernehmen so neben konstruktiven zugleich optische Funktionen und verleihen der Schule einen schlichten und trotzdem warmen Industriecharme.

















