// Check if the article Layout ?>
Inmitten der Reben: Weingut Dreissigacker
Foto: Peter Bender
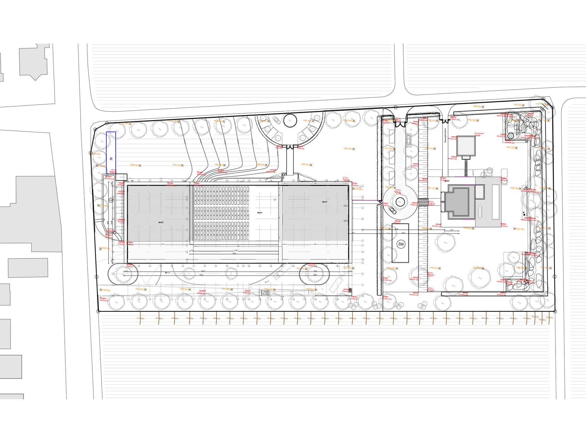
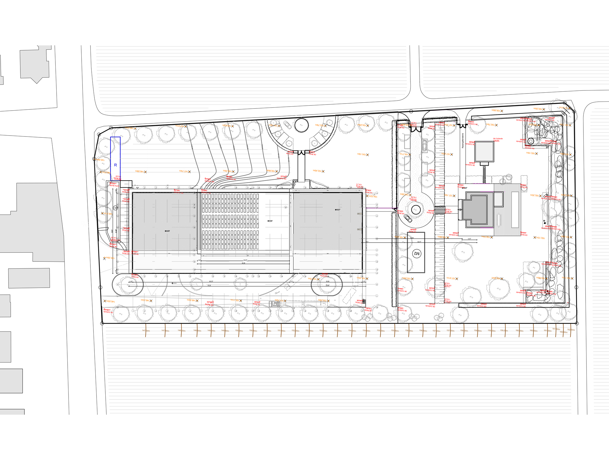
Im rheinhessischen Bechtheim haben Severain Architekten die neue Produktionsstätte für eines der führenden Qualitätsweingüter Rheinhessens errichtet. Die alte Produktion des Weingut Dreissigacker im historischen Ortskern war zu klein geworden und zudem logistisch unpraktisch gelegen. Aus diesem Grund entschied sich der Bauherr für den neuen Standort in den Weinbergen. Es entsteht ein langgestrecktes Gebäude, welches sich in drei Teilen dem Geländeverlauf folgend abtreppt.
Schwebendes Dach
Das dreigeteilte Flachdach wird von bis zu 37 Meter langen Leimbindern getragen. Ein umlaufendes Fensterband direkt unterhalb des Daches sorgt für Tageslicht in der Produktion. Es entsteht der Eindruck, als würde das Dach über der Fassade schweben. Tatsächlich liegt das Dachtragwerk aber auf feuerverzinkten Stahlstützen auf, Auskreuzungen aus Rundstahldiagonalen leiten die Horizontalkräfte im Fensterbereich in die Stahlbetonwände ab. Die einachsig gespannten Brettschichtholz Leimbinder wurden mittels eines Krans auf die Stahlstützen aufgelegt und mit Vollgewindeschrauben und stählernen Auflagerplatten befestigt. Die Auskragungen von bis zu 10 Metern erzeugen eine immense Auflagerpressung. Durch von unten eingebrachte Vollgewindeschrauben sollen diese reduziert werden.
Natürliche Kühlung
Die Aufnahme des natürlichen Geländeverlaufs lässt das Betriebsgebäude größtenteils im Hang verschwinden. Dies wird bei der Kalkulation der Gebäudetechnik zu entscheidendem Vorteil. Die Erde sorgt für eine angenehme Kühle, sodass die Kosten für Kühlung und aufwändige Gebäudetechnik gering bleiben. Das natürliche Gefälle wird für die Produktionsprozesse des Weins im Herstellungsablauf genutzt. So kann dieser weitgehend ohne Einsatz von Pumpen von einem Trakt zum nächsten fließen. Im obersten Geschoss werden die Trauben gepresst, um dann, dem Gefälle folgend im untersten Geschoss gelagert zu werden.
Die massive Gebäudehülle ist für die Aussteifung verantwortlich. Sie wurde mittels überdimensionierter Schalungen in Ortbeton hergestellt. Teilweise mussten die 25 Zentimeter dicken Wände in einem Arbeitsgang bis zu 10 Meter hoch gegossen werden.
Schwebendes Dach
Das dreigeteilte Flachdach wird von bis zu 37 Meter langen Leimbindern getragen. Ein umlaufendes Fensterband direkt unterhalb des Daches sorgt für Tageslicht in der Produktion. Es entsteht der Eindruck, als würde das Dach über der Fassade schweben. Tatsächlich liegt das Dachtragwerk aber auf feuerverzinkten Stahlstützen auf, Auskreuzungen aus Rundstahldiagonalen leiten die Horizontalkräfte im Fensterbereich in die Stahlbetonwände ab. Die einachsig gespannten Brettschichtholz Leimbinder wurden mittels eines Krans auf die Stahlstützen aufgelegt und mit Vollgewindeschrauben und stählernen Auflagerplatten befestigt. Die Auskragungen von bis zu 10 Metern erzeugen eine immense Auflagerpressung. Durch von unten eingebrachte Vollgewindeschrauben sollen diese reduziert werden.
Natürliche Kühlung
Die Aufnahme des natürlichen Geländeverlaufs lässt das Betriebsgebäude größtenteils im Hang verschwinden. Dies wird bei der Kalkulation der Gebäudetechnik zu entscheidendem Vorteil. Die Erde sorgt für eine angenehme Kühle, sodass die Kosten für Kühlung und aufwändige Gebäudetechnik gering bleiben. Das natürliche Gefälle wird für die Produktionsprozesse des Weins im Herstellungsablauf genutzt. So kann dieser weitgehend ohne Einsatz von Pumpen von einem Trakt zum nächsten fließen. Im obersten Geschoss werden die Trauben gepresst, um dann, dem Gefälle folgend im untersten Geschoss gelagert zu werden.
Die massive Gebäudehülle ist für die Aussteifung verantwortlich. Sie wurde mittels überdimensionierter Schalungen in Ortbeton hergestellt. Teilweise mussten die 25 Zentimeter dicken Wände in einem Arbeitsgang bis zu 10 Meter hoch gegossen werden.











