// Check if the article Layout ?>
Innenausbau-Detail: Plenarsaal
München, D 2005
Architekten:
Staab Architekten, Berlin
Volker Staab, Alfred Nieuwenhuizen
Mitarbeiter:
Thomas Schmidt, Jens Achtermann, Ulf Theenhausen, Dirk Brändlin, Jürgen Rustler
Haustechnik:
Karl Pitscheider Ingenieurbüro, München
Planung Glas:
R+R Fuchs, München
Akustikplanung:
Müller BBM, Planegg
Architekten:
Staab Architekten, Berlin
Volker Staab, Alfred Nieuwenhuizen
Mitarbeiter:
Thomas Schmidt, Jens Achtermann, Ulf Theenhausen, Dirk Brändlin, Jürgen Rustler
Haustechnik:
Karl Pitscheider Ingenieurbüro, München
Planung Glas:
R+R Fuchs, München
Akustikplanung:
Müller BBM, Planegg
Mehr Platz, mehr Licht, mehr Farbe und mehr Flexibilität – so lässt sich der Plenarsaal des Bayerischen Landtags nach der Sanierung charakterisieren. Der deutlich veränderte nun barrierefreie Innenraum erfüllt mit brandsicherer Elektroinstallation und moderner Medientechnik die zeitgemäßen und funktionalen Anforderungen eines Sitzungssaals. Eine neu eingezogene Zentraltribüne auf der westlichen Längsseite bietet Platz für 133 Besucher. Die Arbeitsplätze der Abgeordneten sind in konzentrischen Sitzreihen angeordnet. Auch hinter den Kulissen hat sich einiges getan. Im leicht ansteigenden Doppelboden, der aus einem vorkonfektionierten Stahlprofilsystem mit nicht brennbaren Gipsfaserplatte besteht, ist eine Teilklimaanlage untergebracht. Über die Vorderseite der Tische strömt Luft in den Raum. Die Abluft wird durch Unterdruck im Zwischendeckenbereich über die Fugen zwischen den Glasfeldern abgesaugt. Das helle Eichenfurnier der Tischreihen und der zweiten Wandschale sowie die roten Ledersitze nehmen das ursprüngliche Farbkonzept wieder auf.
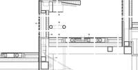
1 Kabinett
2 Präsidium
3 Abgeordnete
4 Hörfunkstudio BR
5 Medien- und Elektrotechnik
6 Zugang Galerie
7 Tischplatte MDF furniert 39 mm
8 Ablageblech Aluminium bronzefarben eloxiert 3 mm
9 MDF Eiche furniert und gelocht 7 mm
Glasvlies 0,2 mm
Kabelkanal Hutprofil 20/60 mm
MDF furniert 19 mm
10 Fußstütze klappbar
11 Stahlhohlprofil gebogen | 60/60/4 mm
12 Fertigfußboden
Parkett auf Trägerplatte 20 mm
Gipsfaserplatte hochverdichtet 25 + 30 mm
Tragprofil Doppelboden Stahl 60/40/4 mm
13 Stuhlführungsschiene
14 Unterkonstruktion Tisch
Stahlhohlprofile 40/40/3 mm
15 Anschluss und Fixierung Zuluftleitung
16 Anschlusskasten Lüftung druckdicht
17 Schieber zu Luftmengenbegrenzung
2 Präsidium
3 Abgeordnete
4 Hörfunkstudio BR
5 Medien- und Elektrotechnik
6 Zugang Galerie
7 Tischplatte MDF furniert 39 mm
8 Ablageblech Aluminium bronzefarben eloxiert 3 mm
9 MDF Eiche furniert und gelocht 7 mm
Glasvlies 0,2 mm
Kabelkanal Hutprofil 20/60 mm
MDF furniert 19 mm
10 Fußstütze klappbar
11 Stahlhohlprofil gebogen | 60/60/4 mm
12 Fertigfußboden
Parkett auf Trägerplatte 20 mm
Gipsfaserplatte hochverdichtet 25 + 30 mm
Tragprofil Doppelboden Stahl 60/40/4 mm
13 Stuhlführungsschiene
14 Unterkonstruktion Tisch
Stahlhohlprofile 40/40/3 mm
15 Anschluss und Fixierung Zuluftleitung
16 Anschlusskasten Lüftung druckdicht
17 Schieber zu Luftmengenbegrenzung
Ausbau Atlas -
Integrale Planung, Innenausbau, Haustechnik
erscheint im Oktober 2009
€ 89.50
Integrale Planung, Innenausbau, Haustechnik
erscheint im Oktober 2009
€ 89.50
