Innere Ruhe: Tranquil House von FORM und Kouichi Kimura Architects
Foto: Norihito Yamauchi
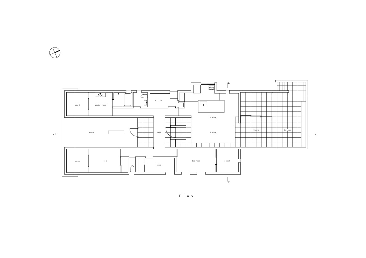
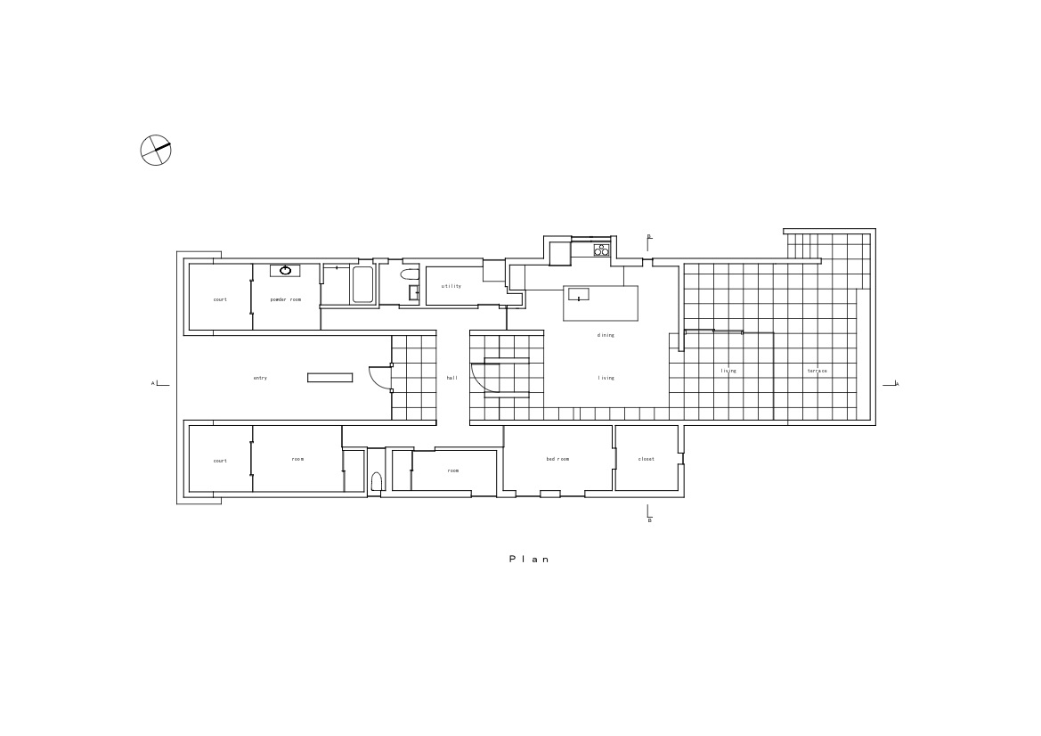
Aus einer Serie verbundener Betonvolumina setzt sich das »Tranquil House« von FORM und Kouichi Kimura Architects zusammen, das, anders als der Name vermuten lässt, sich an einer stark befahrenden Autobahn in Shiga befindet.
Auf der Südseite des »Tranquil House« kündigt sich der Haupteingang durch eine zentrierte Aussparung im Baukörper an. In der Mitte dieser Öffnung befindet sich eine eingesetzte Wand, die als »Eye Stop« fungiert, sodass Blicke von außen nicht allzu schnell und ungehindert die Tiefen des Gebäudes durchdringen. Ein hoher Eingangsbereich mit diffusem Licht fungiert als räumlicher Auftakt. Obwohl die Wohn- und Essräume miteinander verbunden sind, werden die Funktionen der kombinierten Räume durch unterschiedliche Decken- und Bodenhöhen subtil artikuliert. Gleichzeitig verleiht das einfallende Licht dem Wohnhaus perspektivische Texturen, die der Schwere der Betonelemente entgegenwirken.
Als Erweiterung des Wohnbereichs haben die Architekten eine Terrasse im hintersten Bereich des »Tranquil House« integriert. Die für das Wohnzimmer genutzten Fliesen setzen sich auf der Terrasse fort, um eine Verbindung zwischen Innen- und Außenbereich herzustellen.





















