Auf dem neuesten Stand
Innovationszentrum Erne von Burkard Meyer Architekten
Doppelter Schattenspender: An der Nord- und Südseite wurden Vordächer aus Glas und Faltmarkisen installiert. © Roger Frei
Für ein Bauunternehmen liegt es nahe, innovative Konstruktionsmethoden zunächst am eigenen Bauwerk zu erproben – zumal wenn dieses den Namen „Innovationszentrum“ trägt. Ein solches haben Burk ard Meyer Architekten nun für den Schweizer Holzbau-Spezialisten Erne Holzbau in Stein am Rhein errichtet. Der gut 3500 m² große Neubau ist nach einem Betriebsgebäude 2013 bereits der zweite Neubau der Architekten auf dem Werksgelände. Er schließt nahtlos an ein älteres Bürogebäude an, das seinerzeit in Holz-Modulbauweise errichtet wurde. Dessen Tragraster und Grundrissschema griffen die Architekten in ihrem Erweiterungsbau auf, nicht jedoch die Konstruktionsart: Der Neubau ist ein Skelettbau mit Holz-Beton-Verbunddecken und Kernwänden aus Stampfbeton.


Für die Nasszellen und Treppenhauskerne wurde Stampflehm aus der eigenen Baugrube verwendet. © Roger Frei
Brise-soleil mit integrierter Photovoltaik
Äußerlich weist zunächst wenig auf die ökologischen Qualitäten im Inneren hin: Eine Aluminiumfassade umgibt das Gebäude. Auf den Schmalseiten im Norden und Süden spenden weit auskragende Vordächer aus Glas mit integrierter Photovoltaik Schatten, außerdem gibt es Faltmarkisen vor den Fenstern. Im Erdgeschoss sind überwiegend Konferenzräume und eine Cafeteria untergebracht, in den beiden Obergeschossen sind rund 100 Arbeitsplätze entstanden.


Filigrane Holzbauarbeit: Das Atriumdach hat eine Spannweite von 14 m. © Roger Frei
Das Holzdach als Hingucker
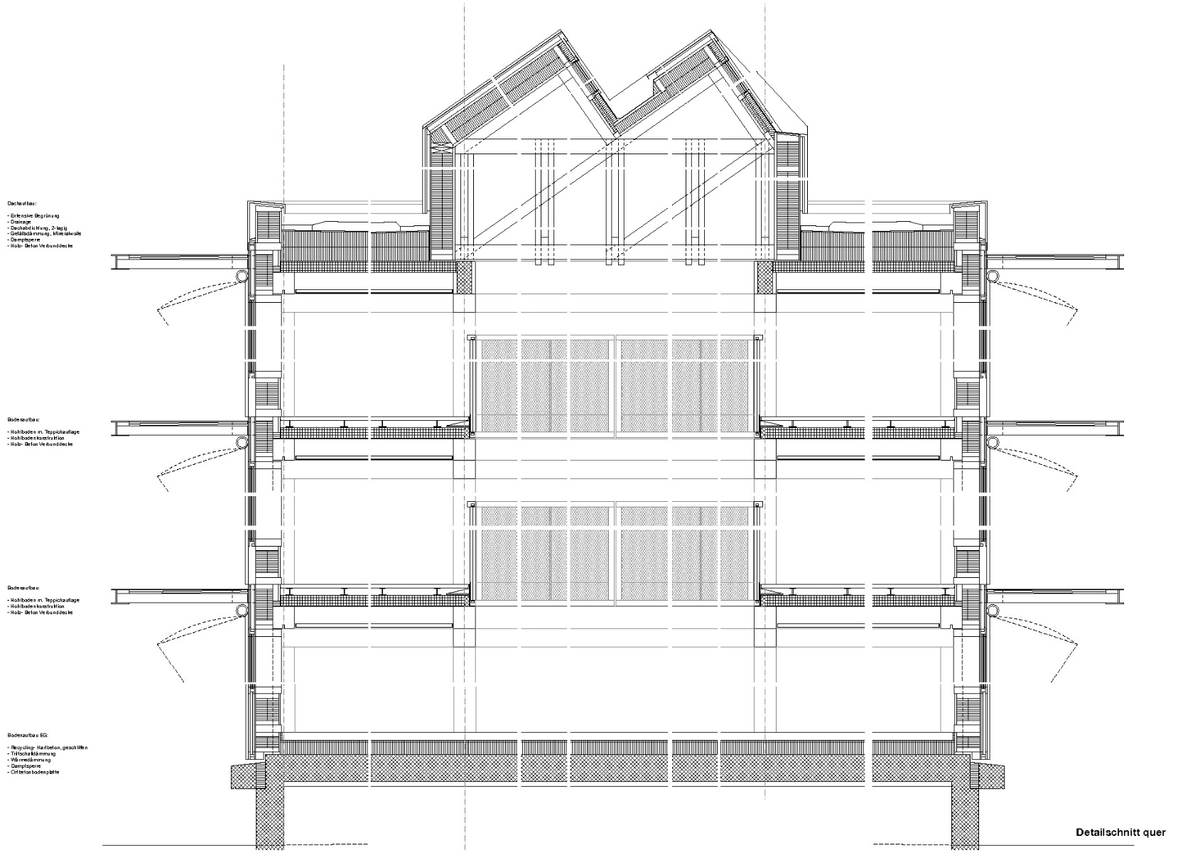
Kommunikativer Kern des Gebäudes ist das dreigeschossige Atrium. Es wird von einem filigranen Stabtragwerk mit 14 m Spannweite überdeckt, das in seiner Feingliedrigkeit an japanische Vorbilder erinnert. Die Decken ringsum sind in Holz-Beton-Verbundbauweise errichtet. Das System aus Stabbuchenholz und Beton – eine Eigenentwicklung des Unternehmens – kam bereits vor einigen Jahren beim Projekt Suurstoffi in Risch-Rotkreuz, ebenfalls von Burkard Meyer Architekten, zum Einsatz. Hier wurde das System nochmals weiterentwickelt. Beton und Holz sind dabei starr miteinander verbunden, was große Spannweiten ermöglicht. Die integrierten Paneele an der Deckenunterseite haben eine Kühl- und Lüftungsfunktion und verbessern außerdem den Schallschutz.


Integrierte Deckenpaneele in den Holz-Beton-Verbunddecken sorgen für die Kühlung und Lüftung, außerdem verbessern sie die Raumakustik. © Roger Frei
Wände aus eigener Lehmbau-Produktion
Seit einiger Zeit ist Erne auch in den Lehmbau eingestiegen – die Wände an den Treppenhauskernen und Nasszellen zeugen davon. Verwendet wurde dafür der Aushub aus der Baugrube, der in einer eigenen Fertigungsstraße direkt vor Ort gestampft wurde. Der Erdgeschossboden besteht aus Recyclingbeton. Er dürfe eines der wenigen Bauelemente sein, die nicht konsequent dem „Design for Disassembly“-Gedanken folgen. Ansonsten lässt sich das Gebäude nach seiner Nutzung weitgehend wieder in seine Ausgangsmaterialien zerlegen.
Architektur: Burkard Meyer Architekten
Bauherr: Erne Holzbau
Standort: Rüchligstrasse 53, 4332 Stein (CH)
Tragwerksplanung: MVV Bauingenieure
HLS-Planung: PZM Zürich
Bauphysik: Bakus Bauphysik und Akustik

















