Ins Zimmer eingehüllt: The Bellhop Hotel in Rotterdam
Das schmale, aus Ziegeln gemauerte Haus steht an der Ecke eines Blocks im Zentrum von Rotterdam. Im ersten Stock zieren Buntglasdetails das Erkerfenster, verspielte Stahlträger fangen im Erdgeschoss die Last ab – der Charme des traditionellen niederländischen Stadthauses bleibt auch nach der Sanierung erhalten. Doch im Inneren des Bellhop Hotel weht ein frischer Wind. Das Restaurant im Erdgeschoss wird über einen separaten Eingang erschlossen, die offene Küche dient aber auch als Gemeinschaftsküche für Übernachtungsgäste.
Im Gastraum an der Wand zum Nachbarhaus sind vorgefundene Materialien bewusst sichtbar belassen: Alte Ziegel, Putz und Beton zeigen einen kleinen Ausschnitt dessen, was die Architekten bei den Umbauarbeiten vorfanden. Die Sitzplätze befinden sich auf einer Galerie mit bogenförmig abgerundeter Kante – „the cloud“. So fällt über die großzügig verglaste Straßenfassade Tageslicht auf die weiteren Sitzplätze des Restaurants im Untergeschoss. Der Boden der Galerie ist mit Kork verkleidet, ein Material, das sich im ganzen Haus wiederfindet.
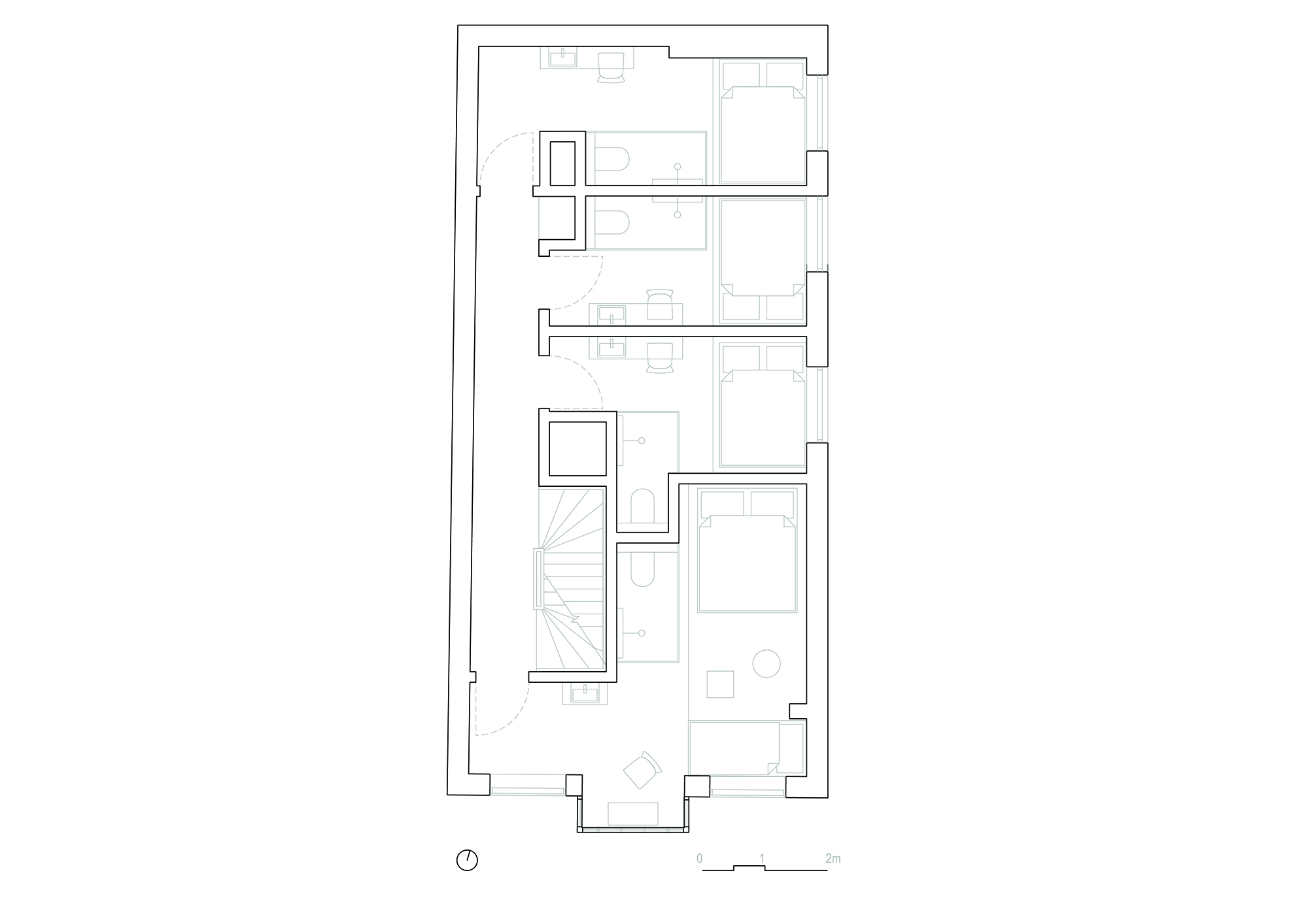
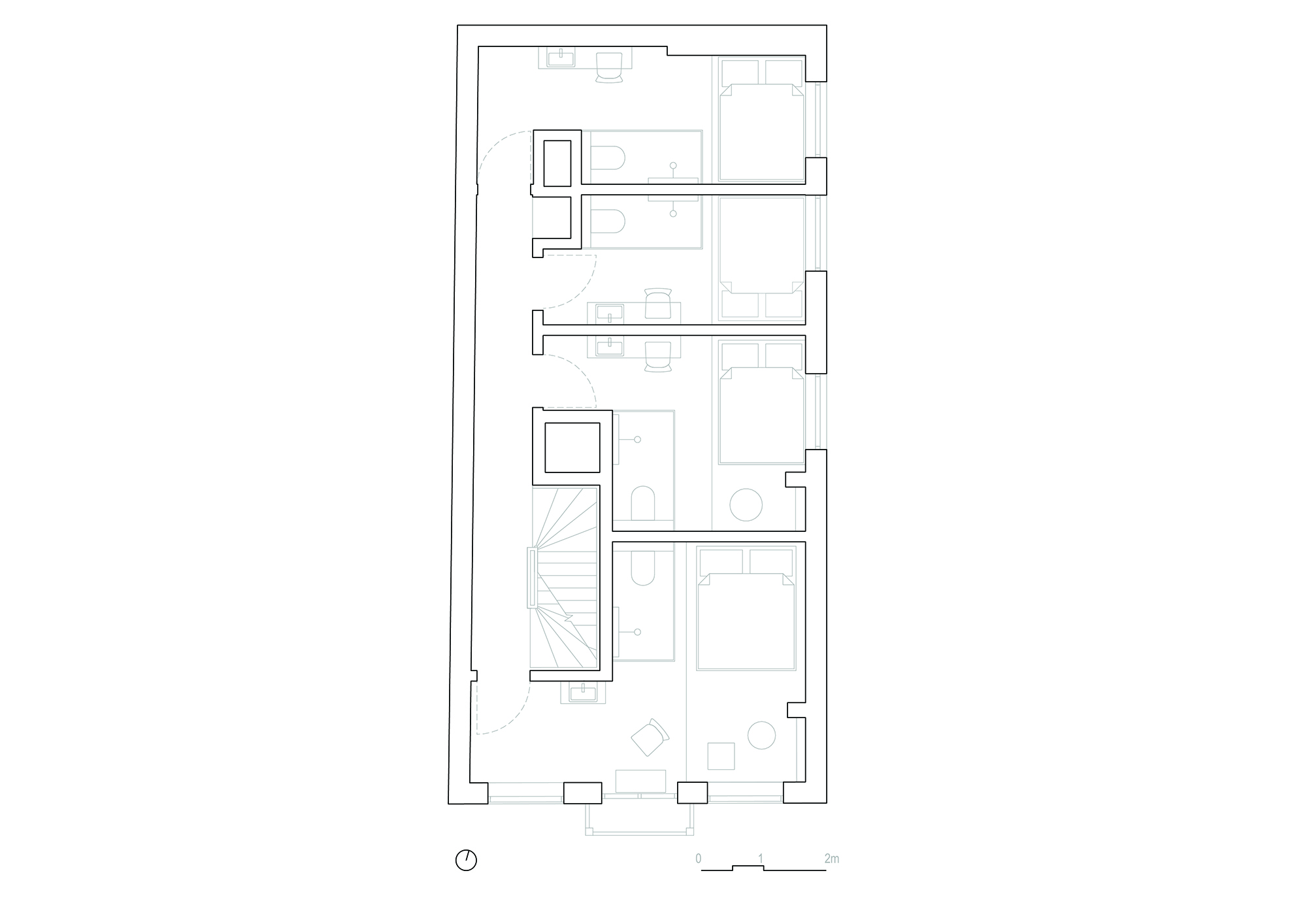
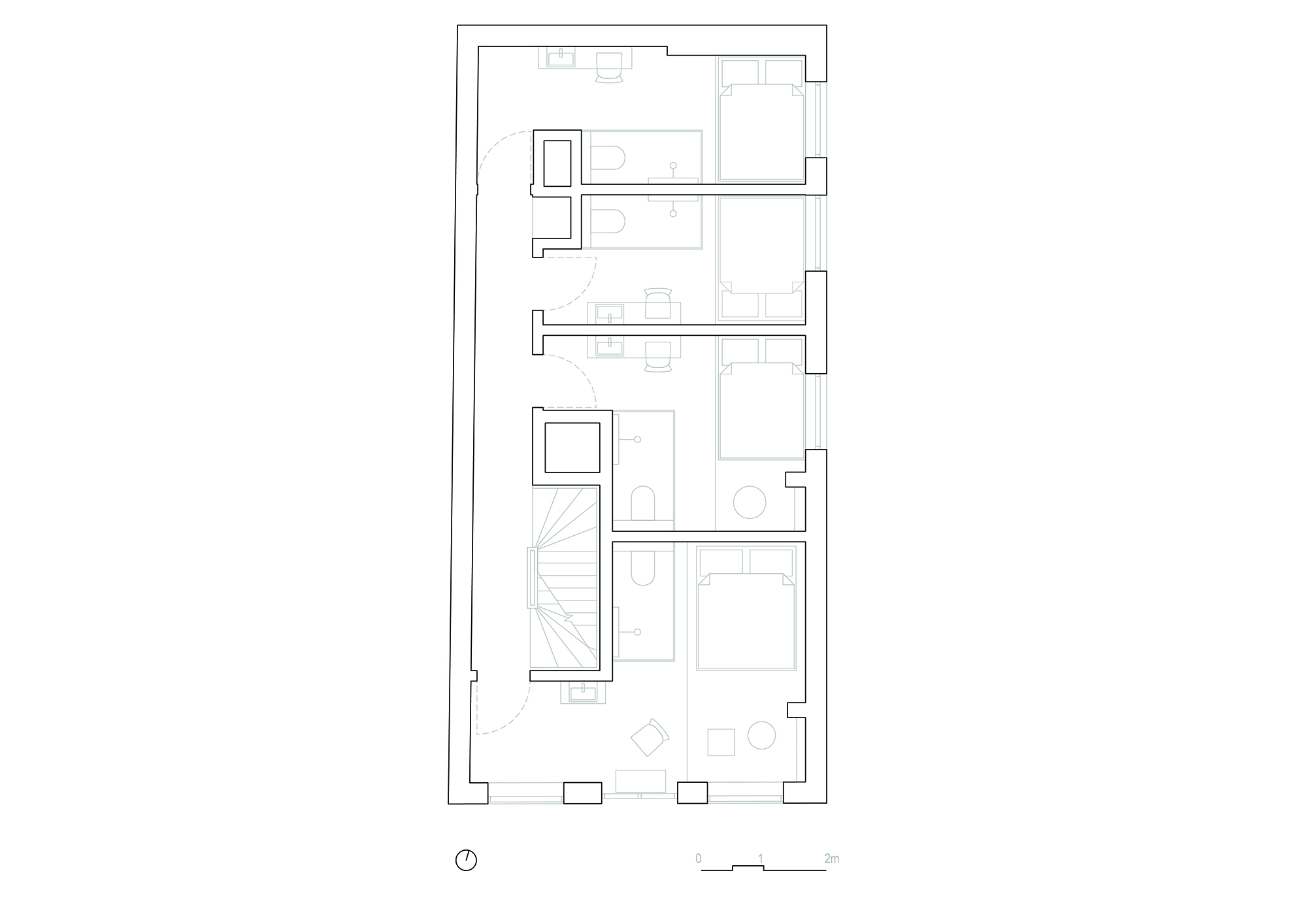
Kräftige und dunkle Farben kontrastieren im Treppenraum mit den weiß gestrichenen Holzbauteilen wie dem Handlauf oder den Türrahmen. Das in Bergen und Paris arbeitende Büro local hat auf den 500 m2 des Stadthauses 15 Hotelzimmer für bis zu vier Personen untergebracht. In den Zimmern beschränkt sich die Farbigkeit dann auf einige kräftige Akzente im Mobiliar. Die Bäder sind mit Wänden aus bläulichem Milchglas vom Schlafraum abgetrennt, sodass eine kühle Grundstimmung¬ entsteht. Dafür wickeln sich die Schlafnischen wie eine warme Decke um die Gäste. Um die Nische vom Rest des Raumes abzutrennen, ist der Boden unter den Betten angehoben und der gesamte Bereich mit Kork und Bambus ausgekleidet. So entstehen individuelle Rückzugsorte, in denen Besucherinnen und Besucher nach einem Tag in der lebhaften Stadt zur Ruhe kommen können.
Weitere Informationen:
Projektleitung: Elida Mosquera, Jerome Picard
Mitwirkende: Grndpa, Depot Rotterdam, Zondervan architectuur, 3RW arkitekter
Bambus: Moso NL
Schalldämmung Decken: Acosorb NL
Kork: Wicanders NL
Edelstahlnetz: X-TEND von CarlStahl
Möbel: Louis Poulsen, Vitra, Christien Meindertsma, Mathieu Challieres, Tom Dixon, Chris Kabel, De Vorm




























