Reizarm und doch reizvoll
Integrative Kindertagesstätte bei Heidelberg von AP88
Naturnahe Oberflächen und viel Tageslicht charakterisieren die Innenräume. © Stephan Baumann, bild_raum
Mit naturnahen Oberflächen, viel Licht und abwechslungsreichen Räumen empfängt die neue Kindertagesstätte im Bammental ihre jungen Nutzer. Eine reizarme Umgebung wollten AP88 für die Kinder mit Handicap schaffen. Das gilt aber nur in sensorischer Hinsicht, denn das Haus entfaltet durchaus architektonischen Reiz.


Der zweigeschossige Gebäuderiegel erhielt eine vorvergraute Lärchenholzfassade. Nur in den Loggien blieb das Holz unbehandelt. © Stephan Baumann, bild_raum
Bauen mit Holz
Mit großen Loggien und eingerückten Terrassen öffnet sich der zweigeschossige Gebäuderiegel zum westlich angrenzenden Wald. Die naturnahe Lage beeinflusste auch die Materialwahl: Die Kita ist ein reiner Holzbau mit Außenwänden aus Holz-Rahmenbau-Elementen und einer Lärchenholzfassade. Diese ist mit einem mineralischen Anstrich versehen, der die natürliche Vergrauung des Holzes vorwegnimmt. In den Loggien und Laibungen leuchtet das gleiche, aber unbehandelte Holz in einem satten Rotbraun.
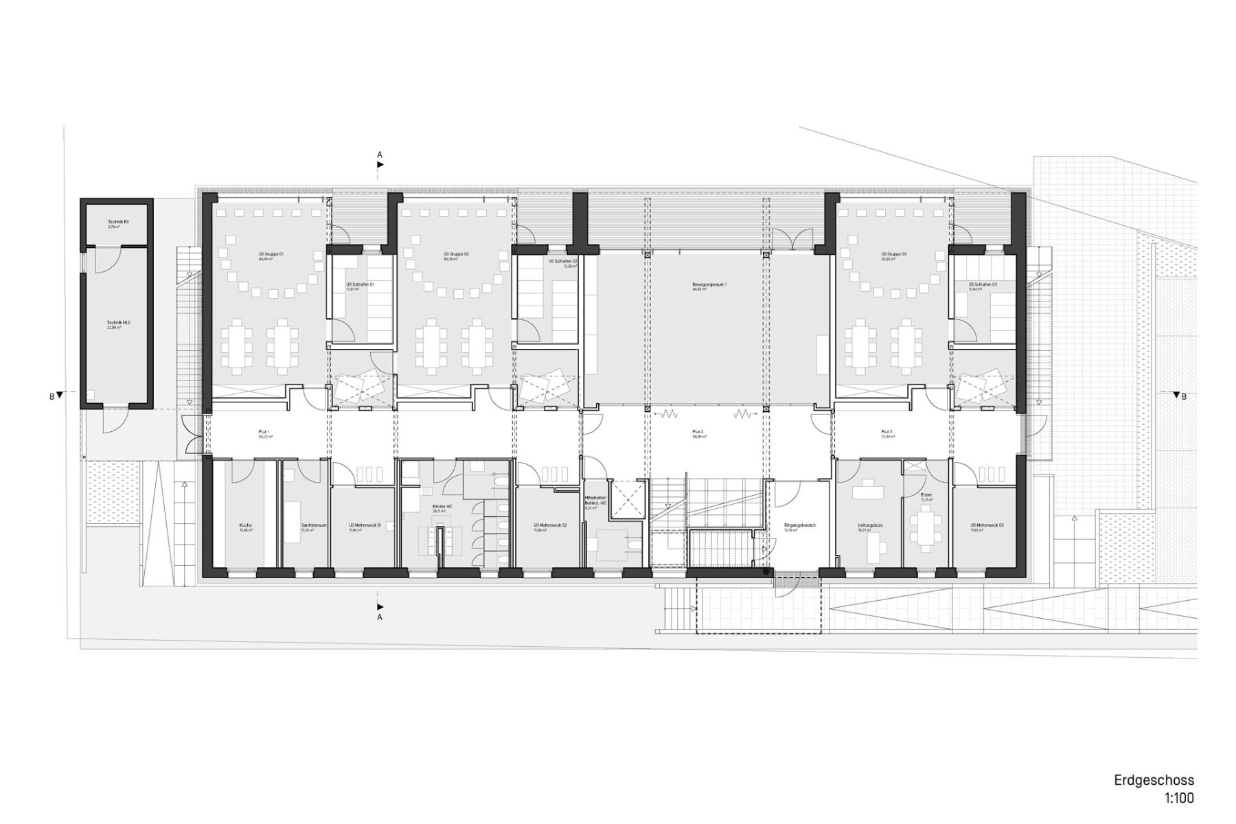
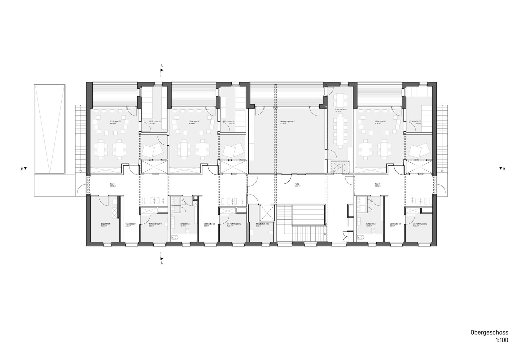
Modulares Gebäudekonzept, flexible Raumaufteilung
Innen empfangen ein breiter Mittelflur und ein offener, über beide Geschosse reichender Treppenraum die Kinder. Bei Bedarf lässt sich der benachbarte Mehrzweckraum mithilfe von Schiebewänden dazuschalten. Hier sind dann zum Beispiel Aufführungen möglich; die Sitzstufen an der Treppe werden zur Tribüne. Im Erdgeschoss bietet das Haus Raum für zwei Kindergartengruppen mit bis zu 60 Plätzen. Im Obergeschoss kommen drei Krippengruppen für bis zu 30 Kinder hinzu. Die modulare Struktur des Gebäudes erlaubt prinzipiell eine Erweiterung auf acht bis zehn Gruppen.


Flur, Mehrzweckraum und Treppe lassen sich bei Bedarf zu einem großen Ganzen vereinen. © Stephan Baumann, bild_raum
Viel Tageslicht auch im Erdgeschoss
Große Oberlichter und Lichtschächte leiten Tageslicht bis hinunter ins Erdgeschoss. Sie reihen sich entlang der Mittelachse des Gebäudes auf und belichten sowohl den angrenzenden Flur als auch die Gruppenräume. Jede Gruppe verfügt über einen eigenen Schlafraum und einen Zugang ins Freie - bei der Krippe im Obergeschoss auf eine Loggia und beim Kindergarten im Erdgeschoss direkt in den Garten.


Vier Oberlichter und Lichtschächte bringen Tageslicht auch in die Gebäudemitte. © Stephan Baumann, bild_raum
Lebendige Lochfassade
Auf der Eingangsseite im Osten umgeben Sportplätze den Neubau. Hier ist die Fassade geschlossener. Die spielerische Anordnung der Fenster ist keine Willkür, sondern folgt der Raumnutzung: Größere quadratische Öffnungen in Blickhöhe für die Garderoben und Mehrzweckräume, kleinere über (Kinder-)Kopfhöhe für die Sanitärräume.


Zum Sportplatz im Osten zeigt die Kita ihre weitgehend geschlossene, durch kleine Quadratfenster belebte Eingangsfassade. © Stephan Baumann, bild_raum


Innen sind viele Wände mit Kiefernholz verkleidet. © Stephan Baumann, bild_raum


Wand- und Deckenflächen in Pastellfarben erleichtern die Orientierung im Haus. © Stephan Baumann, bild_raum
Bewegungsspielraum in Pastell
Die in sich ruhende Raumwirkung soll die Kinder in ihrem inklusiven Umfeld stärken und in ihrer Entwicklung unterstützen, schreiben die Architekten über ihr Innenraumkonzept. Hier verwendeten sie überwiegend Kiefernholz sowie Linoleumböden und Gipskartonverkleidungen in Pastellfarben. Auch die Fenster und Türen einschließlich der Brandschutztüren haben Holzrahmen. Die Flure im Haus sind als „Spielräume zur Begegnung und Bewegung“ konzipiert. Trotz der beabsichtigten Reizarmut lässt sich prognostizieren: Totenstille wird in der Bammentaler Kita wohl nur selten herrschen.
Architektur: ap88
Bauherr: Gemeinde Bammental
Standort: Schwimmbadstr. 17, 69245 Bammental (DE)
Tragwerksplanung: Merz, Kley Partner
Landschaftsarchitektur: Spang. Fischer. Natzschka
Energieplanung: Alex Pingel Architektur und Energieberatung, Acker Energieberatung
Bauphysik, Akustik: Kurz und Fischer
HLS-Planung: AVR Energie, tga plan Kinsch

















