// Check if the article Layout ?>
Intelligente Hülle: IBS Neubau in Portugal
Foto: João Morgado
Parallel zur Straße, über die die Erschließung erfolgt, bettet sich der extravagante Entwurf in die Gebäudelandschaft des Campus ein und bringt Farbe und Bewegung ins sonst so graue Bild. Dieser Effekt ist vor allem der Fassadengestaltung zuzuschreiben. Wie das gebaute Abbild einer mikroskopischen Aufnahme, perforieren organisch anmutende Öffnungen die Außenhülle. Sie ziehen sich wie große Noppen über den Bau und verleihen ihm eine spannende Optik in Mintgrün.
Zurückzuführen ist dieses Design auf die Forschungsarbeit, der sich das Institut widmet. Nämlich der Entwicklung von lichtaktiven Pigmenten, die in die Fassadentechnik integriert werden können. Sie bieten ein großes Spektrum an architektonischen Möglichkeiten und sollen die herkömmliche Solartechnik ersetzen, welche in der Kritik steht, nicht einmal ihre eigenen Produktionskosten wieder aufzuwiegen.
Der Grundriss beruht auf einer rechteckigen Form, mit Außenmaßen von ca. 45 auf 20 Metern. An der südseitigen, der Straße zugewandten, Längsfassade befindet sich der Haupteingang. Da der Baukörper im Bereich des Erdgeschosses über die gesamte Gebäudelänge zurückspringt, entsteht eine geschützte Situation zum Betreten oder im Freien verweilen.
Im Inneren empfangen den Besucher rohe Sichtbetonoberflächen, gepaart mit schlichtem Weiß, auch das Mintgrün der Fassade wird wieder aufgegriffen. Installationen bleiben unverkleidet und fügen sich gut in das Designkonzept ein. Durch die Öffnungen in der Gebäudehülle entstehen stets neue Blickbezüge und Lichteinfallswinkel, die die Räume lebendig und spannend gestalten.
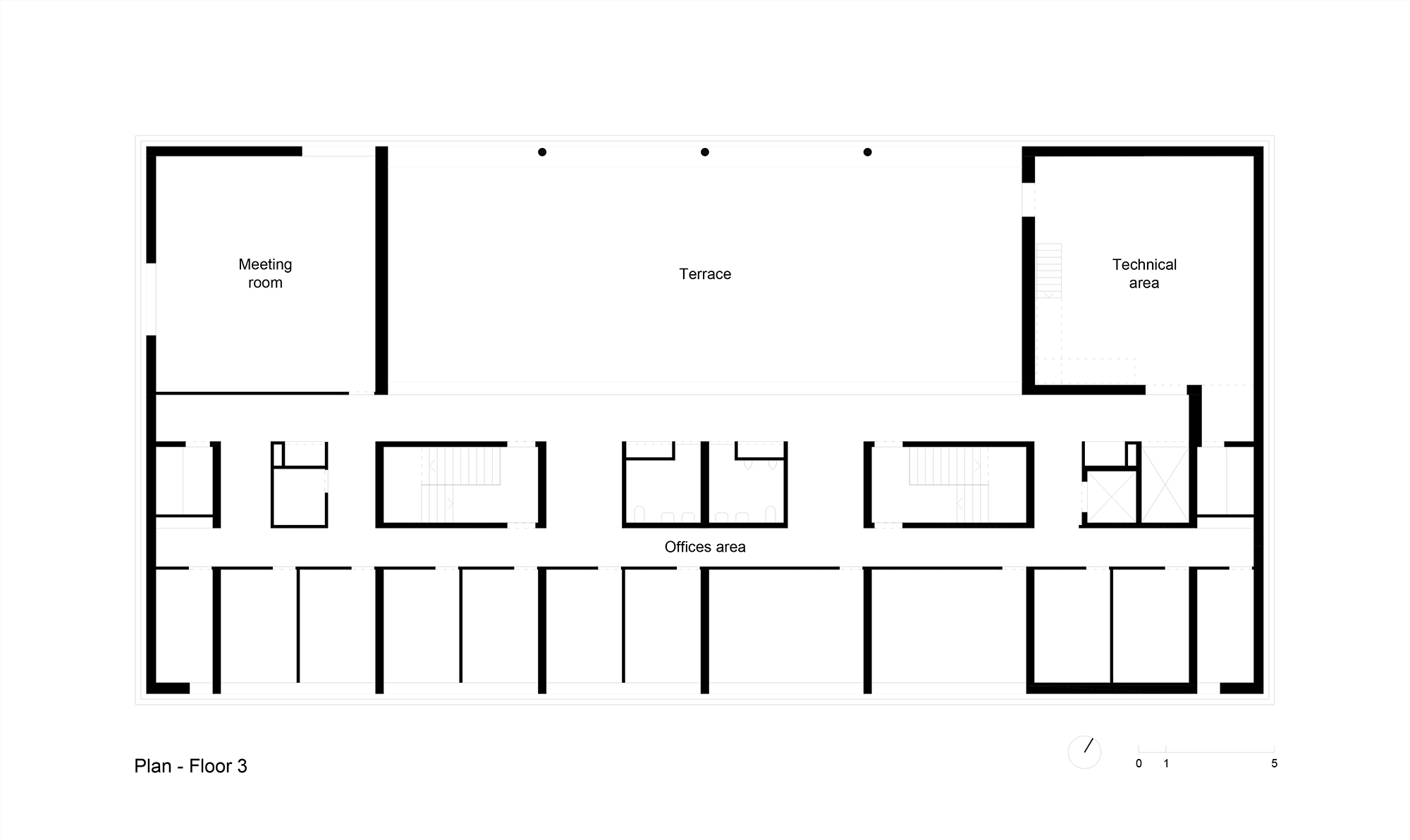
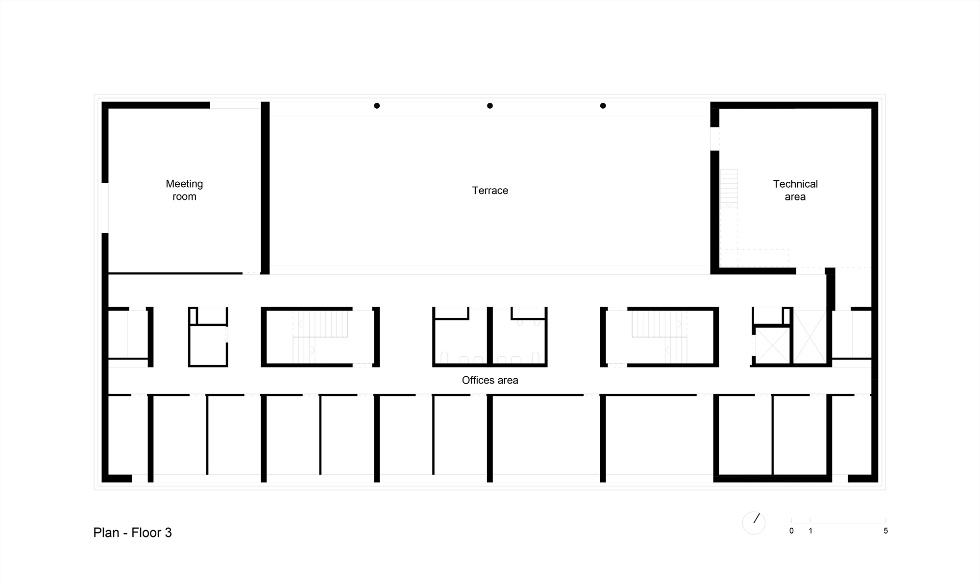
Das Herzstück des Baus bildet das zentrale Labor im Erdgeschoss, das sich an der nördlichen Fassade orientiert und zwei Geschosse umfasst, weshalb es besonders großzügig wirkt. Alle übrigen Räume auf dem Eingangsniveau und im ersten Stock sind U-förmig rund um den Forschungsbereich angeordnet. Die beiden Erschließungskerne, sowie Personalbüros finden hier ihren Platz. Im Geschoss darüber gibt es weitere Labore. Sie reihen sich entlang der Längsfassaden aneinander und werden über einen mittig positionierten Gang zusammengefasst. Das dritte und letzte Stockwerk beinhaltet neben weiteren Büros einen Besprechungsraum. Außerdem gibt es eine großzügige Terrasse, die dieselbe Fläche wie das Labor im Erdgeschoss umfasst. Somit ist sie ebenfalls nach Norden ausgerichtet und, eingefasst durch das begrenzende Bauvolumen, der Witterung nicht allzu sehr ausgesetzt.





























