Interdisziplinär: HU University of Applied Sciences in Utrecht
Foto: Adam Mørk
Schmidt Hammer Lassen schaffen einen kompakten Baukörper, der sich in Richtung der östlichen Straße als imposanter, achtgeschossiger Riegelbau präsentiert. Zum gegenüberliegenden Innenhof hin, den die Universität mit dem benachbarten Studentenheim aufspannt, treppt das Volumen in mehreren Sprüngen ab. Begrünte Dächer dienen als Ruheoasen. Während die Sockelzone fast durchgehend verglast ist, kleiden eloxierte Aluminiumpaneele, in Gold-, Bronze- und Brauntönen die darüber liegenden Fassaden. Die Paneele wechseln sich entweder mit raumhohen Fenstern ab, oder werden von runden Perforierungen in unterschiedlichen Größen aufgelockert.
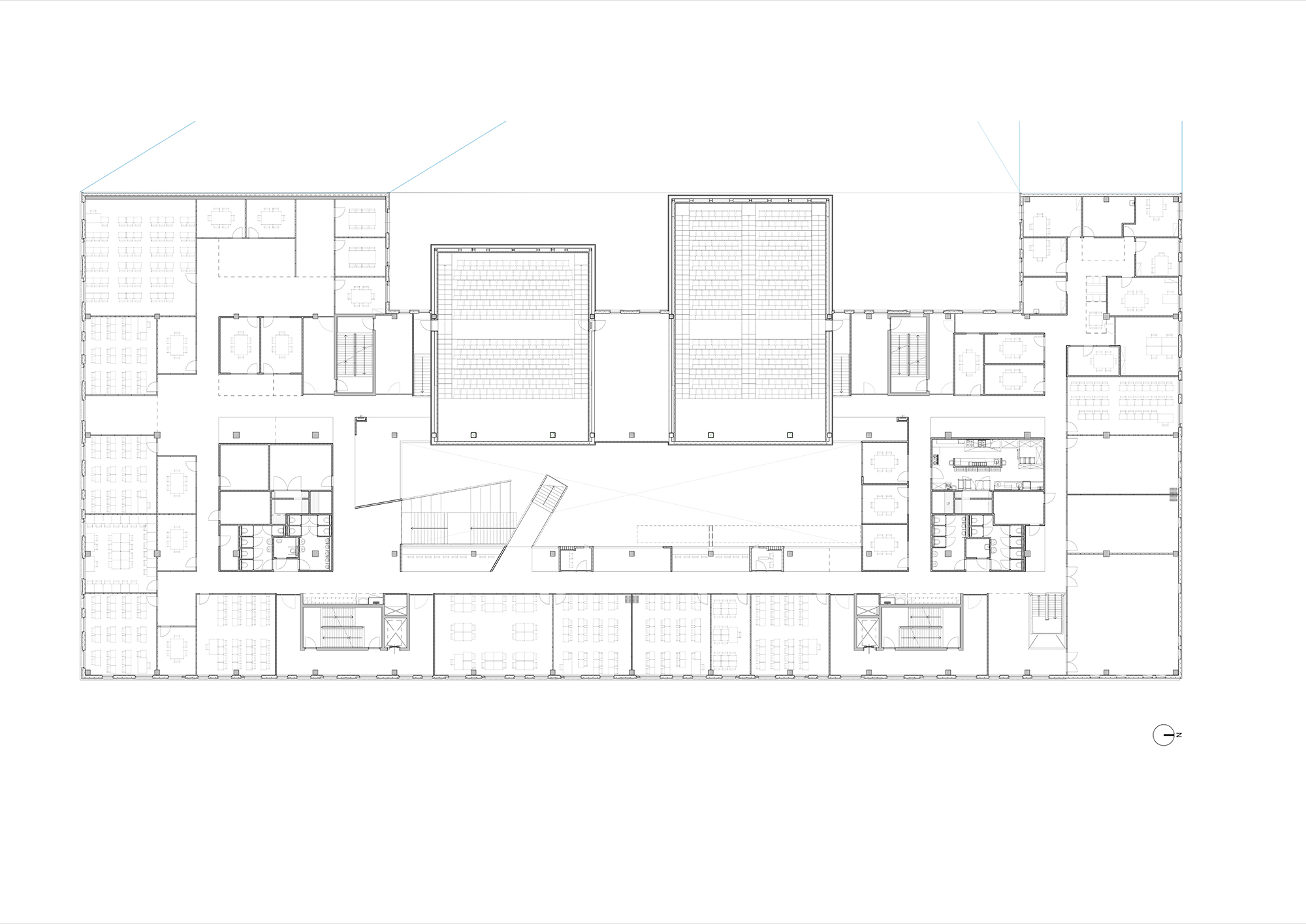
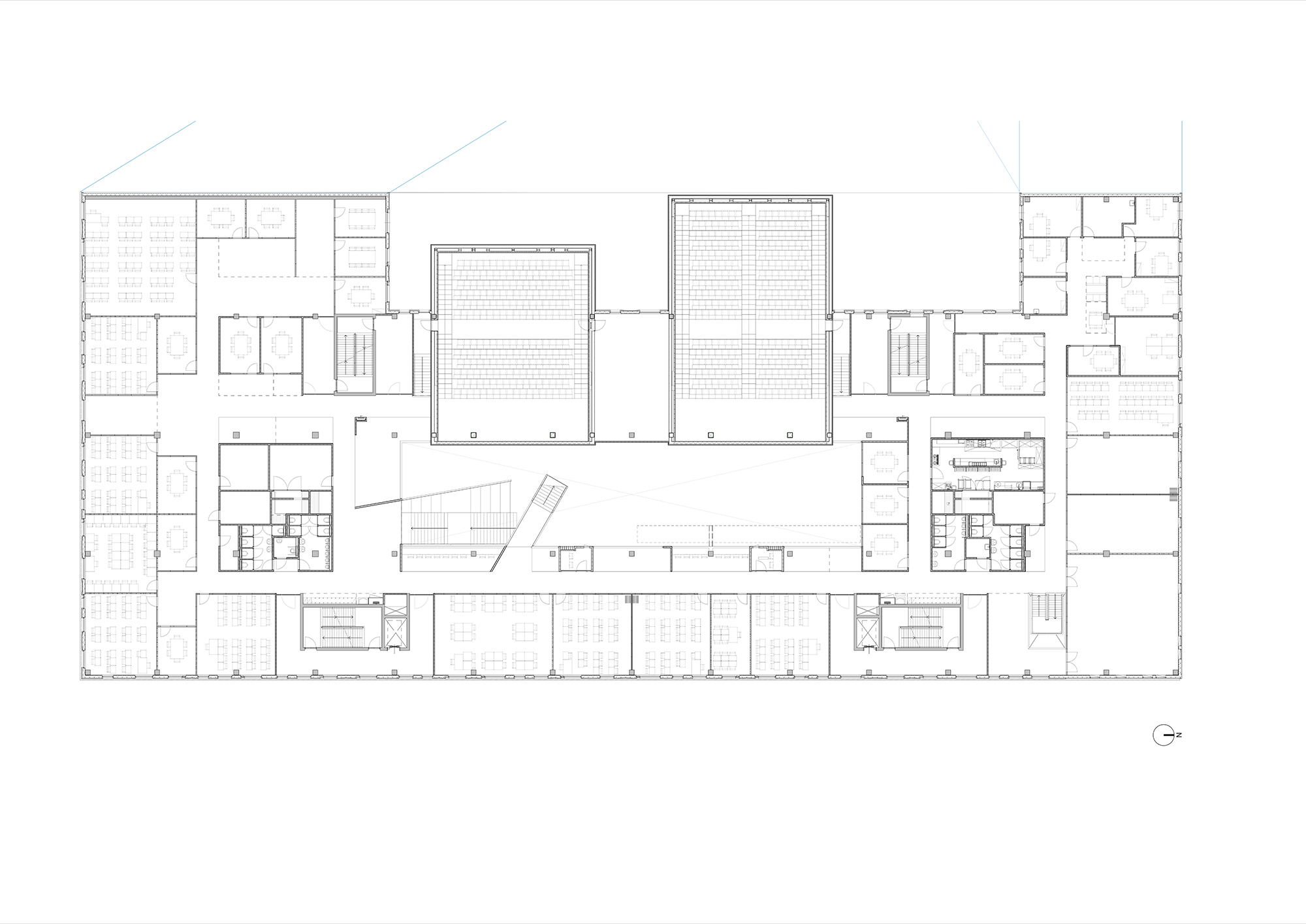
Das Innere der HU University of Applied Sciences organisieren Schmidt Hammer Lassen rund um ein luftiges Atrium mit Glasdach, das die verschiedenen Fachbereiche zusammenfasst und den Austausch fördern soll. Den Luftraum durchzieht ein Netz aus sich kreuzenden Treppen, Rolltreppen und Brücken. Sie schaffen ein vielschichtiges Zirkulationssystem. Rund um das Atrium schließen Lernbereiche in Form von privaten Holzboxen oder offenen Sitzecken an.
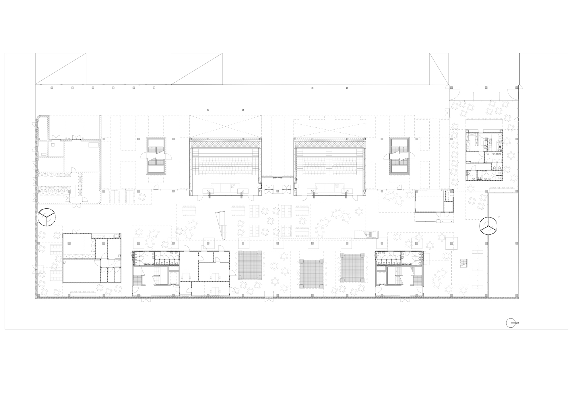
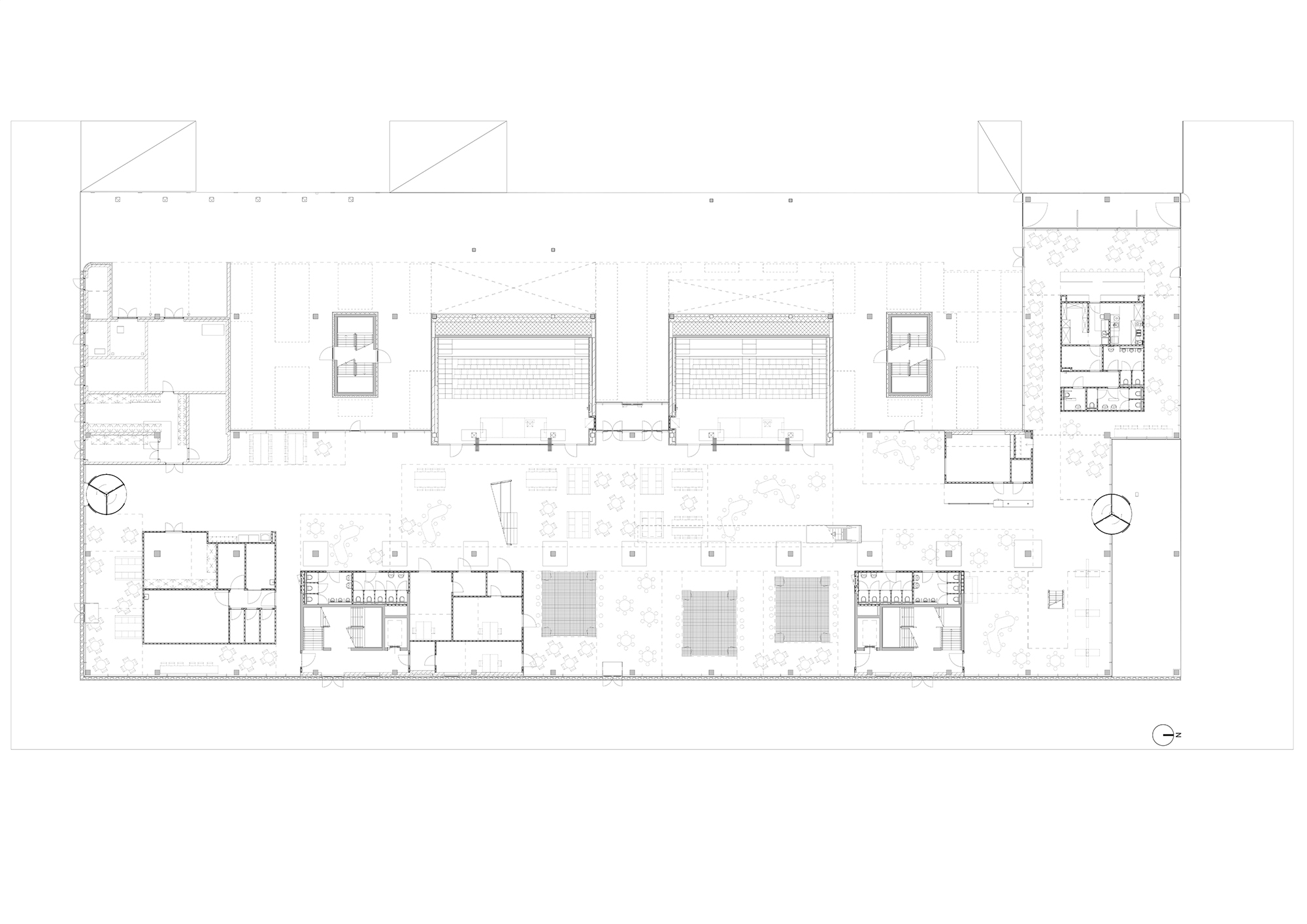
Die beiden großen Auditorien sind direkt im Erdgeschoss untergebracht und bleiben von außen einsehbar. Rückseitig kragen sie in den Innenhof aus und schaffen geschützte Fahrradparkplätze. Café, Technik und Sitzmöglichkeiten komplettieren das transparente Eingangsniveau. Darüber geht es weiter mit zwei kleineren Hörsälen und mehr als 60 Seminar- und Gruppenräumen, die über die einzelnen Institute verteilt sind. Oberflächen in Weiß und Holz verstärken den hellen Charakter der HU University of Applied Sciences. Mit hellgrünen Akzenten bringen Schmidt Hammer Lassen Farbe in die Innenräume.
























