// Check if the article Layout ?>
Intimes Wegenetz: Stadtquartier in Shanghai
Foto: Christian Gahl
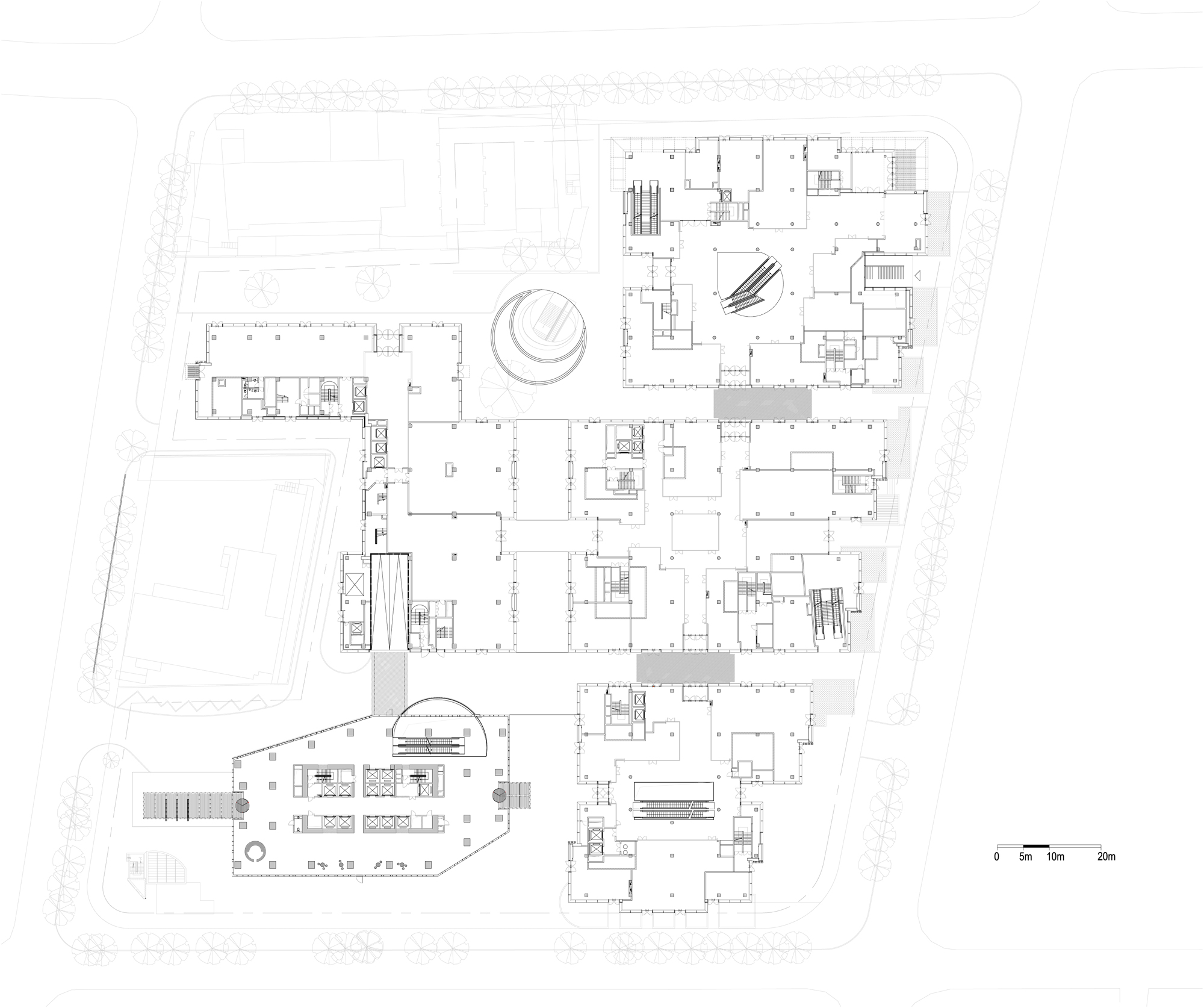
Die bauliche Umgebung des Areals zeichnet sich durch charakteristische, riegelartige Baustrukturen aus, die sogenannten Li Long. Das Wort »Li« bedeutet Nachbarschaft, »Long« beschreibt die vorherrschende Morphologie des Stadtquartiers, welches durch enge Gassen und intime Stadträume geprägt ist. Der Entwurf von gmp bildet eine konzeptuelle Anlehnung an dieses bauliche Gefüge. Vorherrschende Größenverhältnisse, Bauformen und Orientierungen wurden bewusst aufgenommen, bestehende Bauten behutsam integriert und der Bezug zur städtisch bedeutsamen Altstadt hergestellt.
Das LEED Gold zertifizierte Stadtquartier umfasst neun Ost-West ausgerichtete, riegelartige Baukörper sowie ein 100 Meter hohes Hochhaus, welches den Bezug zum übergeordneten Stadtbild von Shanghai herstellen soll. Die zeilenförmige Gebäudekomposition der Baukörper erzeugt im Inneren des Quartiers ein kleinteiliges Netz aus Wegen und Gassen. Die schmalen Durchgänge zwischen den Gebäuderiegeln münden auf einen zentral gelegenen Platz mit diversen Einkehrmöglichkeiten. Hier befindet sich außerdem ein Zugang zu weiteren gewerblichen Einrichtungen im Untergeschoss sowie zur U-Bahn.
Die Gebäuderiegel werden von geneigten Dachflächen bekrönt, die mit hellen Natursteinbahnen bedeckt sind, welche nahtlos in die Fassade übergehen. Im Kontrast zu den hellen Steinplatten, sind die Fensterflächen mit dunkelgrauen Metallrahmen gefasst. Die schlichte Fassadengestaltung, ohne jeglichen Einsatz historischer Bauteile, bildet eine bewusste Abstraktion des Fassadenbildes, was den städtebaulichen Schwerpunkt des Projekts unterstreichen soll. Dieses zeigt sich insgesamt als eine gelungene Transformation vorherrschender Strukturen in ein zeitgemäßes urbanes Gefüge. Die vermeintliche Gleichförmigkeit der Gebäuderiegel kontrastiert mit dem spannungsreichen, internen Wegenetz, welches durch den Wechsel von schmalen Gassen und räumlichen Aufweitungen beim Durchqueren zu einem abwechslungsreichen Erlebnis wird.
Das LEED Gold zertifizierte Stadtquartier umfasst neun Ost-West ausgerichtete, riegelartige Baukörper sowie ein 100 Meter hohes Hochhaus, welches den Bezug zum übergeordneten Stadtbild von Shanghai herstellen soll. Die zeilenförmige Gebäudekomposition der Baukörper erzeugt im Inneren des Quartiers ein kleinteiliges Netz aus Wegen und Gassen. Die schmalen Durchgänge zwischen den Gebäuderiegeln münden auf einen zentral gelegenen Platz mit diversen Einkehrmöglichkeiten. Hier befindet sich außerdem ein Zugang zu weiteren gewerblichen Einrichtungen im Untergeschoss sowie zur U-Bahn.
Die Gebäuderiegel werden von geneigten Dachflächen bekrönt, die mit hellen Natursteinbahnen bedeckt sind, welche nahtlos in die Fassade übergehen. Im Kontrast zu den hellen Steinplatten, sind die Fensterflächen mit dunkelgrauen Metallrahmen gefasst. Die schlichte Fassadengestaltung, ohne jeglichen Einsatz historischer Bauteile, bildet eine bewusste Abstraktion des Fassadenbildes, was den städtebaulichen Schwerpunkt des Projekts unterstreichen soll. Dieses zeigt sich insgesamt als eine gelungene Transformation vorherrschender Strukturen in ein zeitgemäßes urbanes Gefüge. Die vermeintliche Gleichförmigkeit der Gebäuderiegel kontrastiert mit dem spannungsreichen, internen Wegenetz, welches durch den Wechsel von schmalen Gassen und räumlichen Aufweitungen beim Durchqueren zu einem abwechslungsreichen Erlebnis wird.
Weitere Informationen:
Entwurf: Meinhard von Gerkan und Stephan Schütz mit Stephan Rewolle
Projektleitung, Wettbewerb: Su Jun Mitarbeiter Wettbewerb: Stefan Hornscheidt, Li Zheng, Zhou Bin, Zhang Jing
Projektleitung, Ausführung: Matthias Wiegelmann, Kong Jing
Mitarbeiter Ausführung: Cai Yu, Guo Fuhui, Kornelia Krzykowska, Li Ling, Sebastian Linack, Xie Fang, Thilo Zehme, Zhang Yingying, Zheng Shanshan, Zhou Bin, Catharina Cragg, Dai Tianxing, Gao Rui, Hua Rong, Wu Hua, Yuan Hang, Zhang Xuhui
Chinesisches Partnerbüro: ECADI (East China Architectural Design & Research Institute CO. LTD)
Lichtplaner: CONCEPTLICHT GMBH
BGF oberirdisch gesamt: 71.565,00 m²
BGF unterirdisch gesamt: 64.975,00 m²
Ladenfläche: 85.661,00 m²
Bürofläche: 50.879,00 m²
Höhe Hochhaus: 99,85 m
Projektleitung, Wettbewerb: Su Jun Mitarbeiter Wettbewerb: Stefan Hornscheidt, Li Zheng, Zhou Bin, Zhang Jing
Projektleitung, Ausführung: Matthias Wiegelmann, Kong Jing
Mitarbeiter Ausführung: Cai Yu, Guo Fuhui, Kornelia Krzykowska, Li Ling, Sebastian Linack, Xie Fang, Thilo Zehme, Zhang Yingying, Zheng Shanshan, Zhou Bin, Catharina Cragg, Dai Tianxing, Gao Rui, Hua Rong, Wu Hua, Yuan Hang, Zhang Xuhui
Chinesisches Partnerbüro: ECADI (East China Architectural Design & Research Institute CO. LTD)
Lichtplaner: CONCEPTLICHT GMBH
BGF oberirdisch gesamt: 71.565,00 m²
BGF unterirdisch gesamt: 64.975,00 m²
Ladenfläche: 85.661,00 m²
Bürofläche: 50.879,00 m²
Höhe Hochhaus: 99,85 m

















