J. Mayer H. baut IT-Scheune in der Oberpfalz
Sie gehören zur Stütze der deutschen Wirtschaft – die Hidden Champions, mittelständische Unternehmen der Maschinenbau- und Softwarebranche. Viele dieser Firmen haben anspruchsvolle Architektur als integralen Bestandteil ihrer Corporate Identity entdeckt, um trotz eines oft abgelegenen Standorts eigene Mitarbeiter zu halten, neue anzuziehen und internationale Gäste mit Hausmessen und Showrooms zu beeindrucken.
Das Unternehmen IGZ, das Logistik-Software z.B. für Hochregallager entwickelt, liegt in Falkenberg in der Oberpfalz, von wo die arbeitende Bevölkerung eher in Richtung der Metropolregionen Nürnberg, Augsburg oder München abwandert. Inzwischen ist die Firma auf 450 Mitarbeiter angewachsen. Die Inhaber haben sich dennoch für die Weiterentwicklung an ihrem Gründungsstandort entschieden, denn er bietet auch gravierende Vorteile: In den Ballungszentren gibt es kein Land für flächengreifende Erweiterungen und wenn dann nur zu hohen Preisen. Außerdem ist die Fluktuation der hochspezialisierten Mitarbeiter auf dem Land wesentlich geringer.
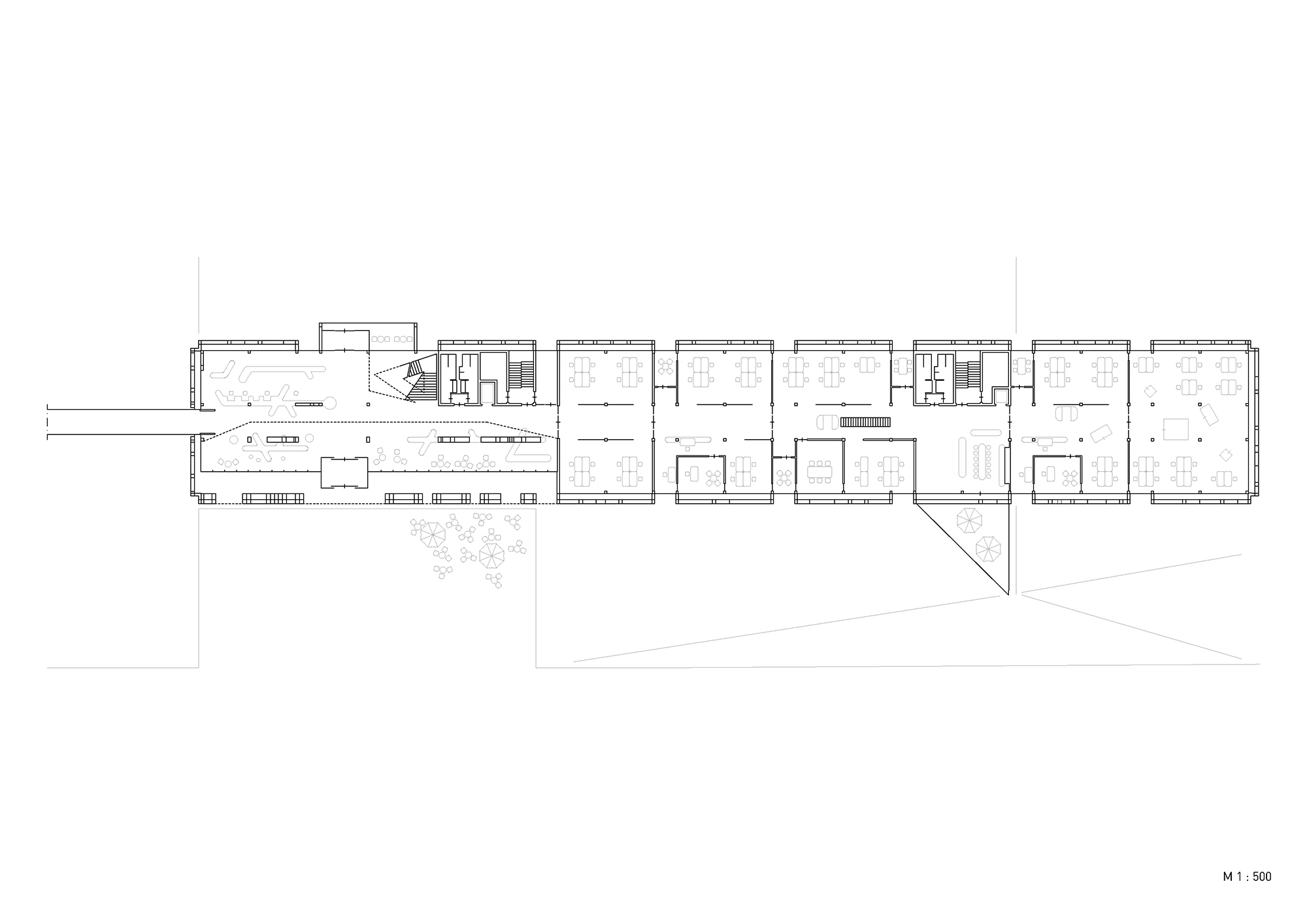
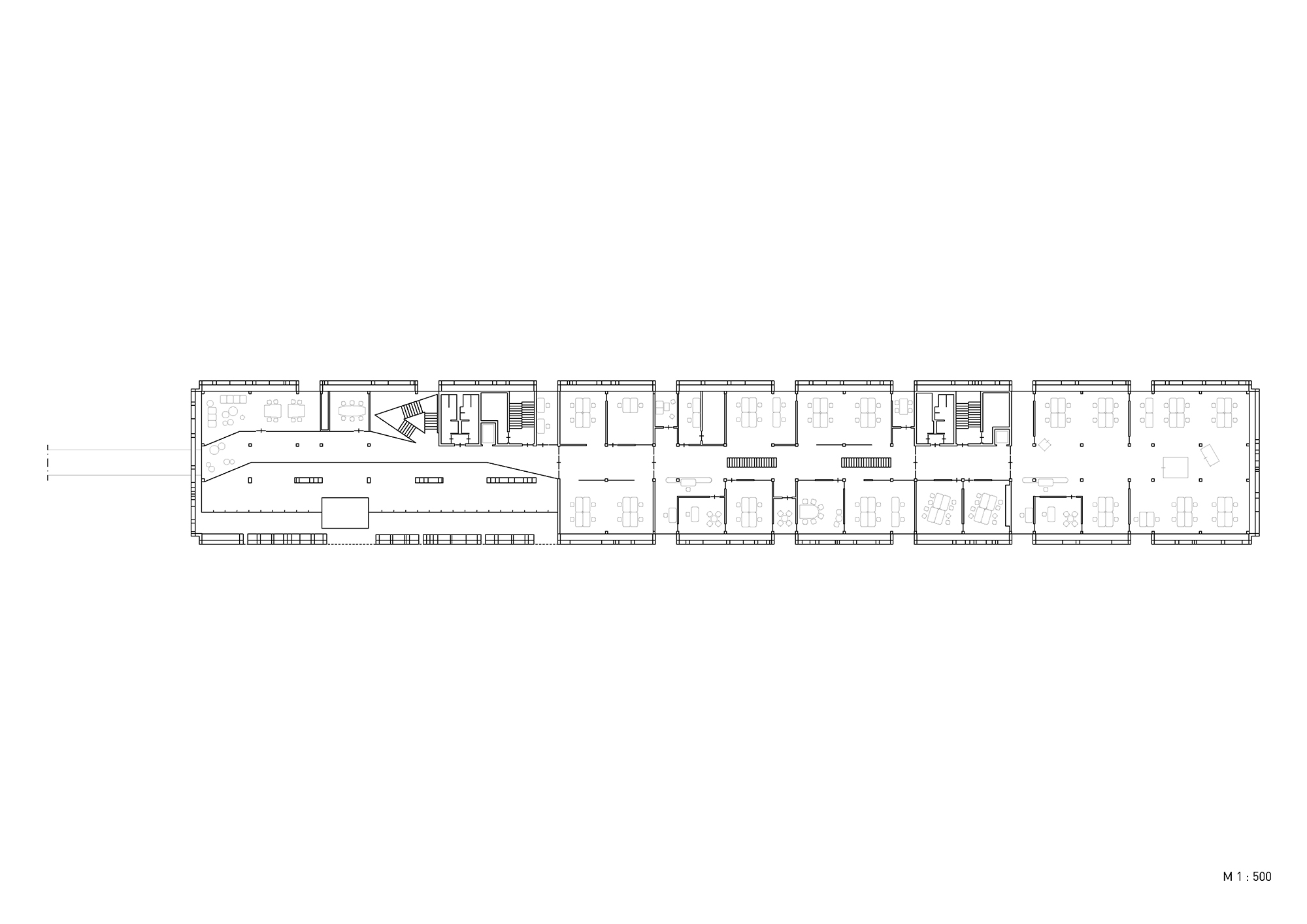
Der Wettbewerb für den neuen Bürotrakt ist bereits der zweite Bauabschnitt, ein Mitarbeiter-Restaurant, weitere Büro-Riegel und ein Showroom sollen auf dem Grundstück in weiteren Bauabschnitten folgen. J. Mayer H. haben versucht mit ihrem Erweiterungsbau auf den Kontext einzugehen und doch eine neue Architektursprache zu finden. Typologisch baut das Gebäude auf Einheiten mit einer Teamgröße von 8-12 Mitarbeitern auf. Diese Einheiten bestimmen die Struktur der Bestandsgebäude und sind auch bei der Erweiterung gestaltprägend. Die Innenräume dieser unabhängigen Projekteinheiten können mit beweglicher Möblierung an unterschiedliche Zusammenstellungen flexibel angepasst werden. An der Fassade scheinen die Module als Rahmen in ein großes Fachwerkregal aus Stahlbeton eingeschoben. Die Oberflächen des sich selbst tragenden Betonfachwerks sind wie bei den Bestandsgebäuden mit hellgrau beschichtetem Holz bekleidet. In der Eingangshalle setzten sich die Diagonalen als Sichtbetonstreben fort. Hier schaffen massive Granitstufen der Treppen aus einem benachbarten Steinbruch sowie Holzoberflächen eine Verbindung zu den natürlichen Ressourcen der Region.






















