Kostengünstiger Massivholzbau
Jugendclub in Hamburg von Münch Architekten
Vier Geschosse hoch ragt der Neubau am Kanalufer im Osten von Hamburg auf. Einen eigenen Bootssteg gibt es inklusive. © Sebastian Grundgeir
Von der Bootshalle bis zum Yogaraum reicht das vielfältige Angebot des neuen Jugendclubs im Stadtteil Hamburg-Bergedorf. Hinter seiner Faserzementhülle verbirgt sich größtenteils eine Massivholzkonstruktion. Münch Architekten bezeichnen den Neubau im Hamburger Osten als „Low-Budget-Jugendclub“, was bei Baukosten unter 1500 Euro/m² Bruttogrundfläche durchaus zutrifft. Das Gebäude steht am Ufer eines Kanals zwischen Wohngebäuden und einem Gewerbegebiet. Der hauseigene Bootssteg erlaubt es den Kindern und Jugendlichen, die Nachbarschaft auch aus der Wasserperspektive zu erleben.


Mit seiner Satteldachform greift der Jugendclub die Kubatur der Wohnhäuser ringsum auf. Eine Freitreppe führt hinauf zum Haupteingang im ersten Obergeschoss. © Sebastian Grundgeir
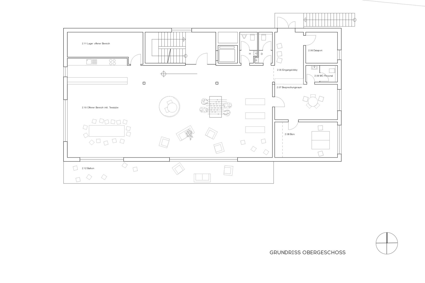
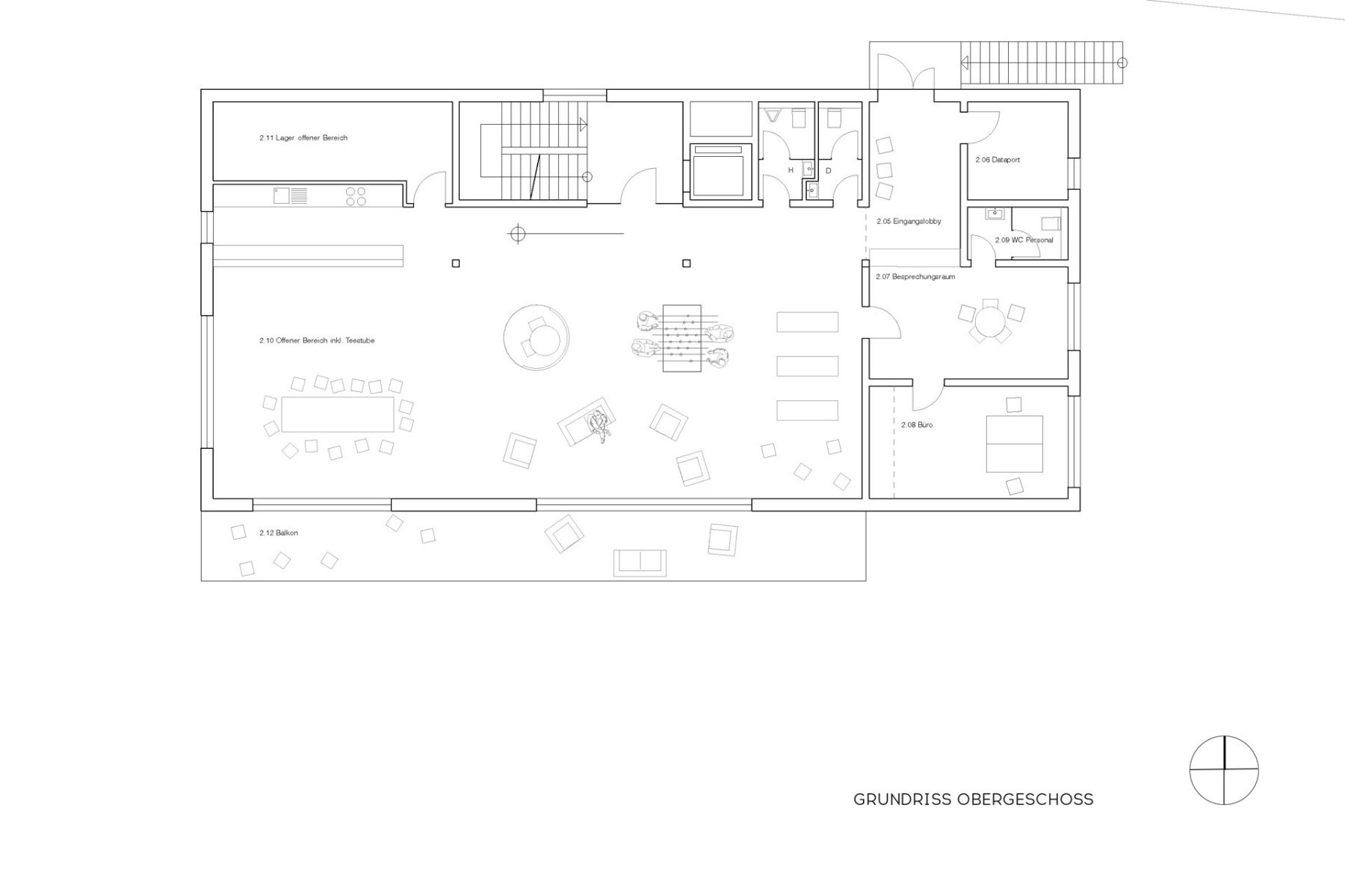
Beletage im ersten Obergeschoss
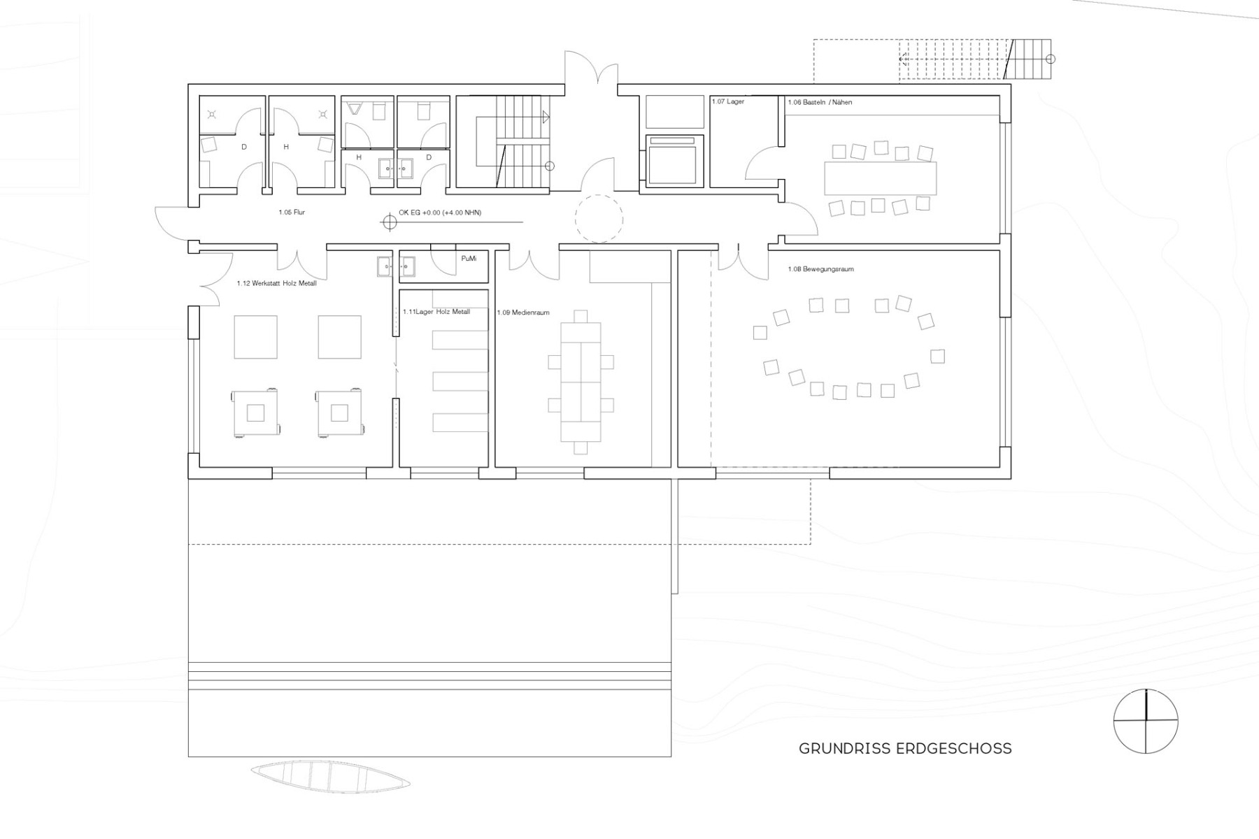
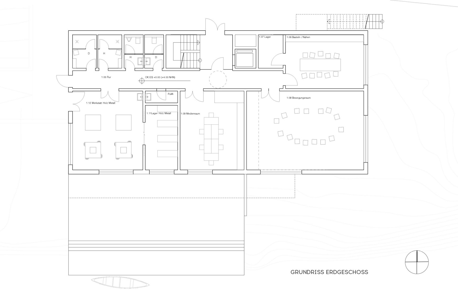
Insgesamt vier Geschosse umfasst das Haus, das vom Sockel bis zum First in Faserzement-Wellplatten gehüllt ist. Seine markante Giebelsilhouette greift die Kubatur der nördlich angrenzenden Wohnbebauung auf. Ungewöhnlich dabei: Der Haupteingang liegt, von einer Freitreppe erschlossen, im ersten Obergeschoss. Er führt in einen großen, offenen Treffpunktbereich mit unterschiedlichen Nutzungszonen. Dort können die jungen Nutzer Billard und Darts spielen, lesen, entspannen oder Speisen in der offenen Küche zubereiten.
Hybridkonstruktion aus Holz und Stahlbeton
Im zweiten Obergeschoss, unter dem Giebeldach, liegen die Räume für kontemplativere Nutzungen wie Basteln, Seminare, Workshops oder Yoga. Sie öffnen sich mit großen Fenstern, Balkon und Terrasse zum Grünraum im Süden. Im Erdgeschoss sind Werkstätten sowie ein Bewegungs- und Medienraum untergebracht. Im Untergeschoss liegt der Lagerraum für Boote mit direktem Zugang zum Wasser.


Die Brettsperrholztafeln der tragenden Wände blieben im Inneren sichtbar. © Sebastian Grundgeir
An den Obergeschosswänden sind die Brettsperrholztafeln sichtbar, die den größten Teil des Hauses tragen. Die Architekten haben Konstruktion und Raumprogramm konsequent in zwei Zonen getrennt: Im breiten, dem Kanal zugewandten südlichen Teil liegen die Hauptnutzungsbereiche; Wände und Decken bestehen hier ausschließlich aus Massivholz.


Nur der Erschließungskern an der Straße ist aus Stahlbeton konstruiert. © Sebastian Grundgeir
Im Norden liegt eine schmalere Nebenraumspange mit Aufzug, Sanitär- und Lagerräumen, die den Rest des Gebäudes vor dem Straßenlärm schützt. Die Raumtemperaturen sind hier geringer als in den größeren Räumen im Süden. Hier befindet sich auch der einzige Teil des Gebäudes, der – mit Ausnahme des Untergeschosses – aus Stahlbeton konstruiert ist: der Aufzugs- und Treppenhauskern, der die Holzkonstruktion aussteift.
Architektur: Münch Architekten
Bauherr: Stadt Hamburg
Standort: Am Hohen Stege 1, 21029 Hamburg (DE)
Tragwerksplanung, Bauphysik, Brandschutz: KFP Ingenieure
TGA-Planung: IBJ Ingenieurbüro Joswig
Akustik: Taubert und Ruhe

















