Kaleidoskopische Strukturen: Bildungscampus Berresgasse in Wien
Foto: Lukas Schaller
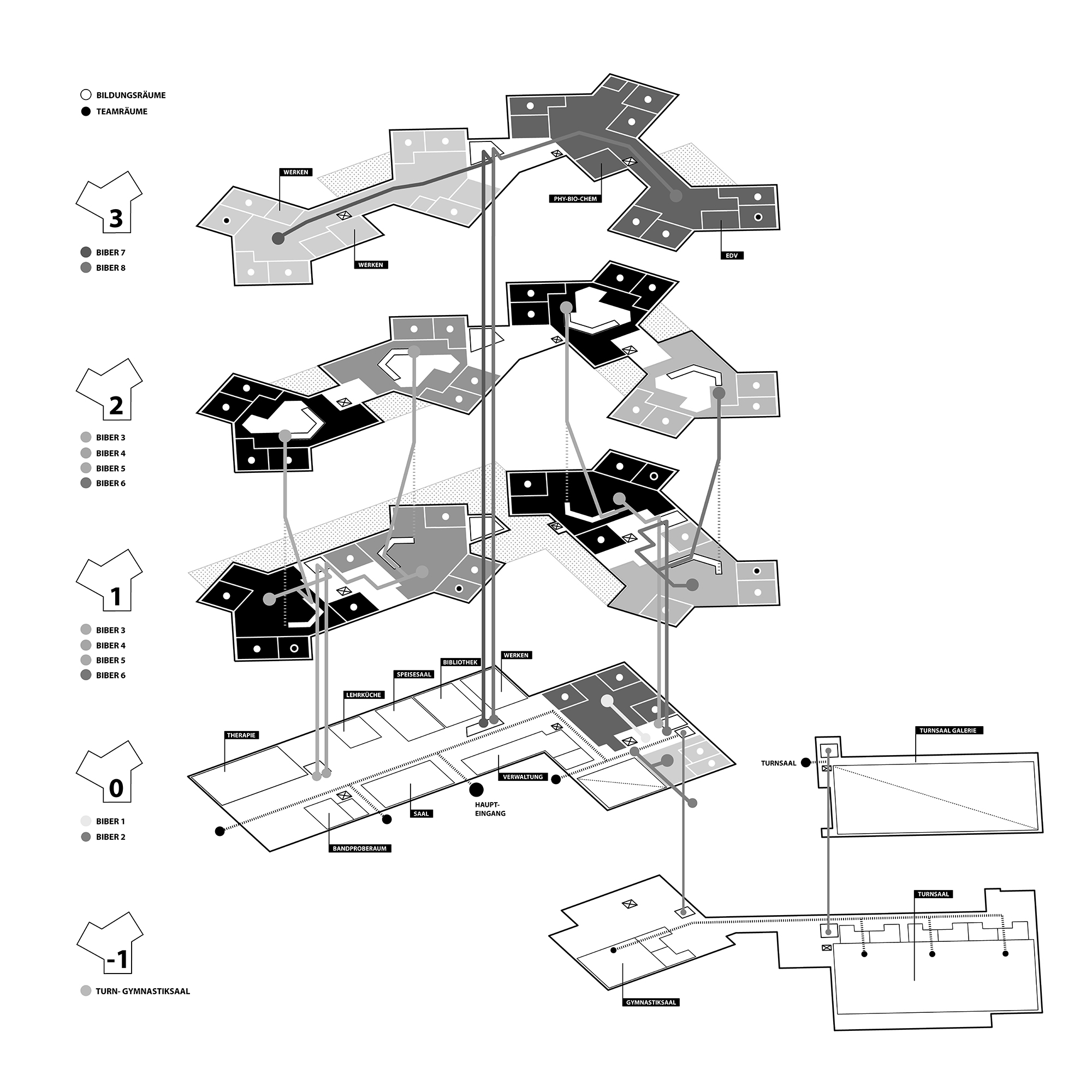
Große Schulbauten mit ihren komplexen Raumstrukturen werden gern mit kleinen »Städten in der Stadt« verglichen. Auf den Bildungscampus Berresgasse trifft dieses Bild uneingeschränkt zu. Der Neubaukomplex steht am Rand der Wiener Donaustadt, nicht weit vom neuen Stadtteil Aspern entfernt. Im Süden schließen sich größere Wohnblocks, im Osten Einfamilienhäuser an. PSLA Architekten standen damit vor der Herausforderung, das massive Bauvorhaben mit knapp 20000 m2 Bruttogrundfläche nicht nur funktional sinnvoll, sondern auch in städtebaulicher Hinsicht verträglich zu gliedern. Das Raumprogramm umfasst einen Kindergarten, eine Volksschule und eine Mittelschule mit insgesamt nicht weniger als 428 Räumen, darunter 33 Klassenzimmer, 11 Kindergarten- und Kleinkindergruppen, 6 Musikräume, 4 Werkräume, eine Dreifachturnhalle und einen Gymnastiksaal. Die Basis des Ganzen bildet ein L-förmiges Erdgeschoss mit den gemeinschaftlichen Funktionen wie Speise- und Mehrzwecksaal, Lehrküche, Verwaltungsbüros und Therapieräumen. Weiter oben gliedert sich der Gebäudekomplex sukzessive auf mit zahlreichen Freiterrassen. Die Architekten vergleichen die Grundrisse der Obergeschosse mit dem Bild eines Kaleidoskops. Das ist angesichts der dreiflügeligen Struktur der einzelnen Baukörper ein durchaus treffender Vergleich.
Die Räume in den holzverkleideten Obergeschossen sind zu sechs Clustern, sogenannten „Bibern“ zusammengefasst. Diejenigen des Kindergartens und der Volksschule reichen jeweils über zwei Geschosse mit innen liegenden Atrien im 1. und 2. Obergeschoss, die beiden nur eingeschossigen Cluster der Mittelschule liegen im obersten Geschoss des Hauses. Den Gegenpol zu den 7 m hohen Atrien bilden vielfältige Rückzugsnischen im Inneren, die sich durch Vorhänge und mobile Raumteiler abtrennen lassen oder durch eine niedrige Raumhöhe von nur 2,2 m gekennzeichnet sind. In allen Bereichen bieten große, versetzt angeordnete Fenster in unterschiedlichen Höhen einen intensiven Außenkontakt.
Weitere Informationen:
Landschaftsarchitekten: EGKK Landschaftsarchitektur
HKLS-Planung: rhm GmBH
Elektroplanung: TB Eipeldauer
Generalunternehmer/ Ausführungsplanung: Porr Bau GmbH/ Porr Design & Engineering



























