// Check if the article Layout ?>
Katalanische Winter: Ein Wohnhaus unter extremen Bedingungen
Foto: José Hevia
Nähert man sich dem Haus der Familie OE, so erscheint es leicht und beinahe fragil. Da die Wände im Erdgeschoss transluzent sind, ist das tragende Stahlskelett sichtbar. Den oberen Teil des eingeschossigen Hauses prägen die Rollläden, mit denen die komplette Glasfassade geschlossen werden kann. Sie sind eine Hommage an typisch spanische Wohnhäuser, denn trotz aller Autarkie des Wohnhauses finden sich gemeinsame Wurzeln.
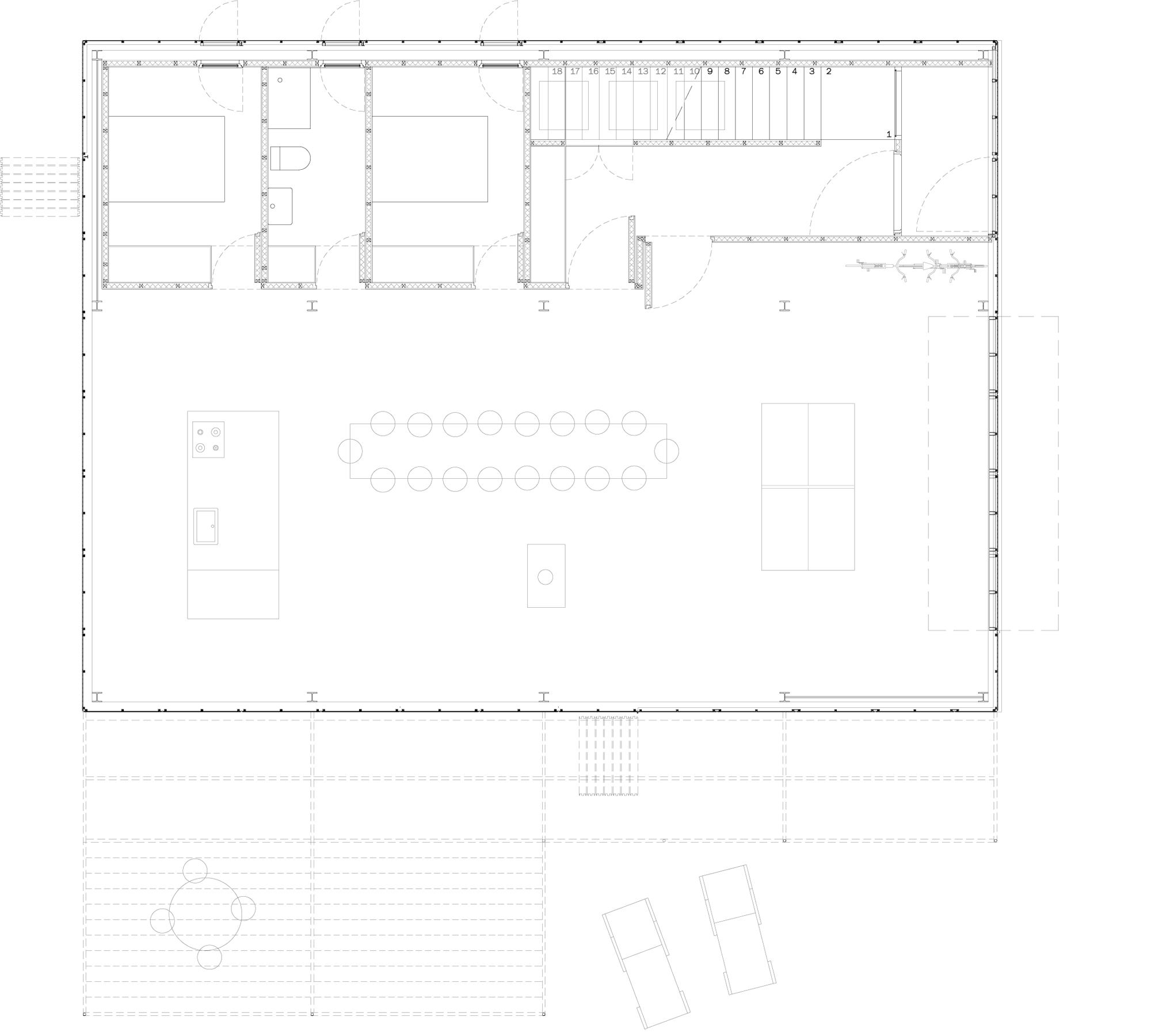
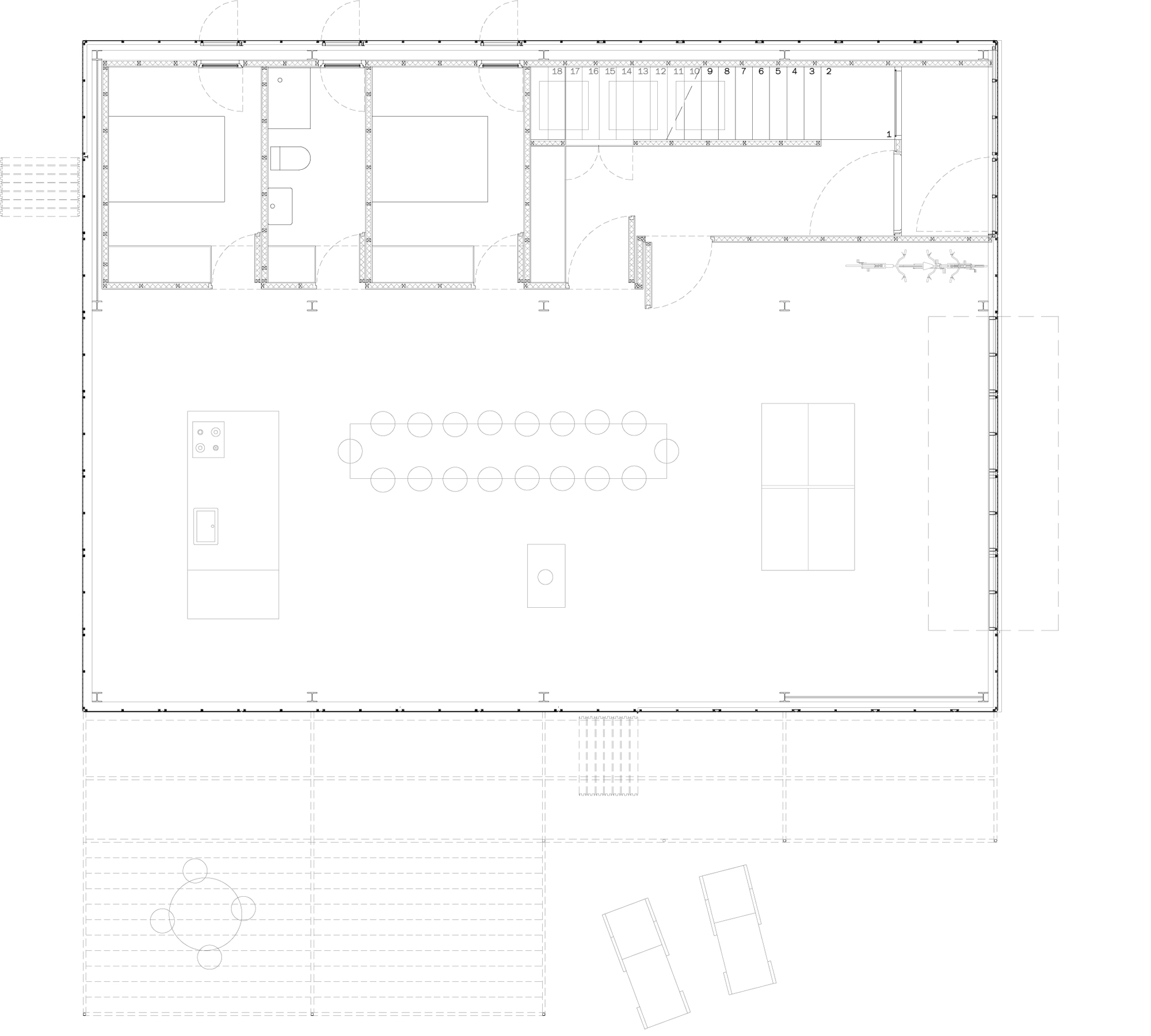
Wie auch die Nachbarhäuser, geht der Entwurf von einer Masia aus. Früher lebte die katalanische Landbevölkerung in solchen Häusern, die im unteren Teil Stall und Küche beherbergten, oben die Schlafzimmer sowie Lagerräume und auf dem Dach ein Silo oder einen Taubenschlag. Außerdem wollte die Familie das ganze Jahr über in ihrem Haus wohnen, ganz gleich ob der Mistral über ihnen tobt oder die Sonne vom Himmel brennt. Sie wollten nicht vom Sommerhaus ins Winterhaus ziehen müssen, sondern höchstens von oben nach unten. Dieses Konzept der funktionalen Aufteilung in zwei sehr unterschiedliche Lebensarten und Aufenthaltsqualitäten erforderte zwei genauso unterschiedliche Konstruktionsarten. Dabei sollte die Konstruktion so einfach wie möglich werden. Da die Wirtschaftskrise den Bauprozess stark in die Länge zog, war viel Zeit, um vorherige Entwurfsentscheidungen zu überdenken.
Die Architekten ließen sich für das Sommerhaus im Erdgeschoss von den Case Study-Häusern inspirieren, was zu diesem luftigen aber sonnengeschützten Raum führte, der geradezu in den das Haus umgebenden Garten übergeht. Eine Standardlösung aus vorgefertigten Bauteilen, die allen Bedürfnissen gerecht wird.
Optimal für die Wintermonate gedämmt und nach Süden ausgerichtet ist hingegen das Obergeschoss. Hier sind die Decken wie in Le Corbusiers Maisons Jaoul mit katalonischem Gewölbe geschlossen, einer Technik, die heute kaum noch Anwendung findet.
Mit dieser Collage aus verschiedenen Einflüssen wurden sie dem Wunsch der Familie gerecht. Auffällig ist, dass es sich bei beiden Referenzprojekten um Nachkriegsarchitektur handelt. Natürlich in einer sehr gelungenen Form, aber es eint sie der Anspruch, schnell und günstig Wohnraum zu schaffen. Was damals aus der Not entstand, ist fester Bestandteil der Arbeit von aixopluc: Sie wollen Ressourcen schonen und Menschen trotzdem mit den idealen Räumen umgeben. Dass dies kein Widerspruch ist, zeigt das OE house.
Wie auch die Nachbarhäuser, geht der Entwurf von einer Masia aus. Früher lebte die katalanische Landbevölkerung in solchen Häusern, die im unteren Teil Stall und Küche beherbergten, oben die Schlafzimmer sowie Lagerräume und auf dem Dach ein Silo oder einen Taubenschlag. Außerdem wollte die Familie das ganze Jahr über in ihrem Haus wohnen, ganz gleich ob der Mistral über ihnen tobt oder die Sonne vom Himmel brennt. Sie wollten nicht vom Sommerhaus ins Winterhaus ziehen müssen, sondern höchstens von oben nach unten. Dieses Konzept der funktionalen Aufteilung in zwei sehr unterschiedliche Lebensarten und Aufenthaltsqualitäten erforderte zwei genauso unterschiedliche Konstruktionsarten. Dabei sollte die Konstruktion so einfach wie möglich werden. Da die Wirtschaftskrise den Bauprozess stark in die Länge zog, war viel Zeit, um vorherige Entwurfsentscheidungen zu überdenken.
Die Architekten ließen sich für das Sommerhaus im Erdgeschoss von den Case Study-Häusern inspirieren, was zu diesem luftigen aber sonnengeschützten Raum führte, der geradezu in den das Haus umgebenden Garten übergeht. Eine Standardlösung aus vorgefertigten Bauteilen, die allen Bedürfnissen gerecht wird.
Optimal für die Wintermonate gedämmt und nach Süden ausgerichtet ist hingegen das Obergeschoss. Hier sind die Decken wie in Le Corbusiers Maisons Jaoul mit katalonischem Gewölbe geschlossen, einer Technik, die heute kaum noch Anwendung findet.
Mit dieser Collage aus verschiedenen Einflüssen wurden sie dem Wunsch der Familie gerecht. Auffällig ist, dass es sich bei beiden Referenzprojekten um Nachkriegsarchitektur handelt. Natürlich in einer sehr gelungenen Form, aber es eint sie der Anspruch, schnell und günstig Wohnraum zu schaffen. Was damals aus der Not entstand, ist fester Bestandteil der Arbeit von aixopluc: Sie wollen Ressourcen schonen und Menschen trotzdem mit den idealen Räumen umgeben. Dass dies kein Widerspruch ist, zeigt das OE house.
























