Uni-Bibliothek der neuen Generation
Kennedy & Violich sanieren Hayden Library am MIT
© John Horner Photography
Lorem Ipsum: Zwischenüberschrift
Nachkriegs-nüchtern präsentierte sich die Hayden Library des MIT, ein Bau der Architekten Voorhees, Walker, Foley & Smith aus dem Jahr 1951, bisher dem Verkehr am Nordufer des Charles River in Cambridge. Zweigeschossige, grün gerahmte Erkerfenster gliederten die Kalksteinfassade in Richtung Fluss; einfache Lochfassaden aus dem gleichen Kalkstein säumten den Innenhof.


© John Horner Photography
Lorem Ipsum: Zwischenüberschrift
Die Bibliothek liegt im Südflügel eines größeren Baublocks, der auch eine Musikbibliothek, einen kleinen Konzertsaal und Seminarräume beherbergt. Am äußeren Erscheinungsbild des Gebäudes hat sich auch nach der Sanierung durch Kennedy & Violich wenig geändert.
Lorem Ipsum: Zwischenüberschrift
Schon der Innenhof zeigt jedoch die radikale Veränderung, die hier vor sich gegangen ist: Nach Plänen von Stephen Simson Associates ist er nun üppig begrünt und dem östlichen Gebäudeflügel haben die Architekten eine Vorhalle angefügt, die sich mit großen Faltverglasungen zum Hof öffnen lässt.


© John Horner Photography
Lorem Ipsum: Zwischenüberschrift
Auch das eigentliche Bibliotheksfoyer haben Kennnedy & Violich großzügiger gestaltet. Ihr Entwurfsmotto „Research Crossroads“, manifestiert sich hier in zwei eingestellten Pavillons, die auf zwei Ebenen kleine Arbeits-Separées, einen Aufzug, Druckerräume und weitere Nebenräume enthalten. Der größere ist mit Glas verkleidet, der kleinere mit Eschenholz, das sich symbolisch auch im Bodenbelag fortsetzt, um die Durchkreuzung der beiden Volumina zu unterstreichen. Beide gemeinsam trennen das Café am Innenhof vom ruhigeren Lesebereich am Charles River.


© John Horner Photography


© John Horner Photography
Lorem Ipsum: Zwischenüberschrift
Für Ruhe im Raum sorgen auch die Baffeln aus grauem Recycling-Filz unter der Decke und die Vorhänge, die den zonieren. An den beiden Enden der Eingangshalle liegen ein „Nexus“ genannter Mehrzweckraum für Lehr- und sonstige Veranstaltungen sowie Verwaltungsbüros. Spektakulär sich kreuzende Treppenläufe aus Stahl stellen nun eine Verbindung zum oberen Lesesaal her, für die eigens ein Teil der Zwischendecke entfernt wurde.


© John Horner Photography
Lorem Ipsum: Zwischenüberschrift
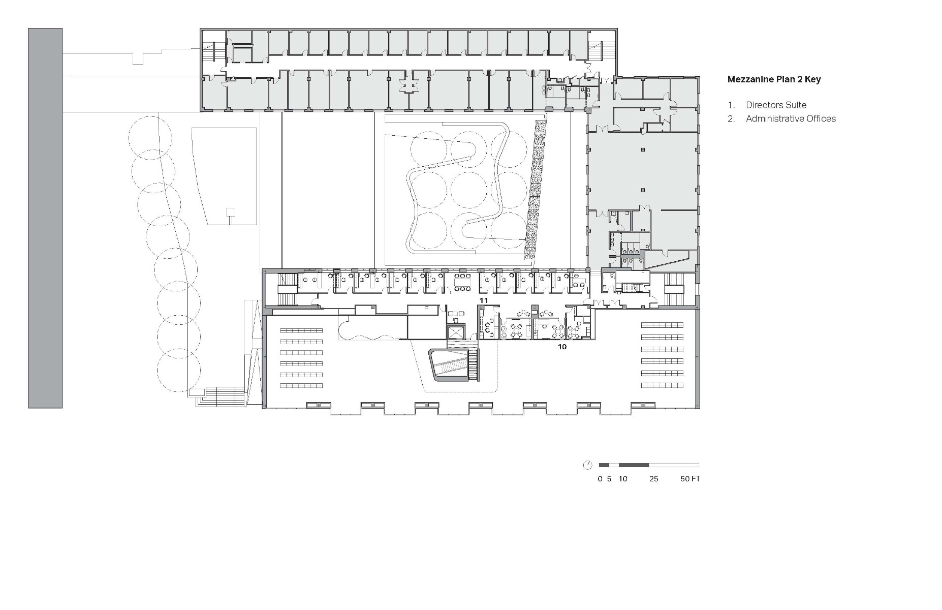
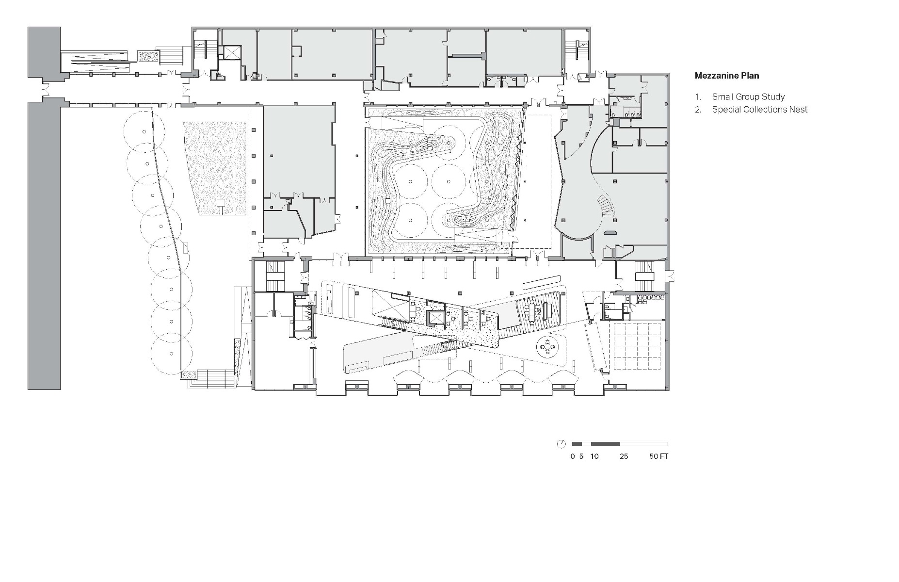
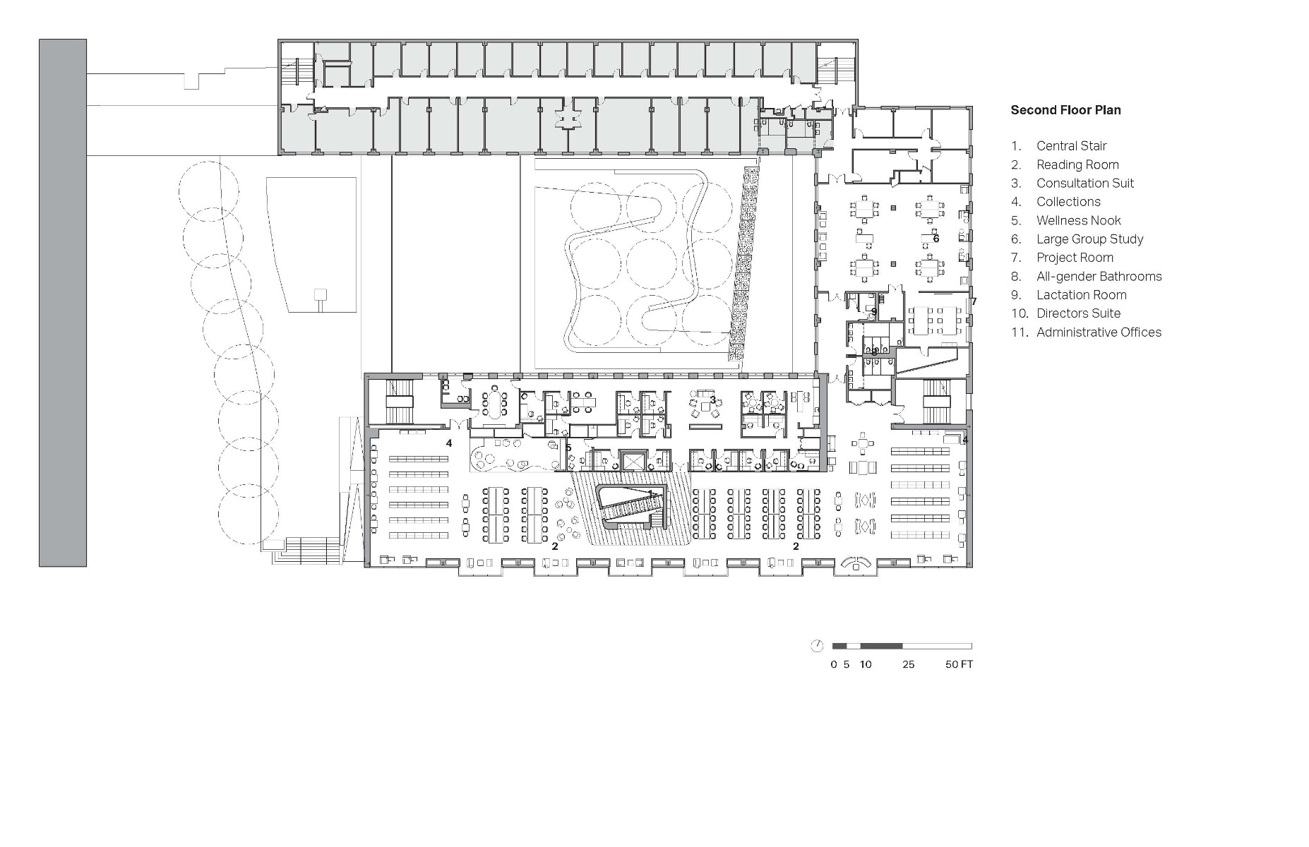
Das Obergeschoss gestalteten die Architekten deutlich nüchterner als die untere Ebene. Auf der Flussseite liegt hier nach wie vor der große Lesesaal, am Innenhof und auf einer Mezzaninebene Büros und im Ostflügel sind zusätzliche Gruppenarbeitsräume entstanden. Der größte Teil des Bücherbestands ist im Bibliotheksmagazin gelagert, das sich im Untergeschoss bis unter den Innenhof erstreckt.
Architektur: Kennedy & Violich Architecture
Bauherr: Massachusetts Institute of Technology
Standort: 160 Memorial Drive, MA 02142 Cambridge (US)
Tragwerks- und TGA-Planung: Buro Happold
Landschaftsarchitektur: Stephen Simson Associates
Nachhaltigkeitsberatung: Thornton Tomasetti
Akustik: Cavanaugh Tocci Associates























