Kinderleicht: Primarschule Pfeffingen von Brandenberger Kloter
Foto: Basile Bornand Photographer
Sukzessive werden sämtliche Bildungseinrichtungen in der Schweiz „harmonisiert“. Konkret geht es dabei um ein System, das die einzelnen Kindergärten und Schulen sowohl baulich als auch inhaltlich zusammenfasst und aufeinander abstimmt. Die Primarschule in Pfeffingen bildet das erste von gleich mehreren Schulprojekten, denen sich die Architekten Brandenberger Kloter widmen. Sie gestalten einen simplen, rechteckigen Baukörper mit kleinteiliger Fassade. Die drei Geschosse zeichnen sich an den Ansichten deutlich ab. Schmale vertikale Holzrahmen passen das Gebäude weiter an den Maßstab der Kinder an.
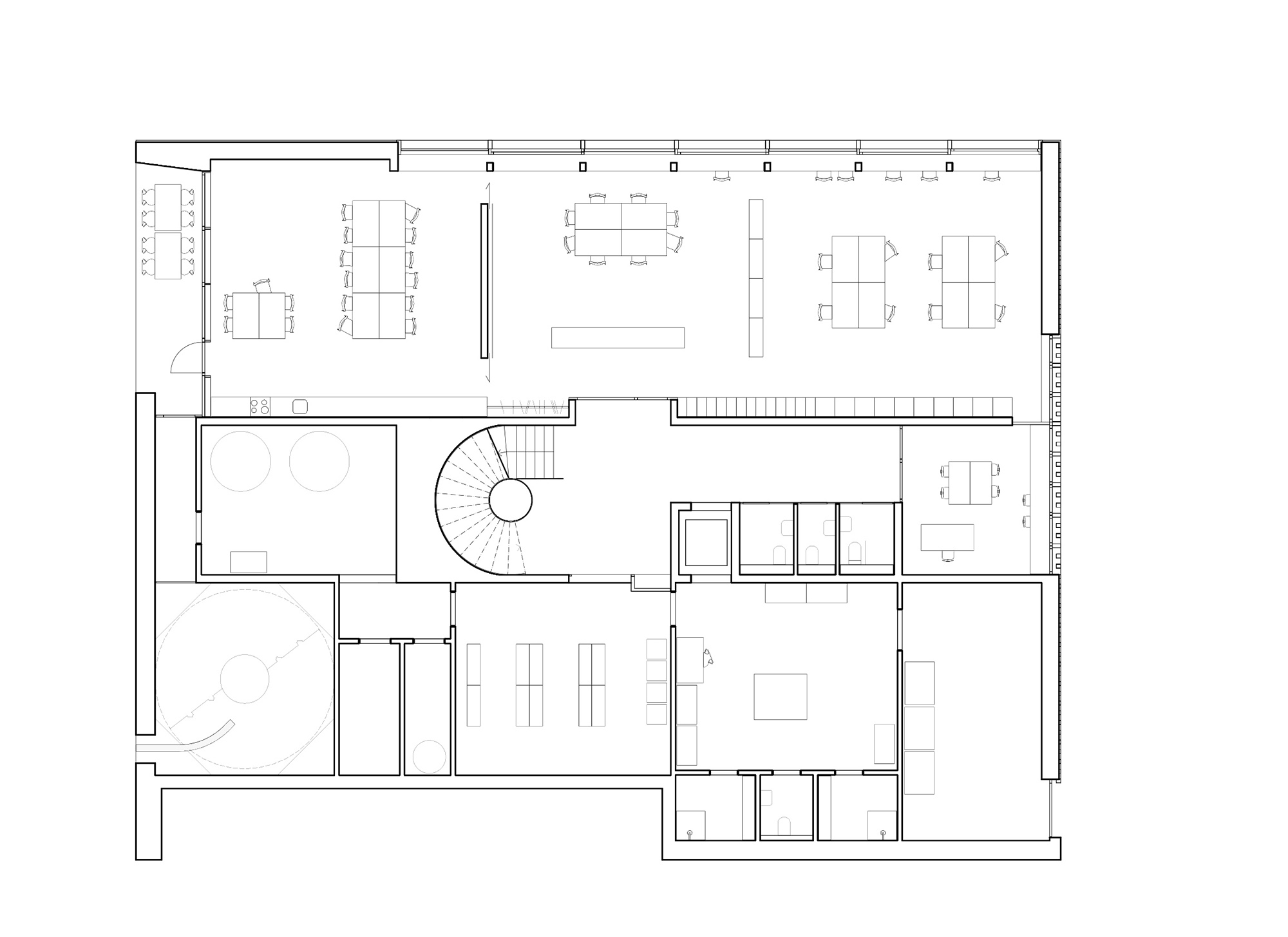
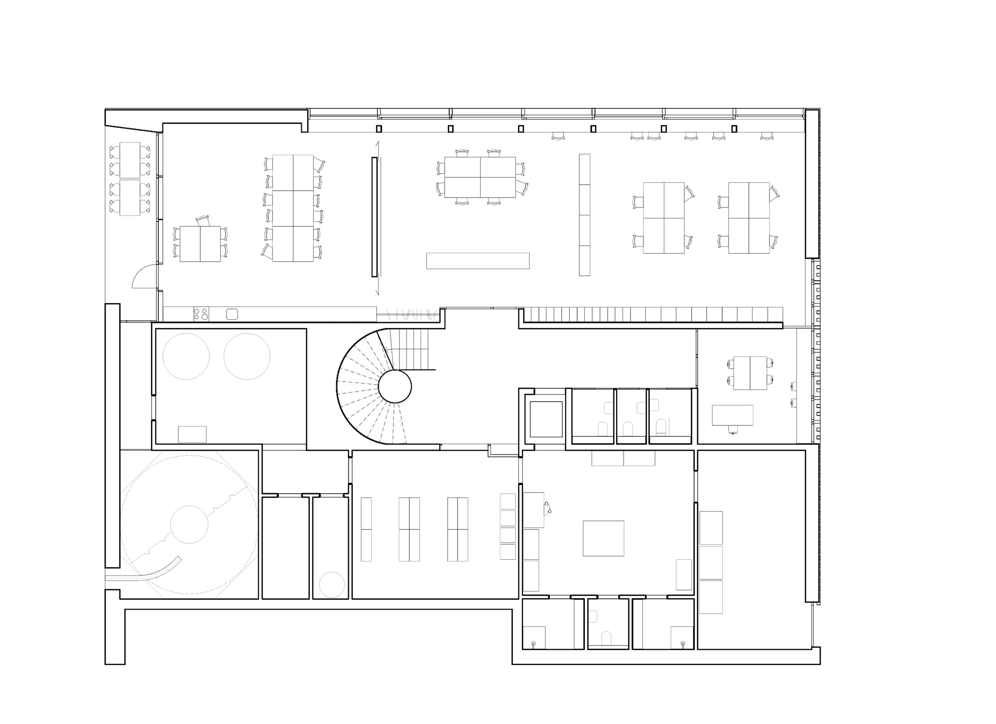
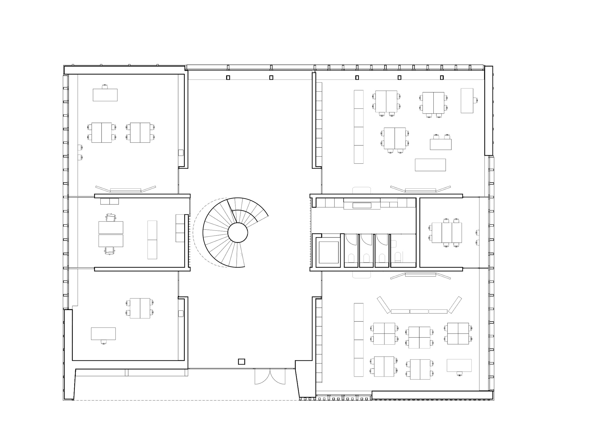
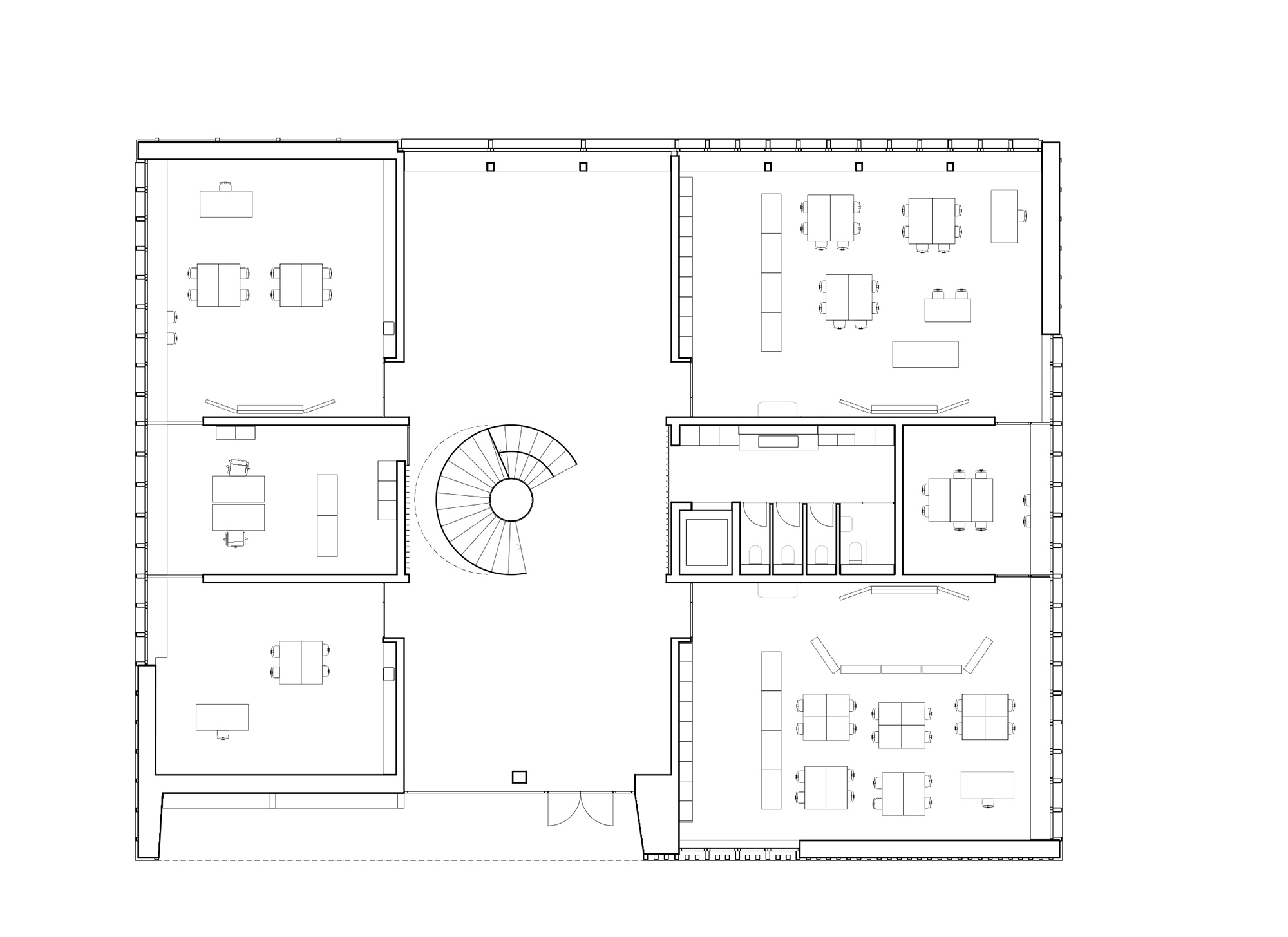
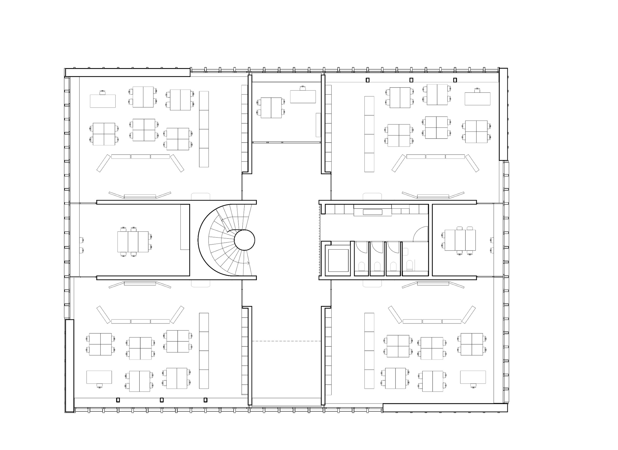
Der Haupteingang an der Südseite führt direkt in ein zentrales Foyer. Dieses umfasst die gesamte Gebäudetiefe und endet in großen nach Norden ausgerichteten Fenstern mit Panoramaausblick. Ausgehend von der zentralen Eingangshalle führt eine Wendeltreppe in die beiden oberen Stockwerke sowie in das Sockelgeschoss. Die Innenräume der Schule schließen rund um den Erschließungsbereich an und machen Korridore und Gänge überflüssig. In der ersten und zweiten Etage gibt es je vier Klassenzimmer. Diese sind an den Außenecken positioniert und über Gemeinschaftsbereiche miteinander verbunden. Jede Klasse umfasst großzügige 90 m2 und eine integrierte Garderobe. Das Mobiliar kann auf Rollen gelagert frei in den Räumen verschoben werden und sich an unterschiedliche Unterrichtsmodelle anpassen. Im Sockel befinden sich Lehrerzimmer und Nebenräume.
Die Materialpalette der Primarschule Pfeffingen reicht von Sichtbeton bis Holz. Im Inneren sorgen versetzt gemauerte Sichtbacksteinwände für eine spannende Struktur und die perfekte Akustik. Helle Weißtanne kleidet Wände und Einbauten und schafft ein kindgerechtes, geborgenes Ambiente.






















