Rückzugsort
Kindertagesstätte mit Familienzentrum von Bez + Kock Architekten
Kindertagesstätte mit Familienzentrum im Franziskanerkloster in Miltenberg, © Stephan Baumann, bild_raum
Bez + Kock Architekten planen eine Kindertagesstätte mit Familienzentrum im Klostergarten von Miltenberg. Der Entwurf der Architekten ging als Siegerprojekt des Wettbewerbes von 2018 hervor, der behutsame Umgang mit dem historischen Ort überzeugte die Jury.


Der Holzbau wird durch eine vertikale Fassadenlattung aus Weißtanne rhythmisch gegliedert. © Stephan Baumann, bild_raum
Einbindung in den Klostergarten
Im historischen Stadtzentrum Miltenbergs liegt der Klostergarten des ehemaligen Franziskanerklosters. Der eingeschossige Neubau fügt sich behutsam zwischen die mächtigen, das Areal umgebenden Sandsteinmauern ein und teilt den Garten in zwei Bereiche. Neben dem geschützten Außenbereich der Kita entsteht auch ein öffentlicher Freibereich, der – im Sinne des ehemaligen Klosters – für die Bewohner der Stadt zugänglich ist.
Terrassierung
Mit seiner sanften Staffelung reagiert der Baukörper auf die leicht abfallende Topografie des Geländes. Den terrassierten Längsseiten der Kita sind durchgängige Pergolen vorgesetzt, die wettergeschützte Spiel- und Aufenthaltsflächen schaffen.


Sandstein und Holz im Innenraum lassen die Kita zu einem Haus zum Anfassen und Begreifen werden. © Stephan Baumann, bild_raum
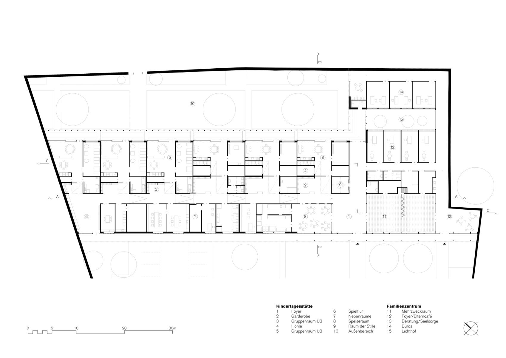
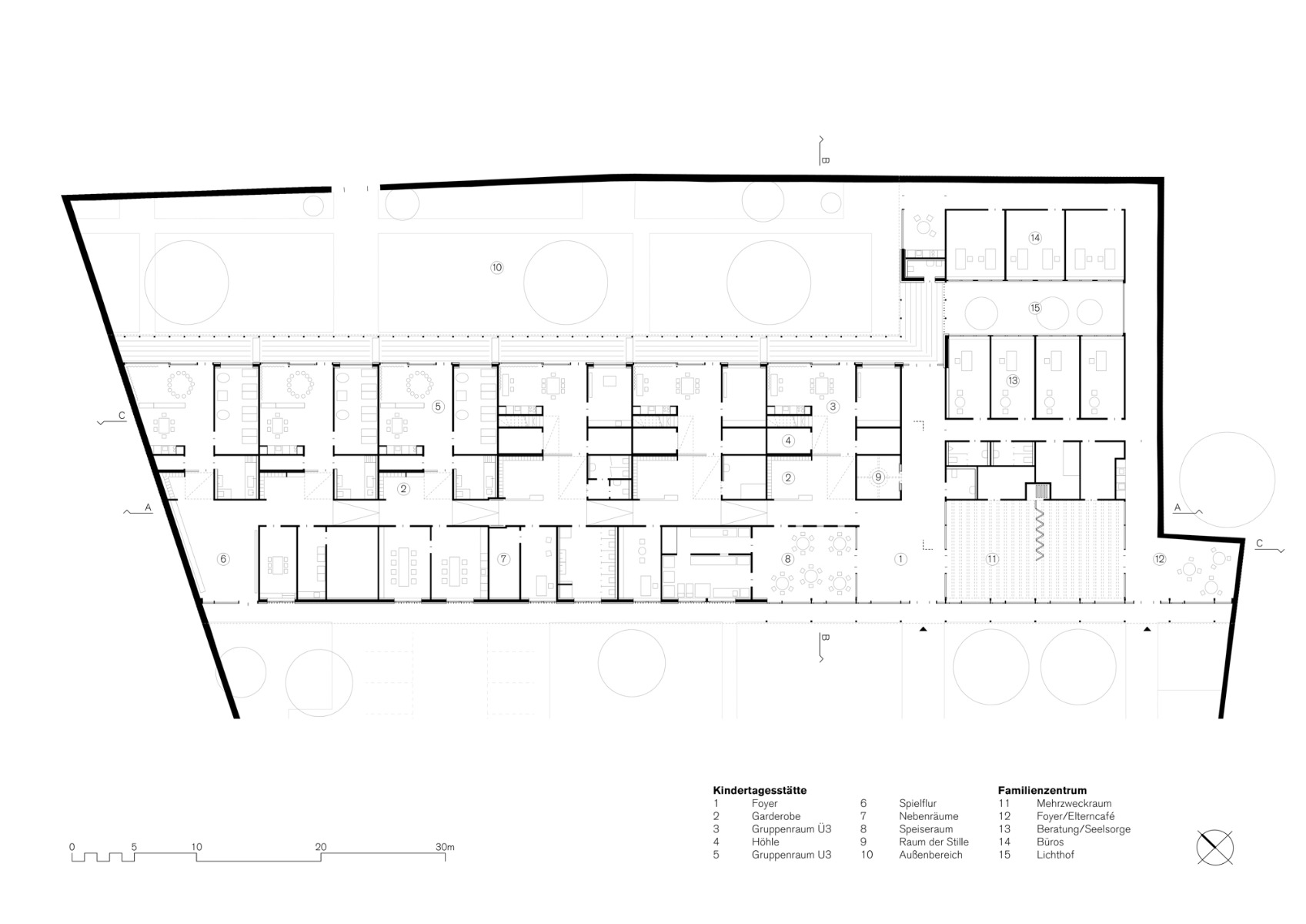
Nutzungsverteilung
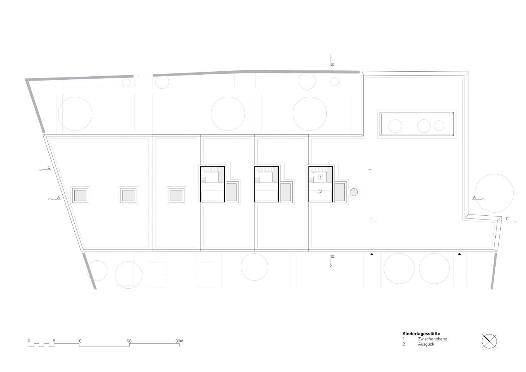
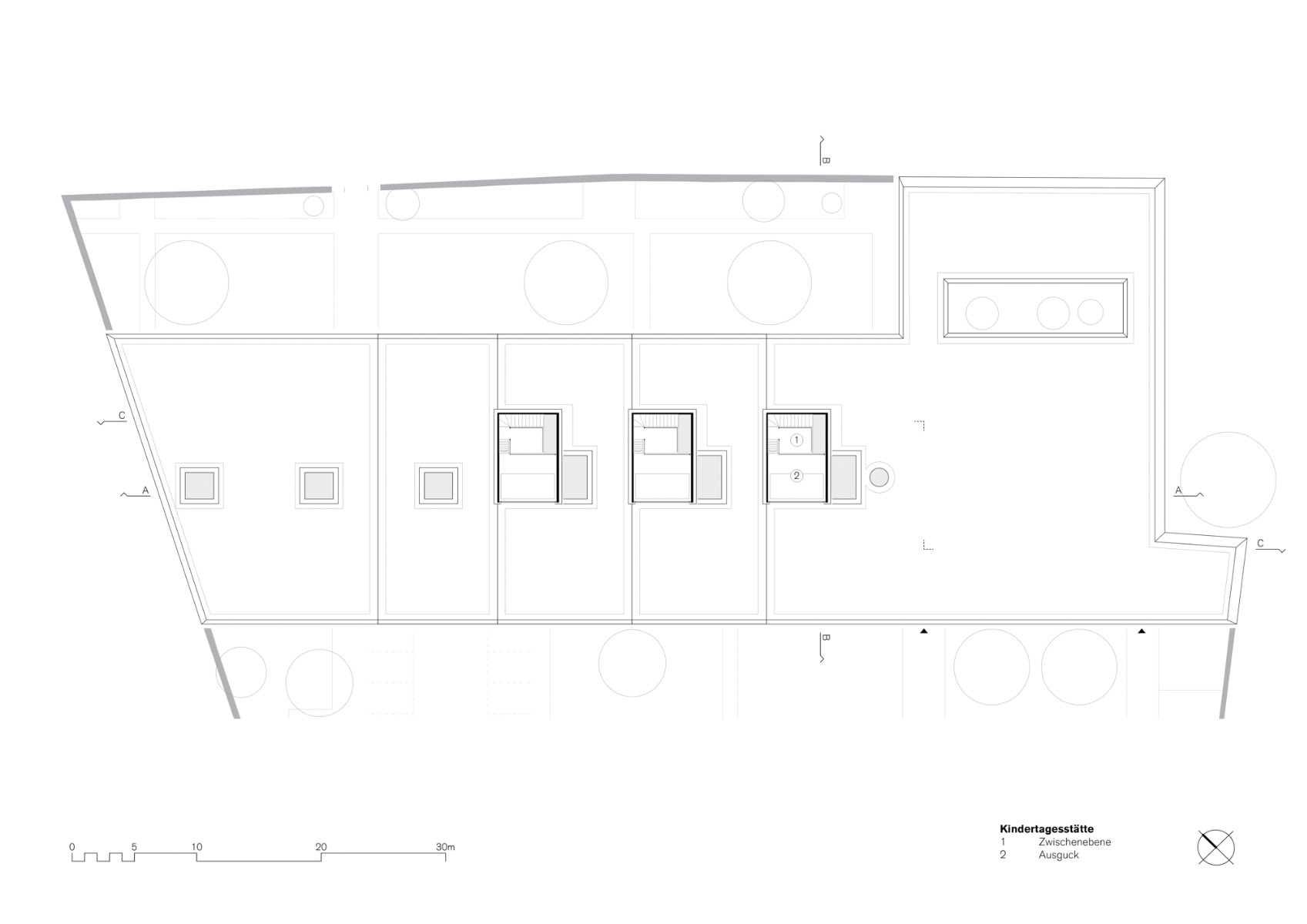
Die Kindertagesstätte sowie das Familienzentrum werden über den Klostergarten erschlossen. Ein mittig sitzender Mehrzweckraum separiert die Foyers und kann von beiden Bereichen genutzt werden. Die Kita verfügt über sechs Gruppenräume – drei Krippenräume (U3) und drei Kindergartenräume (Ü3). In Raumnischen ausgebildete Garderobenbereiche trennen die Aufenthaltsräume vom Flurbereich, der durch großformatige Dachoberlichter mit ausreichend Tageslicht belichtet wird. Die Seelsorgeräume und Büros des Familienzentrums sind in dem leicht zurückgesetzten, östlichen Gebäudeteil um einen begrünten Lichthof angeordnet. Die in den Gruppenräumen integrierten Kletterelemente schaffen auf verschiedenen Ebenen Rückzugsorte für die Kinder. In der Dachebene erheben sich die Elemente als Ausgucke über die begrünten Dachflächen und geben den Blick auf den Klostergarten frei.


Gruppenraum, © Stephan Baumann, bild_raum
Haptisches Materialspiel
Der konstruktive Holzbau wird durch eine vertikale Fassadenlattung aus Weißtanne rhythmisch gegliedert. Sichtbare Holzoberflächen und Holzausbauten sorgen auch im Innenraum für eine warme Atmosphäre. Die den Garten begrenzende Mainsandsteinmauer liegt an den Querseiten auch im Inneren frei und bildet einen Kontrast zum vorherrschenden Holz. Neben den atmosphärischen Qualitäten von Sandstein und Holz ist die haptische Erkundung der Oberflächen ein spannender Teil des Alltags der Kinder.
Architektur: Bez + Kock Architekten
Bauherr: Stadt Miltenberg
Standort: Miltenberg (DE)
Bauleitung: Hessdörfer Seifert Architekten
Tragwerksplanung: Merz Kley Partner
HLS-Planung: Oliver Etienne Ingenieurbüro
Elektroplanung: Büro für Elektrotechnik Langer
Bauphysik: Golisch Bauphysik
Brandschutz: IB Renninger
Landschaftsplanung: Koeber Landschaftsarchitektur












