Kulturquartier für die Biennale
Kingway-Brauerei in Shenzhen von Urbanus
Silos, Klärbecken und neue Ausstellungsräume ergänzen sich zu einer abwechslungsreichen Architekturcollage. Eine einheitliche Farbpalette hält das Ganze zusammen. © Hu Kangyu
Vom Industrie- zum Ausstellungsgelände
In zentraler Lage im chinesischen Shenzhen hat Urbanus ein ehemaliges Brauereigelände zum Schauplatz der Shenzhen-Hong-Kong-Biennale umgewidmet. Luohu ist das Zentrum und die Keimzelle der chinesischen Sonderwirtschaftszone Shenzhen, und die Kingway-Brauerei hat deren atemberaubenden Aufstieg fast von Anfang an mit begleitet.


Die einzelnen Gebäude reihen unter einer rund 260 m langen Betonplattform auf. © Hu Kangyu
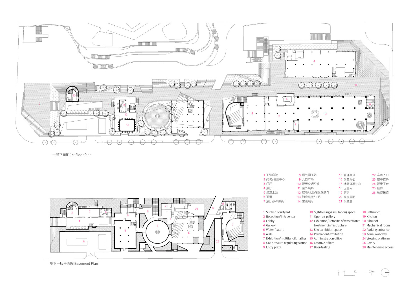
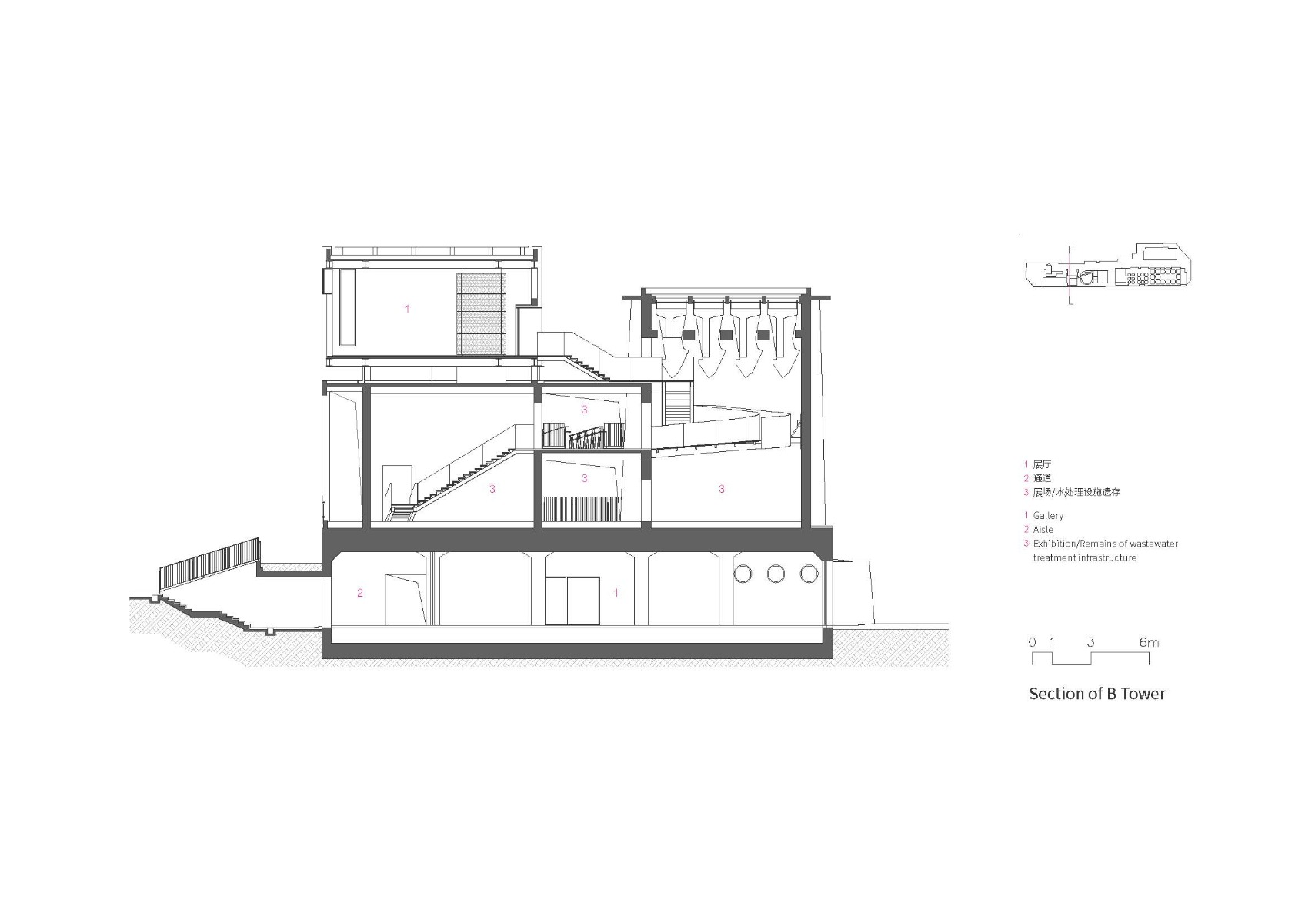
In den letzten Jahren wurde jedoch ein großer Teil der Brauereianlagen abgerissen und das Areal neu bebaut – mit Ausnahme eines knapp 12 000 m² großen, in Nord-Südrichtung ausgerichteten Geländestreifens. Dort befanden sich unter anderem die Gärtanks der Brauerei und die firmeneigene Kläranlage.
Follies auf einem Betonsockel
Unter dem Motto „Der Raum als Ausstellung“ machte sich das Büro Urbanus daran, den heterogenen Gebäudebestand zusammenzufassen und mit neuen Nutzungen zu belegen. Eine durchgehende Betonplattform – 1,65 m über dem restlichen Firmengelände im Westen und 3 m über dem Straßenniveau im Osten gelegen – macht die Gebäude nun der Öffentlichkeit zugänglich. Ein Teil der Räume und Freibereiche liegt innerhalb dieses Sockels: So zum Beispiel ein von Rampen erschlossener, kreisrunder Wassergarten im ehemaligen Klärbecken.


Die ehemalige Kläranlage erhielt eine Aufstockung mit Verkleidung aus Aluminiumschaumplatten. © Hu Kangyu
Markante Dachaufstockungen
Das erste Ausrufezeichen bei der Annäherung von Süden setzt ein mit roten Fliesen verkleideter Aussichtsturm. Bei den nördlich anschließenden Klärwerks- und Silogebäuden entfernten die Architekten dagegen den vorhandenen Fliesenbelag und legten die nackte Betonstruktur offen. Zwei dieser Gebäude wurden mit kubischen Aufbauten versehen – in einem Fall als Ausstellungsraum mit Fassadenverkleidung aus Aluminium-Schaumplatten und im anderen Fall als offene Gerüststruktur.


Ein Teil der Nutzungen liegt unter der Plattform – hier ein Ausstellungsbereich in der ehemaligen Kläranlage. © Hu Kangyu


Drei der Gärtanks ließen die Architekten entfernen, um Platz auf dem Dach zu schaffen und die Innenräume zu belichten. © Hu Kangyu
Kultur und Gastronomie zwischen Gärtanks
Am deutlichsten weist das Gebäude D am Nordende des Geländes auf die Vorgeschichte der Anlage hin. Aus seinem Flachdach ragen 33 Gärtanks hervor, die sich im Inneren in Form großer Einfülltrichter fortsetzen. Der südliche Abschnitt des Gebäudes wurde zum Vortragssaal umgebaut und ein weiterer Ausstellungsraum auf dem Dach ergänzt. Im mittleren Teil ist eine Bar entstanden, für die die Trichter und das Röhrengewirr den passenden Hintergrund bilden. Im nördlichsten Gebäudeteil ließen die Architekten drei der Tanks mit je 7,5 m Durchmesser entfernen, um auf und unter dem Dach Platz für Veranstaltungen zu schaffen. An ihrer Stelle belichten nun kreisrunde Oberlichter die Innenräume.
Architektur, Landschaftsarchitektur: Urbanus
Bauherr: Guangdong Yuehai Land Holdings
Standort: Dongchang Rd, Luohu District, Shenzhen (CN)
Tragwerks- und TGA-Planung: China Academy of Building Research
Fassadenplanung: Tuanhooc
Innenarchitektur: Studio 10 / Shenzhen Jiusi Interior Design
Lichtplanung: z design & planning
Signaletik: Sure Design











































