Lücken schließen
Kita in Leipzig von Aline Hielscher Architektur
Die neue Kindertagesstätte in Leipzig fügt sich mühelos in die Hofstruktur ein. © Célia Uhalde
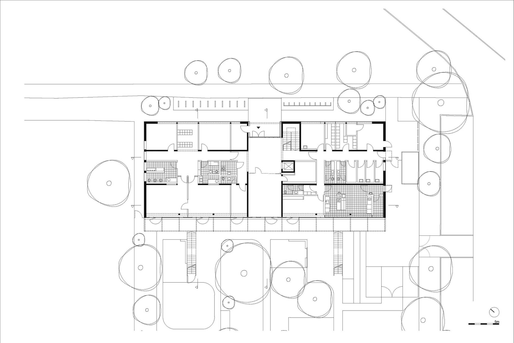
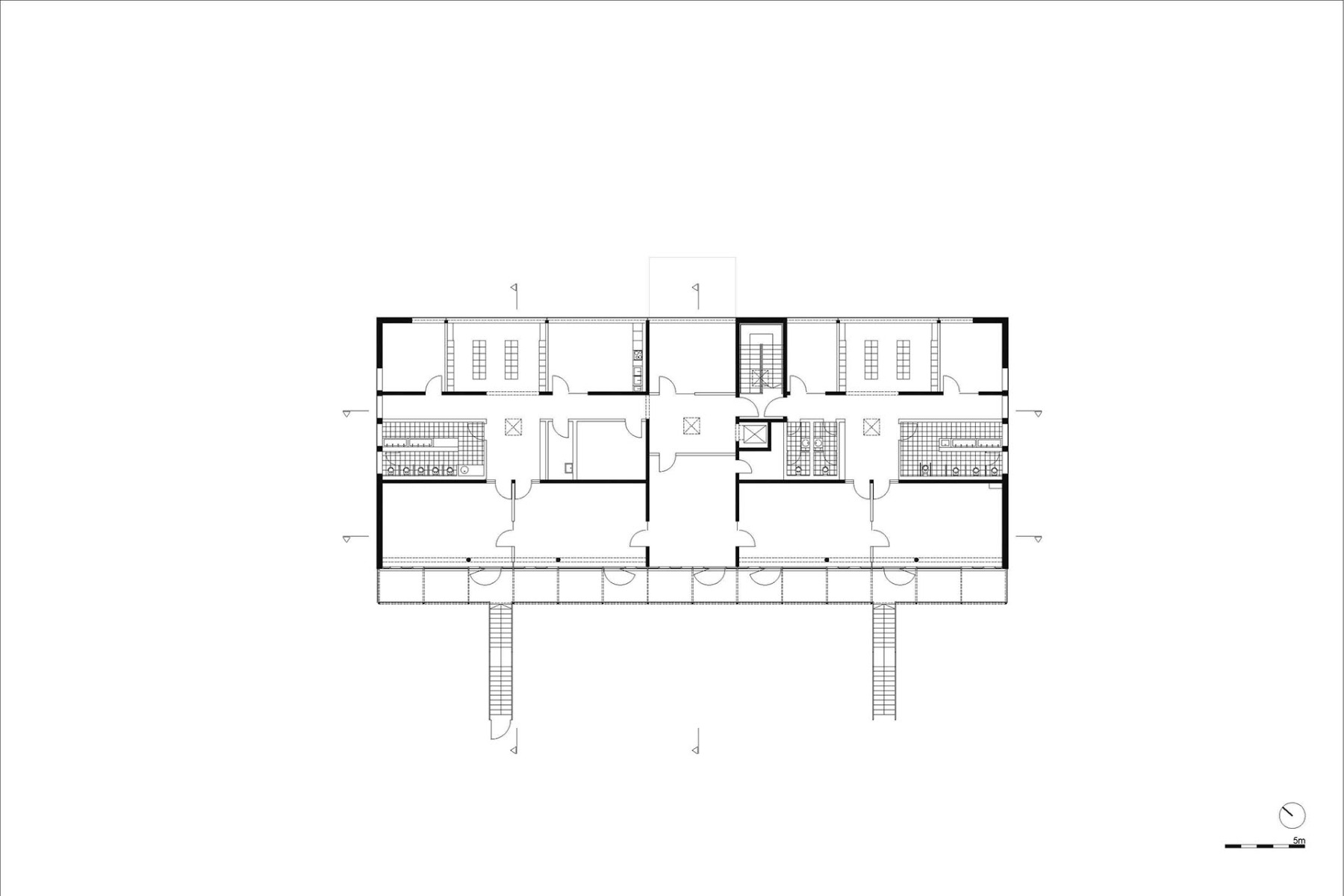
In Leipzig verdichtet das Architekturbüro Aline Hielscher die weitläufige Struktur einer Großwohnsiedlung durch den Bau einer zweigeschossigen Kindertagesstätte. Der Neubau fügt sich mühelos in die Hofstruktur ein, welche durch weitere zweigeschossige, bestehende Kindergärten geprägt ist.


Zur Gartenseite öffnet sich das Gebäude. © Célia Uhalde
Öffnung ins Grüne
Der Neubau ist parallel zum Fuß- und Radweg platziert, welcher als grüne Achse durch das Quartier führt. Durch die Ausrichtung entsteht ein gefasster Gartenbereich zur Rückseite des Hauses. Die zwei Hauptfassaden sind dementsprechend unterschiedlich gestaltet. Zum Weg hin zeigt sich die Fassade geschlossener mit Fensterbändern und dem Haupteingang, der durch seine farbige Gestaltung ins Gebäude leitet. Gartenseitig öffnet sich das Gebäude mit großen Glasfassaden, welche die Jahreszeiten für die Kinder erlebbar machen.
Kommunikativer Laubengang
Ein vorgestellter Laubengang dient der großen Glasfassade als konstruktiver Sonnenschutz. Als überdachte Vorzone bildet er einen Pufferraum zwischen Innen und Außen und ermöglicht Sichtbeziehungen zwischen den Ebenen. Zwei großzügige Treppen verbinden den Laubengang im Obergeschoss mit dem Garten.


Zurückhaltende Material- und Farbwahl, © Célia Uhalde
Der Haupteingang bildet zusammen mit dem angeschlossenen Bewegungsraum eine Lichtachse zum Garten hin. Von dieser Hauptachse geht ein zentraler Flur ab, der sich durch die Garderoben und Vorzonen der Gruppenräume immer wieder aufweitet und Ausblicke nach außen generiert. Die Vorzonen werden im Obergeschoss durch Oberlichter zusätzlich belichtet. Dies gilt auch für die innenliegende Treppe, an der sich das Büro der Kindergartenleitung befindet.


Innenraum der Kindertagesstätte, © Célia Uhalde
Natürliche Farben und Materialien
Die Farbensprache ist zurückhaltend und natürlich ausformuliert. Der Farbton der eloxierten Aluminiumfenster und -türen trifft auf den Besenstrich der geputzten Fassade und wird durch die weiße Balkonanlage abgerundet. Im Inneren trifft das Fichtenholz der Pfosten-Riegel-Fassade mit dem hellen Grau des Linoleumbodens zusammen und wird in den Bädern durch pastellgrüne Fliesen ergänzt. Aline Hielscher hat bereits ähnliche Projekte im Bestand realisiert. Durch die Umnutzung von Bestandsbauten entsteht dabei eine neue Dichte im Quartier. Die Quartiers-Kita schafft dies in Form eines Neubaus, der einen Mehrwert für die gesamte Großwohnsiedlung bildet.
Architektur: Aline Hielscher Architektur
Bauherr: Stadt Leipzig Amt für Schule
Standort: Leipzig (DE)
Tragwerksplanung: Gruner
Brandschutzplanung: Bauplanung Leipzig, Ingenieurbüro J. Zimmermann
HLS-Planung: Dieter Quellmalz
Freianlagenplanung: Fagus GmbH
ELT: Planungsbüro Ling
Küchenplanung: Triebe und Triebe GbR













