// Check if the article Layout ?>
Kleines Budget für kleinen Raum: Ferienhütte aus Polycarbonat
Foto: Juan Durán Sierralta
Eingefügt auf einem bestehenden Grundstück, unmittelbar neben einem weiteren Ferienhaus ließ Alejandro Soffia nun erneut einen ausgetüftelten und effizienten Wohnraum für ein bis zwei Personen entstehen. Angedockt an einen bereits bestehenden neun Quadratmeter großen Raum mit Blick aufs Meer und einer transluzenten Schale geht die Hütte auf Tuchfühlung mit ihrer Umgebung. Ohne große technische Anforderungen und mit minimalem Budget wurde sie von Beginn des Entwurfsprozesses an auf einen einzigen Handwerker zugeschnitten, der in der Lage war, alle Bauarbeiten mit lokalen Materialien innerhalb zweier Monate selbst durchzuführen. Dies führte zu Kostenmimierung und begünstigte eine einheitliche Ausführung.
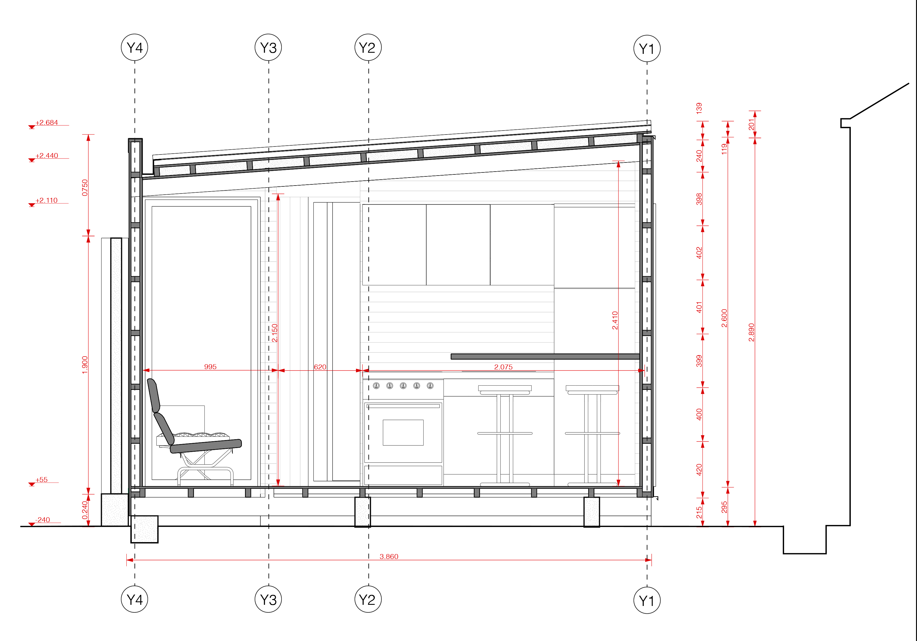
Der zum Meer gewandte Wohnraum ermöglicht nicht nur Ausblick, sondern vor allem eine optische Erweiterung nach draußen, sodass sich der Innenraum bildhaft bis zum Meer hin erweitern kann. Das rückseitig gelegene Schlafzimmer erlaubt hingegen Rückzug und Ruhe. Während Wände und Boden mit Kiefertafeln bestückt sind, bildet die Längswand aus Polycarbonat eine lichtdurchlässige, transluzente Fassadenseite. Da das schmale Grundstück neben der kleinen Fläche vor allem wenig Sonnenlicht bietet, gelingt es so, dem Innenraum mehr Licht zuzuführen und den sehr schmalen Durchgang zur angrenzenden Bebauung zusätzlich großzügiger erscheinen zu lassen. Dort, wo der bestehende und der neue Raum aufeinandertreffen entsteht zudem eine weitere Lichtquelle und einen kleiner Patio. Anders als mit opaker Wandscheibe entsteht ein Wechselspiel zwischen Ort und Gebäude. Schatten und Licht zeichnen sich ab und lassen die Grenzen verschwimmen. Auch die Materialien Kiefernholz und Polycarbonat wechseln sich ab und ergänzen sich dabei in ihrer Unterschiedlichkeit: Das natürliche Holz gibt ein vertrautes und schützendes Gefühl, die Künstlichkeit des Polycarbonats hingegen erlaubt eine atmosphärische Belichtung ohne direkte Einblicke – was das Holz nicht leisten kann, ergänzt der Kunststoff und umgekehrt. So gelingt dem Architekten mit dem bewussten Einsatz bestimmter Materialien in Abhängigkeit zu Budget und Wirkung in erster Linie ein funktionaler Bau mit hohem qualitativen Anspruch. Auch der Grundriss verliert trotz Effizienz nicht an Wohnlichkeit. In der Reihe seiner Werke scheint Alejandro Soffia nun das zu erreichen, was er sich von Beginn an als Prämisse setzte – dass es eben wirklich oft die kleinen Räume sind, die ihren Bewohnern die größte Freude bereiten.
Der zum Meer gewandte Wohnraum ermöglicht nicht nur Ausblick, sondern vor allem eine optische Erweiterung nach draußen, sodass sich der Innenraum bildhaft bis zum Meer hin erweitern kann. Das rückseitig gelegene Schlafzimmer erlaubt hingegen Rückzug und Ruhe. Während Wände und Boden mit Kiefertafeln bestückt sind, bildet die Längswand aus Polycarbonat eine lichtdurchlässige, transluzente Fassadenseite. Da das schmale Grundstück neben der kleinen Fläche vor allem wenig Sonnenlicht bietet, gelingt es so, dem Innenraum mehr Licht zuzuführen und den sehr schmalen Durchgang zur angrenzenden Bebauung zusätzlich großzügiger erscheinen zu lassen. Dort, wo der bestehende und der neue Raum aufeinandertreffen entsteht zudem eine weitere Lichtquelle und einen kleiner Patio. Anders als mit opaker Wandscheibe entsteht ein Wechselspiel zwischen Ort und Gebäude. Schatten und Licht zeichnen sich ab und lassen die Grenzen verschwimmen. Auch die Materialien Kiefernholz und Polycarbonat wechseln sich ab und ergänzen sich dabei in ihrer Unterschiedlichkeit: Das natürliche Holz gibt ein vertrautes und schützendes Gefühl, die Künstlichkeit des Polycarbonats hingegen erlaubt eine atmosphärische Belichtung ohne direkte Einblicke – was das Holz nicht leisten kann, ergänzt der Kunststoff und umgekehrt. So gelingt dem Architekten mit dem bewussten Einsatz bestimmter Materialien in Abhängigkeit zu Budget und Wirkung in erster Linie ein funktionaler Bau mit hohem qualitativen Anspruch. Auch der Grundriss verliert trotz Effizienz nicht an Wohnlichkeit. In der Reihe seiner Werke scheint Alejandro Soffia nun das zu erreichen, was er sich von Beginn an als Prämisse setzte – dass es eben wirklich oft die kleinen Räume sind, die ihren Bewohnern die größte Freude bereiten.
weitere Informationen:
Assistenz: Francesco Borghi
Handwerk: Lino Alvarado
Projektgröße: 30 m²
Budget: 365 US-Dollar/m²
Fotos: Juan Durán Sierralta
Assistenz: Francesco Borghi
Handwerk: Lino Alvarado
Projektgröße: 30 m²
Budget: 365 US-Dollar/m²
Fotos: Juan Durán Sierralta






















