// Check if the article Layout ?>
Kleines Universum: Wohnhaus »Around the Corner Grain« in Saitama
Foto: Ookura Hideki
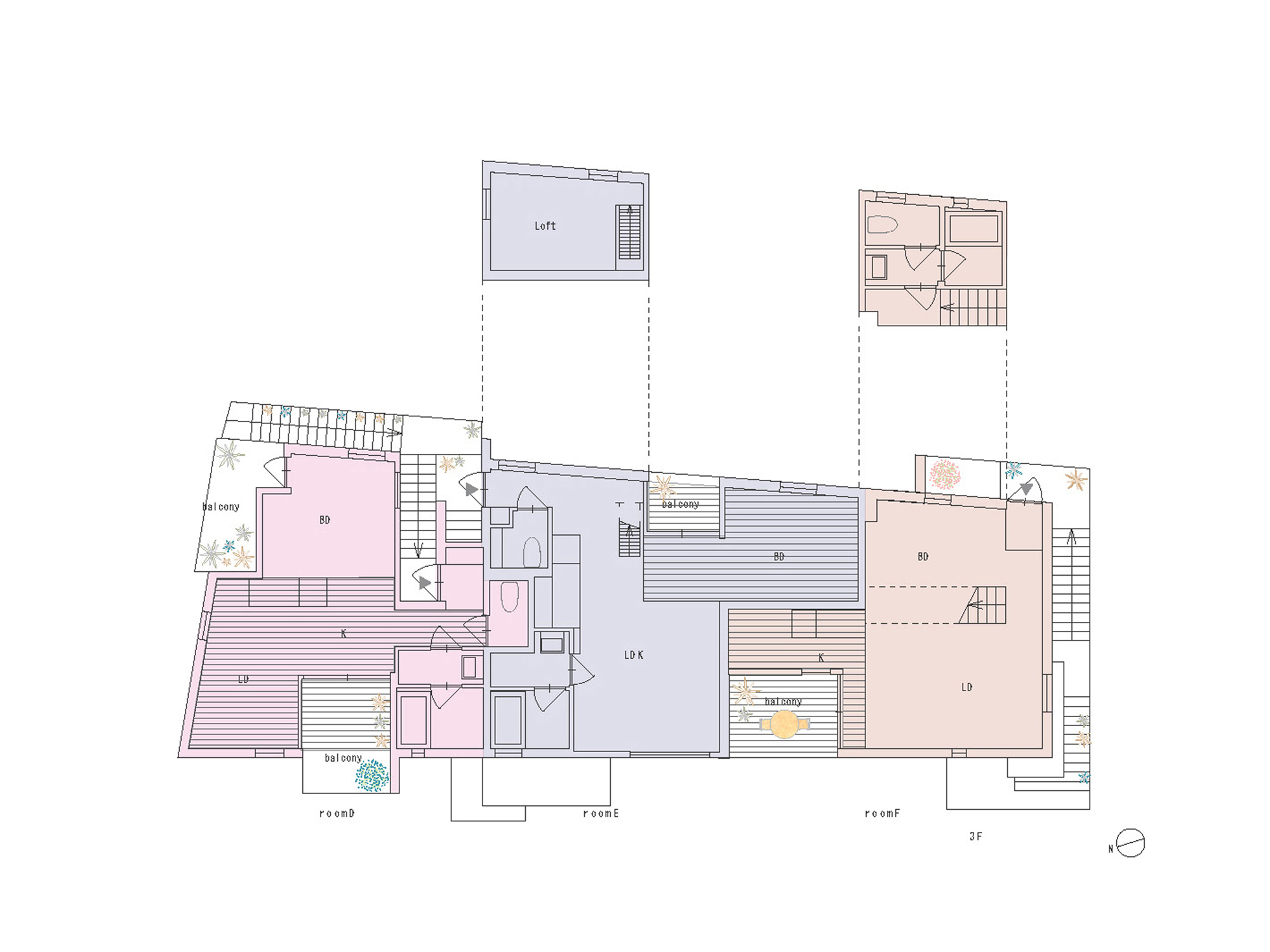
In der dicht bebauten Umgebung Saitamas sticht das Gebäude gleich in mehrfacher Hinsicht heraus. Höhe und Materialwahl, inszenierte Farbakzente und die asymmetrische Gebäudeform lassen ein ungewöhnliches Gebäude mit sozialem Konzept entstehen. Die Struktur ermöglicht ein offenes Erdgeschoss, das sich wie der Gebäudename bereits suggeriert, teilweise sogar um die Ecke herumzieht. Drei Außentreppen führen die Bewohner auf unterschiedlichen Wegen zu ihren sehr unterschiedlichen Wohnungen.
Es war in erster Linie das Zusammenspiel aus regionalen Gegebenheiten wie Licht und Grundstücksausrichtung, das die unterschiedlichen Wohn- und Außenräume gleichermaßen generiert hat. Konstruktiv getragen durch eine Stahlstruktur und einzelne Pilotis entstehen weite Auskragungen in den oberen Geschossen und ein offenes, öffentliches Erdgeschoss. Der Straßenraum wird so zum wesentlichen Bestandteil des Gebäudes und schafft halböffentliche Gemeinschaftsräume. Um die, durch die Ecksituation verlorene Masse des Erdgeschosses auszugleichen, ist der Bau an vereinzelten Stellen höher gezogen. Es musste also ein Weg gefunden werden, die strikten Vorgaben der Bauhöhe zu umgehen. Dazu dienten Kalkulationen der Gebäudemasse mithilfe der Ermittlung des sogenannten »Sky-Factors«, bei denen analysiert wurde, wie hoch und breit gebaut werden konnte ohne die Sicht der Nachbarn auf den Himmel zu beeinflussen. Die reflektierende Fassade gibt seiner Umgebung zusätzlich verlorenes Tageslicht zurück. In Kontrast dazu stehen die teilweise rot gestrichenen Flächen, die Zu- und Durchgänge zu den Wohneinheiten innerhalb der Struktur bilden. Diese Windschleusen sollen die Wohnungen zusätzlich belüften. Die, durch die Gegebenheiten unregelmäßige Form des Gebäudes mit offenen Räumen auf dem Dach und offenen Räumen im Erdgeschoss schafft eine verspielte Gebäudeform, die das Straßenbild aufbricht und sozial freundliche Räumlichkeiten schafft. Den Architekten war es wichtig für Bewohner und Besucher gleichermaßen Raum zu schaffen. So sind auch einige der Außenräume innerhalb des Gebäudes öffentlich zugänglich. Details wie die Geländer der Balkone oder die Podeste der Treppen werden den Bewohnern zur freien Gestaltung gelassen. So können sie ihrem eigenen Lebensraum individuellen Ausdruck verleihen. Außerdem wurden die öffentlichen Plätze für die freie Gestaltung von Cafés oder Ständen entworfen. So verändert die Interaktion der Bewohner mit ihrer Umwelt kontinuierlich auch das Gebäude. Es entsteht ein einzigartiger Baukörper, der einer Landschaft an Möglichkeiten im Austausch der Bewohner mit ihrer Umwelt gleicht.
Es war in erster Linie das Zusammenspiel aus regionalen Gegebenheiten wie Licht und Grundstücksausrichtung, das die unterschiedlichen Wohn- und Außenräume gleichermaßen generiert hat. Konstruktiv getragen durch eine Stahlstruktur und einzelne Pilotis entstehen weite Auskragungen in den oberen Geschossen und ein offenes, öffentliches Erdgeschoss. Der Straßenraum wird so zum wesentlichen Bestandteil des Gebäudes und schafft halböffentliche Gemeinschaftsräume. Um die, durch die Ecksituation verlorene Masse des Erdgeschosses auszugleichen, ist der Bau an vereinzelten Stellen höher gezogen. Es musste also ein Weg gefunden werden, die strikten Vorgaben der Bauhöhe zu umgehen. Dazu dienten Kalkulationen der Gebäudemasse mithilfe der Ermittlung des sogenannten »Sky-Factors«, bei denen analysiert wurde, wie hoch und breit gebaut werden konnte ohne die Sicht der Nachbarn auf den Himmel zu beeinflussen. Die reflektierende Fassade gibt seiner Umgebung zusätzlich verlorenes Tageslicht zurück. In Kontrast dazu stehen die teilweise rot gestrichenen Flächen, die Zu- und Durchgänge zu den Wohneinheiten innerhalb der Struktur bilden. Diese Windschleusen sollen die Wohnungen zusätzlich belüften. Die, durch die Gegebenheiten unregelmäßige Form des Gebäudes mit offenen Räumen auf dem Dach und offenen Räumen im Erdgeschoss schafft eine verspielte Gebäudeform, die das Straßenbild aufbricht und sozial freundliche Räumlichkeiten schafft. Den Architekten war es wichtig für Bewohner und Besucher gleichermaßen Raum zu schaffen. So sind auch einige der Außenräume innerhalb des Gebäudes öffentlich zugänglich. Details wie die Geländer der Balkone oder die Podeste der Treppen werden den Bewohnern zur freien Gestaltung gelassen. So können sie ihrem eigenen Lebensraum individuellen Ausdruck verleihen. Außerdem wurden die öffentlichen Plätze für die freie Gestaltung von Cafés oder Ständen entworfen. So verändert die Interaktion der Bewohner mit ihrer Umwelt kontinuierlich auch das Gebäude. Es entsteht ein einzigartiger Baukörper, der einer Landschaft an Möglichkeiten im Austausch der Bewohner mit ihrer Umwelt gleicht.
weitere Informationen:
Tragwerk:Nakahata Atsuhiro
Umweltingenieur:Hori Eisuke
Größe: 235.42m²
Fotos: Ookura Hideki
Tragwerk:Nakahata Atsuhiro
Umweltingenieur:Hori Eisuke
Größe: 235.42m²
Fotos: Ookura Hideki




























