Klinkerensemble: Hamburger Schulcampus von AllesWirdGut
Foto: tschinkersten fotografie
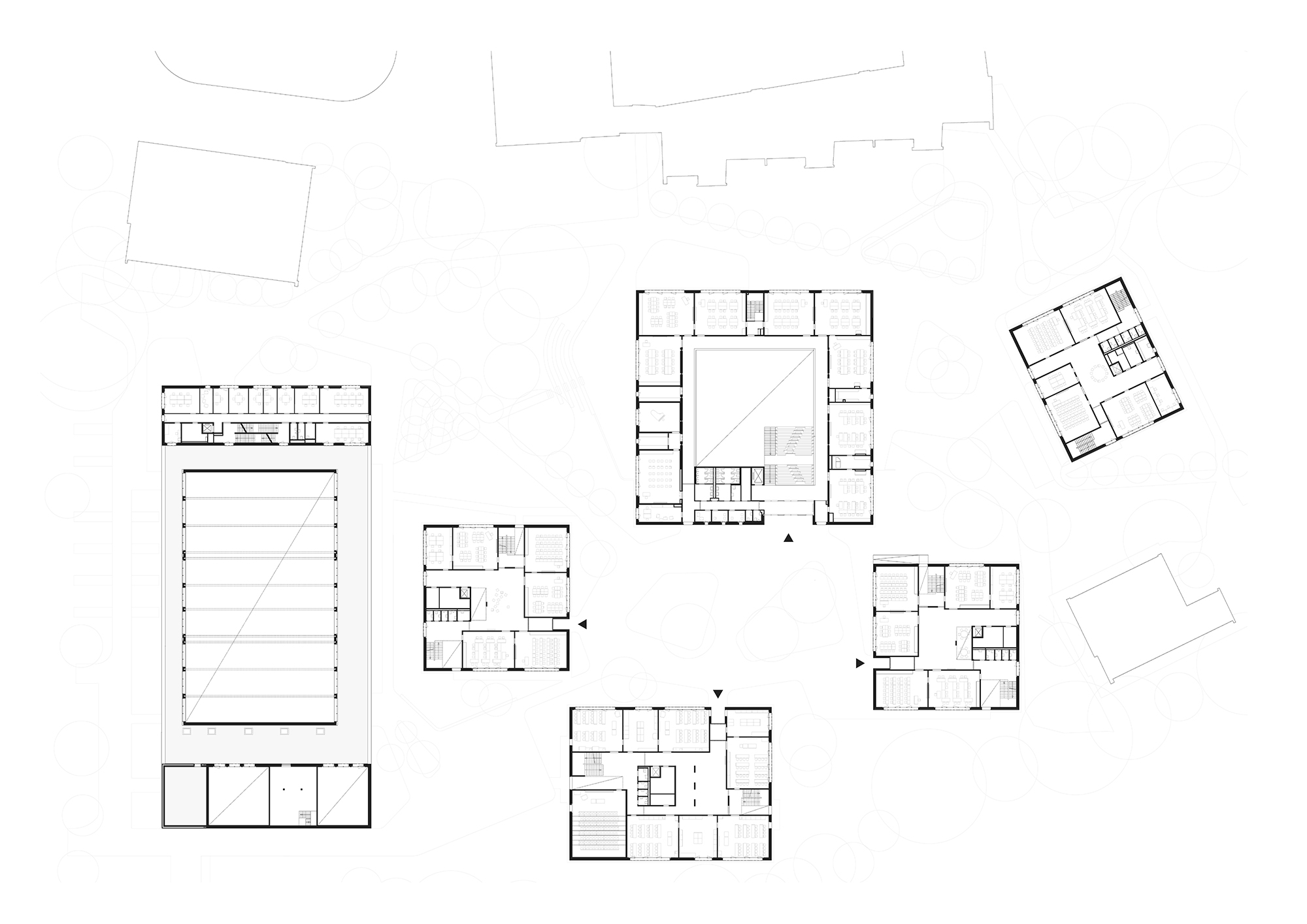
Der neue Schulcampus befindet sich im Hamburger Süden auf einem weitläufigen Grundstück mit bewegter Topografie. Dort erweitern die Architekten einen bestehenden Trakt des Alexander-von-Humboldt-Gymnasiums im Norden um sechs rechteckige Solitäre. Diese sind versetzt zueinander angeordnet und passen sich mit leicht gestaffelten Höhen an das abwechslungsreiche Gelände an. Die einzelnen Baukörper werden von einheitlichen, rostroten Klinkerfassaden zu einem stimmigen Ensemble zusammengefasst. Weiße Ziegel komplettieren die Ansichten. Sie umrahmen die Fensterflächen und setzen helle Akzente. Die Landschaftsplaner DnD konzipieren die Außenräume rund um die einzelnen Gebäude mit Biotop, Freilufttheater, Anbauflächen, Sitzgelegenheiten und Bepflanzung und lassen so Alt und Neu miteinander verschmelzen.
Das Herzstück und Bindeglied zwischen der Stadtteilschule und dem Gymnasium bildet das Mehrzweckgebäude am Nordrand des Campus. Rund um die zentrale Mensa und Aula ordnen sich eine Küche, Musik- und Kreativräume an. In südlicher Richtung schließen die übrigen Bauten an. Neben einer großen Sporthalle mit drei Feldern gibt es drei Unterrichts-, sowie ein Fachklassengebäude. Deren interne Organisation beruht auf dem gleichen Prinzip – ein mittiges Atrium erschließt die außenseitig positionierten Klassenräume und schafft einen kommunikativen Treffpunkt, in dem sich die Schüler begegnen, austauschen und gemeinsam lernen können. Nischen und Gemeinschaftszonen schaffen abwechslungsreiche Lernlandschaften für die Schüler der beiden Schulen.
Durch das Innere der Gebäude zieht sich eine einheitliche Gestaltung. Hellgraue Sichtbetonoberflächen ergänzen weiße Wände und helle Akustikdecken. Warmes Holz kleidet die Fensterrahmen in den Klassenzimmern und findet sich in Form von kleinen Details wie Handläufen oder den Sitzstufen in der zentralen Aula wieder.





















