// Check if the article Layout ?>
Komposition mit Gelb: Haus für Stephanie & Kevin in Haaltert
Foto: Atelier Vens Vanbelle
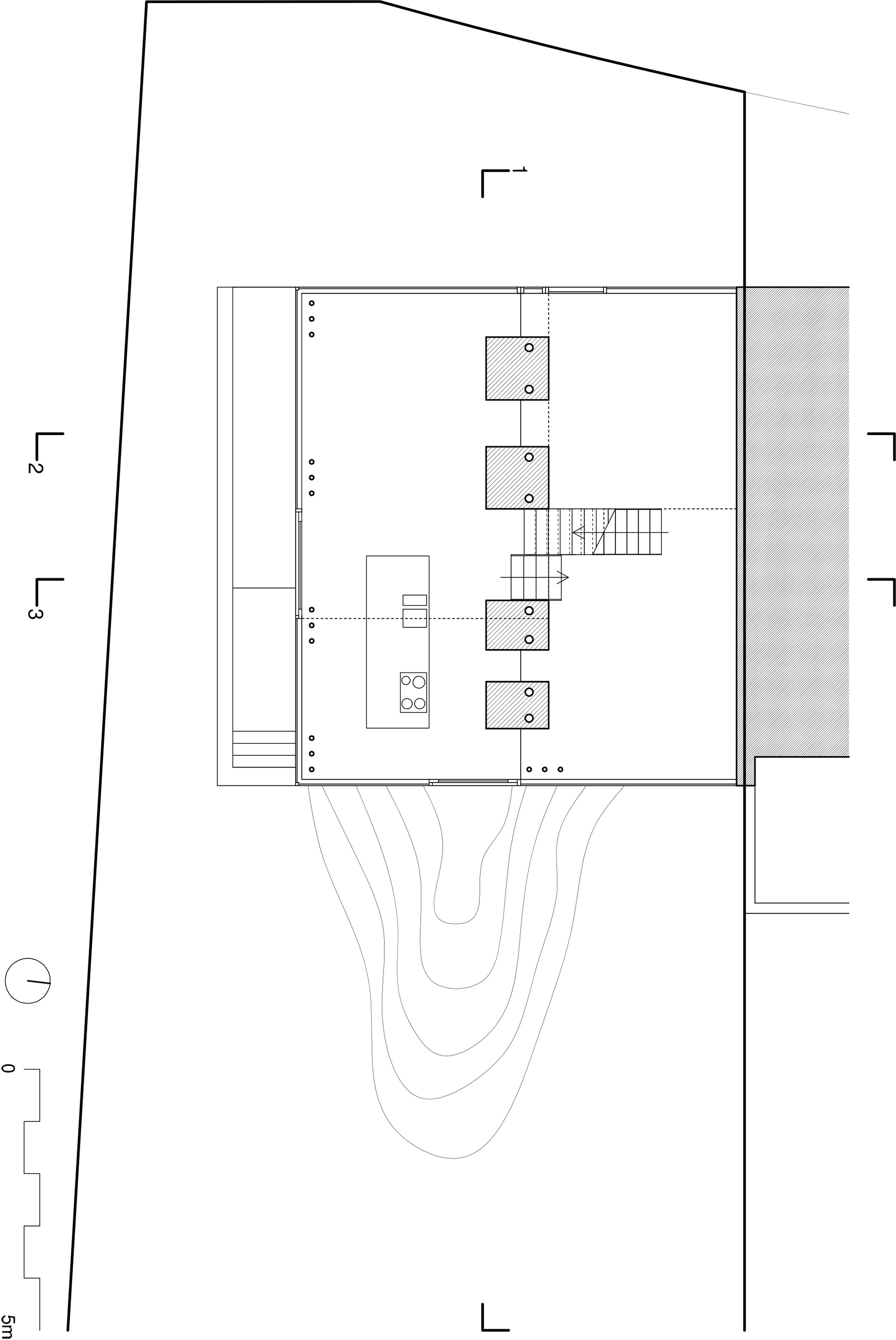
Das Wohnhaus für eine junge Familie ist mit mehreren Split-Levels gebaut, sodass faszinierende Beziehungen zwischen den verschiedenen Ebenen entstehen. Das Wohnzimmer befindet sich im ersten Obergeschoss, über einem Volumen, das aus Betonbausteinen konstruiert ist. Im unteren Bereich platzieren Dries Vens und Maarten Vanbelle ein geräumiges Arbeitsstudio, eine halbe Etage höher – im Erdgeschoss – liegt die Eingangshalle und Waschküche.
Den dreiseitig verglasten Wohnraum konzipieren die Architekten als eine »Bühne«: Das Sonnenlicht kommt den ganzen Tag hinein und vermittelt ein Gefühl von Verbundenheit mit der umgebenden Landschaft. Um dem Raum jedoch die nötige Intimität zu verleihen, wurden Boden, Wand und Decke mit Parkettdielen verkleidet. Drei Schlafzimmer und Badezimmer liegen im oberen Hausbereich. Die Fassadengestaltung folgt einem didaktischen Anspruch: Die einzelnen Hausebenen und Funktionen lassen sich deutlich an unterschiedlich gestalteten Fassadenoberflächen ablesen.
















