Baustein der Stadterneuerung
Kongresszentrum Brügge von Souto de Moura und Meta
Meeting and Convention Centre BMCC, META architectuurbureau and Eduardo Souto de Moura, © Filip Dujardin
Lorem Ipsum: Zwischenüberschrift
Nach 55-jähriger Interimslösung haben Eduardo Souto de Moura und Meta architectuurbureau Brügge ein zeitgemäßes Kongress- und Ausstellungszentrum beschert. Auch die umliegenden Freiflächen und Häuserzeilen wurden im Zuge dessen saniert. Seit 1966 existierte in der flämischen Hansestadt ein temporärer Ausstellungsbau am südwestlichen Altstadtrand. Mit dem Abriss des Dauerprovisorium fiel 2017 der Startschuss nicht nur für den Neubau der portugiesisch-belgischen Architekten-Arbeitsgemeinschaft, sondern auch für die Sanierung des umliegenden Wohnquartiers.


Meeting and Convention Centre BMCC, META architectuurbureau and Eduardo Souto de Moura, © Filip Dujardin
Lorem Ipsum: Zwischenüberschrift
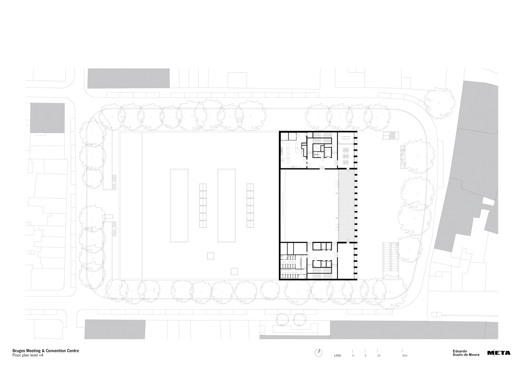
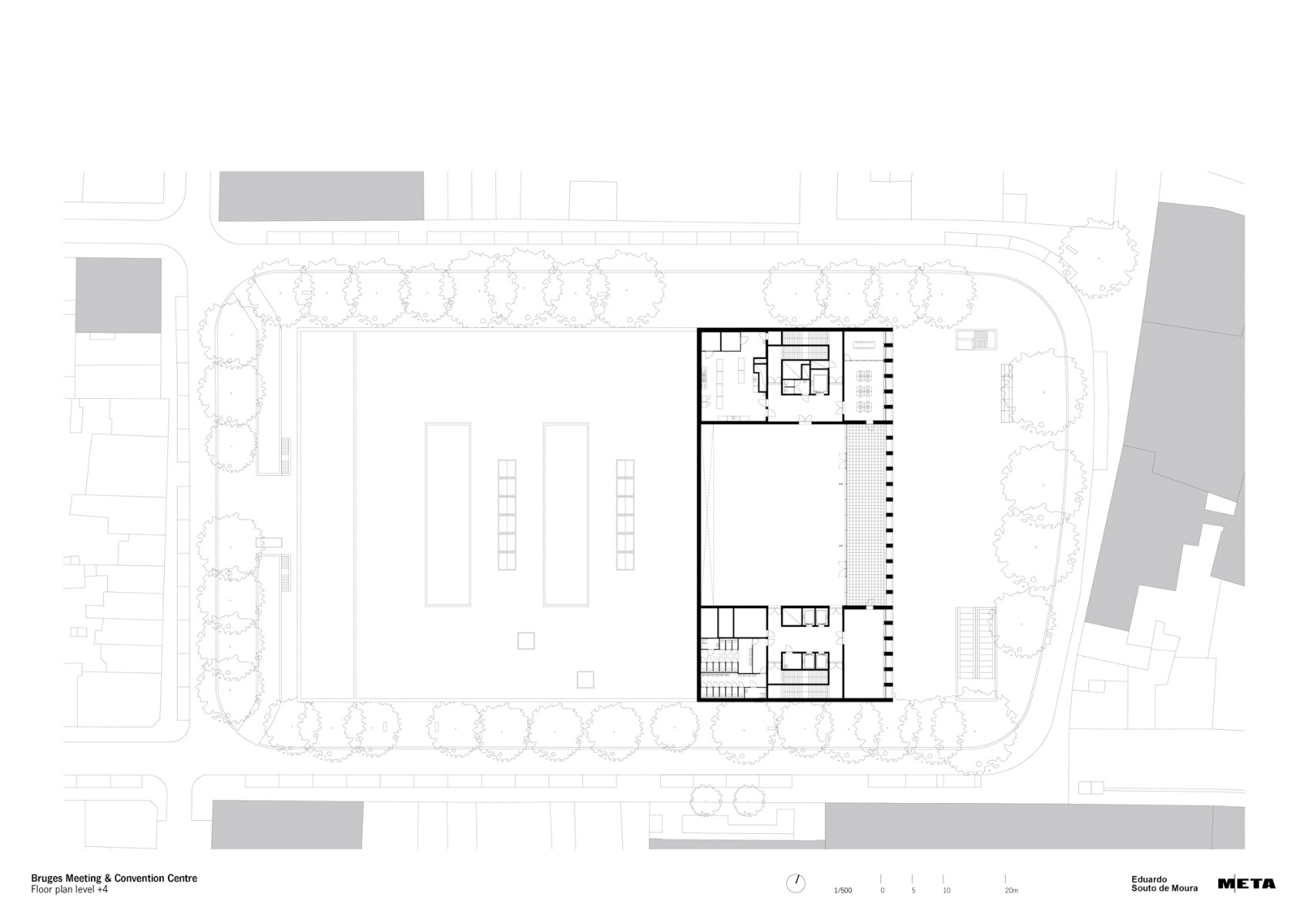
Das neue Kongresszentrum umfasst eine 4500 m² große Ausstellungshalle im Erdgeschoss sowie Konferenzräume für 500 Personen in dem auf der Ostseite viergeschossig aufragenden Kopfbau. Letzterer kragt weit über den Vorplatz aus und bildet so eine witterungsgeschützte Eingangssituation vor dem eigentlichen, verglasten Foyer. Die dahinter liegende Halle lässt sich nach allen Seiten zum Platz hin öffnen.
Lorem Ipsum: Zwischenüberschrift
Auf die Obergeschosse verteilen sich ein Auditorium mit 500 Plätzen in einfahrbaren Sitzreihen, zwölf unterteilbare Konferenzräume sowie ein 675 m² großer Cateringbereich mit angrenzender Dachterrasse. In allen drei Bereichen – Vortragssaal, Konferenz und Restaurant – steht die gleiche Anzahl Sitzplätze zur Verfügung.


Meeting and Convention Centre BMCC, META architectuurbureau and Eduardo Souto de Moura, © Filip Dujardin
Lorem Ipsum: Zwischenüberschrift
Den Fassaden gaben die Architekten eine überaus stringente Gliederung: Über der gedrungen wirkenden Erdgeschosszone aus Glas und dunklem Metallblech ragen weitgehend geschlossene Ziegelmauern auf, die die durchaus bewegte Dachsilhouette mit ihren Oberlichtaufbauten den Blicken entziehen. Nur auf der Eingangsseite im Osten löst sich die Gebäudehülle in mehrgeschossige Ziegelpilaster auf, hinter denen die Glasfassade des Kongressbereichs sowie die eingerückte Dachterrasse sichtbar werden. Die Materialwahl ist – natürlich – eine Referenz an die vielen Ziegelfassaden nicht nur der umliegenden Wohnhäuser, sondern auch der nahen Altstadt.


Meeting and Convention Centre BMCC, META architectuurbureau and Eduardo Souto de Moura, © Filip Dujardin


Meeting and Convention Centre BMCC, META architectuurbureau and Eduardo Souto de Moura, © Filip Dujardin
Lorem Ipsum: Zwischenüberschrift
Einen markanten Kontrast zum Kopfsteinpflaster des historischen Brügge schufen die Architekten dagegen mit dem Platzbelag rund um ihren Neubau: Er besteht aus großformatigen Waschbetonplatten, die fast nahtlos in den geglätteten Betonfußboden des Eingangsfoyers und der Ausstellungshalle übergehen. Eine Herausforderung bei der Neugestaltung des Platzes lag darin, dass die 38 dort wachsenden Buchen erhalten bleiben sollten.


Meeting and Convention Centre BMCC, META architectuurbureau and Eduardo Souto de Moura, © Filip Dujardin
Lorem Ipsum: Zwischenüberschrift
Zur Energieversorgung des Neubaus trägt eine 240 kWp-Photovoltaikanlage auf dem Dach bei, die größte auf einem öffentlichen Gebäude in der Stadt. Betrieben wird sie durch eine Genossenschaft, an der sich alle Stadtbewohner in Form von Anteilen im Wert von je 250 Euro beteiligen konnten.
Architektur: Eduardo Souto de Moura, META architectuurbureau
Bauherr: Stadt Brügge
Standort: Beursplein 1, 8000 Brugge (BE)
Tragwerksplanung: Mouton, Afaconsult
Projektentwicklung: CFE
Landschaftsarchitektur: Landinzicht Landschapsarchitecten
TGA-Planung: hp engineers
Akustik, Bauphysik, Energiekonzept: Daidalos Peutz
Generalunternehmung: MBG



























