// Check if the article Layout ?>
Kontrastreiche Symbiose: Kulturzentrum Beaumont-Hague
Foto: Sergio Grazia
Das Entwurfskonzept beruht auf einer quadratischen Grundform. 43 Meter in Länge und Breite umschreiben den Bau, die Höhe beläuft sich auf 11 Meter. Die Fassaden sind großteils durch vertikale Betonungen bestimmt und sorgen für einen gediegenen, fast monumentalen Charakter. Die Glasfassade kleidet das Kulturzentrum in eine ständig wechselnde Hülle. Mal spiegelt sie die Umgebung, mal lässt sie Einblicke nach innen zu. Dem Betrachter bietet sich ein Wechselspiel aus Reflexion und Transparenz. Das eigentliche Highlight bildet ein mittiger Einschnitt: Wie ein Virus frisst sich eine rote Struktur aus eloxierten Metallpaneelen in das sonst so geradlinige Kulturzentrum und zieht damit alle Aufmerksamkeit auf sich.
Betreten wird der Bau über das Nordeck. Hier fällt der Vorplatz zum dort gelegenen Eingang hin leicht ab, das Obergeschoss kragt über die Aussparung darunter und lädt so zum Ankommen.
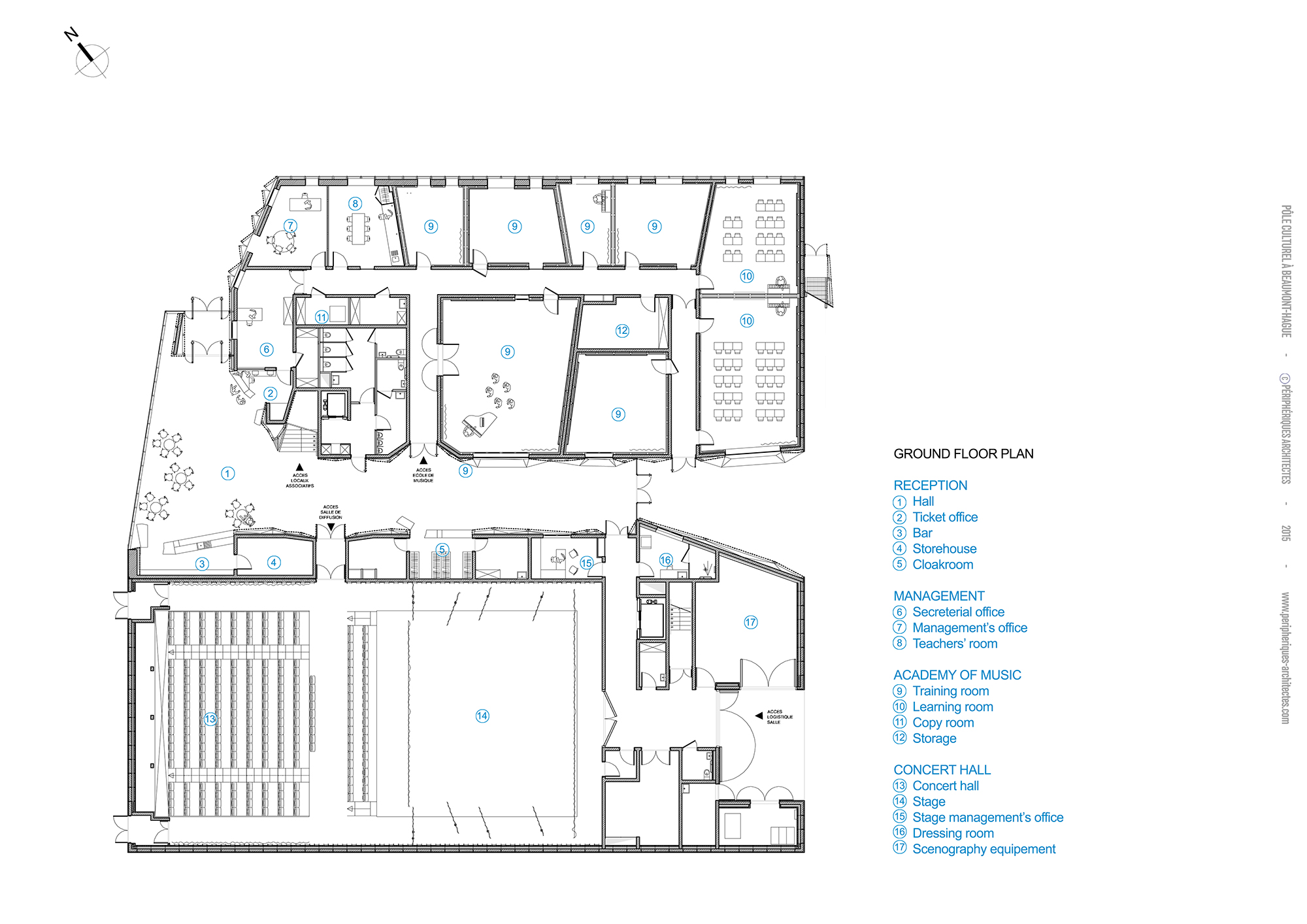
Im Inneren befinden sich auf zwei Ebenen ein großer Konzertsaal, Proberäume für Musik und Tanz, sowie Gemeinschaftsbereiche. Die roten, dreieckigen Metallpaneele formen das Herzstück des Kulturzentrums, die Lobby. Sie fungiert als zentraler, vereinender Ort, von dem aus die verschiedenen Funktionsbereiche erschlossen werden. Eine spezielle Perforierung der Paneele reguliert die Akustik, sie wirken schalldämpfend. Den Abschluss nach oben hin bilden EFTE-Membranen. Sie beeinflussen das Raumklima und lassen viel Tageslicht in den öffentlichen Bereich. Abends stellt sich der gegenteilige Effekt ein und die Beleuchtung dringt nach außen.
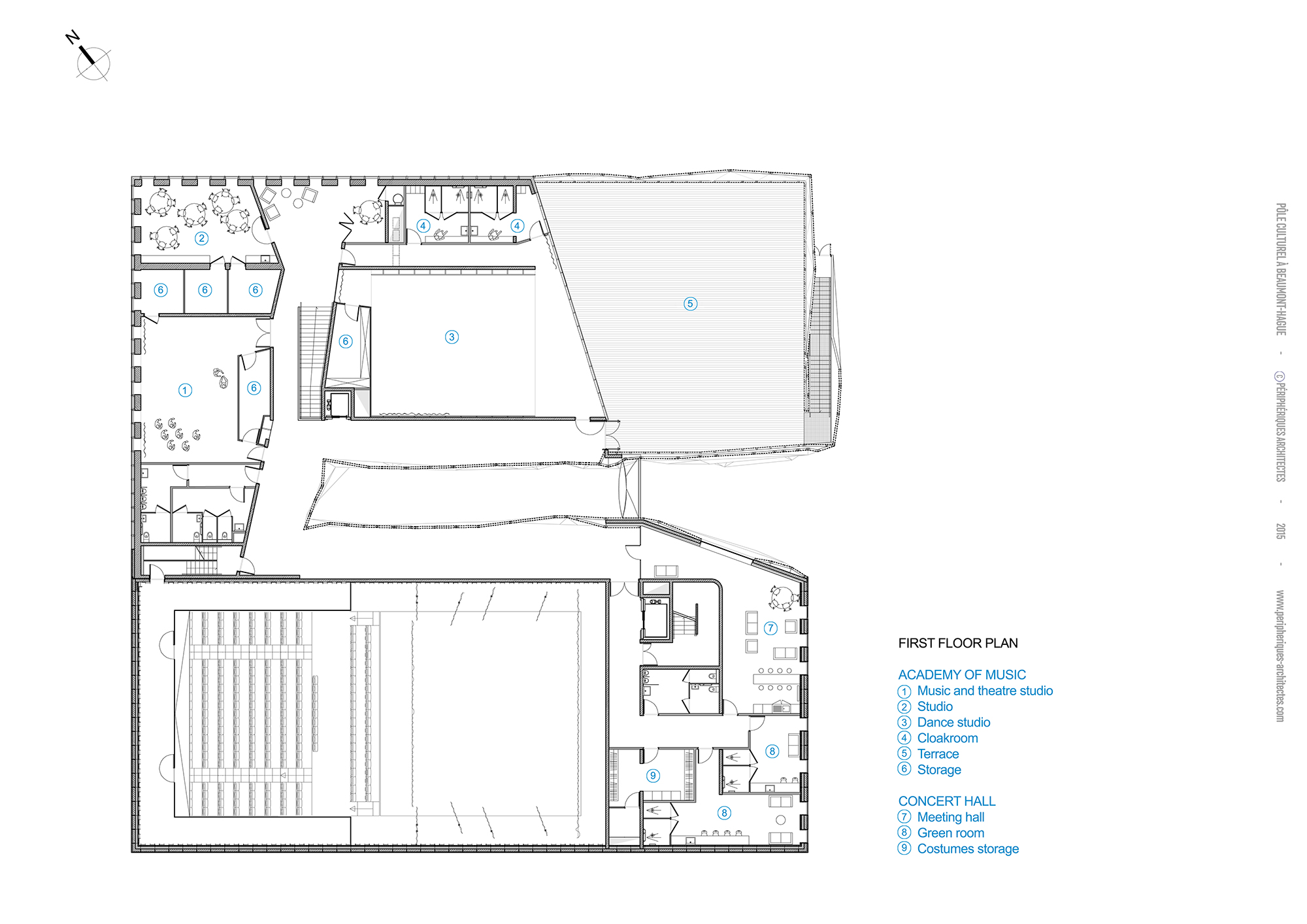
Die Lobby teilt den Bau gewissermaßen: Rechter Hand befindet sich die große Konzerthalle, die beide Geschosse umfasst. Das akustische Konzept ermöglicht uneingeschränkten Musikgenuss im Saal, ohne die übrigen Bereiche des Gebäudes zu stören. Die Halle zeigt sich nach außen als massiver Kubus. Innen wechseln sich Sichtbeton und schwarze Metallpaneele ab. An den Längsseiten sind Diffusoren in den Wänden verbaut. Links der Lobby schließen die Musikschule und diverse allgemeine Räumlichkeiten an. Im Obergeschoss gibt es einen öffentlichen Tanzsaal, der in eine Dachterrasse übergeht. Des Weiteren findet man hier private Künstlerateliers und Vereinsräume.
Bei der Materialwahl setzt man im gesamten Bau auf Nachhaltigkeit und Funktion: Zu finden sind Oberflächen aus unbehandeltem Holz, Metall und Sichtbeton. Die Proberäume sind farblich akzentuiert.
Périphérique Architekten schaffen mit dem Kulturzentrum einen Ort an dem Kreativität und Austausch groß geschrieben werden und transportieren diese Intention auch klar über den Entwurf.
Betreten wird der Bau über das Nordeck. Hier fällt der Vorplatz zum dort gelegenen Eingang hin leicht ab, das Obergeschoss kragt über die Aussparung darunter und lädt so zum Ankommen.
Im Inneren befinden sich auf zwei Ebenen ein großer Konzertsaal, Proberäume für Musik und Tanz, sowie Gemeinschaftsbereiche. Die roten, dreieckigen Metallpaneele formen das Herzstück des Kulturzentrums, die Lobby. Sie fungiert als zentraler, vereinender Ort, von dem aus die verschiedenen Funktionsbereiche erschlossen werden. Eine spezielle Perforierung der Paneele reguliert die Akustik, sie wirken schalldämpfend. Den Abschluss nach oben hin bilden EFTE-Membranen. Sie beeinflussen das Raumklima und lassen viel Tageslicht in den öffentlichen Bereich. Abends stellt sich der gegenteilige Effekt ein und die Beleuchtung dringt nach außen.
Die Lobby teilt den Bau gewissermaßen: Rechter Hand befindet sich die große Konzerthalle, die beide Geschosse umfasst. Das akustische Konzept ermöglicht uneingeschränkten Musikgenuss im Saal, ohne die übrigen Bereiche des Gebäudes zu stören. Die Halle zeigt sich nach außen als massiver Kubus. Innen wechseln sich Sichtbeton und schwarze Metallpaneele ab. An den Längsseiten sind Diffusoren in den Wänden verbaut. Links der Lobby schließen die Musikschule und diverse allgemeine Räumlichkeiten an. Im Obergeschoss gibt es einen öffentlichen Tanzsaal, der in eine Dachterrasse übergeht. Des Weiteren findet man hier private Künstlerateliers und Vereinsräume.
Bei der Materialwahl setzt man im gesamten Bau auf Nachhaltigkeit und Funktion: Zu finden sind Oberflächen aus unbehandeltem Holz, Metall und Sichtbeton. Die Proberäume sind farblich akzentuiert.
Périphérique Architekten schaffen mit dem Kulturzentrum einen Ort an dem Kreativität und Austausch groß geschrieben werden und transportieren diese Intention auch klar über den Entwurf.
Weitere Informationen:
Mitarbeiter: Charlotte Lefebvre, Anne Clerget, Julia Winding, Emilie Murphy, Alfredo Luvison, Anatole Jeannot, Thomas Dantec, Yann Peter, Alexandre Pascal, Mernoush Naraghi, Estelle Grange-Dubellé





















