// Check if the article Layout ?>
Konzerthaus am Fluss: White Oak Music Hall von Schaum/Shieh
Foto: Peter Molik
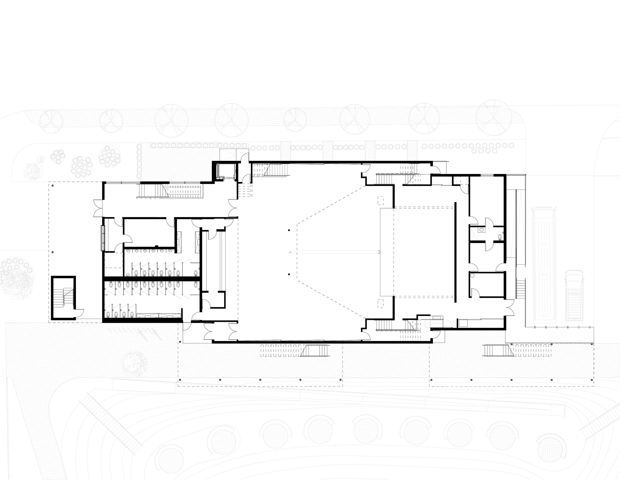
Die White Oak Music Hall ist eine von drei baulichen Maßnahmen vor Ort, die von Schaum/Shieh entworfen wurden. Als Hauptgebäude fungiert sie als Anker für den Rest des Veranstaltungsensembles. Zur langen Seite hin präsentiert sich das Konzerthaus schlicht und fast komplett geschlossen. Es besteht aus drei Kuben mit Pultdächern – einer davon um 90 Grad gedreht.
Die Fassade ist mit weißen und teils grauen, horizontal verlaufenden Kunststoffplatten verkleidet und wird nur an wenigen Stellen im Erdgeschoss und zur Belichtung der Treppe von Fenstern durchbrochen. Die Fassade der Schmalseite des Ensembles bildet im Erdgeschoss über Eck einen überdachten Eingangsbereich aus. Er dient als Zugang zur Lobby und zu den angrenzenden Konzertsälen. In die andere Richtung, zum Fluss und den Außenanlagen hin, ist die Fassade offener und weniger strukturiert. Ein Teil ist mit diagonalen Holzlatten verkleidet. Zwei angebaute Loggien verbinden Innen- und Außenraum und ermöglichen Besuchern einen geschützten Ausblick auf die Skyline von Houston. Von außen sind die Loggien rundherum mit Polycarbonatplatten verkleidet, was ihnen eine transluzente Leichtigkeit verleiht.
Im Inneren des Gebäudes befinden sich im Erdgeschoss die große Hauptbühne und im Obergeschoss ein kleinerer Saal für Veranstaltungen in einem intimeren Rahmen. Im großen Saal erlauben Fenster hinter der Bühne auch während des Konzerts einen Blick in den Himmel.
Im Kulturbetrieb sind alle Räume multifunktional nutzbar. Die Materialien sind bewusst nüchtern und einfach gehalten: Stahl, Holz und Beton definieren die Oberflächen. Die farbliche Ästhetik des Gebäudes ist sehr klar und strukturiert: bunte, knallige Farben in den Erschließungsbereichen leiten die Besucher durch die Räume und stehen im Kontrast zu den farblich dunkel gestalteten Vorführungs- und Technik-Räumen.
Die White Oak Music Hall ist ein Ort der Musik und des gesprochenen Wortes. Auf den verschiedenen Bühnen finden alle Genres und sowohl etablierte als auch unbekanntere Künstler ihren Platz. Die anderen beiden Gebäude auf dem Gelände sind eine Open-Air Bühne und ein Pavillon, für den ein altes Lagergebäude mit einzigartigem Turm umfunktioniert und renoviert wurde – es wurde erst vor Kurzem als letzter Teil des Ensembles eröffnet
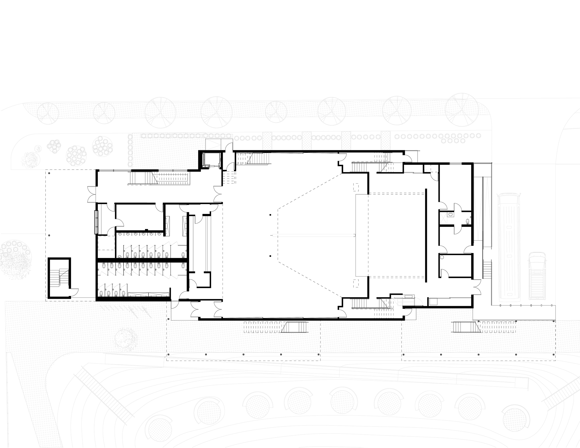
Die Fassade ist mit weißen und teils grauen, horizontal verlaufenden Kunststoffplatten verkleidet und wird nur an wenigen Stellen im Erdgeschoss und zur Belichtung der Treppe von Fenstern durchbrochen. Die Fassade der Schmalseite des Ensembles bildet im Erdgeschoss über Eck einen überdachten Eingangsbereich aus. Er dient als Zugang zur Lobby und zu den angrenzenden Konzertsälen. In die andere Richtung, zum Fluss und den Außenanlagen hin, ist die Fassade offener und weniger strukturiert. Ein Teil ist mit diagonalen Holzlatten verkleidet. Zwei angebaute Loggien verbinden Innen- und Außenraum und ermöglichen Besuchern einen geschützten Ausblick auf die Skyline von Houston. Von außen sind die Loggien rundherum mit Polycarbonatplatten verkleidet, was ihnen eine transluzente Leichtigkeit verleiht.
Im Inneren des Gebäudes befinden sich im Erdgeschoss die große Hauptbühne und im Obergeschoss ein kleinerer Saal für Veranstaltungen in einem intimeren Rahmen. Im großen Saal erlauben Fenster hinter der Bühne auch während des Konzerts einen Blick in den Himmel.
Im Kulturbetrieb sind alle Räume multifunktional nutzbar. Die Materialien sind bewusst nüchtern und einfach gehalten: Stahl, Holz und Beton definieren die Oberflächen. Die farbliche Ästhetik des Gebäudes ist sehr klar und strukturiert: bunte, knallige Farben in den Erschließungsbereichen leiten die Besucher durch die Räume und stehen im Kontrast zu den farblich dunkel gestalteten Vorführungs- und Technik-Räumen.
Die White Oak Music Hall ist ein Ort der Musik und des gesprochenen Wortes. Auf den verschiedenen Bühnen finden alle Genres und sowohl etablierte als auch unbekanntere Künstler ihren Platz. Die anderen beiden Gebäude auf dem Gelände sind eine Open-Air Bühne und ein Pavillon, für den ein altes Lagergebäude mit einzigartigem Turm umfunktioniert und renoviert wurde – es wurde erst vor Kurzem als letzter Teil des Ensembles eröffnet













