// Check if the article Layout ?>
Kulturscheune an der Donau: Gemeindezentrum in Visegrad
Foto: József Lipka/Ákos Mátételki
2000 war die Finanzwelt auch in Ungarn noch in Ordnung. Die Ratsherren im 1000-jährigen Visegrad an der Donau, einst Standort eines Königspalasts 40 Kilometer nördlich von Budapest und soeben offiziell in den Rang einer Stadt gelangt, beschlossen eine groß angelegte Umgestaltung des Ortszentrums. Ein Entwurfswettbewerb wurde ausgelobt und 2008 von den Budapester Architekten a+ gewonnen. Das Neubauprogramm umfasste einen zentralen Veranstaltungsplatz, ein neues Rathaus, ein Gemeindezentrum und weitere Freianlagen.
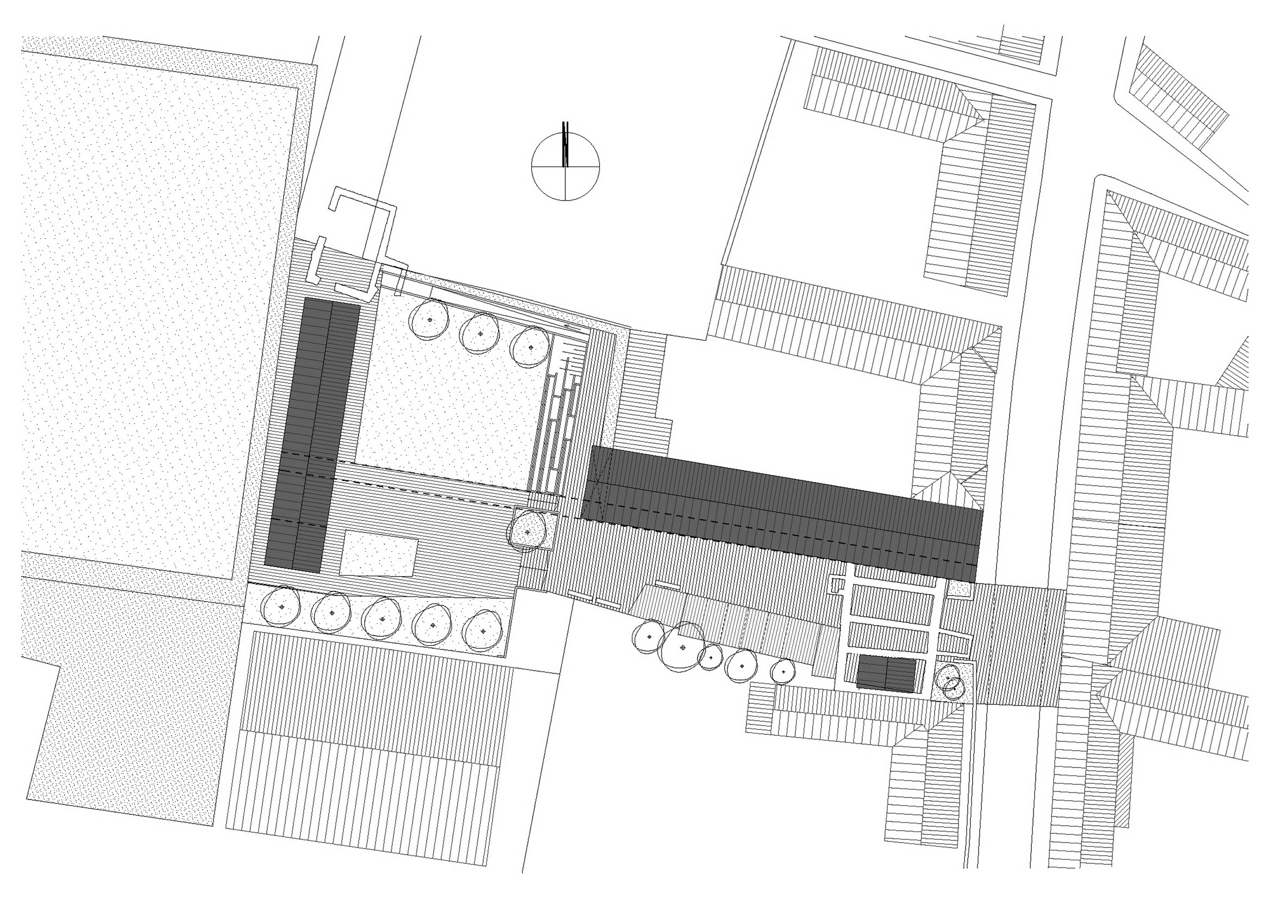
Kurz darauf brach jedoch die weltweite Finanzkrise über Europa und Ungarn herein. In Visegrad lernten die Verantwortlichen die ökonomischen Vorteile der Umnutzung von Bestandsgebäuden schätzen. Neu errichtet wurden letztlich nur ein Gemeindezentrum und ein neuer Kopfbau für das benachbarte Gesundheitszentrum. Außerdem ließen die Architekten zwei grasbewachsene Freiflächen neu anlegen, die unter anderem für Märkte sowie die jährlich in Visegrad stattfindenden Palastfestspiele – ein Reiterturnier nach mittelalterlichem Vorbild – genutzt werden. Den Zusammenhang zwischen den beiden Neubauten stellen vor allem ihre Materialien – Holz und Ziegeldächer – her. Die Erweiterung des Gesundheitszentrums beherbergt eine Fluchttreppe hinter einer halboffenen Verkleidung aus Holzlatten. Ein sehr ähnliches Konstruktionsprinzip wählten die Architekten auch für das eingeschossige Gemeindezentrum. Der Holzskelettbau lässt sich mithilfe großer, holzverkleideter „Scheunentore“ zu beiden Seiten ins Freie auf die beiden Veranstaltungsplätze hin öffnen. Nur die beiden Gebäudeenden bleiben geschlossen, da hier die WCs untergebracht sind.
Seine Flexibilität ist laut Architekten der große Pluspunkt des neuen Gemeindezentrums: Der Veranstaltungsraum in seinem Inneren kann entweder für sich allein genutzt, einem der beiden vorgelagerten Freibereiche zugeschlagen oder komplett zu beiden Seiten geöffnet werden. Dann fungiert das neue Gemeindezentrum stadträumlich als „Tor zur Donau“ für Visegrad. Der Fluss fließt nämlich kaum mehr als 100 Meter entfernt am Grundstück vorbei.














