Kulturtreibhaus: Bildungszentrum Paddenbroek von Jo Taillieu Architecten
Foto: Filip Dujardin
Der Obstbau hat im Pajottenland westlich von Brüssel eine lange Tradition. Große Gewächshäuser sind in der Region indes selten – zumal solche mit Café und Konferenzräumen, in denen sogar der Gemeinderat tagt.
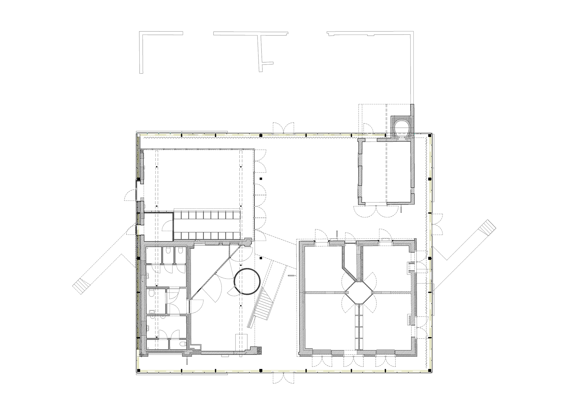
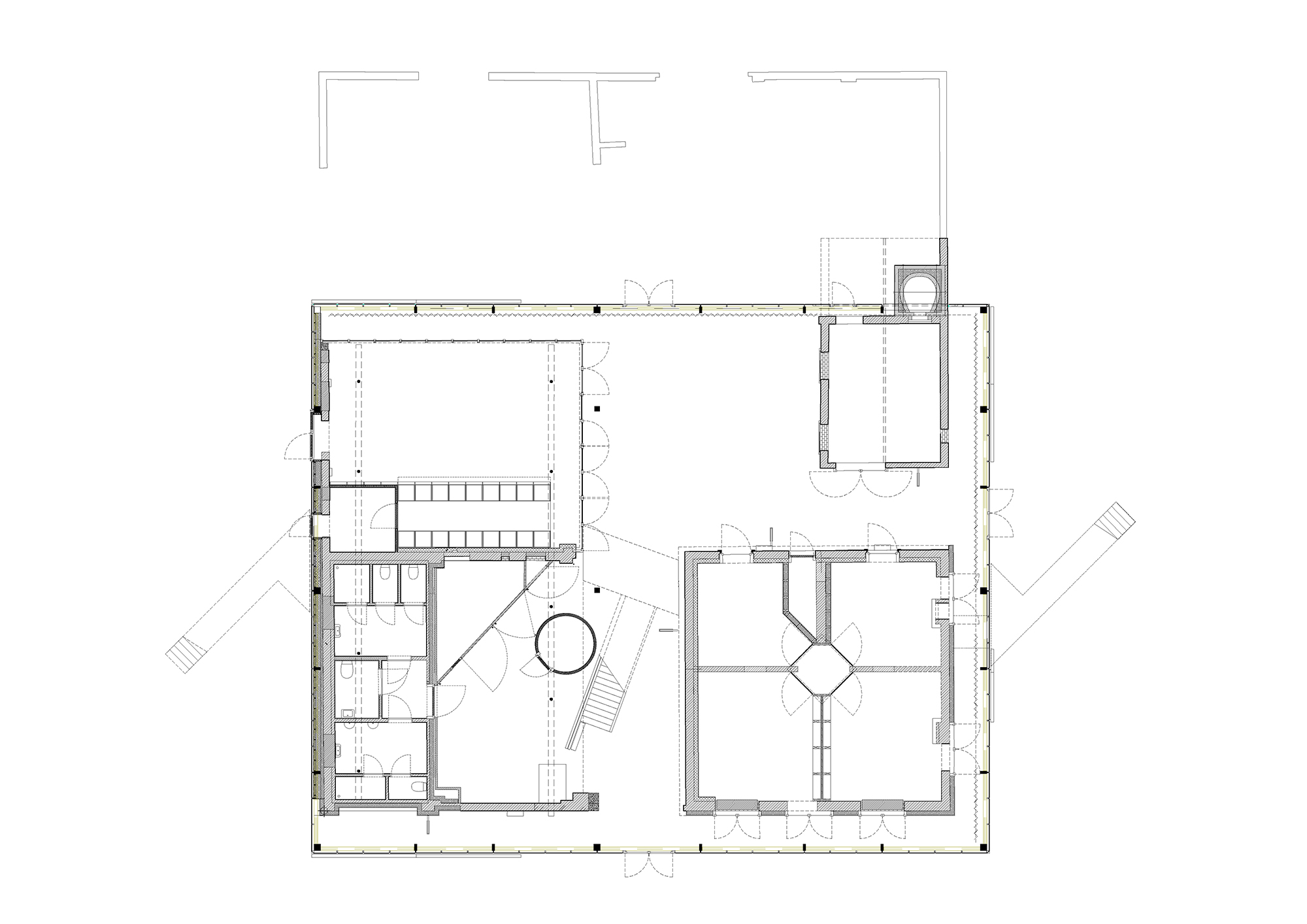
Ein solches haben Jo Tailleu Architecten für die 1800-Einwohner-Gemeinde Gooik errichtet und darin die Reste eines aufgelassenen Obstbauernhofs rund 1 km außerhalb des Ortszentrums integriert. Neben Tagesausflüglern und Gemeinderäten dient das Bildungszentrum Paddenbroek vor allem für all jene als Anlaufstelle, die sich näher über die umliegende Kulturlandschaft, ihre Naturräume und ihre landwirtschaftliche Nutzung informieren möchten.
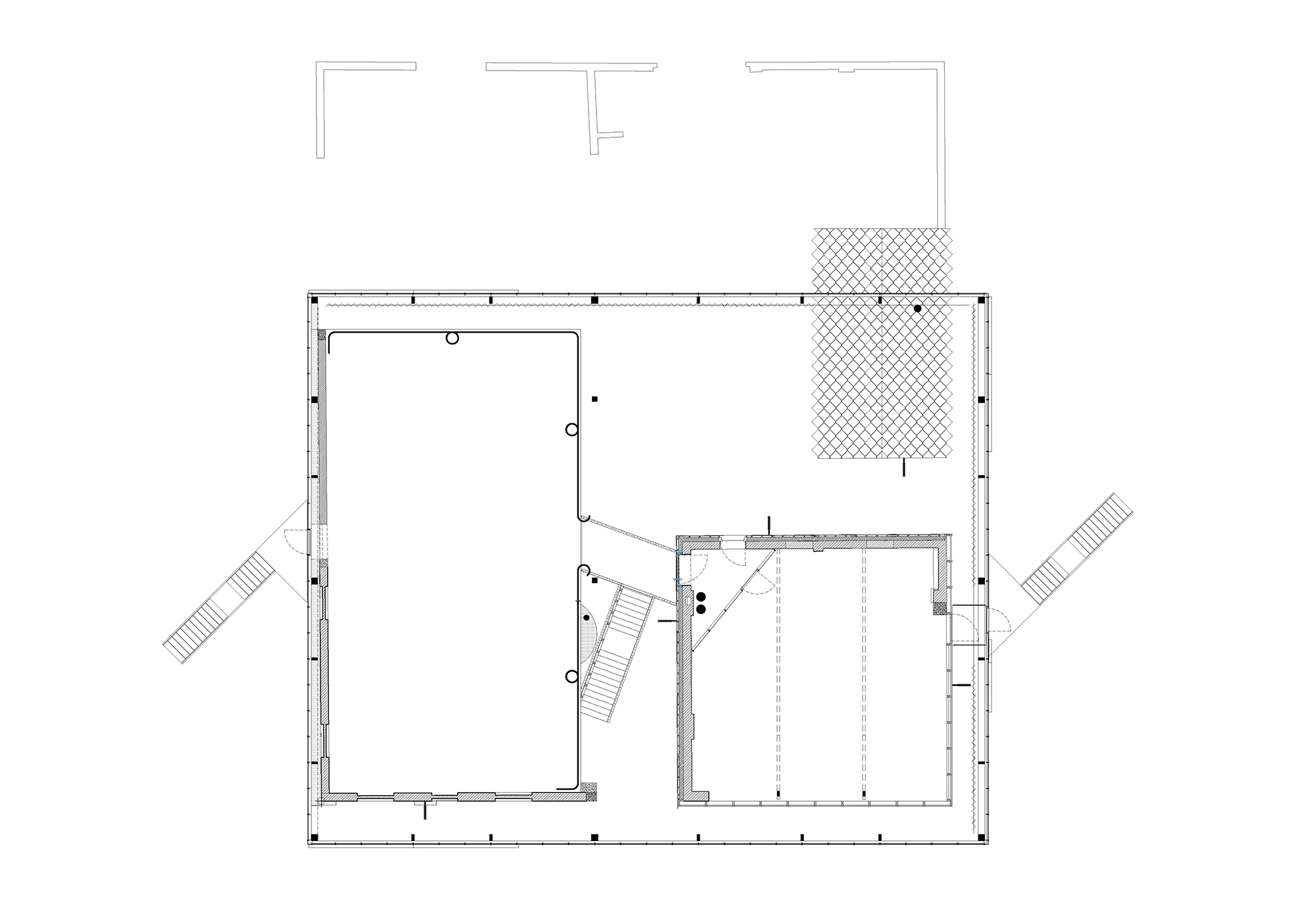
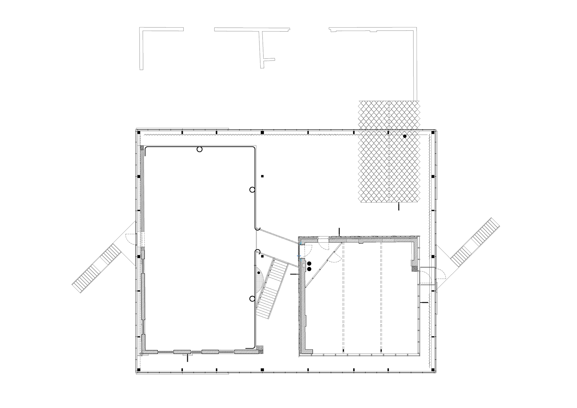
Das Glashaus basiert auf einer Standard-Gewächshauskonstruktion, die jedoch statisch verstärkt wurde, um die teils großen Spannweiten zu bewältigen. Die voll verglaste Nordfassade des Bildungszentrums ist zugleich die Eingangsseite. Die deutlich niedrigere Südfront öffnet sich zum ehemaligen Bauerngarten, von dem noch niedrige Mauerreste erhalten sind. Ein eher kurioses Relikt ist das ehemalige Backhaus, das die Glasfassade durchstößt und dessen verfallene Südseite die Architekten offenließen.
Im Inneren der Halle blieben die Ziegelwände des alten Bauernhofs größtenteils sichtbar und wurden wo nötig mit Wandscheiben und Ringankern aus Stahlbeton stabilisiert. Außerdem erhielten sie eine Wärmedämmung, denn im Gegensatz zu den „Häusern im Haus“ blieb der Großraum unter der Glaskonstruktion als thermischer Puffer unbeheizt. Großformatige, diagonal montierten Faserzementschindeln auf den Giebeldächern und am Obergeschoss des Bauernhauses unterstreichen den Patchworkcharakter der Architektur, in der jedes Element sein Eigenleben hat. Ein besonderer Blickfang sind nach wie vor die offenen Kamine im Obergeschoss des ehemaligen Bauernhauses: Ihrer Funktion beraubt, stehen sie nun gleichsam als Objets trouvés in den Konferenzräumen des Bildungszentrums.
Über das Projekt berichten wir in Detail 6.2021.
Eine ausführliche Print-Dokumentation finden Sie in unserer Ausgabe DETAIL 6/2021 mit dem Themenschwerpunkt “xxxx“.


















