Brise-Soleil aus Fassdeckeln
Kulturzentrum auf den Kapverden von Ramos Castellano Arquitectos
Centro Nacional de Artesanato e Design (CNAD) in Mindelo, © Sergio Pirrone
Die neue Fassade des Centro Nacional de Artesanato e Design (CNAD) in Mindelo ist nicht nur ein farbiger Eye-Catcher: Ihr Brise-Soleil aus über 2500 von Hand lackierten Fassdeckeln reguliert auch das Innenraumklima.


Die neue Fassade des Kulturzentrums besteht aus über 2500 von Hand lackierten Fassdeckeln. © Sergio Pirrone
Bisher war das CNAD im ehemaligen Wohnhaus des Reeders, Kaufmanns und Politikers Augusto Pereira Vera-Cruz vom Ende des 19. Jahrhunderts untergebracht. Es steht am Nordende der Praça Nova im Stadtzentrum von Mindelo, der mit 70 000 Einwohnern zweitgrößten Stadt der Kapverdischen Inseln.
Museumserweiterung
Für die Museumserweiterung platzierten Ramos Castellano einen schmalen Gebäuderiegel an den Nordrand des Grundstücks. Seine Höhenentwicklung – teils zwei- und teils fünfgeschossig – ist auf die dahinter liegende Wohnbebauung abgestimmt. Im Westen, Süden und Osten ist er voll verglast, Im Norden hingegen geschlossen. Auf den unteren drei Ebenen des Neubaus sind Ausstellungsräume untergebracht, darüber eine Bibliothek, Büro- und Seminarräume sowie ein Gästezimmer mit zwei Stockbetten für Teilnehmer an Workshops und anderen Veranstaltungen.


Gästezimmer mit zwei Stockbetten, © Sergio Pirrone
Gebaut von einheimschen Handwerkern
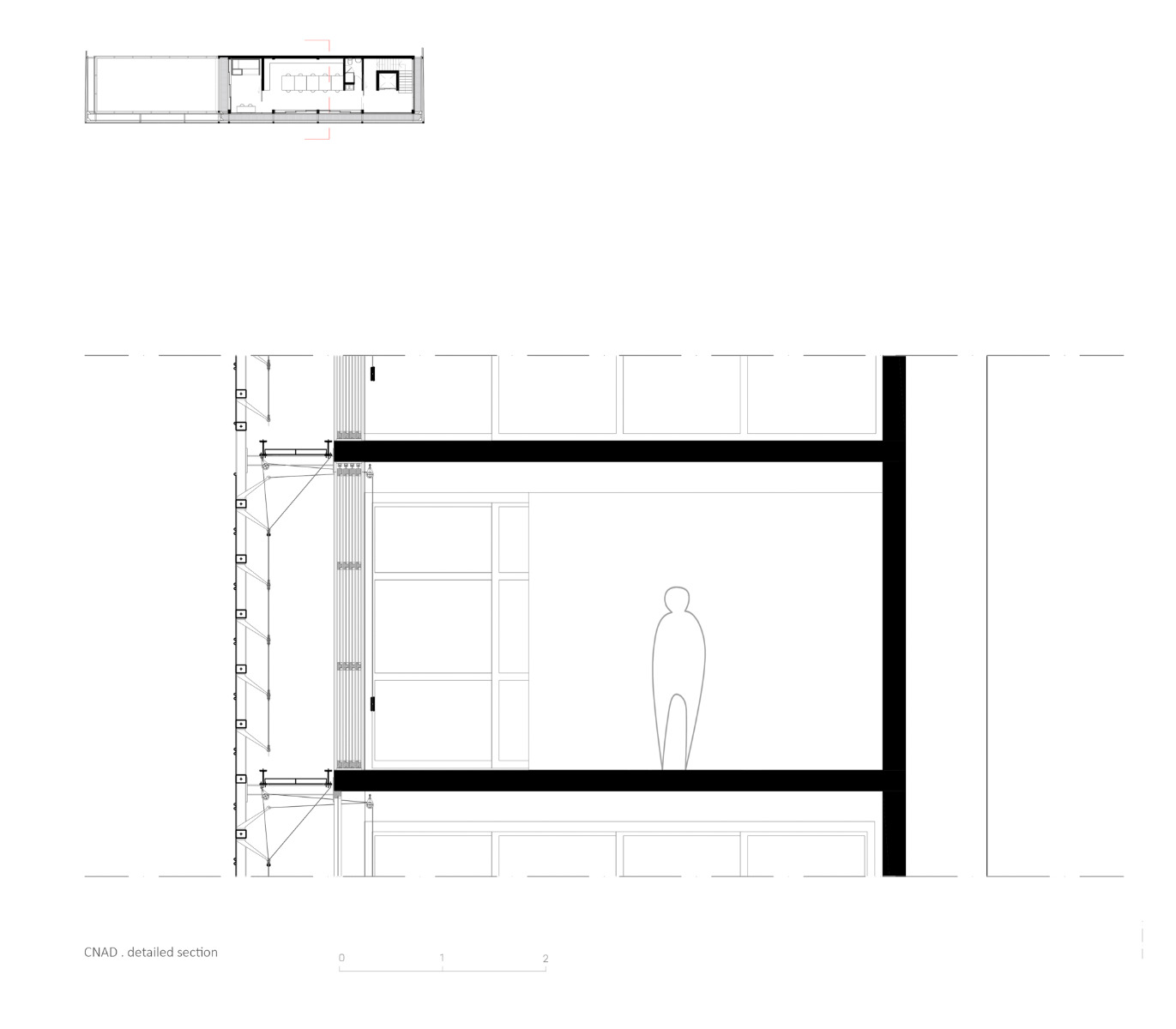
Für die Regierung der Kapverden ist der Museumsneubau ein vergleichsweise kostspieliges Prestigeprojekt. Umso wichtiger war es ihr und den Architekten, so weit wie möglich lokale Handwerker in den Bau einzubeziehen. Praktisch alle Bestandteile des Bauwerks – vom Rohbau aus Stahlbeton über die Holz-Glas-Fassaden mit den großen, holzgerahmten Glasschiebeelementen bis zur Stahlkonstruktion der umlaufenden Balkone – wurden von ihnen angefertigt. Vor allem aber gilt dies für das Brise-Soleil aus alten Fassdeckeln, die sandgestrahlt, neu lackiert und dann auf einer drehbaren Stahlunterkonstruktion verschraubt wurden. Damit griffen die Architekten eine in der Region weit verbreitete Praxis auf: Aus dem Material alter Blechfässer werden auf den Kapverden unter anderem Dachdeckungen, Töpfe und Messer, aber auch Betonschalungen gefertigt.


© Sergio Pirrone


© Sergio Pirrone


Ausstellungsraum, © Sergio Pirrone
Musik in Farben übersetzt
Mit einem einfachen Seilzugmechanismus lassen sich die Verschattungselemente verstellen und so dem Sonnenstand anpassen. Das funktioniert abschnittsweise, wobei jeder Abschnitt ein Geschoss hoch ist und so breit wie der Abstand zwischen zwei Tragwerksstützen. In der Farbgebung der Fassade bestätigt sich das Schopenhauer-Zitat, dass Architektur gefrorene Musik sei. Grundlage hierfür waren nämlich mehrere Stücke des kapverdischen Komponisten und Musikers Vasco Martins, von denen jede Note in einen Farbpunkt übersetzt wurde. Die Tonspur zur Fassade hat Martins mittlerweile auch als Album herausgebracht.
Architektur, Innenarchitektur: Ramos Castellano arquitectos
Bauherr: Ministerio da Cultura e industrias creativas, Governo de Cabo Verde
Standort: Praça Nova, Mindelo 1027, São Vicente (CV)
Ingenieure: Ilidio Alexandre, Daniele Salvadorini, Francesco Bini, Denise Martins e Ricardo Martins, Luis Delgado
Fachplaner: Shrikar Bhave, Linda Lam, Ti Nene', Giulia La Ganga, Concetta Cavallaro









































