Grenzenlose Bühne
Kunstwerft in den Niederlanden von Ard & Donna
Alt und Neu treffen bei der Kunstwerft in Groningen unmittelbar aufeinander. © Stijn Bollaert
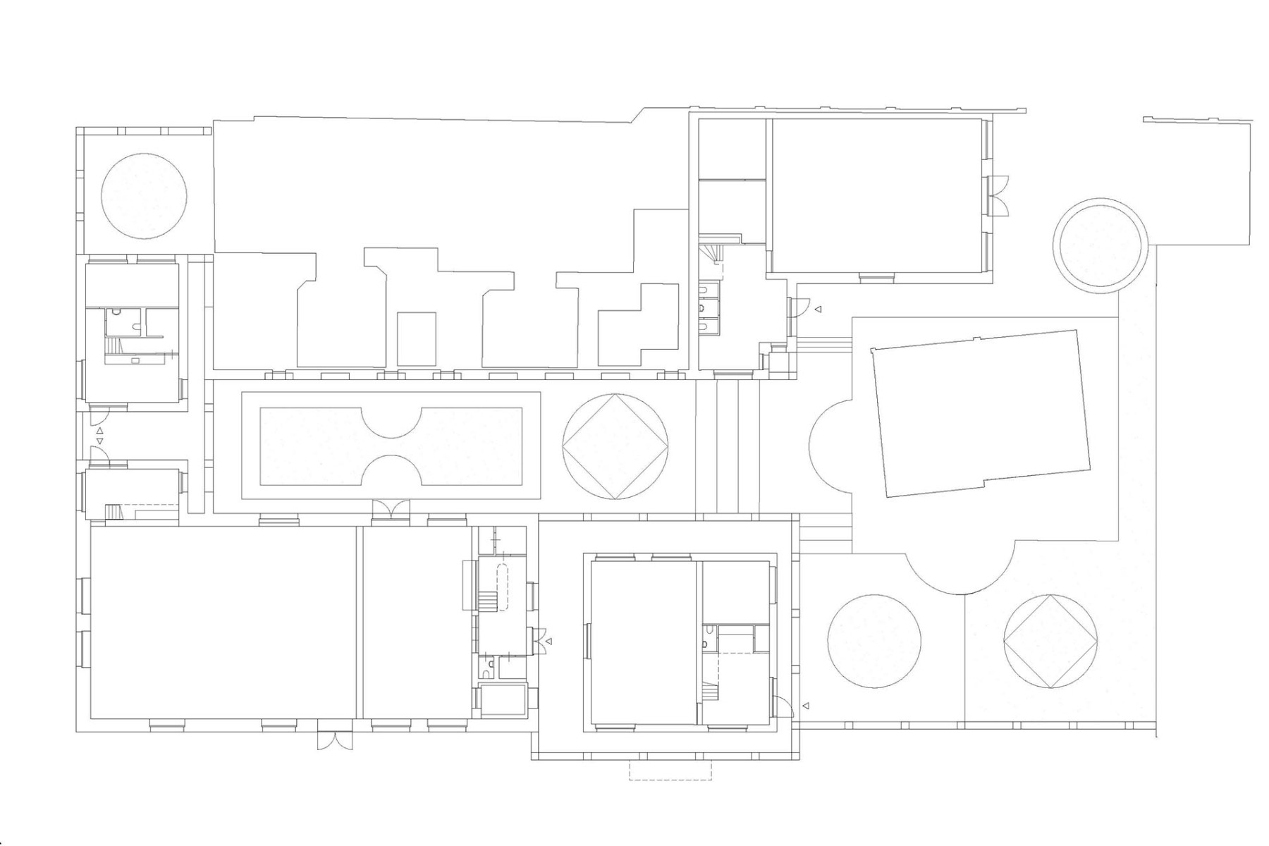
Ard de Vries Architecten realisieren zusammen mit Studio Donna van Milligen Bielke die Kunstwerft in Groningen. Sie beherbergt flexible Proberäume für vier Tanzkompanien. Das verbindende Element ist der zentrale Hofgarten, der Raum für Begegnung schafft. So gelingt den Planern der Balanceakt zwischen Trennung und Verbindung, Geschlossenheit und Offenheit.


Der Neubau schließt mit offenen und geschlossenen Bereichen an den Bestand an. © Stijn Bollaert
Theater neu gedacht
Im Fokus steht die Idee, Räume in einer narrativen Struktur anzuordnen. Der traditionelle Weg durch das Theater sollte neu überdacht werden, da für die Besucherinnen und Besucher die Proberäume und der Wirkungsbereich der Schauspielenden bisher unsichtbar blieben. Das Thema Sehen und Gesehenwerden bildete einen wichtigen Parameter im Entwurfsprozess.
Hofgarten als Herzstück
Die Besonderheit des Konzepts liegt in der Betonung des öffentlichen Raums gegenüber den herkömmlichen Theaterstrukturen. Ein großzügig gestalteter Hofgarten dient als zentraler Treffpunkt, während die Arkaden als Theaterkorridore fungieren. Inspiriert von historischen Theorien, insbesondere von Sebastiano Serlio, wird die Fassade als gestaltete Kulisse gesehen. Die Architektur zielt darauf ab, einen Raum für Gemeinschaft, Präsenz und künstlerischen Ausdruck zu schaffen.


Der Hofgarten mit umlaufenden Arkadengang bildet das Herzstück. © Stijn Bollaert
Öffentlicher Raum
Die Architekten spielen mit der subjektiven Wahrnehmung von Räumen und versuchen diese zu kontrollieren. Dies geschieht über ein Design, dass einen klaren Hinter- und Vordergrund schafft, sowie über Schwellenbereiche, die der öffentlichen Natur des Gebäudes Ausdruck verleihen.


Die Schwellenbereiche prägen das Gebäude. © Stijn Bollaert
Verbindung von Geschichte und Umgebung
Das Gebäude befindet sich auf dem historischen Ciboga-Gelände, einem ehemaligen Gaswerk. Die Gestaltung des Hofgartens berücksichtigt diese historische Verbindung und schafft zusätzlich eine neue Verbindung zur Umgebung. Ein kleines, rautenförmiges Fenster in der Westfassade der alten Villa markiert die zentrale Achse des Hofgartens, während ein intimes Amphitheater in der Mitte des Gartens öffentliche Sprechmöglichkeiten bietet.


Neu und Alt bilden ein selbstverständliches Ensemble. © Stijn Bollaert


Ein kleines, rautenförmiges Fenster in der Westfassade der alten Villa markiert die zentrale Achse des Hofgartens. © Stijn Bollaert
Mit der Realisierung der Kunstwerft schaffen Ard de Vries Architecten ein Gebäude, dass respektvoll auf den Bestand reagiert und bis ins Detail eine Einheit mit ihm bildet.
Architektur: Ard de Vries Architecten & Studio Donna van Milligen Bielke
Bauherr: Gemeinde Groningen
Standort: Groningen (NL)
Tragwerksplanung: ABT Wassenaar
Landschaftsarchitektur: Piet Oudolf & Deltavormgroep
TGA-Planung: Geveke
Bauunternehmen: Geveke











