Wiederentdeckt
Kunstzentrum in Luxemburg
Das neue Ateliergebäude überragt den Altbau deutlich und setzt mit seiner Glas- und Metallhülle einen unverkennbar zeitgenössischen Akzent. © Simone Bossi
Der Bildhauer Albert Hames (1910–1989) dürfte außerhalb von Luxemburg nur wenigen Experten bekannt sein. Er studierte in München und Oberammergau, kehrte dann in seine Heimat zurück und arbeitete überwiegend als Restaurator für Kirchenkunst, schuf aber auch zahlreiche Skulpturen für Kirchen und den öffentlichen Raum. In Kunstausstellungen wurden seine Werke hingegen fast nie gezeigt. Als Glücksfall erwies sich, dass sein Atelier in Rumelange nach seinem Tod jahrzehntelang fast unangetastet blieb.


Das Wohnhaus liegt in Hanglage am westlichen Ortsrand von Rumelange. Entsprechend gut ist es auch aus der Ferne zu erkennen. © Simone Bossi
Ein Kunstuniversum mit vielen Funktionen
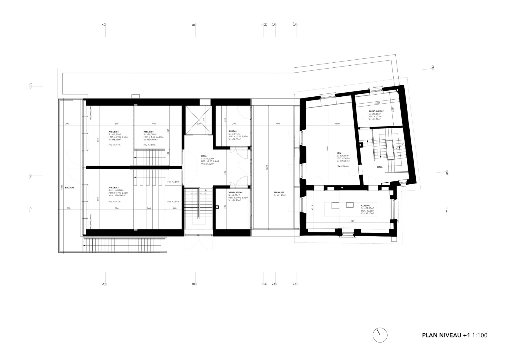
Nun hat sich die Stadt Rumelange gemeinsam mit dem Architekturbüro 2001 aus dem nahe gelegenen Esch-sur-Alzette des Anwesens angenommen. Das Programm für die Umgestaltung klingt ambitioniert: Apartments für Künstler und Touristen sind geplant, dazu vier Kunstateliers und Räume für die Verwaltung. Artists in Residence, aber auch kunstinteressierte Durchreisende, sollen sich hier einmieten können und in den Ateliers arbeiten oder den Künstlern bei der Arbeit zusehen. Idealerweise, so die Vorstellung der Initiatoren, sollen diese Aktivtäten die örtlichen Anwohner einbeziehen.


Ein eingeschossiger Verbindungstrakt leitet vom Alt- in den Neubau über. Dort liegen je zwei zweigeschossige Atelierräume übereinander. © Simone Bossi


© Simone Bossi
Abstrakter Anbau aus Glas und Metall
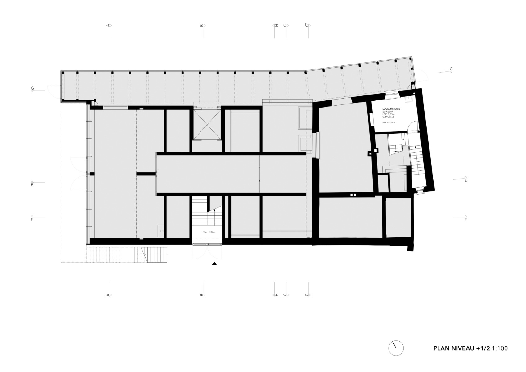
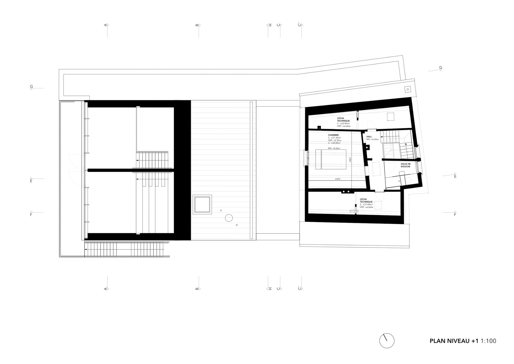
Nach Abschluss des ersten Bauabschnitts wird das räumliche Setting des Kunstkomplexes erkennbar: Im Altbau an der Straße sind die ersten zwei Gästezimmer, eine Gemeinschaftsküche und ein Esszimmer entstanden. Außerdem liegt hier der Dreh- und Angelpunkt des Ganzen, Hames´ Atelier. Ein eingeschossiger, verglaster Verbindungstrakt leitet über zum Anbau mit den vier Künstlerateliers und den Verwaltungsräumen. Der Anbau ist – wie schon das Künstleratelier aus den 50er-Jahren – aus Sichtbeton gebaut und in diagonal verlegte Metallpaneele gehüllt, die ihn als maßstabsloses, abstraktes Volumen erscheinen lassen. Tageslicht erhalten die Räume überwiegend über die voll verglaste Westfassade und einen eingeschossigen Wintergarten, der den Gebäudekomplex auf der Talseite flankiert.
Architektur: 2001
Bauherr: Stadt Rumelange, LU
Standort: 14–16, Rue de la Bruyère, 3714 Rumelange (LU)
Tragwerksplanung: Schroeder & Associés
Innenarchitektur: NJOY
TGA-Planung: Goblet & Lavandier























