Landschaft im Haus: Promega-Verwaltungszentrum in Walldorf
Foto: Roland Halbe
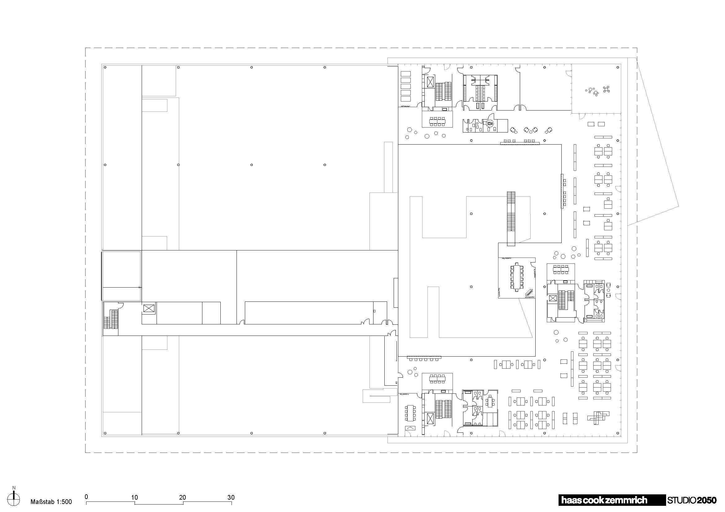
Alle unter einem Dach zu versammeln – zumindest vor der Corona-Pandemie gab dieser Wunsch des öfteren Anlass für Firmen, sich neue Bürobauten zu errichten. Auch das Verwaltungs- und Logistikzentrum des US-amerikanischen Biotechnologieunternehmens Promega in Walldorf bei Heidelberg entstand aus dieser Motivation heraus. Neben Büro- Logistik- und Produktionsflächen gibt es in dem Neubau ein Mitarbeitercafé, Fitness- und Ruheräume sowie Räume für den technischen Support. Ein offenes Atrium, der sogenannte Marktplatz, ist die gemeinsame Mitte des Hauses, in dem auf drei Ebenen etwa 115 Mitarbeiter und Mitarbeiterinnen Platz finden. Die zweite konzeptionelle Klammer bildet ein 9000 m2 großes Holzdach, das sich über alle Bereiche spannt. Der Trägerrost ist als sogenanntes reziprokes Tragwerk konzipiert, bei dem relativ kurze Trägerabschnitte so gestoßen sind, dass in den Anschlüssen lediglich Querkräfte übertragen werden. Da in dem weitläufigen Haus eher die horizontale als die vertikale Orientierung zur Herausforderung werden könnte, schufen die Architekten ein Farbsystem, das die Räume nach Himmelsrichtungen differenziert.
In puncto Nachhaltigkeit waren dem Bauherrn vor allem Biodiversität, Mikroklima und Wassermanagement wichtig. Das große Dach ist begrünt, das zuvor agrarisch genutzte Grundstück wurde renaturiert und eine Versickerungsmulde vor dem Haus soll das öffentliche Abwassernetz entlasten. Reichlich Tageslicht in den Räumen, eine Kombination aus beweglichem und festem Sonnenschutz sowie eine Lüftungsanlage mit Wärmerückgewinnung sollen den Komfort der Mitarbeiter unterstützen. Mit einer an ein Erdsondenfeld angeschlossenen Bauteilaktivierung und einer auf dem Dach installierten Photovoltaikanlage erfüllt das Gebäude den KfW-55-Standard.
Weitere Informationen:
Landschaftsarchitektur: Ramboll Studio Dreiseitl
Ausschreibung, Objektüberwachung: ap88 Architektenpartnerschaft
Energiekonzept: Transsolar
Bauphysik: KNP
HLS-Planung: IPP Technische Gesamtplanung
Brandschutz: hpp berlin

















