Landwirtschaft deluxe: Golf-Clubhaus bei Basel
Die Domaine Saint-Apollinaire nordwestlich von Basel wurde 1144 als Zisterzienserpriorat gegründet, das bis 1791 Bestand hatte. In den letzten zehn Jahren ist hier, nur fünf Minuten vom Euro Airport Basel-Mulhouse entfernt, ein wettkampftauglicher 2x18-Loch-Golfplatz entstanden. Für die Planung des Clubhauses und der Betriebsgebäude engagierte der Schweizer Golfplatzbetreiber das Büro DeA Architectes aus Mulhouse, das Guillaume Delemazure, ein ehemaliger Mitarbeiter von Herzog & de Meuron, 2007 gegründet hat.
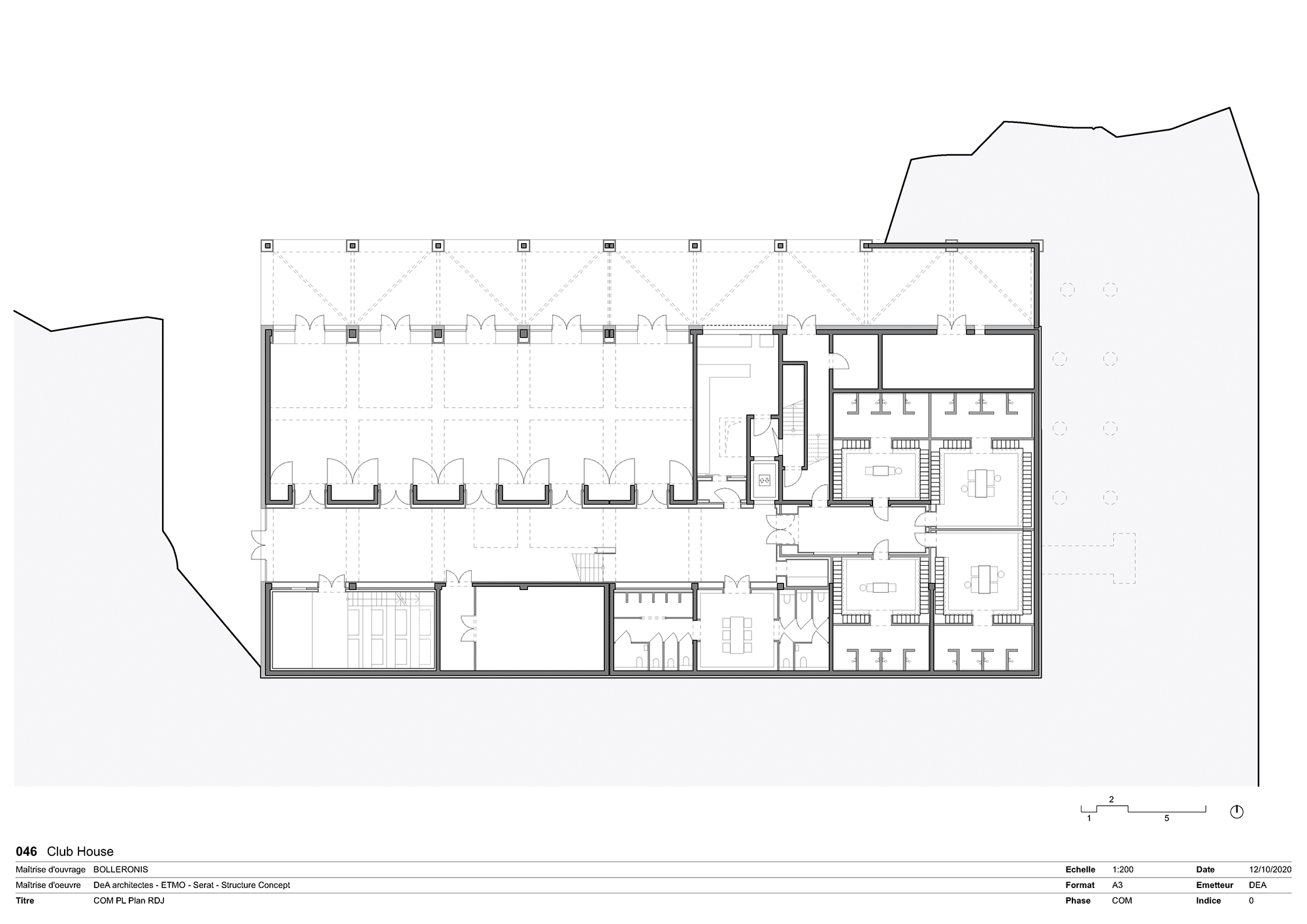
Die Architekten nutzten einige der historischen Gebäude auf dem Areal zu Hallen für Golfwaren, Carts und Maschinen um und entwarfen ein neues Clubhaus sowie mehrere kleine Nebengebäude. Das Clubhaus steht am Ende einer historischen Baumallee, die von Westen auf die ehemalige Abtei zuführt, und nutzt die nach Norden abfallende Geländetopografie aus. Oben im Eingangsgeschoss befinden sich die öffentlichen Bereiche wie das Foyer und das Restaurant mit großen Fassaden an den Längsseiten, über die sich ein weit ausgreifendes Satteldach breitet. Im teils in den Hang gegrabenen Sockelgeschoss sind die Umkleiden, Schließfächer und Stauräume untergebracht.
Das Hauptgebäude ist ein Ortbetonbau, dessen Fassaden und Stützen außen komplett mit schwarz lasiertem Tannenholz verkleidet sind. Innen überzieht ein diagonales Flechtwerk aus Holz einen großen Teil der Wände und Decken. Die kleineren Bauten von DeA auf dem Areal – darunter ein kleiner Pavillon mit Seminar- und Gemeinschaftsräumen sowie ein Schutzdach für die Driving Range – sind reine Holzbauten. Mit ihren markanten Dächern und der dunklen Holzhülle tragen sie die gleiche gestalterische Handschrift wie das Clubhaus.



















