// Check if the article Layout ?>
Lebendig und sprunghaft: Einfamilienhaus auf Norwegisch
Foto: Gunnar Sørås
Das Haus von Atelier Oslo fügt sich in eine ruhige Wohngegend im Süden Oslos ein. Erschlossen über eine südseitige Straße positioniert sich der Baukörper zentral am Grundstück. Im Vergleich zu seinen gediegenen Nachbarn wirkt das Einfamilienhaus auf den ersten Blick lebendig und frech. Diesen Eindruck verdankt es verschieden großen Volumina, die wie ein additives Gefüge funktionieren und etliche Vor- und Rücksprünge ausbilden.
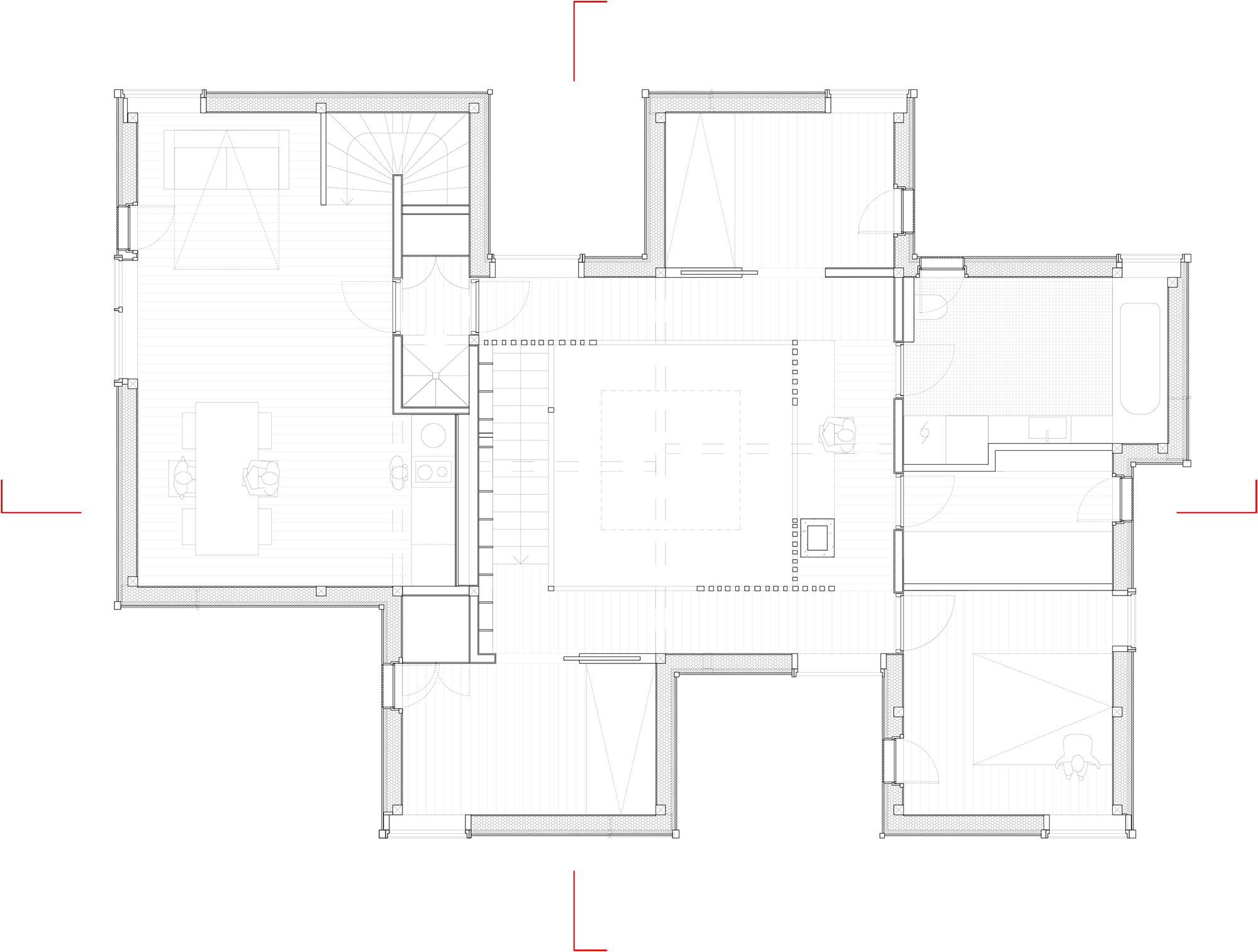
Der Entwurf gliedert sich in zwei Geschosse. Aufgrund der relativ geringen Fläche des Bauplatzes entscheiden sich die Architekten dafür, das Erdgeschoss klein zu halten um mehr Platz für den Garten zu lassen. Das obere Stockwerk ist größer und zeichnet sich durch seine verspielte Kontur aus. Immer wieder gibt es Bereiche, die verschieden weit auskragen und vielfältige Räume ergeben. Davon profitiert auch das untere Level: Durch das Überstehen des Baukörpers entstehen geschützte Situationen in den Außenbereichen.
Auch in ihrer Fassadengestaltung sprechen die beiden Niveaus eine unterschiedliche Sprache. Der untere Teil ist in schlichtem Putz ausgeführt. Das obere Level zieht mit einer Hülle aus schmalen, vertikalen Holzlatten die ganze Aufmerksamkeit auf sich, die dem Haus eine natürliche und ruhige Optik verleiht. Ein Flachdach komplettiert den Baukörper in seiner klaren Geometrie.
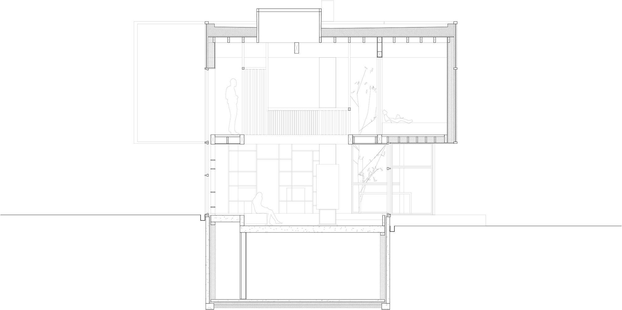
Man betritt das Einfamilienhaus über die Westseite. Dort gibt es neben dem Haupteingang außerdem einen Zugang für ein separates Appartement im Obergeschoss. Durch einen Gang gelangt man in den anschließenden Wohn-Essbereich. Dieser lebt von den Blickbezügen in den Garten und seiner offenen Gestaltung. Im Obergeschoss befinden sich die privaten Zimmer und das Bad. Alle Räume organisieren sich hier um eine Art Innenhof. Zentral über dem darunterliegenden Wohnbereich positioniert stellt er das Herzstück des Baus dar. Als Galerie im oberen Stockwerk und Lichtquelle für das Erdgeschoss schafft er interessante Sichtachsen und sorgt für ein freundliches Ambiente.
Im Inneren scheinen Design und Konstruktion zu verschmelzen. Sie formen eine gestalterische Einheit. Neben Holzböden und Deckenuntersichten liegen sämtliche Holzträger und -säulen vollkommen offen und unverkleidet. Ihre differierenden Dimensionen behält man bewusst bei, um beim Betrachter Assoziationen an einen Wald voller Bäume hervorzurufen und den lebendigen Charakter, den das Haus nach außen vermittelt, wieder aufzugreifen. Die Gestaltung wird somit gewissermaßen zum Abbild der Kraftverläufe innerhalb des Hauses.












