// Check if the article Layout ?>
Leichtigkeit trotzt Wind und Wetter: Segelschule in Spanien
Foto: Montse Zamorano
Zwischen den Piers des Jachthafens und dem Strand für Katamarane liegt die Segelschule des Real Club Marítimo von Sotogrande. Diese privilegierte und sehr exponierte Lage verlangt dem Gebäude einiges ab. Auch bei der stärksten Seebrise muss es standhaft bleiben. Außerdem waren die Architekten der Meinung, dass der Standort nach einer Landmarke verlangt. Der Bedarf an Raum für die Segelschule war allerdings nicht allzu groß, das Gebäude drohte zwischen den Masten der Schiffe unterzugehen. So entschlossen sich Héctor Fernández Elorza und Carlos Garcia Fernández, dem Gebäuderiegel eine Pergola anzugliedern. Über die gesamte Gebäudelänge bietet sie nun einen schattigen Eingangsbereich und gleichzeitig einen praktischen Vorraum für die Segelschule. Sie überragt den Bau in der Höhe und verschafft ihm somit eine weitaus größere Präsenz.
Die leichte Struktur des Gebäudes scheint über dem Sand zu schweben. Wie beim Katamaran gibt es nur an den äußeren Enden, wo die Verkleidung der Pergola bis zum Boden geführt wurde, eine sichtbare Verbindung mit dem Untergrund. In der Mitte des länglichen Gebäudes befindet sich dafür der durchlässigste Raum. Der Unterrichtsraum öffnet sich zu beiden Seiten und stellt so eine visuelle Verbindung zwischen Hafen und Strand her. Außerdem ermöglichen die verglasten Schiebetüren die Erweiterung des Raumes unter die schützende Pergola und bis auf den Strand hinaus.
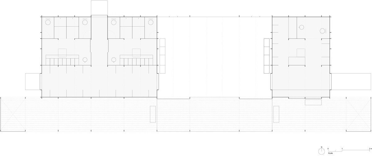
Mehrere Eingänge führen in die verschiedenen Bereiche der Segelschule. Das ist für den funktionalen Ablauf unerlässlich. Neben der Erschließung vom Hafen und vom Strand aus bietet sich auch ein Zugang direkt zum Segellager und ein weiterer zum Büro.
Die Leichtigkeit der Konstruktion entsteht durch die Verwendung eines verzinkten Stahlgerüstes. Die Stützen rhythmisieren die Fassade und tragen die Weidenmatten, mit denen die Pergola teilweise verkleidet ist. Abgesehen vom verglasten Kern des Gebäudes wurde die Hülle mit Zementplatten eingekleidet. Diese sind mit Holzfasern verstärkt und nicht eingefärbt. An einigen Stellen sind sie perforiert, sodass die Bäder und das Segellager konstant durchlüftet werden.
In einem Video illustrieren die Architekten die Schönheit des felsigen Strandes und des Segelsportes, die Aussagekraft der Pergola, die Vorzüge der offenen Räume und die Leichtigkeit der Konstruktion. Es ist eine Ode an die Einfachheit.
Weitere Informationen:
Mitarbeiter: Javier Mengibar, Miguel Ángel Palencia, María Concepción Pérez Gutierrez
Bauzeit: Januar - Juni 2013
Fläche: 145 m²
Kosten: 75000 € Fotos: Montse Zamorano
Bauzeit: Januar - Juni 2013
Fläche: 145 m²
Kosten: 75000 € Fotos: Montse Zamorano
RCM Sotogrande / hfe+c-gf from c-gf on Vimeo.














