Lernen am Modell: NADAAA erweitern die Architekturfakultät in Toronto
Foto: Nic Lehoux
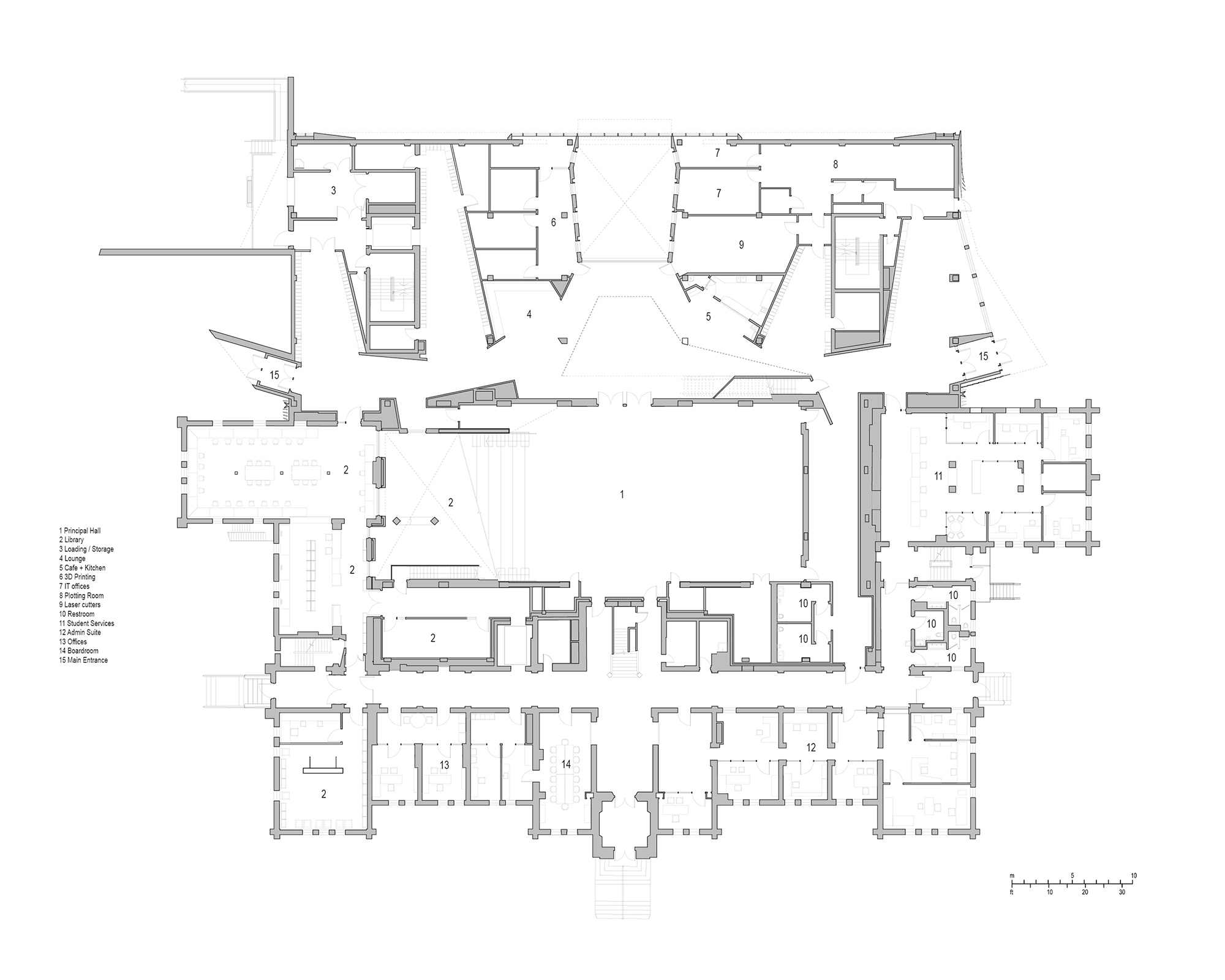
Vom Stadtverkehr der kanadischen Metropole umflossen steht das Daniels Building auf dem runden Bauplatz. Den Bestand im neugotischen Stil sanieren und revitalisieren NADAAA behutsam und erweitern ihn um einen expressiven Nordtrakt. Dieser schließt direkt an die vorhandene Gebäudesubstanz an und kreiert an den Schnittstellen in westlicher und östlicher Richtung neue Verbindungen für Fußgänger. Ein Platz im Osten bindet die Architekturfakultät an den Universitätscampus an. Rad- und Fußwege und eine bewegte Topografie beleben die Außenflächen auf dem One Spadina Crescent.
Den neuen Gebäudeteil des Daniels Building gestalten NADAAA als dreigeschossigen Betonbau, über den sich eine Stahl-Glas-Konstruktion legt. Spitz zulaufende Ecken und Durchbrüche in Wänden und Decken durchziehen den Trakt. Er wirkt von Innen und Außen regelrecht zerklüftet. Dieser Effekt sorgt nicht nur für eine optimale Belichtung, sondern trägt außerdem, gemeinsam mit der thermischen Bauteilaktivierung und den begrünten Dächern, zur Regulierung der Gebäudetechnik bei.
Die einzelnen Bereiche im Inneren sind rund um eine zentrale Halle angeordnet. Diese fungiert abgedunkelt als großes Auditorium oder kann mittels flexibler Trennwände in bis zu drei kleinere Säle abgetrennt werden. Rundherum sind dynamische Seminar-, Arbeits- und Erholungsbereiche, Werkstätten und die Bibliothek untergebracht. Mit ihren vielfältigen Innenräumen machen NADAAA die John H. Daniels Faculty of Architecture, Landscape and Design zum pädagogischen Testobjekt, das zur Interaktion anregen und den Dialog zwischen dem Gebäude, sowie den Studierenden und Lehrenden fördern soll.

























