// Check if the article Layout ?>
Lernen und Toben: Bildungskomplex von SANGRAD + AVP
Foto: Sandro Lendler
Die Inspirationsquelle für das Konzept der Bildungseinrichtung bildete die unmittelbare städtebauliche Umgebung: Im Gegensatz zu den nachbarschaftlichen Bauwerken veränderten die Architekten die Ausrichtung des Gebäudekomplexes. Auf diese Weise entstand ein vorgelagerter, öffentlicher Platz, der gleichzeitig als Erweiterung des städtischen Raums dient. Unterhalb des auf Stützen angehobenen Schulgebäudes eröffnet sich ein erster Blick auf den zentralen Schulhof, wodurch ein fließender Übergang mit der Umgebung entsteht.
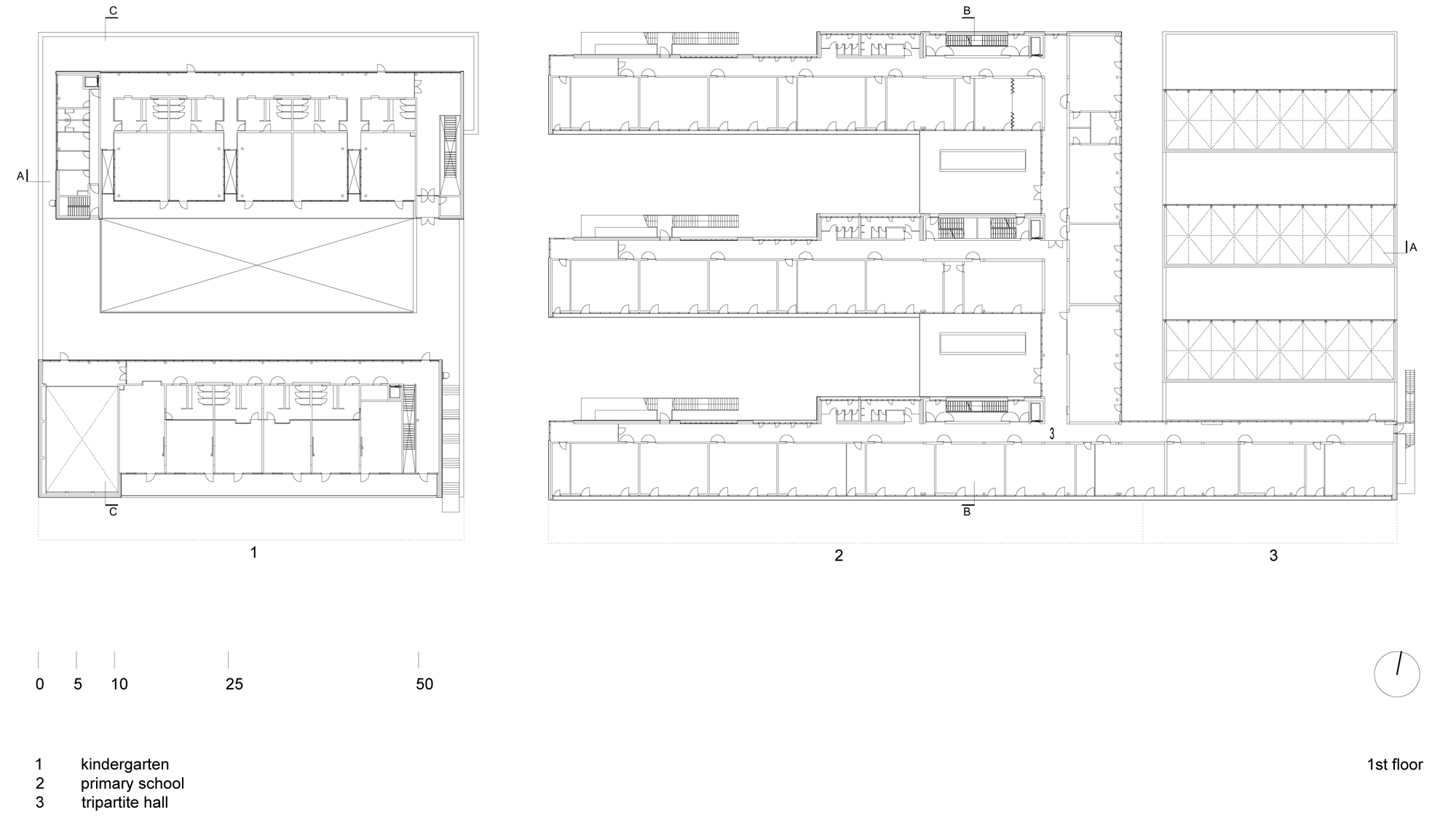
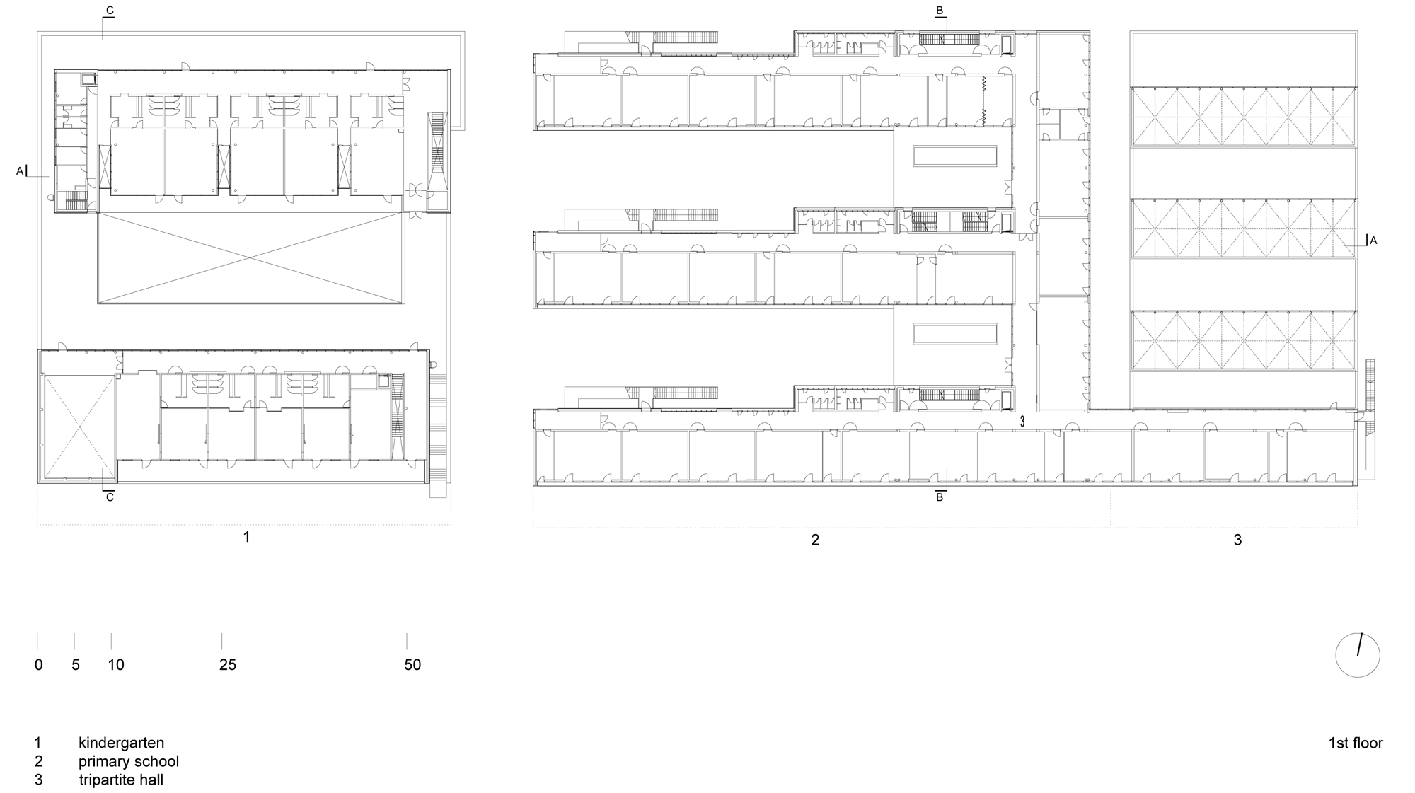
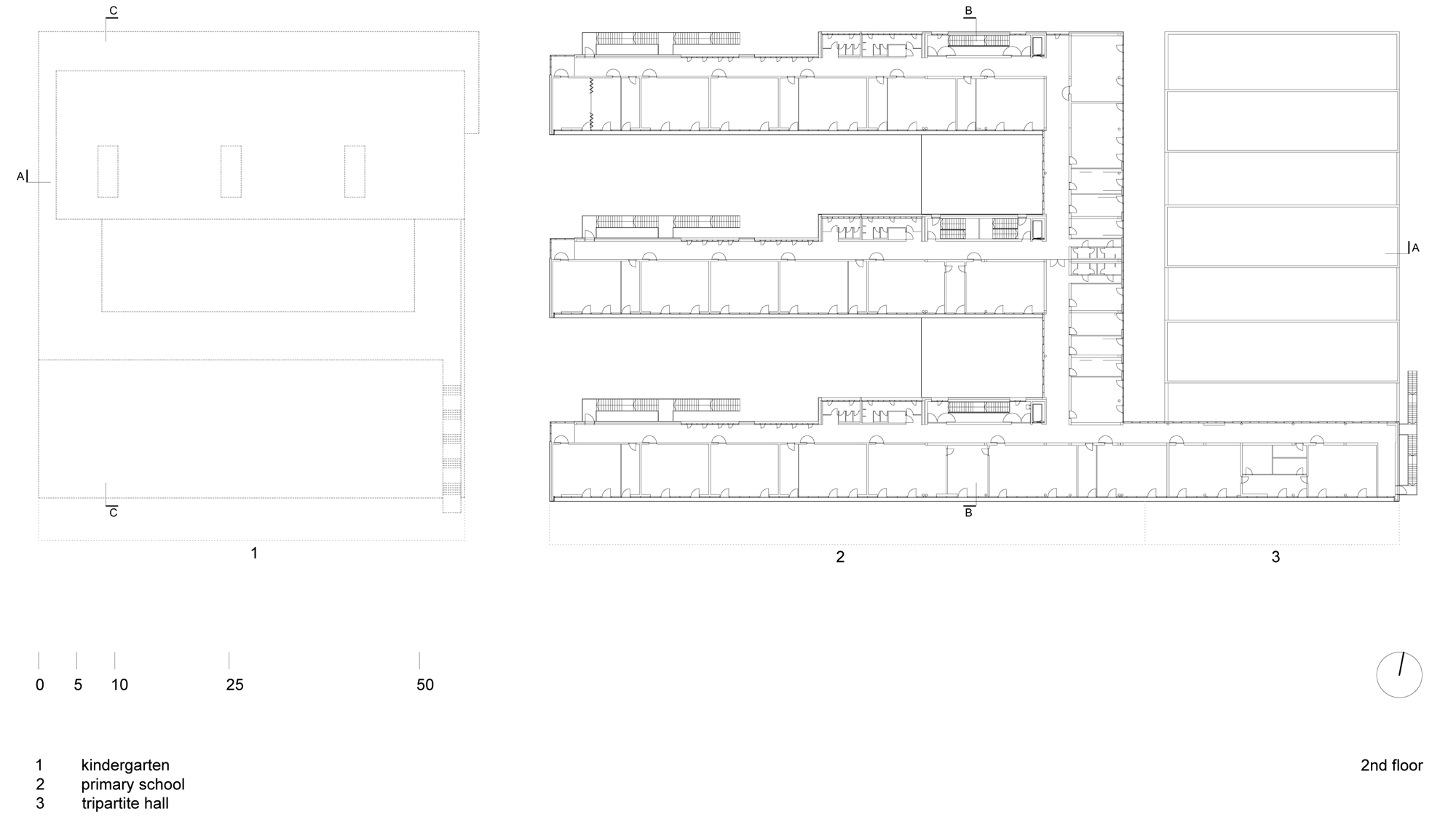
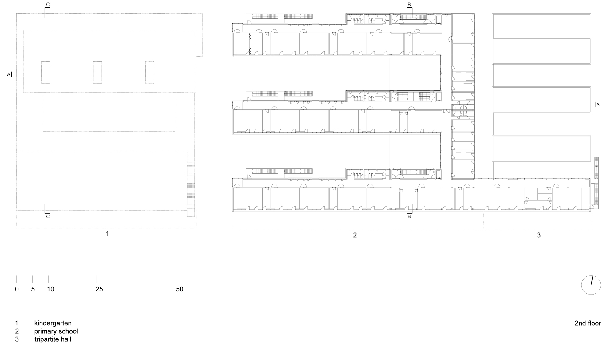
Innerhalb des Bildungskomplexes verbergen sich drei verschiedene Einrichtungen für Kinder unterschiedlichen Alters. Während der eine Baukörper eine Krippe und einen Kindergarten beherbergt, dient der andere als Schulgebäude. Eine homogene Fassade verbindet beide optisch zu einer Einheit. Der Grundriss ist so organisiert, dass die beiden Gebäudeteile als ein System funktionieren oder aber separat genutzt werden können. Auf diese Weise passt sich der Gebäudekomplex ganz flexibel und je nach Bedarf an die Bedürfnisse der Einrichtung an.
Über den zentralen Schulhof werden die unterschiedlichen Bereiche miteinander verbunden. Großzügige, umlaufende Terrassen bieten Blickbezüge zum zentralen Hof und geben den Schülern auch in den oberen Geschossen die Möglichkeit sich im Freien aufzuhalten. Ergänzend dazu gibt es außerdem eine Vielzahl unterschiedlicher Freiflächen, die den Kindern verschiedene Aktivitäten anbieten. Sportplätze, Spielflächen oder bepflanzte Beete erzeugen facettenreiche Aufenthaltsorte für Kinder jeden Alters. Hier wurde das klassische Konzept eines Schulgebäudes überdacht und in ein abwechslungsreiches und gleichsam funktionales System aus Freiräumen und Baukörpern transformiert.
Innerhalb des Bildungskomplexes verbergen sich drei verschiedene Einrichtungen für Kinder unterschiedlichen Alters. Während der eine Baukörper eine Krippe und einen Kindergarten beherbergt, dient der andere als Schulgebäude. Eine homogene Fassade verbindet beide optisch zu einer Einheit. Der Grundriss ist so organisiert, dass die beiden Gebäudeteile als ein System funktionieren oder aber separat genutzt werden können. Auf diese Weise passt sich der Gebäudekomplex ganz flexibel und je nach Bedarf an die Bedürfnisse der Einrichtung an.
Über den zentralen Schulhof werden die unterschiedlichen Bereiche miteinander verbunden. Großzügige, umlaufende Terrassen bieten Blickbezüge zum zentralen Hof und geben den Schülern auch in den oberen Geschossen die Möglichkeit sich im Freien aufzuhalten. Ergänzend dazu gibt es außerdem eine Vielzahl unterschiedlicher Freiflächen, die den Kindern verschiedene Aktivitäten anbieten. Sportplätze, Spielflächen oder bepflanzte Beete erzeugen facettenreiche Aufenthaltsorte für Kinder jeden Alters. Hier wurde das klassische Konzept eines Schulgebäudes überdacht und in ein abwechslungsreiches und gleichsam funktionales System aus Freiräumen und Baukörpern transformiert.
weitere Informationen:
Architekten: SANGRAD + AVP
Team: Vedran Pedišić, prof. Emil Špirić, Erick Velasco Farrera, Juan Jose Nunez Andrade
Design-Team: Gordana Gregurić Miočić, Iva Marjančević Vuksanić, Mladen Hofmann, Igor Blaha, Antonija Milovac
Fläche: 16.220 m2 Fotos: Sandro Lendler
Team: Vedran Pedišić, prof. Emil Špirić, Erick Velasco Farrera, Juan Jose Nunez Andrade
Design-Team: Gordana Gregurić Miočić, Iva Marjančević Vuksanić, Mladen Hofmann, Igor Blaha, Antonija Milovac
Fläche: 16.220 m2 Fotos: Sandro Lendler




























