// Check if the article Layout ?>
Les Docks in Saint-Ouen – Ökologisches Gebäude mit industriellem Erbe
Foto: Frédéric Delangle
Die Umwandlung von ehemaligen Industriebezirken in ökologisch orientierte Stadtteile ist eine Herausforderung für viele Städte, die die Lebensqualität in diesen unattraktiven Gegenden verbessern wollen. In Paris und Umgebung werden viele solche Projekte entwickelt, wobei die meisten davon das industrielle Erbe beibehalten, das den Ort kennzeichnet. Dabei werden die Vorteile der einfachen und effizienten Architektur ausgenutzt, um gleichzeitig die Vergangenheit zu respektieren und das neue Gebäude in den Kontext zu setzen.
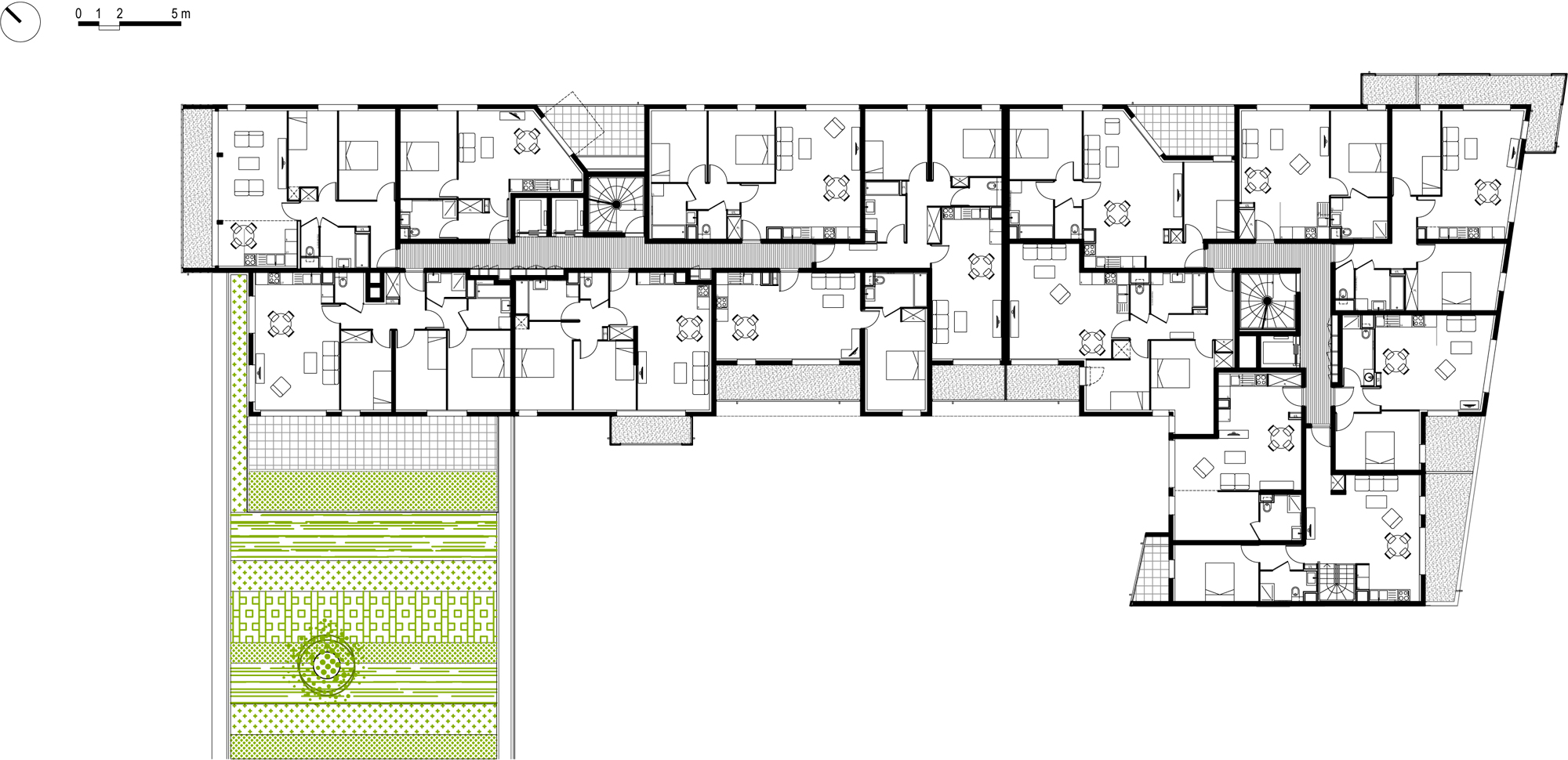
Gleich neben der Alstom-Halle gelegen, ist das Gebäude »Les Docks« gerade wegen seiner Form bemerkenswert. Kästen aus perforiertem Metall, die für einige Wohnungen als Balkone dienen, ragen aus dem Hauptkörper heraus. Sie erzeugen große Außenräume und öffnen die Wohnungen zur Landschaft hin. Die verschiedenen Materialien werden mit unterschiedlichen Farben hervorgehoben: Orange für die Metallmodule und Grau für den Rest des Gebäudes. In Verbindung mit den ineinandergreifenden Betonvolumen und den äußeren Metallkästen erzeugt dies eine dynamische Fassadenanordnung. Die Nordseite zeigt auf einen neuen Park am Ufer der Seine, der mit dem neuen Bezirk konzipiert wurde. Sie besticht durch ihre Vertikalität und Höhe während die Südseite aus absteigenden Terrassen besteht, auf denen die Bewohner Sonnenschein, Aussicht und frische Luft genießen können. Ein Loch in der Mitte des Gebäudes lässt Licht hinein für die mittig gelegenen Wohnungen.
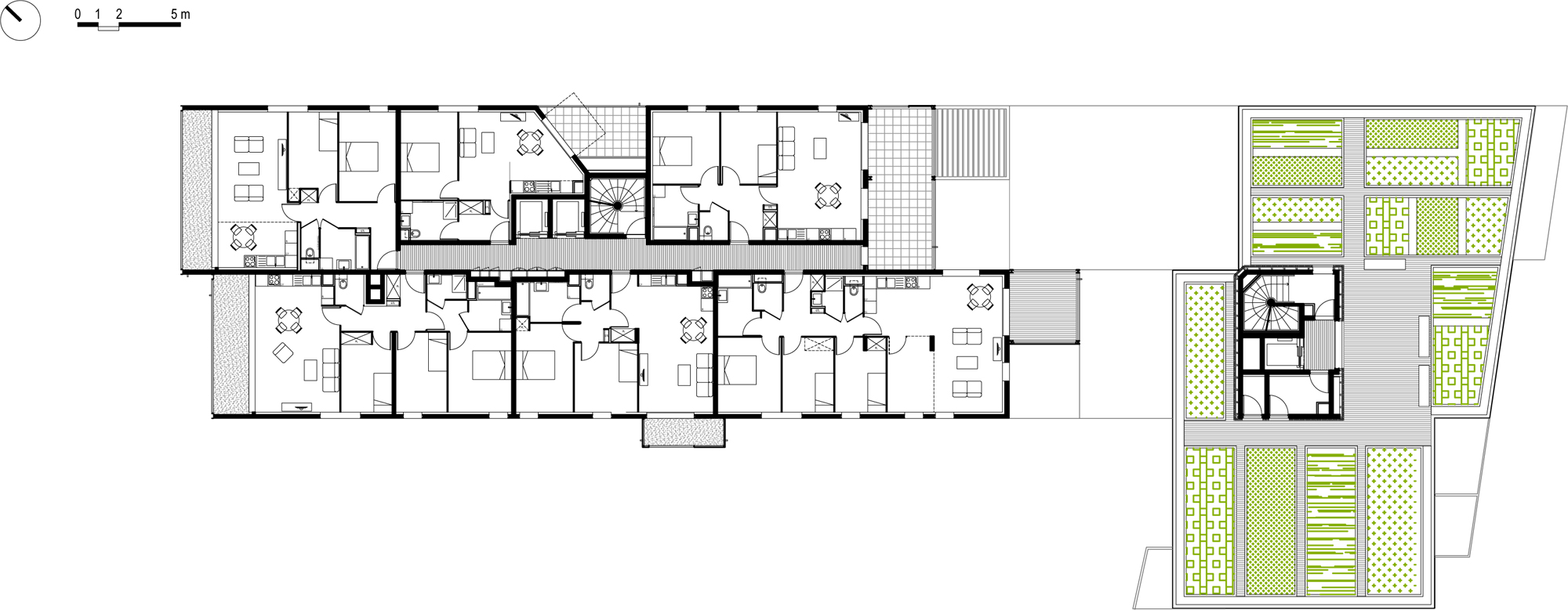
Das Programm besteht aus Geschäften, Privatwohnungen und einem gemeinschaftlichen Gemüsegarten auf der sechsten Etage. Die Läden befinden sich im Erdgeschoss. Der Zugang zu den Wohnungen erfolgt über einen überbauten Weg in einen im Hof gelegenen Garten, einem ruhigen und heiteren Bereich für die Bewohner. Die Wohnungen sind meist nur auf einer Seite offen für Tageslicht, daher wurde der Baukörper entlang einer Nord-Ost / Süd-West-Achse orientiert, um möglichst ganztägig für jede Wohnung eine natürliche Beleuchtung zu erreichen. Die nach Nordost gerichteten Wohnungen besitzen deshalb nach Osten gewandte Balkone.
Zur Selbstversorgung ist es den Anwohnern auf Wunsch möglich, im Gemüsegarten des sechsten Stockwerks ihre eigenen Pflanzen zu kultivieren. Dies soll auch den gemeinschaftlichen Austausch im Haus fördern.
Als Beitrag zur ökologischen Verantwortung in der Stadt bestätigt das Gebäude den eigenen Charakter durch seine ungewöhnliche Architektur und sein vielfältiges Programm, mit dem in einem einzigen Objekt die Verbindung zwischen der vergangenen Industriearchitektur und einer neuen Lebensweise in der Stadt erreicht werden soll, um eine bessere Zukunft zu bereiten.
Gleich neben der Alstom-Halle gelegen, ist das Gebäude »Les Docks« gerade wegen seiner Form bemerkenswert. Kästen aus perforiertem Metall, die für einige Wohnungen als Balkone dienen, ragen aus dem Hauptkörper heraus. Sie erzeugen große Außenräume und öffnen die Wohnungen zur Landschaft hin. Die verschiedenen Materialien werden mit unterschiedlichen Farben hervorgehoben: Orange für die Metallmodule und Grau für den Rest des Gebäudes. In Verbindung mit den ineinandergreifenden Betonvolumen und den äußeren Metallkästen erzeugt dies eine dynamische Fassadenanordnung. Die Nordseite zeigt auf einen neuen Park am Ufer der Seine, der mit dem neuen Bezirk konzipiert wurde. Sie besticht durch ihre Vertikalität und Höhe während die Südseite aus absteigenden Terrassen besteht, auf denen die Bewohner Sonnenschein, Aussicht und frische Luft genießen können. Ein Loch in der Mitte des Gebäudes lässt Licht hinein für die mittig gelegenen Wohnungen.
Das Programm besteht aus Geschäften, Privatwohnungen und einem gemeinschaftlichen Gemüsegarten auf der sechsten Etage. Die Läden befinden sich im Erdgeschoss. Der Zugang zu den Wohnungen erfolgt über einen überbauten Weg in einen im Hof gelegenen Garten, einem ruhigen und heiteren Bereich für die Bewohner. Die Wohnungen sind meist nur auf einer Seite offen für Tageslicht, daher wurde der Baukörper entlang einer Nord-Ost / Süd-West-Achse orientiert, um möglichst ganztägig für jede Wohnung eine natürliche Beleuchtung zu erreichen. Die nach Nordost gerichteten Wohnungen besitzen deshalb nach Osten gewandte Balkone.
Zur Selbstversorgung ist es den Anwohnern auf Wunsch möglich, im Gemüsegarten des sechsten Stockwerks ihre eigenen Pflanzen zu kultivieren. Dies soll auch den gemeinschaftlichen Austausch im Haus fördern.
Als Beitrag zur ökologischen Verantwortung in der Stadt bestätigt das Gebäude den eigenen Charakter durch seine ungewöhnliche Architektur und sein vielfältiges Programm, mit dem in einem einzigen Objekt die Verbindung zwischen der vergangenen Industriearchitektur und einer neuen Lebensweise in der Stadt erreicht werden soll, um eine bessere Zukunft zu bereiten.
Weitere Informationen:
Raumplanung: Sequano
Projektleitung: Boris Mihaylov
Innenarchitektur: Aline Defert
Tragwerksplanung: Scyna 4
Landschaftsarchitektur: Laurence Jouhaud
HLS-Planung: Cardonnel
Fläche: 6,270 m²
Kosten: 8,300,000 € Fotografen: Frédéric Delangle, Takuji Shimmura, Atelier du Pont
Raumplanung: Sequano
Projektleitung: Boris Mihaylov
Innenarchitektur: Aline Defert
Tragwerksplanung: Scyna 4
Landschaftsarchitektur: Laurence Jouhaud
HLS-Planung: Cardonnel
Fläche: 6,270 m²
Kosten: 8,300,000 € Fotografen: Frédéric Delangle, Takuji Shimmura, Atelier du Pont














