Leuchtend weiße Plombe: Laborgebäude von IDOM
Foto: Aitor Ortiz
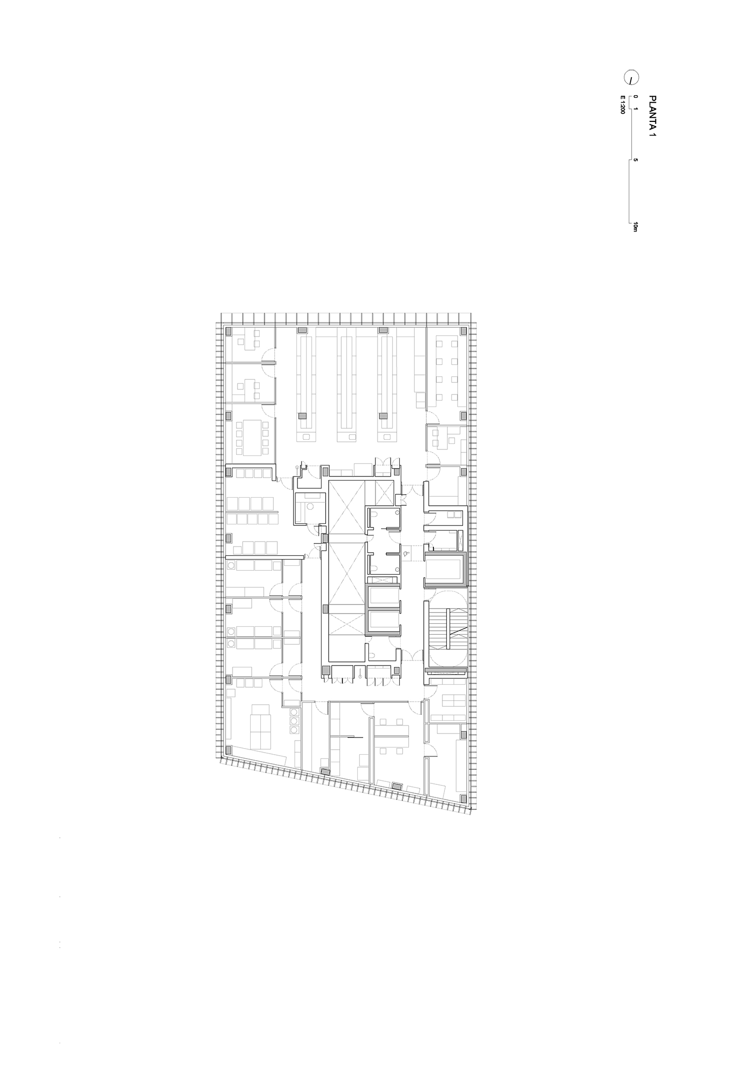
Von Außen wollten die Architekten von IDOM dem Laborgebäude einen nüchternen, geradezu sterilen Ausdruck verleihen. Eine Vorhangfassade mit weißen, geschosshohen Lamellen hält direktes Sonnenlicht und Blicke von den sehr dicht angesiedelten Nachbarn ab. Um das geforderte Raumprogramm unterzubringen, wurde bis an die Grenzen des Bebauungsplanes gebaut. An der West- und Südfassade bleiben jeweils 6 m bis zum Nachbargebäude, an der Ostfassade sind es 14 m. Einzig die Nordfassade verfügt über mehr Weite.
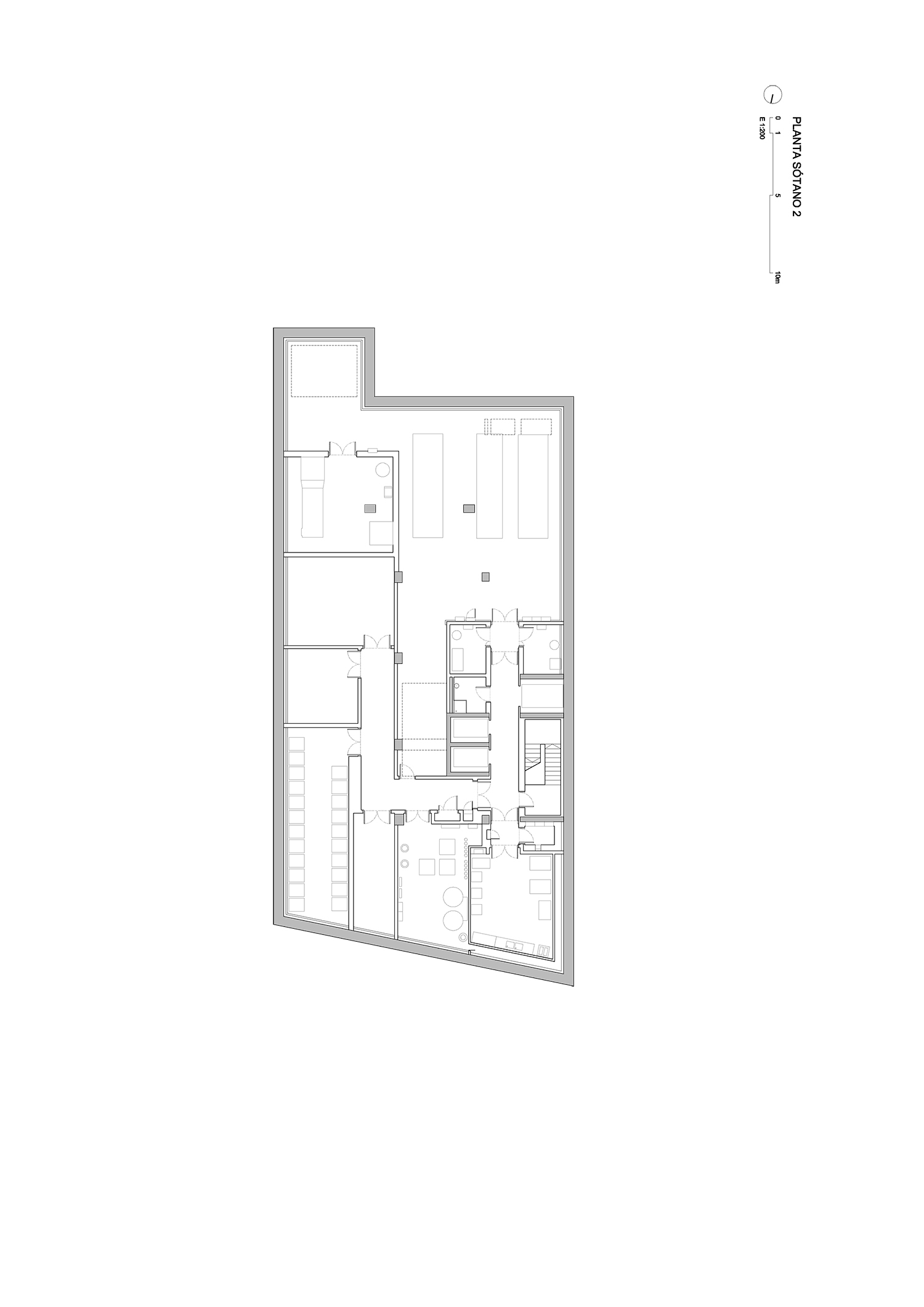
Die Enge des Baufeldes hat auch den Bauprozess des BioCruces Institutes erheblich erschwert. Da drei der acht Geschosse des Laborgebäudes unterirdisch liegen, mussten die Kellerwände mit Hilfe einer Schlitzwandfräse erstellt werden. Nur so konnte sichergestellt werden, dass die Stabilität der Nachbarn nicht gefährdet würde.
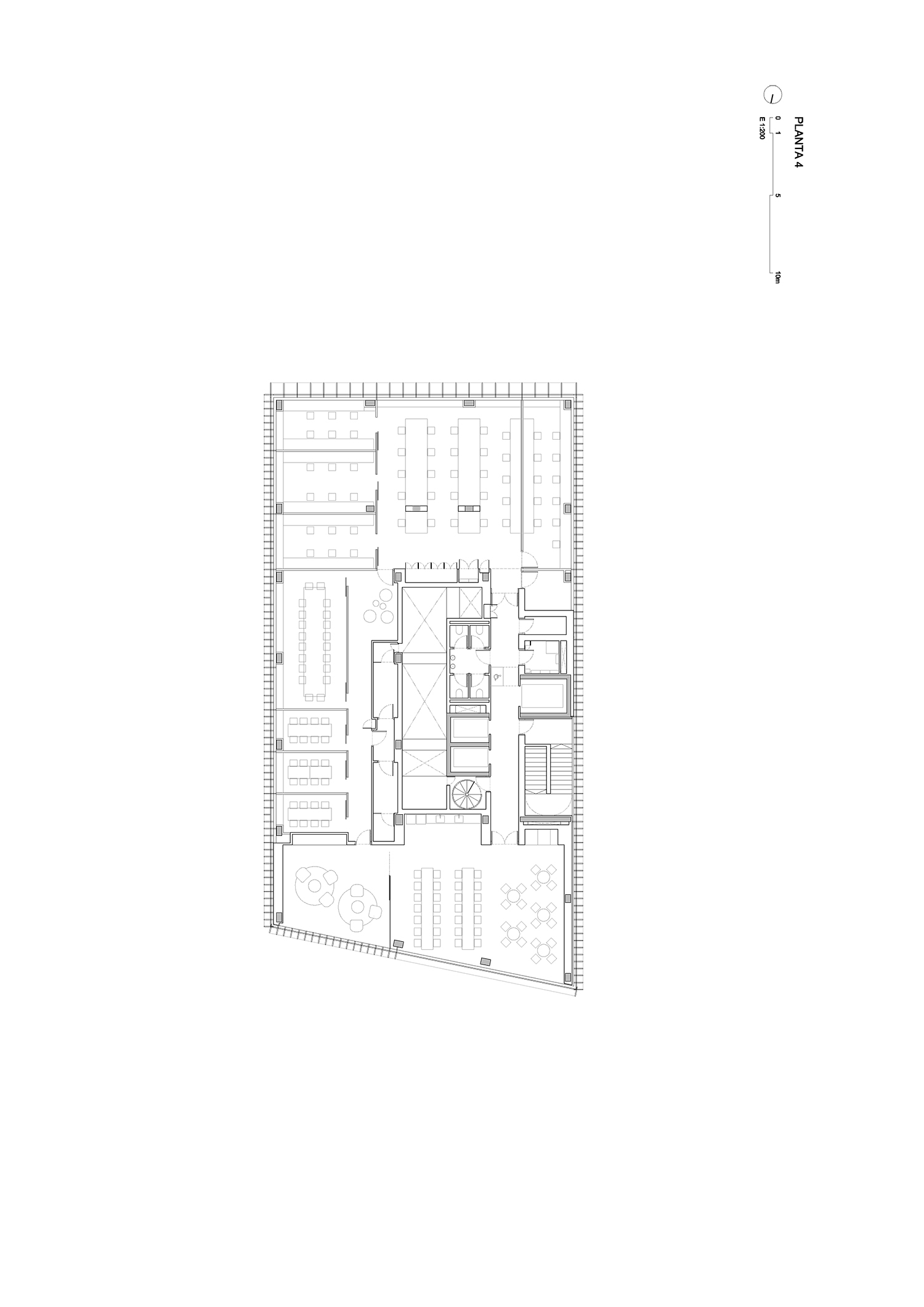
In den fünf oberirdischen Geschossen ist das Gebäude in einen Nord- und einen Südblock aufgeteilt. Dazwischen liegen die Gemeinschaftsbereiche. Um zusätzlich zu den Lamellen Einblicke zu unterbinden, wurde die Glasfassade mit weißen Punkten bedruckt. Nur im Vestibül und an den Ruhebereichen öffnen die großen Fenster den Innen- zum Außenraum.
Ganz der Farbpalette der Fassade folgend, ist auch der Innenraum in glänzendem Weiß gehalten. Wieder nehmen das Vestibül und die Ruhebereiche eine Sonderstellung ein, indem sie mit Holz ausgekleidet sind, um ihren repräsentativen und warmen Charakter zu unterstreichen. An ausgewählten Stellen kommen im Gebäude farbliche Markierungen zum Einsatz. Die Mitte des Hauptflures ist jeweils mit einem schwarzen Ring gekennzeichnet, um die Orientierung zu verbessern. Vor den Tier- und Operationsbereichen warnen rote Ringe vor der höheren Sicherheitsstufe und alle Notduschen sind in leuchtend gelben Kuben untergebracht, sodass sie nicht übersehen werden können.
Weitere Informationen:
Projektleiter: Gonzalo Carro
Mitarbeiter: Fernando Garrido
Kosten: ca. 12,6 Millionen €





























