Leuchtturm für die Energiewende: Institutsgebäude in Offenburg
Foto: Bernhard Strauss
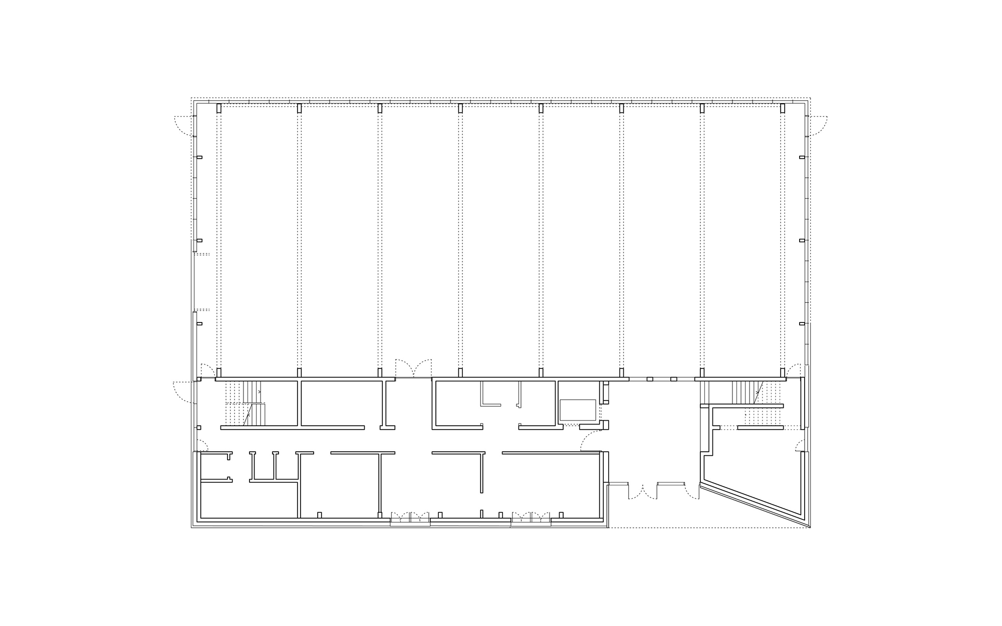
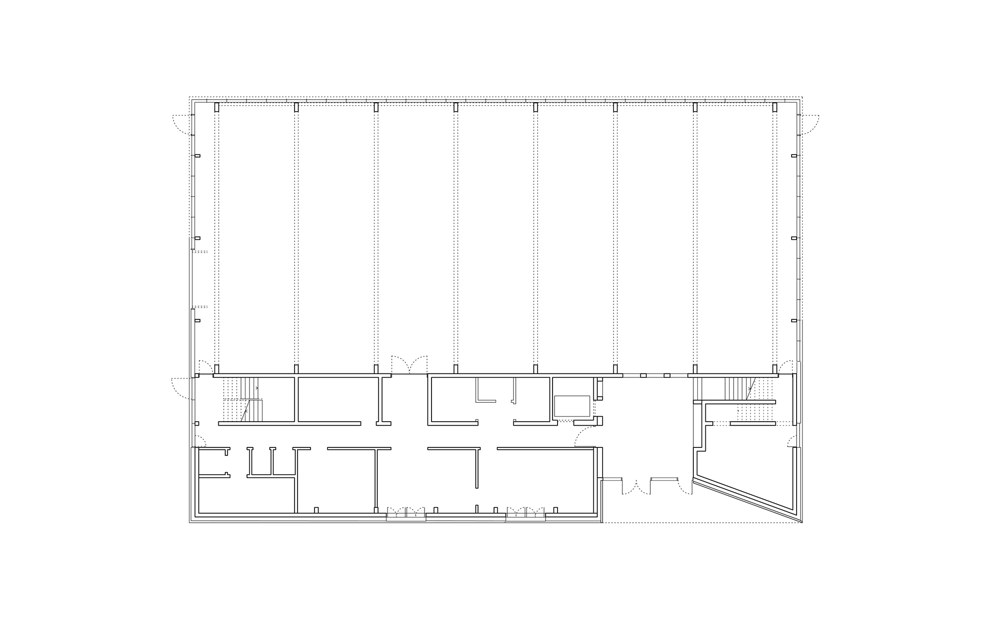
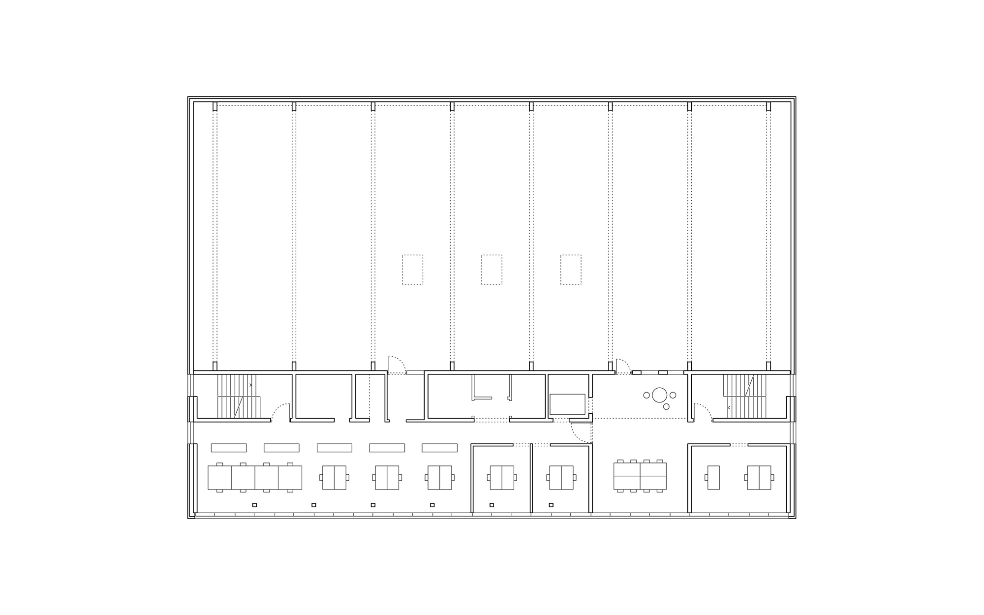
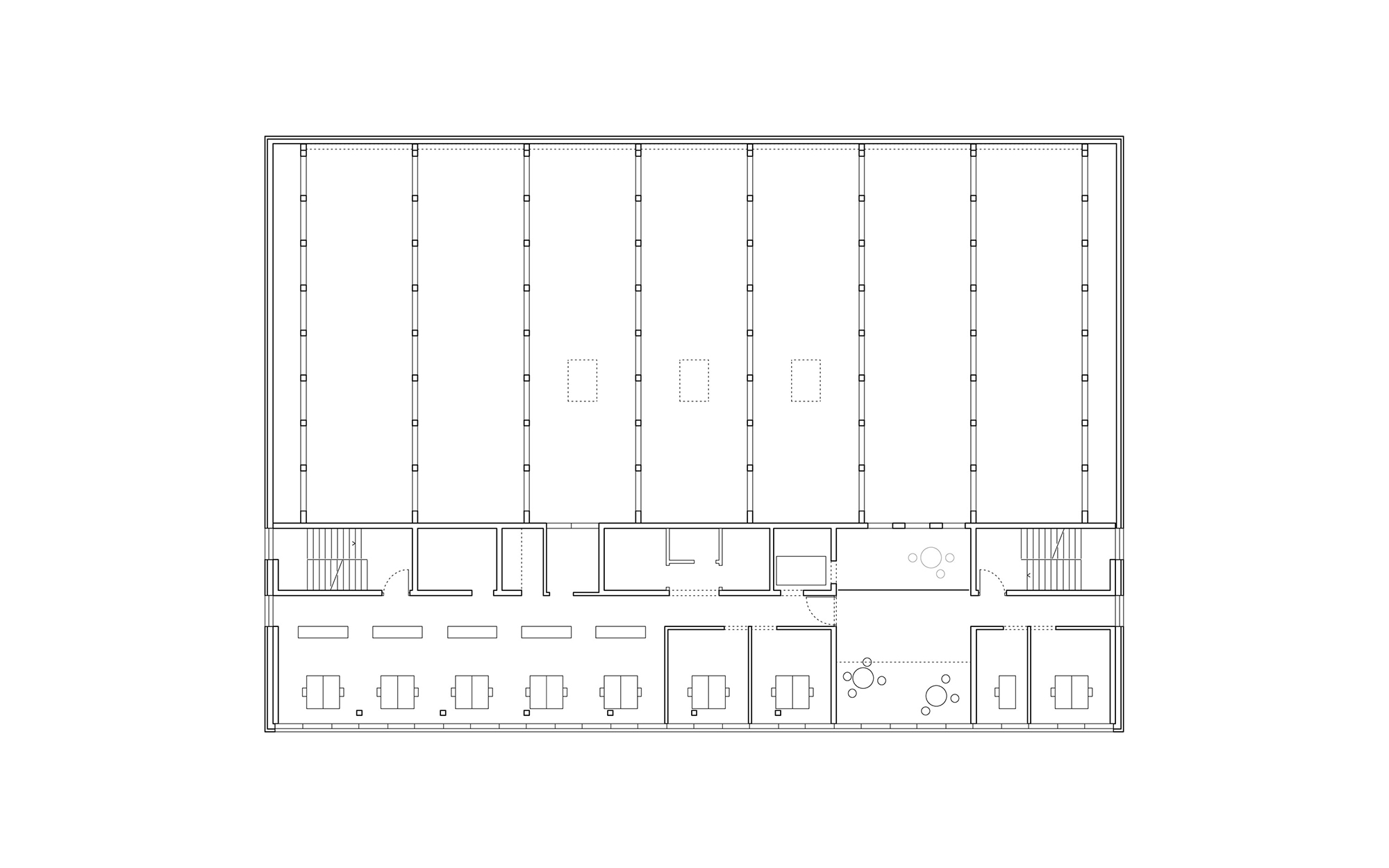
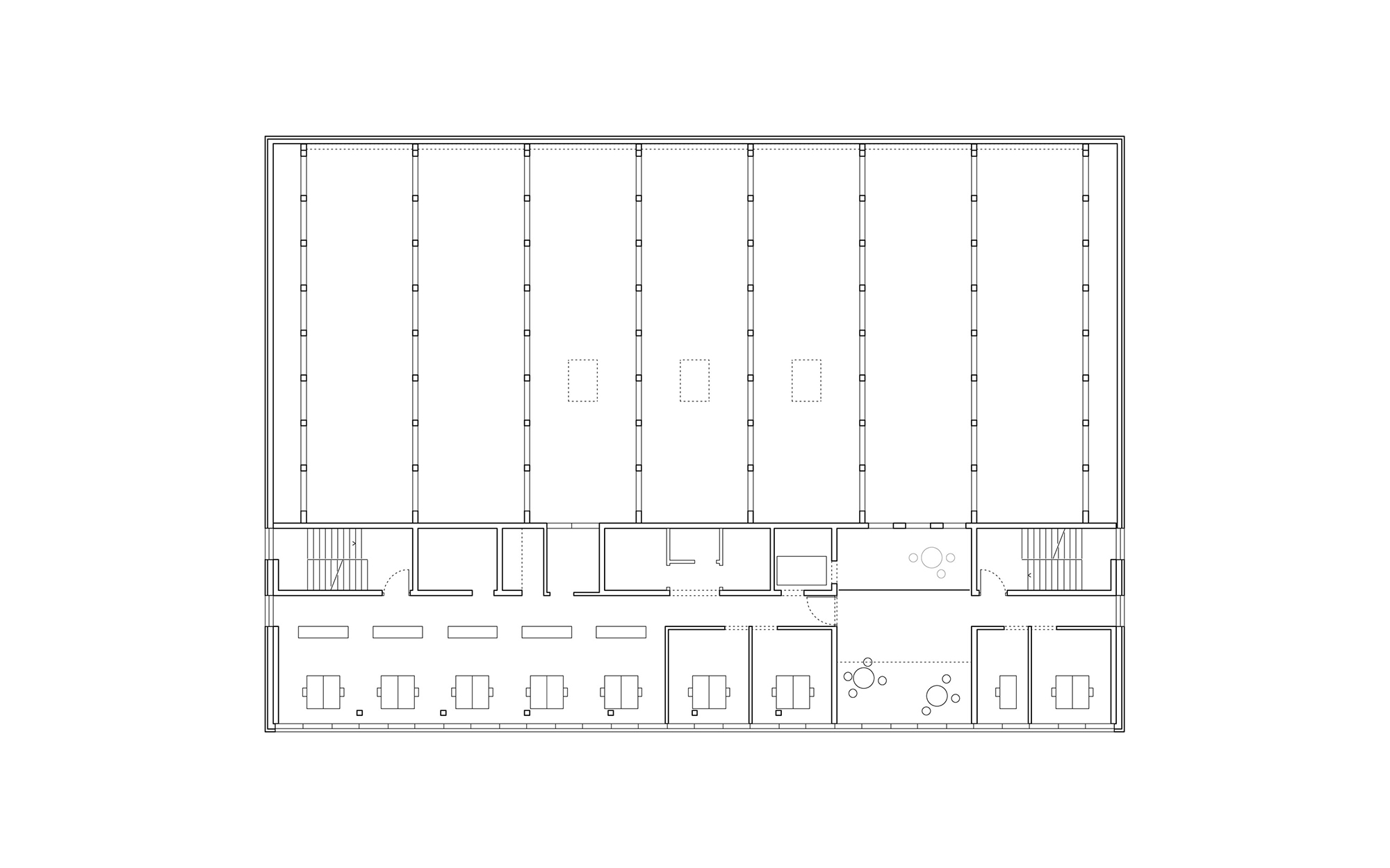
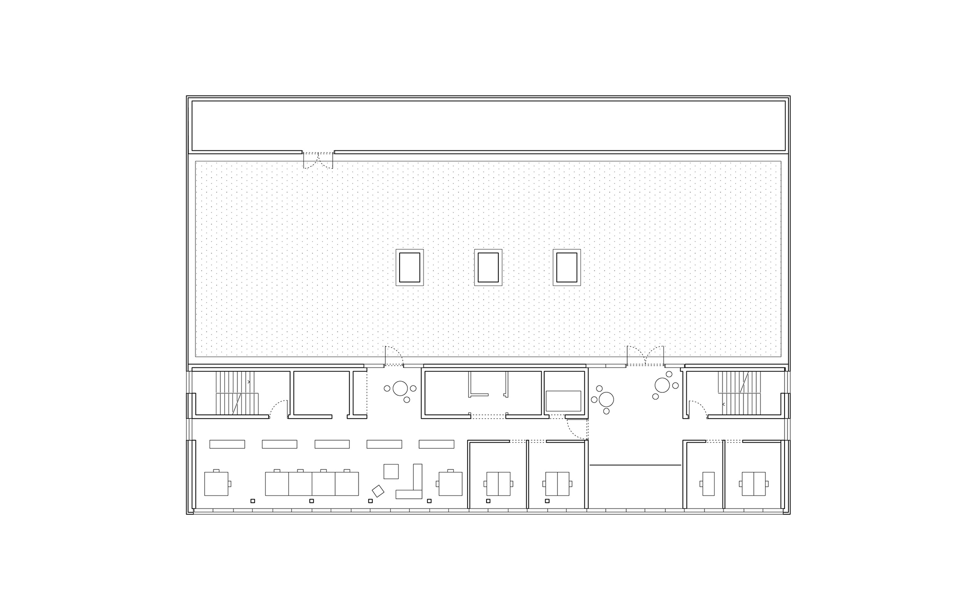
Neubauten, die der Erforschung von Ressourceneffizienz und Energietechnik dienen, setzen oft auch selbst selbst ein Zeichen für die Energiewende. Das Regionale Innovationszentrum Energietechnik (RIZ) der Hochschule Offenburg ist so ein Fall: Der Neubau von Birk Heilmeyer Frenzel aus Stuttgart entspricht dem Passivhausstandard und unterschreitet die Primärenergieanforderungen der EnEV um 70 Prozent. Auch äußerlich präsentiert sich das Haus passivhaustypisch kompakt. Die Fassaden lassen seine innere Zweigliederung erahnen: Im Westen belichten geschosshohe Fenster den dahinter liegenden Forschungstrakt und öffnen das Gebäude zum Campus Nord der Hochschule, der hier in den nächsten Jahren entstehen soll. Ein schräger Einschnitt leitet Besucher und Mitarbeiterinnen auf den Gebäudeeingang zu. Deutlich geschlossener zeigt sich die östlich angeschlossene Experimentierhalle, das sogenannte Technikum, doch auch hier erlaubt ein umlaufendes Glasband im Erdgeschoss Einblicke von außen. Auch konstruktiv besteht das Haus aus zwei Teilen: Im Technikum trägt ein Tragwerk aus Buchen-Furnierschichtholz das Hallendach, der Forschungstrakt ist hingegen ein Stahlbeton-Skelettbau mit aussteifenden Treppenhauskernen. Eine Verkleidung aus grau lasierten Weißtannen-Kanthölzern bindet die beiden Gebäudeteile gestalterisch zusammen. Indem die Architekten sie über das Hallendach hinaus fortführten, kaschierten sie auch die unterschiedlichen Gebäudehöhen – die Halle ist dreigeschossig plus Außenlabor auf dem Dach, der Forschungstrakt umfasst vier Geschosse. Den räumlichen Höhepunkt bildet hier ein Arbeitsbereich, der, von Lufträumen verbunden, über alle drei Obergeschosse reicht. Möglich wurde dies, weil er weniger als 400 m2 Gesamtfläche besitzt. Die übrigen Büroflächen der Forscher sind konventionell eingeschossig, aber offen gestaltet und kommunikationsfördernd möbliert.
Weitere Informationen:
Bauüberwachung: Meyer Galfe Architekten
Landschaftsarchitekten: Mario Kappis
HLS-Planung: solares bauen
Elektroplanung: K+P Ingenieurbüro für Elektrotechnik
Bauphysik: Stahl + Weiss


























