Lichtkaskaden: Flow Architecture renovieren Reihenhaus in London
Foto: Naaro
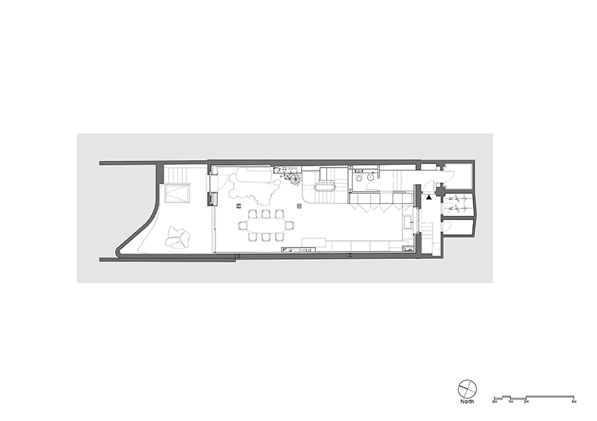
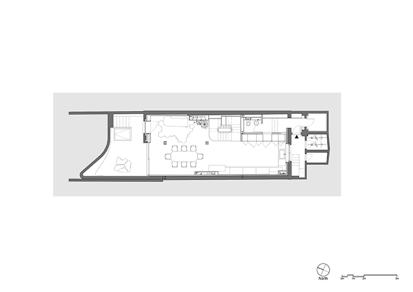
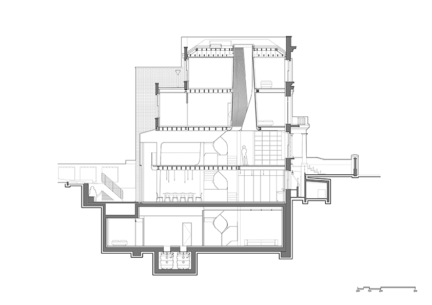
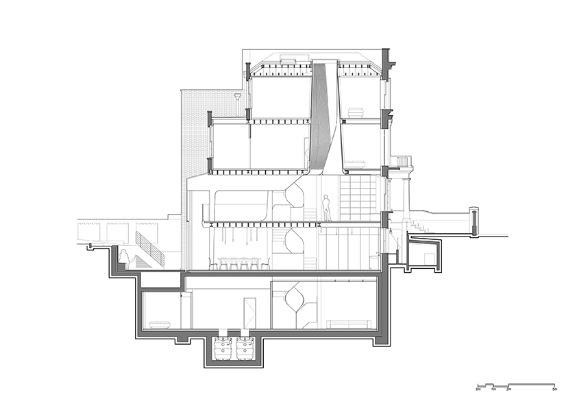
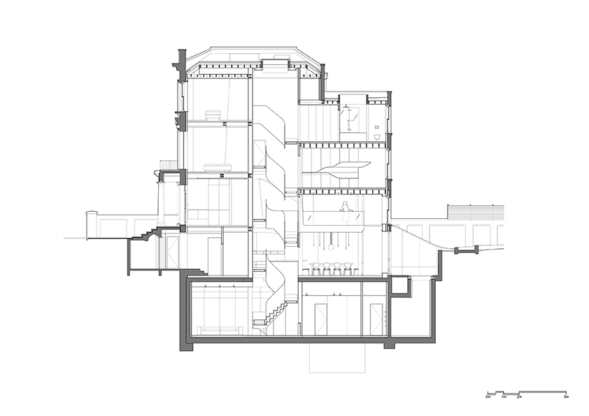
Das Reihenendhaus befindet sich in einem städtebaulichen Erhaltungsgebiet im Londoner Viertel Kensington. Bedingt durch seine Lage galt es, die äußere Erscheinung weitgehend zu erhalten. Die Architekten konzentrieren sich daher auf das Innere des Gebäudes. Großzügig öffnen sie den vormals engen, kleinteiligen Grundriss und betonen die Vertikale durch einen zentralen Lichtschacht mit umliegender Erschließung. Die angrenzenden Wohnräume verteilen sich über fünf Etagen.
Als neuer Mittelpunkt des Hauses wird das Atrium von einer geschwungenen Treppe begleitet. Zwei rahmenlose Dachfenster lassen das Licht von oben kaskadenartig einfallen. Die amorphe Form des Lichtkanals lässt den Eindruck entstehen, als würden die hereindringenden Sonnenstrahlen sich einen Weg ins Gebäude suchen. Über ein Band aus vertikalen Holzlamellen werden die angrenzenden Räume angenehm belichtet. Aussparungen in den Geschossdecken schließen direkt an den Lichtschacht an und verbinden die einzelnen Bereiche. In den oberen Etagen sind die Schlafzimmer untergebracht. Die unteren Stockwerke und das neue Souterrain teilen sich auf in einen Wohnraum mit Bibliothek und einen Koch-Essbereich mit Blick nach draußen, stets begleitet vom Licht, das die maßgeschneiderten Einbauten und hellen Oberflächen des Wohnhauses je nach Tageszeit unterschiedlich erscheinen lässt.
An der Rückseite wird das Reihenhaus um einen kleinen Anbau erweitert. Große Panoramaschiebetüren lassen ihn fließend in den angrenzenden Garten übergehen. Der Außenbereich ist liebevoll mit Bänken und Pflanzbehältern aus Glasfaserbetonplatten gestaltet und führt das leicht futuristische Design der Innenräume nach außen fort.


























