Radikaler Scheunenumbau
Lyco Haus von Oyo Architects
Ein dreieckiger Einschnitt im Dach charakterisiert das Lyco Haus bei Brüssel von Oyo Architects. © Karen Van der Biest
Respektvoll und mit feinem Gespür für den Bestand verwandeln Oyo Architects eine traditionelle Scheune des 19. Jahrhunderts in ein lichtdurchflutetes Wohnhaus mit offener Raumstruktur und starkem Außenraumbezug. Das Wohnhaus liegt in Pepingen, einem ländlichen Ort südwestlich von Brüssel.


Patio-Einschnitt, © Karen Van der Biest


Terrasse, © Karen Van der Biest
Räumliche Interventionen
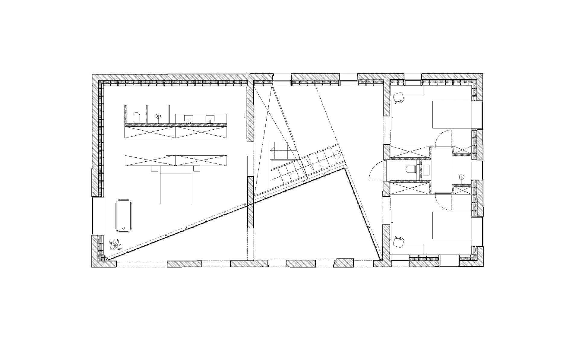
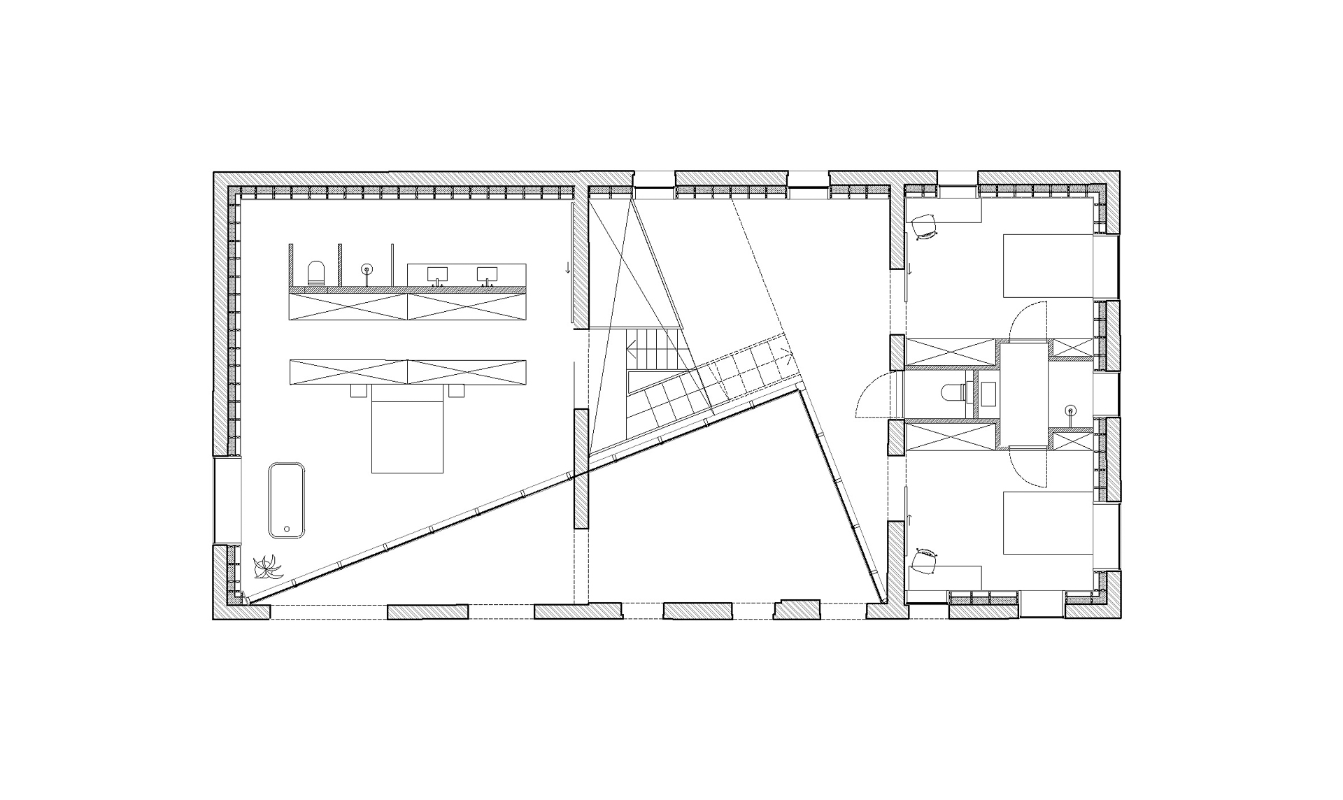
Charakteristisch ist der prägnante dreieckige Einschnitt im Volumen der Scheune, der einen fließenden Übergang zwischen Innen- und Außenraum schafft. Die straßenseitige Fassade bewahrt das äußere Erscheinungsbild einer klassischen Scheune, während die Hofseite mit einer modernen Öffnung überrascht. Versetzte Ebenen, Zwischengeschosse und doppelte Raumhöhen strukturieren den Innenraum des Hauses.


In den hellen Wohnbereichen kontrastiert Holz mit Beton. © Karen Van der Biest


Eine lachsrosafarbene Kochinsel ist der Eyecatcher in der Wohnküche des Hauses. © Karen Van der Biest
Raumkonzept
Eine geometrische Treppe aus grünem Stahl verbindet die verschiedenen Ebenen miteinander. Diese räumliche Lösung verknüpft die Schlafzimmer mit dem Wohnbereich, die Küche mit dem Garten und das Wohnzimmer mit der erhöhten Terrasse. Die Wohnbereiche gruppieren sich rund um die Küche, in deren Zentrum eine große Kochinsel in Lachsrosa hervorsticht. Die helle Kiefernholzdecke und der polierte graue Zementboden bilden einen spannungsvollen Kontrast zum dunkleren Holz der maßgefertigten Möbel. Einige Stufen oberhalb der Küche liegt das Wohnzimmer, geprägt von einer ausdrucksstarken Holzdecke und großzügigen Fenstern, die den Blick auf die Terrasse freigeben. Die sorgfältig ausgewählten Möbel in neutralen Tönen werden durch farbliche Akzente in Grün und Terrakotta ergänzt.


Badezimmer, © Karen Van der Biest


Einbauschrank, © Karen Van der Biest
Nachhaltigkeit und Komfort
Die energetische Sanierung mit Solarpaneelen auf dem Dach und einer Luft-Wasser-Wärme Pumpe sichern eine weitgehend autarke emissionsarme Energieversorgung. Das zuvor asbesthaltige Dach wurde ausgetauscht. Für thermischen Komfort und maximale Energieeffizienz kamen konstruktive Elemente aus Massivholz, Holzwolle als Dämmstoff sowie Mergel für Wände und Einbauten zum Einsatz. Materialien, die nicht nur ökologisch, sondern auch vollständig rückführbar sind. Die Landschaftsgestaltung sorgt mit heimischer Bepflanzung für eine harmonische Einbindung in die ländliche Umgebung. Überschüssiges Regenwasser wird in einen natürlichen Teich geleitet, dort gereinigt und versickert anschließend im Boden. Exemplarisch steht das Lyco Haus für integrative Architektur, Materialökologie und zukunftsorientierte Haustechnik.
Architektur: Oyo Architects
Standort: Pepingen (BE)
Tragwerksplanung: De Roover Structureel Ontwerp
Landschaftsarchitektur: Denis Dujardin
Bauunternehmen: Guy Gheldhof bvba
















