// Check if the article Layout ?>
Malerisch gelegen: Wohnhaus von Carvalho Araújo
Foto: Hugo Carvalho Araújo
Bereits vor dem Bau der »Casa do Gerês« gab es ein, höher am Hang gelegenes, bestehendes Wohnhaus. Der Gefahr von Erdrutschen ausgesetzt, beschloss man das alte Gebäude abzureißen und durch einen Neubau zu ersetzen, welches an einer günstigeren Stelle am Hang platziert wurde. Der langgezogene Baukörper lehnt sich hier rückseitig gegen das steile Gefälle und orientiert sich zum südlich gelegenen Tal. Das äußere Erscheinungsbild des neuen Gebäudes wird von zwei Elementen geprägt: Ein schwerer, betonierter Sockel und ein hölzerner Kubus werden durch ein schmales Fensterband deutlich voneinander abgesetzt.
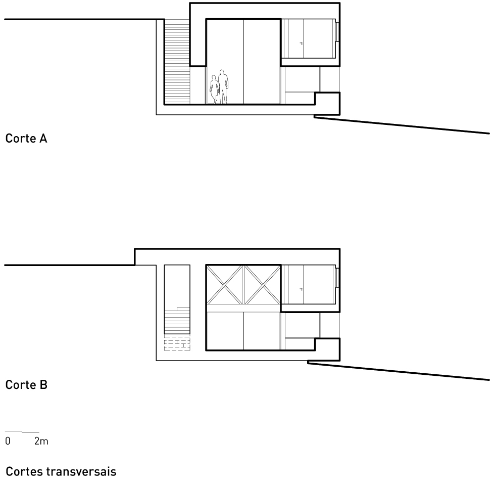
Der Zugang zur »Casa do Gerês« erfolgt über Steinstufen von der Oberseite des Hangs. Hier wird der Besucher zunächst mit einem weitläufigen Blick über das Dach des Wohnhauses in das Tal begrüßt. Eine betonierte Treppe führt anschließend hinunter in das Innere des Gebäudes. Ein großzügiges Wohnzimmer bildet den Mittelpunkt des Hauses. Es nimmt nahezu die gesamte Fläche des Erdgeschosses ein und kann von den Bewohnern flexibel als Wohn-, Ess- oder Arbeitsraum genutzt werden. Das lange Fensterband umgibt diesen Bereich von allen Seiten und holt die umliegende Landschaft ins Innere. Eine großflächige Terrasse erweitert den Wohnraum zusätzlich nach außen.
Die drei Materialien Holz, Glas und Beton prägen nicht nur das äußere Erscheinungsbild des Baukörpers, sondern durchziehen den gesamten Innenraum des Wohnhauses. Der differenzierte Einsatz der Materialien sowie variierende Geschosshöhen erzeugen im Inneren einen Wechsel von hellen, großzügigeren und dunklen, intimeren Bereichen mit unterschiedlichen atmosphärischen Qualitäten. Ein schmaleres Obergeschoss beherbergt zwei vollständig mit Holz ausgekleidete Schlafräume, die in visuellem Bezug zum Wohnzimmer stehen. Entlang des Hangs sind in einem Funktionsriegel Sanitärbereiche, Erschließung und Küche untergebracht.
Nicht nur das Innere des Gebäudes, sondern auch die Gestaltung des Außenraums bildet eine Reaktion auf die umliegende Landschaft. Ein Schotterweg führt unterhalb der Terrasse zu einem Naturschwimmbecken, welches von einer hölzernen Plattform umgeben ist. Ein plätschernder Bach, idyllische Sitzplätze am Wasser und schattige Aufenthaltsorte unter Bäumen runden das Gesamtkonzept auch auf landschaftsarchitektonischer Seite ab. Entstanden ist so ein malerischer Wohnort, der durch ein feines und stimmiges Zusammenspiel von Ort, Materialität und Raum geprägt ist.
Der Zugang zur »Casa do Gerês« erfolgt über Steinstufen von der Oberseite des Hangs. Hier wird der Besucher zunächst mit einem weitläufigen Blick über das Dach des Wohnhauses in das Tal begrüßt. Eine betonierte Treppe führt anschließend hinunter in das Innere des Gebäudes. Ein großzügiges Wohnzimmer bildet den Mittelpunkt des Hauses. Es nimmt nahezu die gesamte Fläche des Erdgeschosses ein und kann von den Bewohnern flexibel als Wohn-, Ess- oder Arbeitsraum genutzt werden. Das lange Fensterband umgibt diesen Bereich von allen Seiten und holt die umliegende Landschaft ins Innere. Eine großflächige Terrasse erweitert den Wohnraum zusätzlich nach außen.
Die drei Materialien Holz, Glas und Beton prägen nicht nur das äußere Erscheinungsbild des Baukörpers, sondern durchziehen den gesamten Innenraum des Wohnhauses. Der differenzierte Einsatz der Materialien sowie variierende Geschosshöhen erzeugen im Inneren einen Wechsel von hellen, großzügigeren und dunklen, intimeren Bereichen mit unterschiedlichen atmosphärischen Qualitäten. Ein schmaleres Obergeschoss beherbergt zwei vollständig mit Holz ausgekleidete Schlafräume, die in visuellem Bezug zum Wohnzimmer stehen. Entlang des Hangs sind in einem Funktionsriegel Sanitärbereiche, Erschließung und Küche untergebracht.
Nicht nur das Innere des Gebäudes, sondern auch die Gestaltung des Außenraums bildet eine Reaktion auf die umliegende Landschaft. Ein Schotterweg führt unterhalb der Terrasse zu einem Naturschwimmbecken, welches von einer hölzernen Plattform umgeben ist. Ein plätschernder Bach, idyllische Sitzplätze am Wasser und schattige Aufenthaltsorte unter Bäumen runden das Gesamtkonzept auch auf landschaftsarchitektonischer Seite ab. Entstanden ist so ein malerischer Wohnort, der durch ein feines und stimmiges Zusammenspiel von Ort, Materialität und Raum geprägt ist.
weitere Informationen:
Architekt: Carvalho Araújo
Team: José Manuel Carvalho Araújo, Joel Moniz, Leandro Silva, Ana Vilar, André Torres, Mafalda Santiago, Sandra Ferreira
Landschaftsarchitektur: João Bicho and Joana Carneiro, Arquitectos Paisagistas
Tragwerk: Metaloviana, Metalúrgica de Viana, SA
Akustik: Vagaeng
Fotos: Hugo Carvalho Araújo
Team: José Manuel Carvalho Araújo, Joel Moniz, Leandro Silva, Ana Vilar, André Torres, Mafalda Santiago, Sandra Ferreira
Landschaftsarchitektur: João Bicho and Joana Carneiro, Arquitectos Paisagistas
Tragwerk: Metaloviana, Metalúrgica de Viana, SA
Akustik: Vagaeng
Fotos: Hugo Carvalho Araújo


















