// Check if the article Layout ?>
Massiv und transparent: Casa Kwantes von MVRDV
Foto: Ossip van Duivenbode
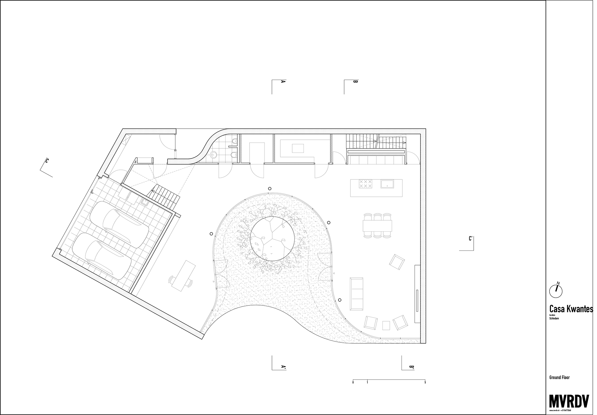
Die Casa Kwantes steht auf einem Eckgrundstück inmitten eines Wohnviertels im Westen Rotterdams. Dieses wird in nördlicher und westlicher Richtung von Straßen begrenzt bevor es zwischen den Nachbarparzellen nach Süden hin konisch zuläuft. Das Volumen des Wohnhauses orientiert sich zur Gänze an den Nachbargebäuden. Ausgehend von deren Tiefe und denselben Fluchten folgend entwickelt es sich parallel zu den Außengrenzen des Bauplatzes von zwei Seiten bis es über Eck zu einem Baukörper verschmilzt. Die Erschließung erfolgt von Westen her über eine Garagenzufahrt und den zentralen Haupteingang in der nördlich ausgerichteten Längsfassade. Auf zwei Geschosse verteilt verfügt die Casa über eine stolze Fläche von 480 Quadratmetern, die mit einem schlichten Flachdach abschließt.
Massive Außenansicht
Alle von außen erkennbaren Ansichten sind in flachen beigefarbenen Ziegeln ausgeführt. Geschlossen und nahezu massiv grenzt sich der Wohnbau von seiner Umgebung ab und macht den Wunsch nach Privatsphäre deutlich sichtbar. Nur im Bereich des Eingangs bilden die Ziegel eine Art Nische. Der Zugang zum Haus scheint möglichst wenig Aufmerksamkeit erregen zu wollen. Transparente Gartenansicht
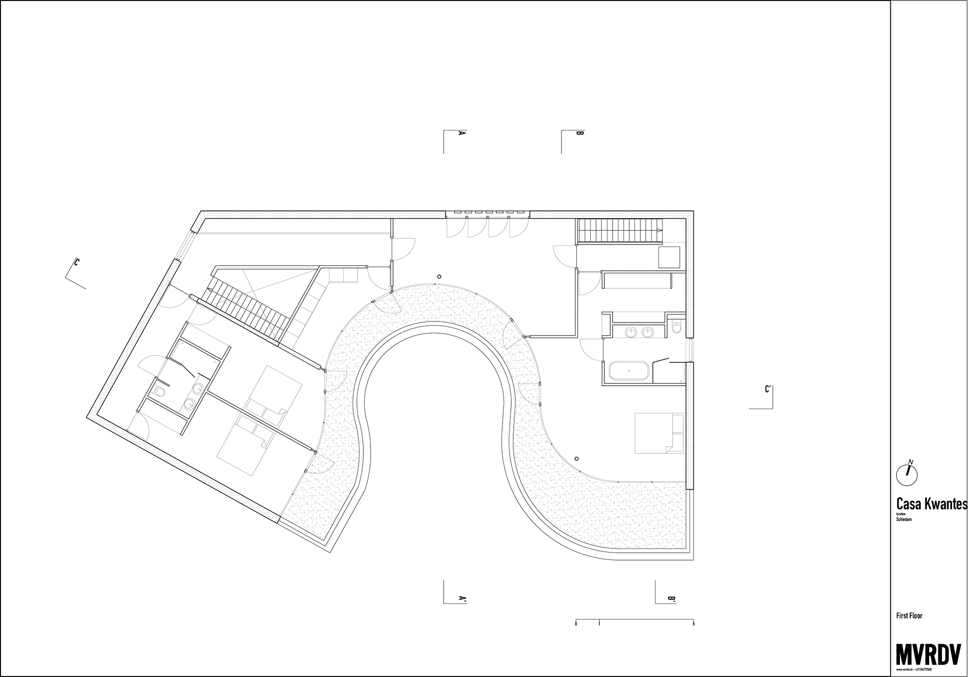
Ein konträres Bild bietet sich vom Garten: Raumhohe Glaselemente fügen sich zu einer geschwungenen Fassade zusammen, die sich rund um den zentralen Olivenbaum schlängelt. Die beigen Fassadenziegel rahmen die Geschosse seitlich und nach oben hin, sonst erinnert nichts an die strikt orthogonalen Straßenansichten. Es entsteht ein wohnlicher, lebendiger Raum, der den fließenden Übergang von Innen und Außen bewusst inszeniert. Im Erdgeschoss verstärkt sich der Bezug zwischen Wohnraum und Garten. Sämtliche Innenräume sind zu dem kleinen Olivenbäumchen hin ausgerichtet. Ein heller Fußbodenbelag geht, dank der schwellenlosen Ausbildung der Glaspaneele, direkt in die Terrasse über. Der erste Stock gleicht dem unteren Bereich bis auf leichte Rücksprünge. Diese bieten Platz für einen umlaufenden Balkon, der sich ebenfalls zum Patio orientiert. Die Organisation der Wohnbereiche folgt der Konzeption der Außenansichten. Ein raumhohes Einbauelement aus Holz beinhaltet alle privaten Funktionen und fasst sie rückseitig im geschlosseneren Teil der Casa zusammen, bevor sich alle Räume zum Glas und damit zum Garten hin öffnen. Die Oberflächen folgen glatt und weißt einer schlichten Linie. Nicht nur in gestalterischer, sondern auch in technischer Hinsicht hat das Projekt einiges zu bieten. Neben einem Erdwärmepump- und einem Rückkühlungssystem gibt es Solarpaneele auf dem Dach – sie machen die Casa nahezu energieautark.
Alle von außen erkennbaren Ansichten sind in flachen beigefarbenen Ziegeln ausgeführt. Geschlossen und nahezu massiv grenzt sich der Wohnbau von seiner Umgebung ab und macht den Wunsch nach Privatsphäre deutlich sichtbar. Nur im Bereich des Eingangs bilden die Ziegel eine Art Nische. Der Zugang zum Haus scheint möglichst wenig Aufmerksamkeit erregen zu wollen. Transparente Gartenansicht
Ein konträres Bild bietet sich vom Garten: Raumhohe Glaselemente fügen sich zu einer geschwungenen Fassade zusammen, die sich rund um den zentralen Olivenbaum schlängelt. Die beigen Fassadenziegel rahmen die Geschosse seitlich und nach oben hin, sonst erinnert nichts an die strikt orthogonalen Straßenansichten. Es entsteht ein wohnlicher, lebendiger Raum, der den fließenden Übergang von Innen und Außen bewusst inszeniert. Im Erdgeschoss verstärkt sich der Bezug zwischen Wohnraum und Garten. Sämtliche Innenräume sind zu dem kleinen Olivenbäumchen hin ausgerichtet. Ein heller Fußbodenbelag geht, dank der schwellenlosen Ausbildung der Glaspaneele, direkt in die Terrasse über. Der erste Stock gleicht dem unteren Bereich bis auf leichte Rücksprünge. Diese bieten Platz für einen umlaufenden Balkon, der sich ebenfalls zum Patio orientiert. Die Organisation der Wohnbereiche folgt der Konzeption der Außenansichten. Ein raumhohes Einbauelement aus Holz beinhaltet alle privaten Funktionen und fasst sie rückseitig im geschlosseneren Teil der Casa zusammen, bevor sich alle Räume zum Glas und damit zum Garten hin öffnen. Die Oberflächen folgen glatt und weißt einer schlichten Linie. Nicht nur in gestalterischer, sondern auch in technischer Hinsicht hat das Projekt einiges zu bieten. Neben einem Erdwärmepump- und einem Rückkühlungssystem gibt es Solarpaneele auf dem Dach – sie machen die Casa nahezu energieautark.
Weitere Informationen:
Team: Winy Maas, Jacob van Rijs, Nathalie de Vries, Frans de Witte, Herman Gaarman, Arjen Ketting and Brygida Zawadzka
























