// Check if the article Layout ?>
Lebenslauf:
Maximila Ott, geboren 1993 in Graz (Österreich), begann nach einem Ausflug in die Restaurierung 2012 ihr Diplomstudium im Fachbereich Architektur an der TU Dresden. Neben dem Studium arbeitete sie bei Wörner Traxler Richter Architekten, sowie RKA Architekten in Dresden und absolvierte ein sechsmonatiges Praktikum bei Jägnefält & Milton in Stockholm. Im Sommersemester 2016 war sie als Studentische Hilfskraft am Lehrstuhl für Raumgestaltung und Gestaltungslehre an der TU Dresden tätig.
Im Mai beginnt sie ihr Praktikum bei Christ & Gantenbein in Basel, anschließend wird sie ab Herbst 2017 ihr Erasmus-Semester an der Accademia di Architettura di Mendrisio verbringen. Was bedeutet das DETAIL Stipendium für Sie bzw. was erwarten Sie sich davon?
Zuallererst bedeutet das DETAIL Stipendium für mich eine Anerkennung meiner bisherigen Arbeiten und Auseinandersetzung mit Architektur. Gleichzeitig sehe ich es auch als Ansporn in diesem Sinne weiter arbeiten zu können.
Des Weiteren hilft mir das Stipendium mein Erasmus Semester an der Accademia di Architettura di Mendrisio zu finanzieren und ermöglicht mir so einen akademischen Austausch, bevor ich mein Studium im nächsten Jahr beende.
Ich freue mich auf ein spannendes Jahr, den gedanklichen Austausch mit den anderen Stipendiaten, sowie die Erweiterung meines Netzwerkes durch DETAIL und Schüco. Welchen Stellenwert hat die Architektur in ihrem Leben und welche Themen beschäftigen Sie sonst noch?
In den letzten Jahren hat die Architektur einen immer größeren Stellenwert in meinem Leben eingenommen. Mode, Fotografie und Literatur waren schon immer wichtige Themen für mich. Aber ich denke, dass sich meine Sichtweise im Laufe des Studiums und mit der immer intensiveren Auseinandersetzung mit der Architektur verändert hat und ich vieles das ich lese oder sehe auf die Architektur rückbeziehe und in meine Entwürfe miteinbeziehe.
Architektur ist für mich etwas das immer präsent ist, etwas von dem man keine Pause machen kann und will. Projektbeispiel: LAPIDARIUM
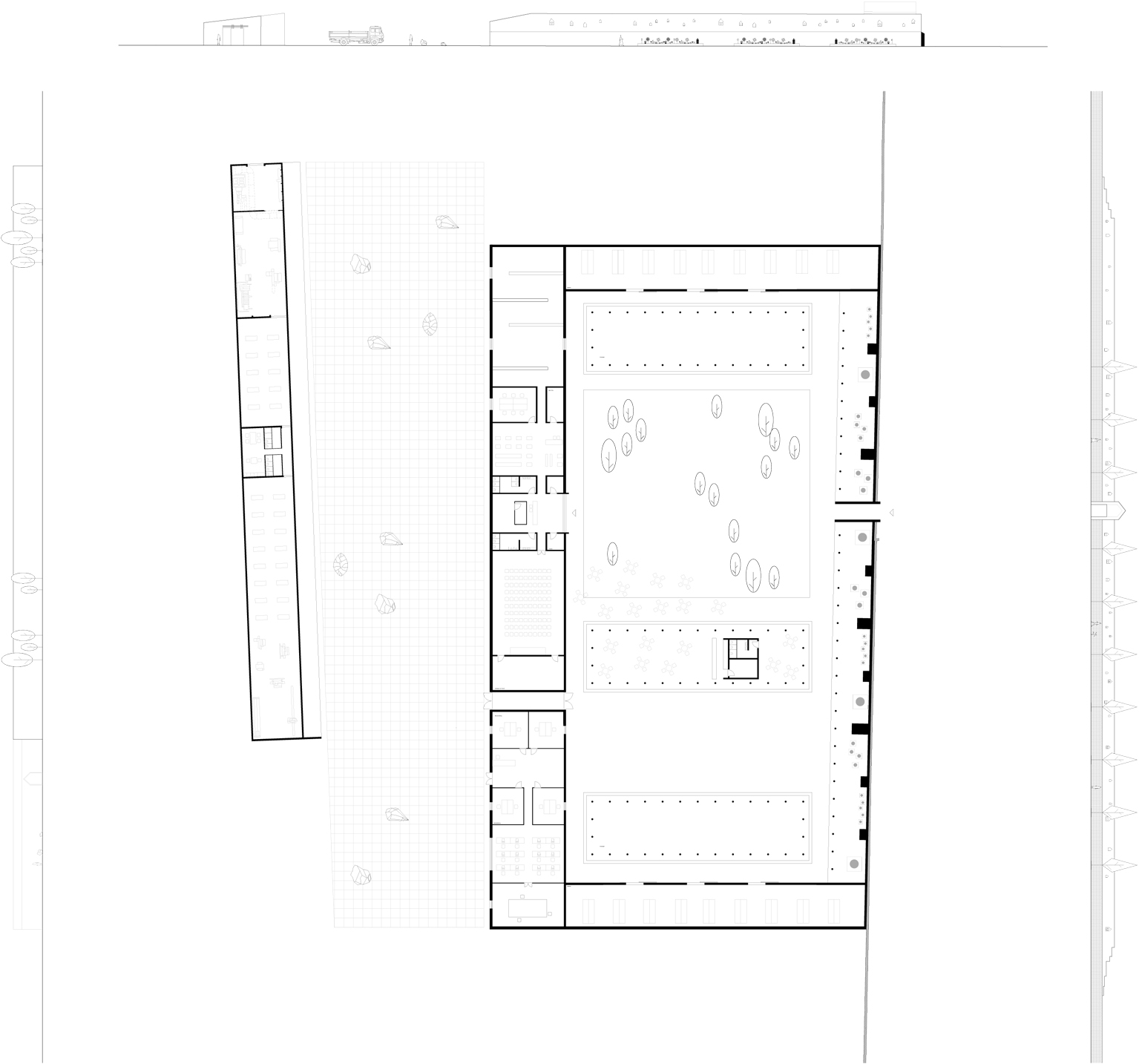
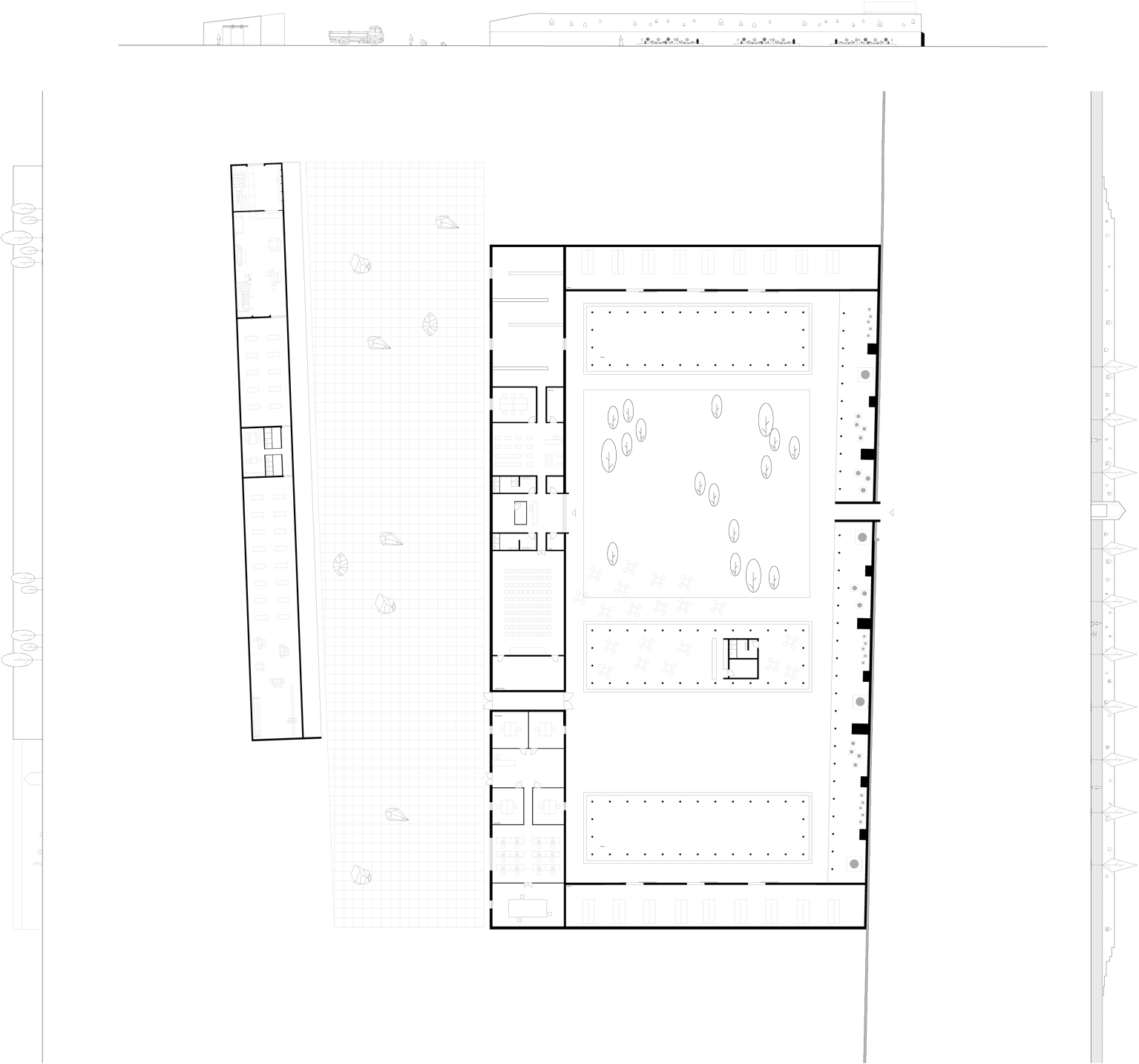
Schlosspark Sanssouci, Potsdam, Entwurf 2016
Maximila Ott - DETAIL Stipendiatin 2017/2018
Lebenslauf:Maximila Ott, geboren 1993 in Graz (Österreich), begann nach einem Ausflug in die Restaurierung 2012 ihr Diplomstudium im Fachbereich Architektur an der TU Dresden. Neben dem Studium arbeitete sie bei Wörner Traxler Richter Architekten, sowie RKA Architekten in Dresden und absolvierte ein sechsmonatiges Praktikum bei Jägnefält & Milton in Stockholm. Im Sommersemester 2016 war sie als Studentische Hilfskraft am Lehrstuhl für Raumgestaltung und Gestaltungslehre an der TU Dresden tätig.
Im Mai beginnt sie ihr Praktikum bei Christ & Gantenbein in Basel, anschließend wird sie ab Herbst 2017 ihr Erasmus-Semester an der Accademia di Architettura di Mendrisio verbringen. Was bedeutet das DETAIL Stipendium für Sie bzw. was erwarten Sie sich davon?
Zuallererst bedeutet das DETAIL Stipendium für mich eine Anerkennung meiner bisherigen Arbeiten und Auseinandersetzung mit Architektur. Gleichzeitig sehe ich es auch als Ansporn in diesem Sinne weiter arbeiten zu können.
Des Weiteren hilft mir das Stipendium mein Erasmus Semester an der Accademia di Architettura di Mendrisio zu finanzieren und ermöglicht mir so einen akademischen Austausch, bevor ich mein Studium im nächsten Jahr beende.
Ich freue mich auf ein spannendes Jahr, den gedanklichen Austausch mit den anderen Stipendiaten, sowie die Erweiterung meines Netzwerkes durch DETAIL und Schüco. Welchen Stellenwert hat die Architektur in ihrem Leben und welche Themen beschäftigen Sie sonst noch?
In den letzten Jahren hat die Architektur einen immer größeren Stellenwert in meinem Leben eingenommen. Mode, Fotografie und Literatur waren schon immer wichtige Themen für mich. Aber ich denke, dass sich meine Sichtweise im Laufe des Studiums und mit der immer intensiveren Auseinandersetzung mit der Architektur verändert hat und ich vieles das ich lese oder sehe auf die Architektur rückbeziehe und in meine Entwürfe miteinbeziehe.
Architektur ist für mich etwas das immer präsent ist, etwas von dem man keine Pause machen kann und will. Projektbeispiel: LAPIDARIUM
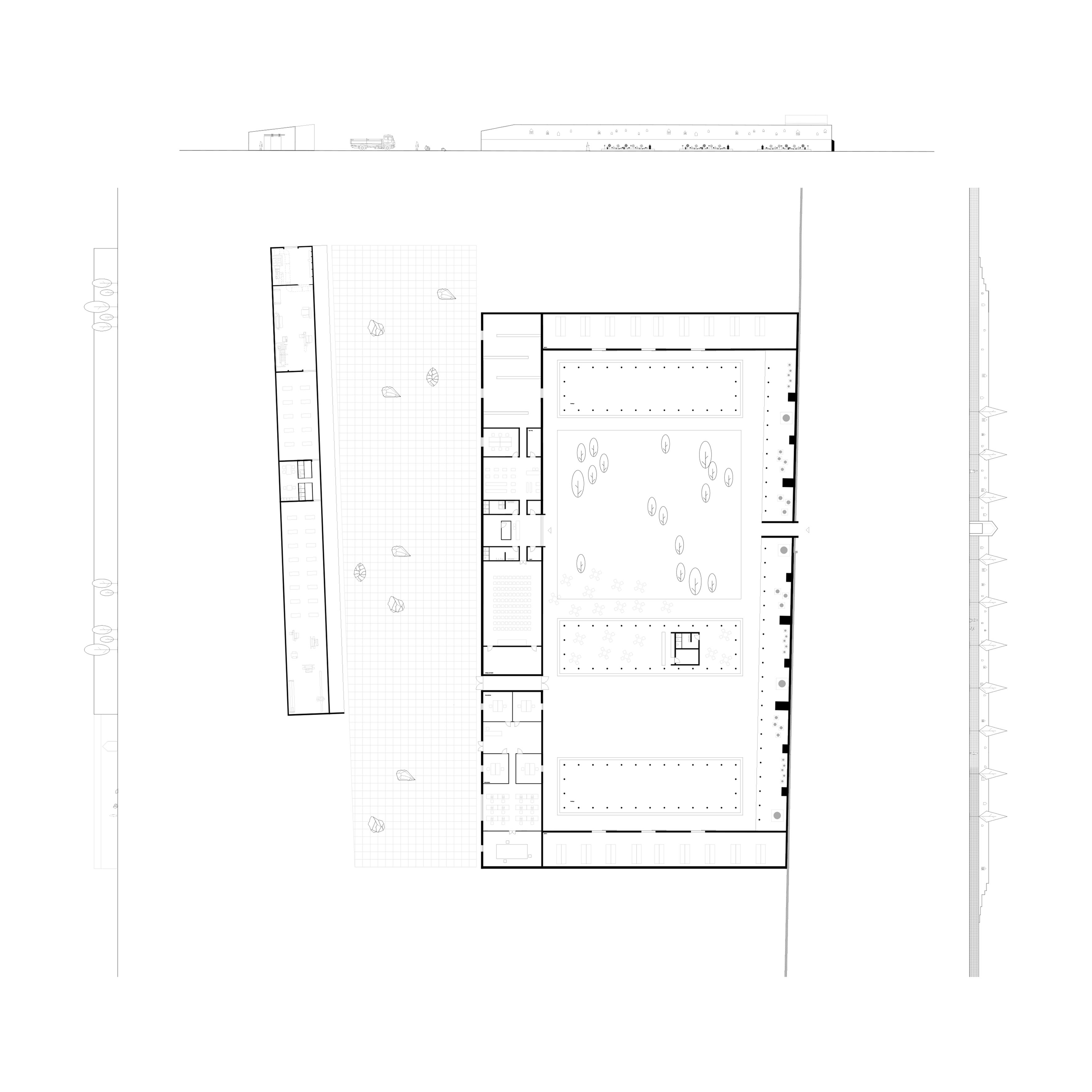
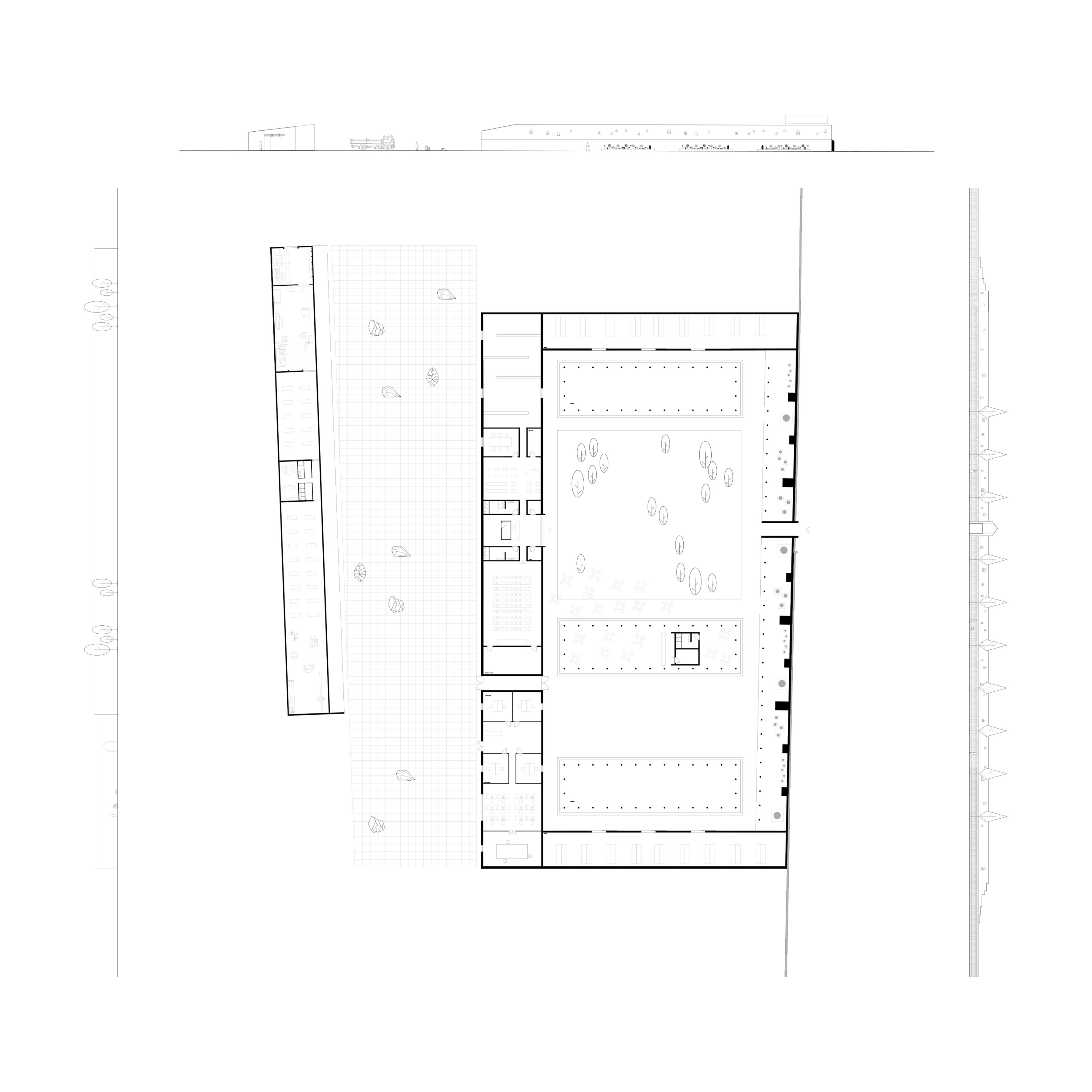
Schlosspark Sanssouci, Potsdam, Entwurf 2016
Hinter einer alten Ziegelmauer, im ehemaligen Obstgarten des Schlosses Sanssouci soll ein Lapidarium mit Museum, Café und Restaurierungswerkstatt entstehen.
Die existierende Mauer wird erhalten und durch eine neue höhere Mauer in ihrer Bedeutung gestärkt, aus dieser Mauer heraus entsteht ein Hofhaus. Durch eine Ädikula die, die Mauer unterbricht betritt man den Patio, der durch drei eingestellte Pavillons gegliedert wird. Der Patio bildet das Zentrum des Lapidariums, er ist Rückzugsort von der Außenwelt und Ausstellungsraum zugleich. Die Restaurierungswerkstatt befindet sich in einem separaten Gebäude welches mit der Rückseite des Hauptgebäudes einen Werkhof formt, der den Besuchern Einblicke in den Prozess gewährt und so teil des Museums wird. Statement der Jury zu den eingereichten Arbeiten von Maximila Ott:
Die Arbeiten Maximila Otts zeigen ein erstaunlich geschlossenes Bild und weisen eine hohe Eigenständigkeit auf. Die vorgestellten Architekturen sind stimmungsvoll und auf hohem Niveau kommuniziert. Auch im Detail werden Visionen erzeugt, die in ihrer Gesamtheit sowohl in der Darstellung als auch in der Durchdringung eine hohe Kohärenz erreichen. Obwohl deutlich erkennbar ist, woher die Referenzen stammen, sind diese so verarbeitet, dass sie zu einer eigenen Ausdrucksform finden. Eine Stärke der Arbeit liegt unter anderem darin, dass sie den Betrachter in der Historie abholt, dann aber einen eigenen Standpunkt erreicht. Erkennbar ist eine gewisse Romantik, die aber sehr beherrscht ist und dadurch nicht zu nah am Kitsch platziert ist. Eine räumlich und atmosphärisch sehr einfühlsame Arbeit.
Die existierende Mauer wird erhalten und durch eine neue höhere Mauer in ihrer Bedeutung gestärkt, aus dieser Mauer heraus entsteht ein Hofhaus. Durch eine Ädikula die, die Mauer unterbricht betritt man den Patio, der durch drei eingestellte Pavillons gegliedert wird. Der Patio bildet das Zentrum des Lapidariums, er ist Rückzugsort von der Außenwelt und Ausstellungsraum zugleich. Die Restaurierungswerkstatt befindet sich in einem separaten Gebäude welches mit der Rückseite des Hauptgebäudes einen Werkhof formt, der den Besuchern Einblicke in den Prozess gewährt und so teil des Museums wird. Statement der Jury zu den eingereichten Arbeiten von Maximila Ott:
Die Arbeiten Maximila Otts zeigen ein erstaunlich geschlossenes Bild und weisen eine hohe Eigenständigkeit auf. Die vorgestellten Architekturen sind stimmungsvoll und auf hohem Niveau kommuniziert. Auch im Detail werden Visionen erzeugt, die in ihrer Gesamtheit sowohl in der Darstellung als auch in der Durchdringung eine hohe Kohärenz erreichen. Obwohl deutlich erkennbar ist, woher die Referenzen stammen, sind diese so verarbeitet, dass sie zu einer eigenen Ausdrucksform finden. Eine Stärke der Arbeit liegt unter anderem darin, dass sie den Betrachter in der Historie abholt, dann aber einen eigenen Standpunkt erreicht. Erkennbar ist eine gewisse Romantik, die aber sehr beherrscht ist und dadurch nicht zu nah am Kitsch platziert ist. Eine räumlich und atmosphärisch sehr einfühlsame Arbeit.









