Mehr als nur Arbeit: Coworking Space von Babelstudio
Foto: Biderbost Photo
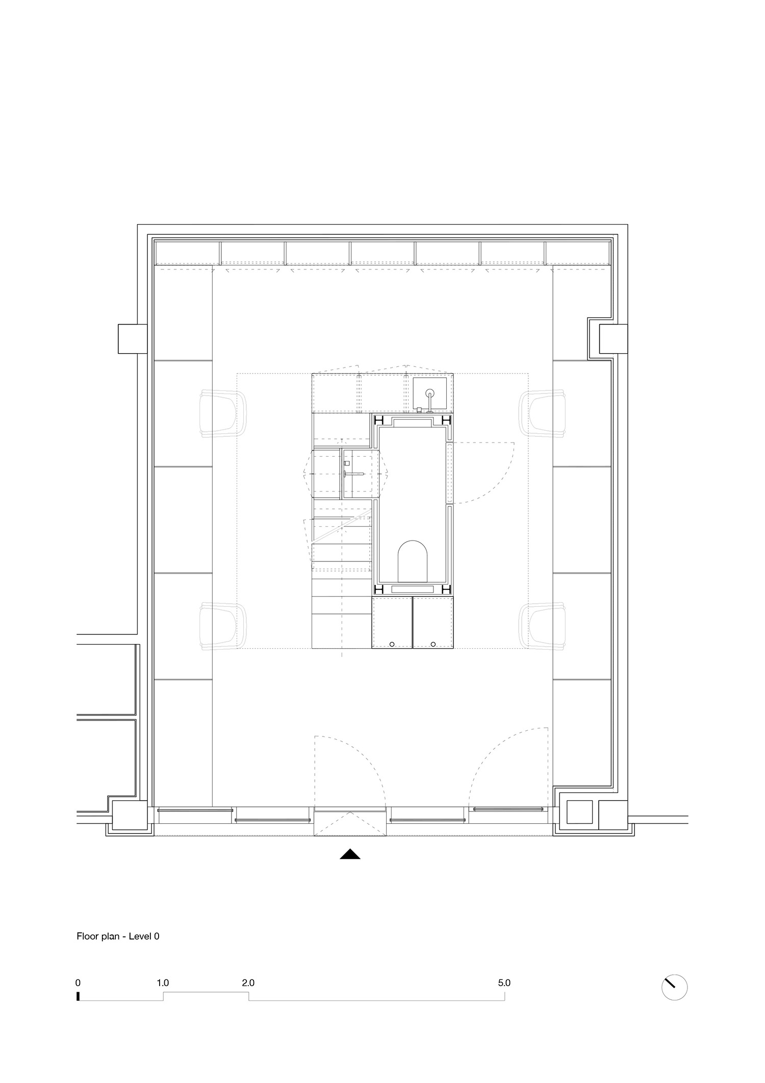
Der Auftraggeber, Architekturfotograf Erlantz Biderbost, wünschte sich einen vielseitig nutzbaren Ort. Aus diesem Grund vereint Oslo Cowork Besprechungs- und Erholungsbereiche, eine kleine Küchenzeile, Bad, Stauraum und Coworking Space in einem – und das alles auf gerade einmal 39 m2. Den hohen Raum strukturieren Babelstudio mit einem zweigeschossigen Einbau aus Holz, der zentral in dem multifunktionalen Büro positioniert ist.
Oslo Cowork setzt sich aus einem kompakten Basisvolumen zusammen: Im hinteren Teil befindet sich die Küchenzeile; Aufbewahrungsmöglichkeiten und die winzige Nasszelle sind seitlich integriert; im vorderen Bereich befinden sich Sitzgelegenheiten und die Treppe. Auf der darüberliegenden Plattform können sich die Nutzer treffen oder Meetings abhalten. Der Einbau steht frei im Raum und lässt diesen dadurch optisch geräumiger wirken.
Die Straßenfassade des kleinen Büros ist komplett verglast. Holzrahmen fassen die Fensterfront ein und weisen mit ihrer Unterteilung dezent auf die beiden Niveaus im Innenraum hin. Rund um den Holzkörper ordnen sich die unterschiedlichen Funktionen an. Entlang der Seitenwände gibt es lange Schreibtische, die flexibel weggeklappt werden können und bei Bedarf Platz für Ausstellungen oder andere Events machen. Der hintere Teil des Raums ist visuell von dem Einbau getrennt; an der Rückseite bietet eine große Regalwand reichlich Stauraum.
Die Materialien und Oberflächen in Oslo Cowork sind reduziert und schlicht gehalten. Großflächige Verglasungen lassen viel Tageslicht in den Raum, wodurch dieser offen und freundlich erscheint. Helles Eschenholz sorgt in Kombination mit dem rostrot gefliesten Boden und Messingakzenten für ein harmonisches Gesamtbild. Sockel und Decke zieren rohe Betonsteine. Ein grauer Teppichboden im oberen Niveau des Einbaus und dezente Hängelampen komplettieren das Design des abwechslungsreichen Coworking Space.





















