Nachhaltiges Wohnen in Holzbauweise
Mehrfamilienhaus in Berlin von Scharabi Architekten
Die hölzernen Bauteile des Mehrfamilienhauses in Berlin bleiben im Innenraum sichtbar. © Jan Bitter
Nachhaltige Bauweise, sozialer Zusammenhalt und hoher Wohnkomfort verbinden sich im Holzhaus Linse in Berlin Schöneberg. Das ideenreiche Wohnkonzept erprobt das städtische Wohnen der Zukunft.


Schiebetüren ermöglichen nach Bedarf ein offenes oder geschlossenes Raumgefüge. © Jan Bitter
Das neue, mehrgeschossige Wohnhaus befindet sich am stark befahrenen Sachsendamm im Südwesten der Stadt. Es entstand im Rahmen eines Stadtentwicklungsprojekts. Die Schöneberger Linse meint ein Gelände zwischen dem Bahnhof Südkreuz und dem S-Bahnhof Schöneberg. Bis 2025 wird hier ein neues Stadtquartier entstehen.
Soziales Wohnprogramm
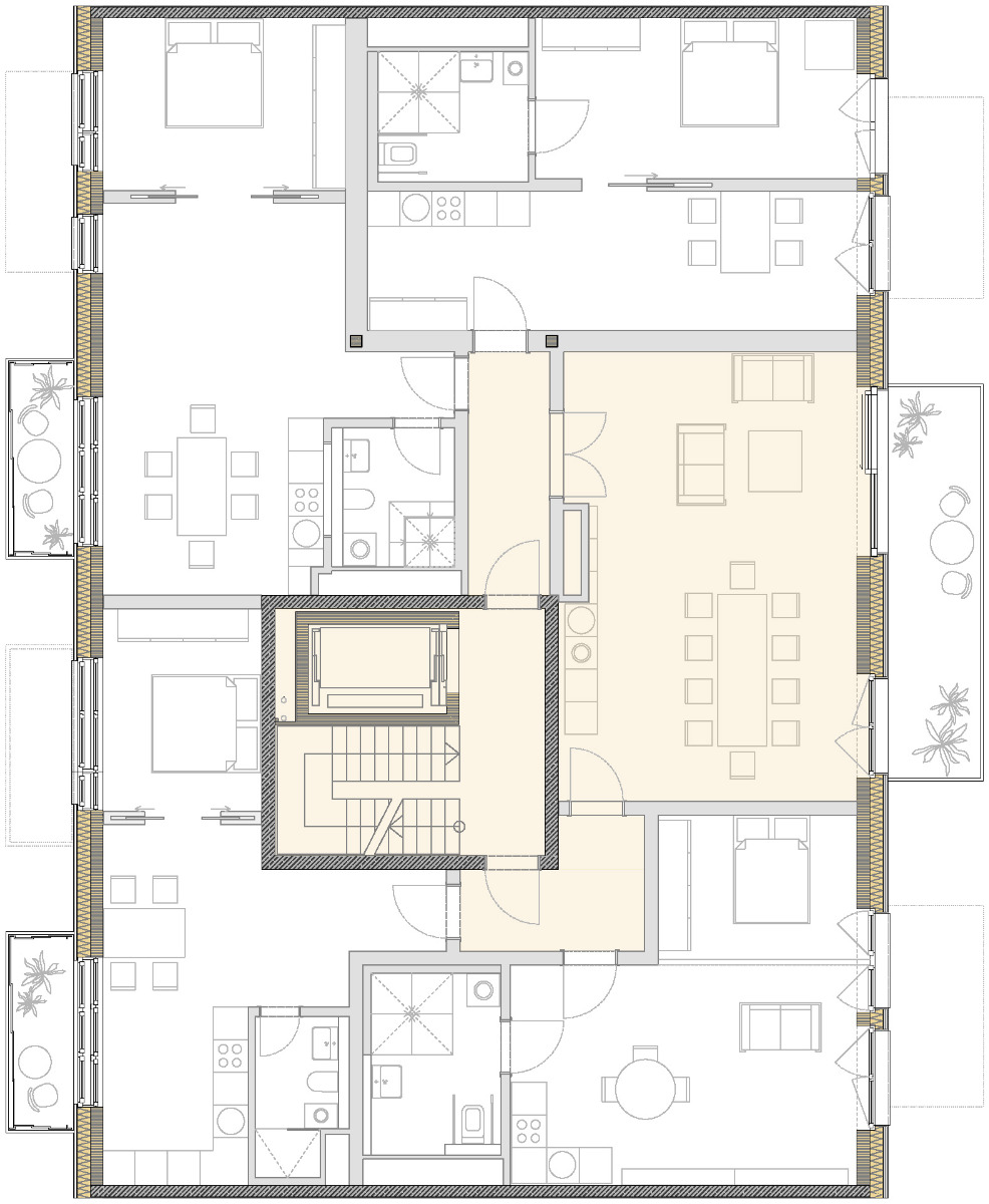
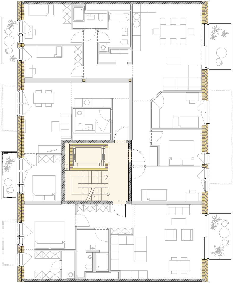
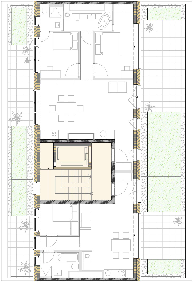
Das Wohnprogramm umfasst 18 Wohneinheiten, darunter eine Clusterwohnung, ein Jugendtreff und mehrere Gemeinschaftsbereiche. Die Clusterwohnung besteht aus vier einzelnen Wohnungen, die über einen großen Gemeinschaftsraum mit Balkon verfügen. Sie ist Frauen mit einem Alter von über 50 Jahren vorbehalten. Im Erdgeschoss befinden sich die Räume für die Jugendlichen.


Wohnraum mit großzügigem Balkon zur Gartenseite, © Jan Bitter
Konstruktion aus Holz
Die Konstruktion zeigt sich als massive Holzbauweise mit tragenden Fassaden aus Brettsperrholz. Holzkörper-Hohlelemente bilden die Geschossdecken. Die Holzbauteile an Wänden und Decken verbleiben mit unbehandelter Oberfläche holzsichtig. Die Fassade zeigt sich zur Straße hin mit Faserzementplatten und zur Hofseite hin mit Lärchenholz verkleidet.


Hochschalldämmende Fenster zur Straße gewährleisten niedrige Schallpegel innerhalb der Wohnungen. Faserzementplatten verkleiden die Fassade. © Jan Bitter


Zur Gartenseite zeigt sich die Fassade aus Lärchenholz: vorvergraut im Erdgeschoss und unbehandelt in den Obergeschossen. © Jan Bitter
Nachhaltigkeit
Der Anspruch an Nachhaltigkeit zeigt sich nicht nur in der Wahl der CO2-bindenden Holzbaustoffe. Eine Lüftungsanlage mit Wärmerückgewinnung minimiert den Heizwärmebedarf. Den zusätzlichen Bedarf deckt die von einer Sole-Wärmepumpe und einem Mikro-Blockheizkraftwerk gewonnene Wärme.


Großzügiger Küchenbereich, © Jan Bitter


Die Balkone zur Straßenseite sind teilweise verglast. © Jan Bitter
Gemeinschaftsorientiertes Wohnen
Die Architektur unterstützt das gemeinschaftliche Leben. Der gartenseitig angeordnete Multifunktionsraum im Erdgeschoss sowie die im Souterrain angeordnete Werkstatt und der Yogaraum bieten Platz für Freizeitaktivitäten. Ein rollstuhlgerechtes Dusch-WC ermöglicht allen Personen der Hausgemeinschaft die Nutzung dieser Bereiche. Somit gilt das Holzhaus Linse nicht nur bauökologisch, sondern auch sozial als ein Beispiel für zukunftsorientiertes und inklusives Wohnen in der Großstadt.
Architektur: Scharabi Architekten
Bauherr: Planungsgemeinschaft Holzhaus SL GbR
Standort: Gotenstraße 44, 10829 Berlin (DE)
Projektsteuerung: Mauer Bauprojektmanagement
Tragwerksplanung: ifb frohloff staffa kühl ecker
Landschaftsarchitektur: hutterreimann landschaftsarchitektur gmbh
HLS-Planung, Elektroplanung: Planungsbüro Dernbach
Brandschutzplanung: brandschutzplus
Thermische Bauphysik: Ingo Andernach
Schallschutzplanung: Akustikbüro Krämer+Stegmaier































