Mehrweg-Architektur: Büroausbau von Capítulo Dos
Foto: César Béjar
Anders als der Name »São Paulo« vermuten lässt, liegt das betreffende Projekt in der zweitgrößten Stadt Mexikos, Guadalajara. Da es sich um eine gemietete Bürofläche handelt, mussten Capítulo Dos für den Ausbau auf Maßnahmen zurückgreifen, die schnell und einfach rückbaubar sind.
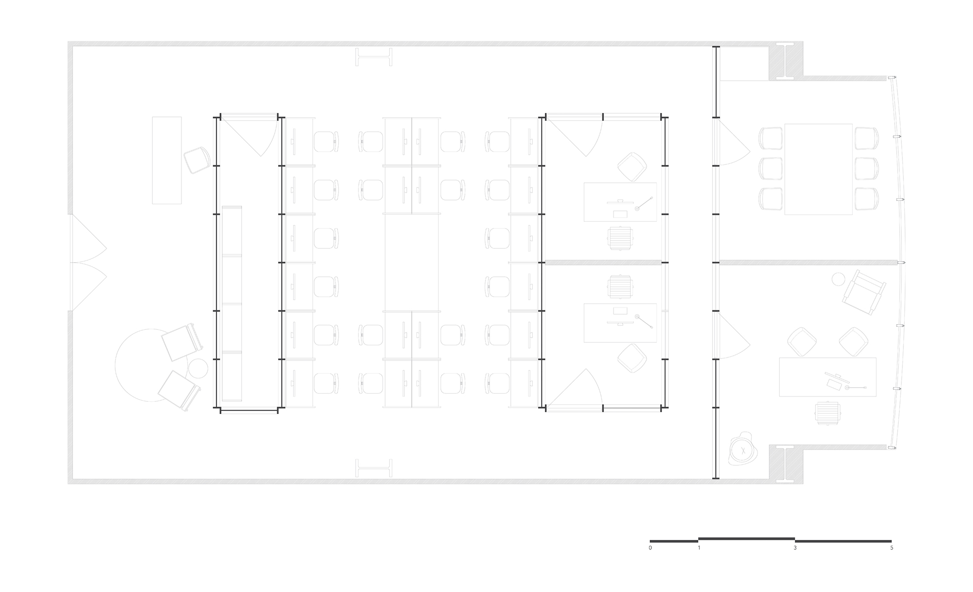
Um den stützenfreien Raum zu zonieren, wurden zwei Pavillons platziert, zwischen denen sich das Großraumbüro aufspannt. So entsteht eine Abfolge vom Empfangsraum, vorbei am ersten Pavillon mit Lagerräumen durch das Großraumbüro und vorbei am zweiten Pavillon mit zwei Einzelbüros. Schließlich endet der Raum an der Fassade des Gebäudes mit einem Besprechungszimmer und einem weiteren Arbeitsplatz. Diese letzten beiden Räume profitieren vom höchsten Maß an Privatsphäre und dem Tageslicht, das durch die raumhohe Verglasung einfällt.
Für die Pavillons griffen die Architekten auf massive und transluzente Paneele zurück. Das Raster der Konstruktion richtet sich dabei nach der handelsüblichen Plattengröße des Materials, um so wenig Abfall wie möglich zu produzieren. Die modulare Bauweise wird es auch in Zukunft erlauben, auf Wachstum, Umbauten oder Umzüge zu reagieren.














